Третий город
Истоки ее лежат в конкурсе 2016 года, который проводил Комитет по архитектуре и градостроительству: участникам предложили разработать концепции преобразования для промышленных территорий, которые лежат за Обводным каналом, и дать более подробные рекомендации для развития трех пилотных площадок. Для Волковской промзоны лучшей по мнению жюри оказалась работа MLA+ – голландского бюро, у которого есть подразделение в Петербурге. Glorax попросил MLA+ доработать концепцию до мастер-плана – так появился проект Ligovsky City, «город в городе».По задумке MLA+ между Санкт-Петербургом, к которому относится исторический центр, и Ленинградом, который простирается за Лиговским проспектом, может появиться «третий город» – современный и комфортный, связанный с природой и историей места, насыщенный и разнообразный. Всю территорию площадью около 100 га архитекторы-урбанисты предложили поделить на 14 кварталов, 4 площади и 4 парковые зоны. Каждый квартал – особенный и рассчитан на группы резидентов с разным стилем жизни – условно семейных, деловых или творческих. Что немного напоминает слободское расселение, но в современных реалиях. Проморолик очень доступно и оптимистично раскрывает всю суть концепции.
Место второго квартала в «Третьем городе»
Для проектирования и строительства отдельных частей застройки на основе концепции MLA+ девелоперская компания Glorax пригласила разных авторов. Архитекторы АБ «А.Лен» в 2017 году начали работать с проектом второго квартала – его строительство завершилось в 2020 году.Застройщики движутся с запада на восток: первый, предшествующий по времени, квартал Ligovsky City построен по проекту А Architects на противоположной сторон проспекта, а для следующей стадии развития «Третьего города» сравнительно недавно был согласован проект, разместившийся, в свою очередь, с восточной стороны, на обширной территории бывшей Товарно-Витебской железнодорожной станции; в работе с этим участком также участвуют архитекторы «А.Лен» в соавторстве с голландскими бюро KCAP и Orange. Впрочем, недавно стало известно, что часть этой территории могут продать другому застройщику, что ставит сложившиеся планы под вопрос.
Но вернемся ко второму кварталу Лиговского-Сити. Он спроектирован полностью архитекторами «А.Лен» и введен в эксплуатацию в конце 2020 года. Сейчас завершаются работы по благоустройству.
Жилой комплекс «Ligovsky City. Второй квартал»
Фотография © Андрей Белимов-Гущин / предоставлена Архитектурное бюро «А.Лен»
Петербургское градостроительство
Если вернуться к категориям мастер-плана MLA+, то «Второй квартал» относится к «синему сегменту», который в целом соответствует бизнес-классу – предполагается, что здесь будут жить люди, которые ценят сдержанную роскошь, комфорт и безопасность. На этот статус работает расположение: комплекс в достаточной степени удален от железной дороги, главным фасадом выходит на Лиговский проспект, а вид из окон гарантированно не закроет другая стройка – в обозримом будущем рядом запланировано открытие станции метро «Боровая», вокруг которой должна сложиться активная городская площадь. Важным для поиска архитектурного образа «Второго квартала» стал как сам Лиговский проспект с его богатой историей, так и соседние по участку здания – доходный дом начала XX века и сталинская постройка, в которой сейчас размещается УВД.Жилой комплекс «Ligovsky City. Второй квартал»
Фотография © Андрей Белимов-Гущин / предоставлена Архитектурное бюро «А.Лен»
Участок «Второму кварталу» достался узкий, сложной изрезанной формы, что для бывшей промышленной территории в общем-то характерно, из-за большого количества собственников, имущественных обременений и санитарных зон. «Усмирить» его бюро «А.Лен» решило с помощью петербургского градостроения – и весьма успешно. Стоит отметить, что отсылка к историческим планировочным приемам встречается у петербургских архитекторов все чаще и, кажется, становится своего рода «фирменным приемом»: вспомним курдонеры «Русского дома», «Царской столицы» или ЖК «Ботаника».
«А.Лен» идет в том же направлении, изучая характерные для Лиговского проспекта пространственные решения, а также знаменитые доходные дома Петербурга, сочетая их с пешеходными осями и современными нормами озеленения или отступов пожарных проездов.
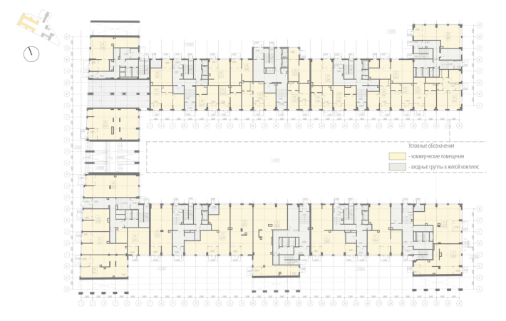
Итак, «Второй квартал» состоит из четырех корпусов, которые группируются относительно ортогональных пешеходных осей, образуя проницаемый прямоугольный квартал с последовательностью внутренних дворов. Протяженность домов нивелируют выступающие секции-«башни», которые отличаются высотой, цветом и рисунком фасада. Таким образом, со стороны Лиговского проспекта мы видим компактный «главный» фасад, за которым в глубине квартала скрывается развитая жилая структура. По Лиговскому проспекту и со стороны будущей станции метро «Боровая» первые этажи зданий занимают коммерческие помещения. Все оставшиеся «кусочки» участка отдаются озеленению, благоустройству и открытым парковкам. Таким образом формируется достаточно ясная композиция, небольшую путаницу в которую вносит лишь дом, стоящий ближе к Растанной улице, но и он играет свою роль, акцентируя вторую ось и замыкая квартал за зданием УВД.
Жилой комплекс «Ligovsky City. Второй квартал». Генплан
© Архитектурное бюро «А.Лен»
Жилой комплекс «Ligovsky City. Второй квартал»
© Архитектурное бюро «А.Лен»
Архитектура Ленинграда
Что касается фасадов здания, то здесь разыгрывается другая история, кстати говоря, вполне в русле концепции MLA+: если планировка квартала относится к петербургским традициям, то образ – скорее к ленинградским, их сочетание и дает возможный вариант искомого «третьего города».«Главный» фасад, выходящий на Лиговский проспект, снова ведет нас к Петроградской стороне, но на этот раз не к доходным домам Каменноостровского проспекта, а к знаменитому дому Ленсовета на Карповке: думать о сходстве заставляют «плоский» вытянутый прямоугольный объем, тонкие «ножки» галереи первого этажа, центральный портал с тремя арками, а также вставки барельеф. Барельефы, к слову, планируют заменить на более детализированные. Работу поручили небезызвестному скульптору Владиславу Маначинскому, предполагается взять более нетривиальные сюжеты – например, изобразить не сохранившиеся до наших дней достопримечательные здания Лиговского проспекта.
Жилой комплекс «Ligovsky City. Второй квартал»
Фотография © Андрей Белимов-Гущин / предоставлена Архитектурное бюро «А.Лен»
Жилой комплекс «Ligovsky City. Второй квартал»
Фотография © Андрей Белимов-Гущин / предоставлена Архитектурное бюро «А.Лен»
Есть у здания, конечно же, и принципиальные отличия и приметы современности. Прежде всего – больший процент остекления и облицовочные материалы. Окна располагаются с характерной для нашего времени сбивкой, но в то же время имеют четкий ритм и располагаются строго симметрично относительно оси, проходящей через центральный портал. Чередование толщины простенков и объединение окон на высоту двух этажей помогает создать ненавязчивый паттерн и, как говорят на градсоветах, преодолеть монотонность пластины дома. При том, что первый этаж полностью облицован натуральным камнем, необычен выбор материала для остальной части фасада – это кирпич, уложенный тремя разными способами, каждый из которых подчеркивает тектонику здания.
Изначально предполагалось использовать красный кирпич, однако для Лиговского проспекта архитекторы сочли его слишком темным, в результате остановились на двух светлых оттенках. Также была идея разместить на фасадах скульптуры, но от нее отказался заказчик.
Жилой комплекс «Ligovsky City. Второй квартал»
Фотография © Андрей Белимов-Гущин / предоставлена Архитектурное бюро «А.Лен»
Жилой комплекс «Ligovsky City. Второй квартал»
Фотография © Андрей Белимов-Гущин / предоставлена Архитектурное бюро «А.Лен»
Жилой комплекс «Ligovsky City. Второй квартал»
Фотография © Андрей Белимов-Гущин / предоставлена Архитектурное бюро «А.Лен»
Секции-«башни» повторяют «парадный» корпус в чуть более упрощенном виде. Со стороны будущей станции метро торцы пришлось сделать глухими в ответ на нормы, впрочем, в результате брандмауэры придают этой части комплекса ритм, напоминающий жилмассив на Тракторной улице – еще одно выдающееся творение советских архитекторов. Дворы-курдонеры получили отделку из более светлого кирпича.
Планировки квартир сделаны по авторской методике «А.Лен»: они опираются на портрет жителя и его потребности. Благоустройство заказчик перепоручил другому проектировщику, в результате чего логика концепции была несколько сбита криволинейными формами, возникшими во дворе.
Подытоживая: комплекс определенно можно назвать петербургским по духу, его строгость соответствует статусу жильцов, он добротно нарисован и реализован. Рельефная кладка задает фактурную изюминку, кроме того, после замены рельефов фасады станут еще более привлекательны для глаза прохожего – не только легкой регулярной сеткой, работающей на порядок, но и детализацией, обеспечивающей разнообразие, что в наше время служит немаловажным конкурентным преимуществом. Комфортная высота 11-этажных корпусов, сдержанность естественного тона фасадов, тщательная детализация, а на главном фасаде – симметрия трехчастного портала, делают образ новых домов Ligovsky City благородно-неярким, однако подчеркивает и поддерживает ощущение некоего имманентного dignitas, внутреннего достоинства, присущего этим домам.
