Спа Cloud Center
Фото © Daily Architectural Photography | LIU Guowei
«Древний город» на самом деле совсем не старый: это комплекс из вилл и гостиниц в горах недалеко от Пекина. Помимо купаний туристов привлекают сюда огромный комплекс мавзолеев цинских императоров и участок Великой китайской стены. Она видна от спа-центра, так как он помещен на вершине холма, в самой высокой точке поселения, и заметен издалека.
Спа Cloud Center
Фото © Daily Architectural Photography | LIU Guowei
Поэтому архитекторы выбрали для него заметную, «иконическую» округлую форму. Она вдохновлена «парящими камнями», природными достопримечательностями – валунами или обломками скал, которые как будто вот-вот упадут в пропасть, но остаются на своем месте тысячелетия. Их в Китае порядка тридцати.
Спа Cloud Center
Фото © Daily Architectural Photography | LIU Guowei
Второй избранный авторами образ относится к интерьеру: это приморская пещера, где вода отбрасывает отсветы на своды. Чтобы усилить эффект, в перекрытиях над главным бассейном сделан фонарь длиной 26 м (высота потолка здесь 9 м). Солнце проникает внутрь также и сквозь панорамное окно.
Спа Cloud Center
Фото © Daily Architectural Photography | LIU Guowei
Округлая оболочка здания получила правильную форму, чтобы при строительстве не требовалось алюминиевых панелей сложного профиля. Между ней и основным сооружением есть значительный зазор, в котором сделан спиральный пандус, ведущий на полуоткрытую смотровую террасу. Пандус и терраса доступны всем желающим, и их площадь не входит в основную площадь постройки. С другой стороны, около 900 входящих туда квадратных метров требовались техническому оборудованию, но помещения для него устроили под землей, чтобы не перегружать «камень».
Спа Cloud Center
Фото © Daily Architectural Photography | LIU Guowei
Дополнительные сложности создала высокая сейсмическая опасность, характерная для округа Таншань, поэтому даже небольшой консольный вынос требовал особого усиления конструкции.
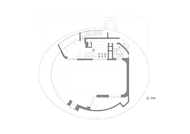
На первом этаже расположены обращенный к главному зданию гостиницы вестибюль и подсобные помещения, выше – главный, мелкий, детский бассейны и раздевалки. На самом верху – тренажерный зал, также с панорамным окном.
Спа Cloud Center
Фото © Daily Architectural Photography | LIU Guowei
Спа Cloud Center
Фото © Daily Architectural Photography | LIU Guowei
Спа Cloud Center
Фото © Daily Architectural Photography | LIU Guowei
Спа Cloud Center
Фото © Daily Architectural Photography | LIU Guowei
Спа Cloud Center
Фото © Daily Architectural Photography | LIU Guowei
