От редакции
Август – особый месяц, наполненный сожалением об уходящем лете и необходимостью возвращаться к работе, и в то же время – сохраняющий и даже усиливающий ощущение праздника жизни, особенно остро воспринимаемое благодаря «обратному отсчету». Неудивительно, что офис IT-компании, созданный архитекторами бюро AQ на Кипре, вызывает ассоциации именно с этим месяцем. В нем все строится на противоречиях и при этом удивительно гармонично. Здесь царит атмосфера продолжающегося праздника и одновременно ощущается рациональная деловитость трудовых будней.
Офис IT компании в Пафосе, Кипр
Фотография © Дмитрий Чебаненко / предоставлено Архитектурным бюро AQ
В оформлении легко угадываются отсылки к ар-деко, скорее американского, чем европейского «разлива» – в духе старого отеля, пережившего свои лучшие времена во времена Гэтсби. И в то же время каждая функциональная зона и планировочный блок спроектированы в точном соответствии с современными трендами и принципами, необходимыми для офиса успешной высокотехнологичной компании.
Офис IT компании в Пафосе, Кипр
Фотография © Дмитрий Чебаненко / предоставлено Архитектурным бюро AQ
Получившийся микс создает почти киношный антураж. Тут впору заподозрить, что перед нами масштабная декорация для съемок какого-нибудь ситкома об офисной жизни с романтическими сюжетными линиями, где герои вроде бы работают, но на самом деле заняты тысячей куда более увлекательных дел. Для каждой мизансцены здесь предусмотрен свой идеальный антураж: слишком голубой бассейн, переговорные и санузлы с огромными тропическими принтами на стенах и расставленные повсюду декадентские оранжевые кресла.
Офис IT компании в Пафосе, Кипр
Фотография © Дмитрий Чебаненко / предоставлено Архитектурным бюро AQ
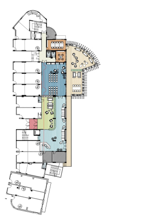
Офис занимает три этажа. Самыми «августовскими» выглядят первые два и антресоль, где сосредоточены переговорные и представительские функции. На третьем этаже интерьер максимально прагматичен и деловит. Единственный намек на отпускное настроение – зеленый цвет надежды на стенах и потолке.
Кстати, о цвете. Говоря об этом интерьере, стоит отдельно отметить великолепную работу с цветовой палитрой и макрографикой. Сложные оттенки, особенно сине-зеленая гамма, всегда риск: легко ошибиться в балансе тепла и холода, в тоне и во взаимодействии с источниками искусственного освещения. Яркие принты на стенах тоже нередко скатываются к китчу. Но здесь всё находится в балансе: каждый элемент работает на общую атмосферу и создаёт непреходящее ощущение того, что здесь август побеждает сентябрь.
ЕП
Описание предоставлено архитекторами
Перед архитекторами бюро AQ стояла задача создать современное и вдохновляющее рабочее пространство, способствующее продуктивности, креативности и комфорту сотрудников. Офис должен был сочетать в себе функциональность, возможности для отдыха и уникальную атмосферу, отражающую как специфику IT-индустрии, так и колорит Кипра.
Проект реализован в здании бывшего отеля постройки 90-х годов. Архитекторы сохранили основную структуру здания, адаптировав ее под нужды IT-компании. Верхние этажи, использовавшиеся как номерной фонд отеля, были преобразованы в рабочие зоны с сохранением коридорной и кабинетной системы, принятой в компании. Отель также включал три этажа общественных зон, которые были полностью переосмыслены.
Идея преобразования отеля, включавшего типичные для курорта бассейн, летнюю террасу и балконы, пришлась сотрудникам компании по душе. Новая концепция идеально вписалась в расслабленную атмосферу Кипра и отразила культуру острова. Неофициально в рамках компании офис получил название «Отель».
По классическим канонам отельной структуры на нулевом уровне размещена летняя терраса с кафе и бассейном, идеально подходящая для отдыха и неформального общения. В большинстве помещений этого уровня предусмотрен прямой выход на террасу.
Помещения нулевого уровня используются для двух ключевых функций: большой блок разноформатных переговорных комнат с видом на бассейн и просторная столовая полного цикла. Столовая выполнена в традиционном средиземноморском стиле с плетеными светильниками, создающими уютную атмосферу.
Офис IT компании в Пафосе, Кипр
Фотография © Дмитрий Чебаненко / предоставлено Архитектурным бюро AQ
Первый уровень, типично для структуры отеля, встречает гостей зоной ресепшн и просторным лаунжем, дополненными двухсветным мультифункциональным пространством. Здесь сохранилась оригинальная отделка пола из натурального камня, что придает пространству особый шарм и связывает его с историей здания. Из всех помещений первого этажа есть выход на видовую террасу.
Мультифункциональное пространство трансформируется под различные сценарии использования благодаря мобильной мебели и наличию проектора: от лекционного класса и конференц-зала до площадки для мероприятий и игровой зоны.
Второй уровень (антресольный), ранее использовавшийся как технический этаж отеля, теперь отведен под переговорные комнаты различной вместимости.
В расположенных на гостиничных этажах рабочих помещениях преобладает атмосфера комфорта и умиротворения: из большинства кабинетов открывается вид на море. Для удобства сотрудников на каждом этаже предусмотрены кофе-пойнты.
Дизайн-идея
Архитекторы вдохновлялись классической кипрской архитектурой с ее белыми фасадами и яркими тропическими акцентами. Эта тема особенно ярко выражена в оформлении общих зон, прежде всего входной группы и мультифункционального зала.
Сдержанная и лаконичная цветовая гамма рабочих этажей способствует концентрации и продуктивности. Ярким контрастом и настоящей изюминкой проекта стали санузлы.
Каждый санузел – это взрыв цвета и тропических мотивов, уникальное дизайнерское решение, превращающее обычное функциональное пространство в миниатюрный арт-объект. В рамках проекта также была проведена реновация фасада здания: архитекторы создали современный и лаконичный облик, интегрировав в него элементы фирменного стиля IT-компании. Новый фасад отражает инновационный дух компании и гармонично вписывается в окружающий ландшафт.

