Терминал Eurostar UK на Центральном вокзале Амстердама
Фото © Marc Goodwin
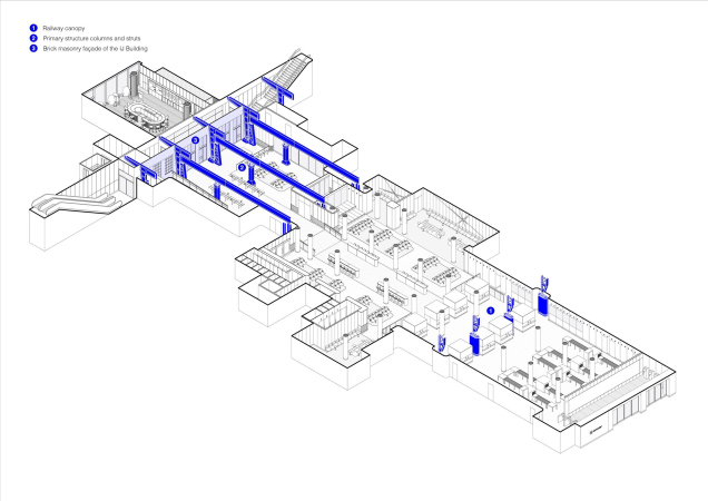
Новый терминал почти в 4 раза больше своего предшественника на платформе № 15. Это особенно важно, потому что пассажирам приходится проходить здесь паспортный контроль нидерландских и британских пограничников, а также досмотр багажа. Все эти процессы сейчас значительно ускорились.
Терминал Eurostar UK на Центральном вокзале Амстердама
Фото © Marc Goodwin
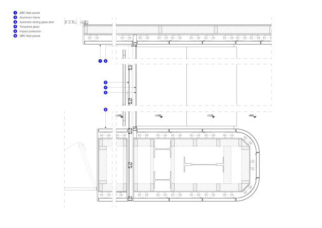
Чтобы упростить ориентирование, авторы проекта использовали длинный белый «плафон», ведущий путешественников от начала маршрута до выходов на платформу. Схема освещения призвана имитировать движение облаков, чтобы придать закрытому пространству без солнечного света и видов наружу динамику. Обилие белых поверхностей должно способствовать комфорту пассажиров в «подземелье», а терраццо на полу – обеспечивать преемственность с натуральными материалами исторического здания.
Терминал Eurostar UK на Центральном вокзале Амстердама
Фото © Marc Goodwin
Не забыли и об повторного использовании частей предыдущего сооружения – тоннеля Амстелпассаж – например, спринклерной системы. Помимо сравнительно «зеленого» терраццо, применены органические изоляционные материалы, а также вторсырье – войлок и алюминий. Пока речь идет о первой очереди проекта; те части терминала, которые будут демонтированы при запуске второй, сделаны модульными и пригодными для вторичного использования.
Терминал Eurostar UK на Центральном вокзале Амстердама
Фото © Marc Goodwin
Терминал Eurostar UK на Центральном вокзале Амстердама
Фото © Marc Goodwin
Терминал Eurostar UK на Центральном вокзале Амстердама
Фото © Marc Goodwin
Терминал Eurostar UK на Центральном вокзале Амстердама
Фото © Marc Goodwin
Терминал Eurostar UK на Центральном вокзале Амстердама
© Superimpose Architecture + ZJA Architects & Engineers
