Офисное здание CITIC International Building
Фото © CreatAR Images
Поэтому и CITIC International Building четко ориентирован по сторонам света: к югу из его окон открываются виды на границу с Гонконгом, к западу – на высотную застройку Футяня, к северу – на коммерческий район Луоху и зеленые холмы за ним,
Офисное здание CITIC International Building
Фото © CreatAR Images
Постройка выделяется своим силуэтом: она как будто состоит из четырех квадратных в плане вертикальных объемов. Это кажущееся деление: в реальности большинство этажей башни – единые, с офисами свободного плана и лестнично-лифтовым узлом в центре. Лишь кровли с озелененными террасами у четырех частей устроены на разном уровне.
Офисное здание CITIC International Building
Фото © CreatAR Images
Структуру здания подчеркивают «лоджии» (они же «небесные сады») высотой 4 этажа каждая. Они служат пространством для отдыха и общения сотрудников и поддерживают в здании оптимальный микроклимат через связанные с ними атриумы, а также помогают затенить интерьер.
Офисное здание CITIC International Building
Фото © CreatAR Images
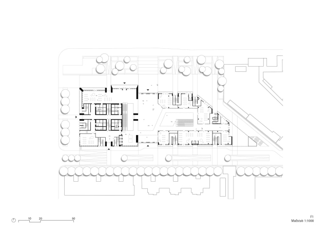
В четырехэтажном подиуме, полностью заполняющем сложный по форме участок, расположены магазины и рестораны.
Офисное здание CITIC International Building
Фото © CreatAR Images
Офисное здание CITIC International Building
Фото © CreatAR Images
