Офисное здание EDGE HafenCity
Фото © Simon Menges
EDGE HafenCity возведен в квартале Эльббрюке, рядом с одноименной станцией метро, на восточном краю Хафенсити. Он состоит из двух частей: 7-этажного квадратного блока с атриумом в центре и 16-этажной башни (60 м). Красный цвет фасадных панелей напоминает по оттенку типичный гамбургский кирпич и подчеркивает регулярную сетку больших окон.
Офисное здание EDGE HafenCity
Фото © Simon Menges
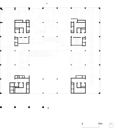
Модульная прямоугольная сетка использована и в интерьере, что позволяет легко менять планировку здания. Пока на всех этажах, кроме первого, где находятся кафе и конференц-залы, размещены офисы с 1500 рабочих мест, включающие пространства как для сосредоточенных индивидуальных занятий, так и для проектной, групповой работы.
Офисное здание EDGE HafenCity
Фото © Simon Menges
Главный вход отмечен галереей из пустых ячеек красной сетки и консольным выносом (8,4 м), создающим подобие портика. Отсюда посетитель (сюда есть доступ всем желающим) попадает в зеленый атриум, где ландшафт из лестниц и террас предназначен для отдыха и общения сотрудников.
Практически все крыши EDGE HafenCity озеленены, чтобы удерживать дождевую воду и предохранять здание от перегрева; есть среди них и терраса-сад для прогулок. Только на кровле башни установлены солнечные батареи.
Офисное здание EDGE HafenCity
Фото © Simon Menges
