Культурно-развлекательный комплекс GATE M Dream Center
Фотография © Sanqian Visual Image Art
Теперь очередь дошла до цементного завода, одного из старейших в Китае и одно время крупнейшего в Азии. Он закрылся в конце 2000-х, но первая попытка его реконструировать провалилась: от нее остались недостроенные коммерческие корпуса среди масштабных индустриальных сооружений.
Культурно-развлекательный комплекс GATE M Dream Center
Фотография © Xia Zhi
Этот фронт работ – Shanghai Dream Center – и поручили в 2021 архитекторам MVRDV, которые выполнили мастерплан всей территории и плотно занялись ее южной частью – GATE M Dream Center. Коммерческие здания в северной части Dream Center’а проектировало шанхайское Atelier Deshaus, а датчане Schmidt Hammer Lassen превратили в зал для мероприятий West Bund Dome Art Center бывший круглый цех и выстроили полностью новый Большой театр. Ландшафтом везде занималась нью-йоркская студия Field Operations.
Культурно-развлекательный комплекс GATE M Dream Center
Фотография © Sanqian Visual Image Art
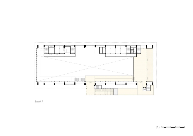
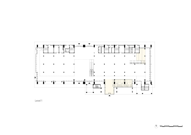
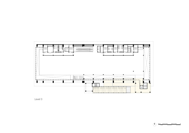
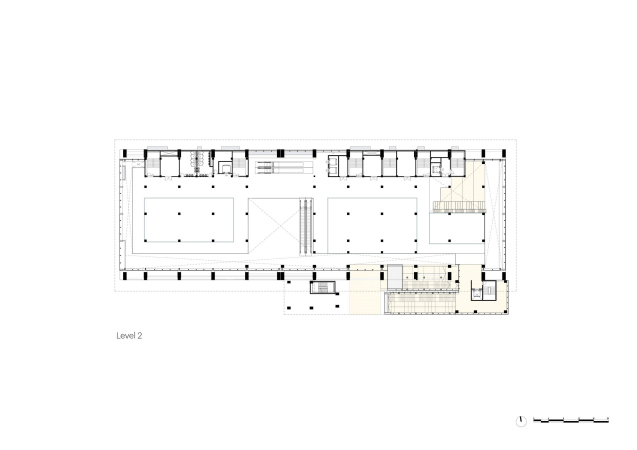
MVRDV стремились максимально сохранить существующие сооружения, чтобы сократить и бюджет проекта, и его углеродный след. В зоне GATE M (45 тыс. м2) они ее полностью реализовали. Упор сделали на более старые и характерные промышленные сооружения, цеха и силосные хранилища для цемента, бетон которых подчеркнут внешними лестницами и лифтовыми шахтами красно-оранжевого цвета.
Так, у огромного корпуса M Factory нижняя часть занята фуд-маркетом и ресторанами, а верхняя, куда и ведут яркие внешние коммуникации (они сделаны из заводских конвейеров), представляет собой большой безопорный зал для выставок, концертов и любых других мероприятий с террасой, выходящей на реку.
Культурно-развлекательный комплекс GATE M Dream Center
Фотография © Xia Zhi
Большое силосное хранилище для цемента превращено внутри в скалодром, а снаружи лестницы ведут на смотровые площадки посередине и наверху сооружения. Рядом устроен скейт-парк.
Недостроенные коммерческие здания теперь трактованы нейтрально и снабжены зелеными крышами и открытыми террасами: это отели, магазины и рестораны.
Культурно-развлекательный комплекс GATE M Dream Center
Фотография © Sanqian Visual Image Art
Культурно-развлекательный комплекс GATE M Dream Center
Фотография © Xia Zhi
Культурно-развлекательный комплекс GATE M Dream Center
Фотография © Xia Zhi
Культурно-развлекательный комплекс GATE M Dream Center
Фотография © Xia Zhi
Культурно-развлекательный комплекс GATE M Dream Center
Фотография © Sanqian Visual Image Art
Культурно-развлекательный комплекс GATE M Dream Center
Фотография © Sanqian Visual Image Art
Культурно-развлекательный комплекс GATE M Dream Center
Фотография © Sanqian Visual Image Art
