Точка роста
В составе петербургского бюро «А.Лен» есть не самое привычное подразделение: архитектурная лаборатория. Она сформировалась в 2009 году как ответ на экономический кризис, который существенно снизил темпы строительства и количество заказов. Руководитель бюро Сергей Орешкин воспользовался затишьем, чтобы осмыслить накопленный за предыдущие десятилетия опыт, исследовать новые подходы к проектированию и загрузить большой штат, с которым расставаться не хотелось. Поскольку стабильно строить продолжали только жилье, сосредоточились именно на его проблемах.Так появилась программа «Идеальные квартиры «А.Лен» – систематизированная база планировок, которую сейчас бюро использует как основу при проектировании жилья и внедряет во все свои постройки, начиная с 2012 года.
«Идеальные квартиры» есть и в знаковых проектах вроде ЖК Golden City на намыве Васильевского острова, и в регионах – к примеру, в ЖК «Бунин» в Воронеже, где планировки легко подстраиваются под сложную ступенчатую архитектуру. Программа адаптируется под разные классы жилья: стандарт, комфорт и бизнес, а также под смешанные типологии – хорошим примером здесь служит компаунд «Проспект Мира» в Екатеринбурге.
В советское время подобными разработками занимались проектные научно-исследовательские институты, в новейшее – крупные девелоперские холдинги. А вот архитектурные бюро, стоит отметить, такие масштабные задачи берут на себя редко.
В основе программы – исследование типологий советского, современного российского и зарубежного жилья, а также опыт работы бюро с отделами маркетинга и продаж современных девелоперов, анализ ошибок.
Сергей Орешкин отмечает, что корень многих проблем современной квартирографии кроется в отсутствии глубоких научных исследований, для которых у архитектурных компаний нет ресурсов, а государство проявляет к проблеме слабый интерес.
На примере такого простого показателя, как ширина корпуса, который влияет на глубину квартиры от окна и ее площадь, можно довольно точно проследить, как эволюционировали планировочные решения, независимо от класса застройки.
В период роста экономики, когда решения принимались слишком быстро, ширина жилых корпусов могла достигать 27 м, при том что солнечный свет проникает в лучшем случае на 6-6,5. Помимо длинных или г-образных темных комнат в таких домах встречаются огромные прихожие, кладовые и санузлы, за которые покупатель платит точно такую же цену, что и за квадратный метр освещенной кухни.
Что касается градостроительных приемов, то сильное влияние на планировки квартир оказало распространение так называемых жилых групп периметральной застройки, в основе которых лежала идея закрытого изолированного двора, напоминающего традиционный петербургский двор-колодец, но в совершенно других масштабах. В таких домах было слишком много квартир во внутренних углах, где практически невозможно изолировать друг от друга соседние квартиры, да и проблемы с эхом и слышимостью оказались очень существенными.
В угловых квартирах протяженность внутренней стены больше, чем внешней, пропадает одно окно, соответственно и света значительно меньше. Здоровая альтернатива: неширокая секция, приближенные к квадрату пропорции комнат, эффективность каждого метра.
Андрей Пономарев, руководитель отдела развития компании «Первостроитель»
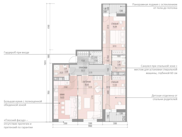
Ядро квартирограммы в компаунде «Проспект Мира» – двух-трехкомнатные квартиры, и они достаточно востребованы у аудитории. Хуже продаются однокомнатные квартиры, но здесь причина, скорее, в их относительно высокой стоимости. Квартиры необычного формата – со вторым светом, например, почти все проданы, и именно они привлекали наибольшее внимание к проекту в рамках общей рекламной кампании. По ним было очень много обращений. Наиболее востребованы у клиентов, по нашим наблюдениям, максимально функциональные планировки – с мастер-спальнями, двумя и более санузлами, кухней-гостиной, местами для хранения.
Квартирография, которую предлагает «А.Лен», разнообразна и достаточно сбалансирована с учетом потребностей аудитории. Квартиры бОльших форматов имеют уникальные преимущества: тот же второй свет, панорамное остекление, мастер-спальни. Уникальные решения позволили нам отличиться от конкурентов и дать больше возможностей клиентам.
Квартирография, которую предлагает «А.Лен», разнообразна и достаточно сбалансирована с учетом потребностей аудитории. Квартиры бОльших форматов имеют уникальные преимущества: тот же второй свет, панорамное остекление, мастер-спальни. Уникальные решения позволили нам отличиться от конкурентов и дать больше возможностей клиентам.
Как устроена программа
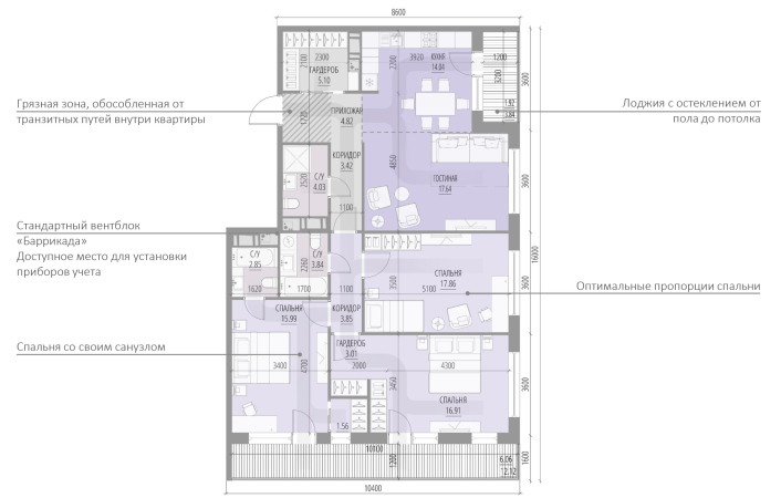
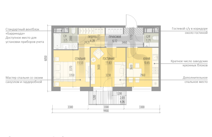
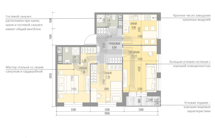
В базу внесено уже больше 5 000 удачных планировок, которые систематизированы в четыре раздела: бизнес, комфорт, эконом и квартиры особых типов, пока мало представленные на рынке. К последним относятся, например, двухуровневые квартиры, дуплексы, угловые, торцевые, квартиры-офисы. Бизнес отличает более широкий шаг сетки осей, площадь и разнообразие функциональных зон.Базу можно использовать как конструктор: архитекторы разработали для каждого класса квартир модули помещений с оптимальной площадью и расстановкой мебели. С их помощью можно трансформировать как отдельные квартиры, так и целые этажи.
Александр Андрианов, первый вице-президент Glorax Development
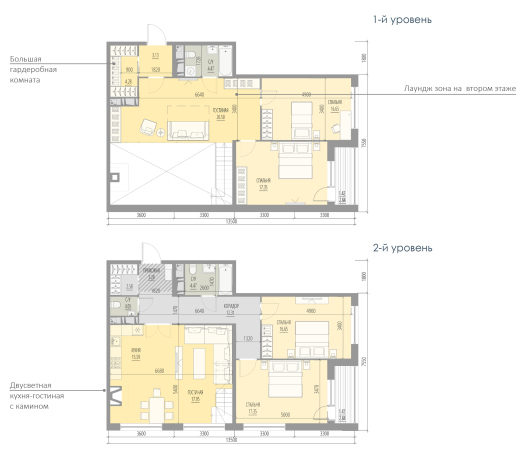
В жилом комплексе Golden City, который Glorax Development возводит на первой береговой линии Финского залива, воплощается сразу несколько интересных планировочных решений. На верхних этажах предусмотрены квартиры с приватными террасами для отдыха, кроме того, представлены двухуровневые квартиры, из всех окон которых открывается отличный вид на воду. В домах есть решения с окном в ванной или холле, это расширяет круг дизайнерских идей при обустройстве жилья, такую недвижимость в жилых комплексах бизнес-класса покупатели очень ценят. Еще одна особенность наших идеальных квартир в Golden City – панорамные окна, которые наполняют комнаты естественным светом и позволяют зонировать помещение, создавая отдельные пространства для отдыха, работы, игр и другие.
У каждой планировки есть своя карточка, понятная как девелоперу, так и покупателю. В ней отображается количество комнат, тип подходящего домохозяйства, площадь жилых комнат, общая площадь квартиры. Также бюро разработало оценочные коэффициенты, которые показывают, насколько эффективно используется площадь квартиры.
Коэффициент К1 показывает отношение суммы площадей жилых комнат, кухни и гостиной к общей площади квартиры. Он точно указывает на ошибки в методике проектирования при существенном увеличении площади коридоров и других вспомогательных помещений. Оптимальным может считаться коэффициент 0.6-0.75.
Коэффициент К2 – это отношение общей площади квартиры к площади наружной фасадной стены, которое отражает естественную освещенность квартиры. Оптимальным может считаться коэффициент 2.1-2.35.
Сергей Орешкин, Архитектурное бюро «А.Лен»
Сейчас архитекторы бюро начинают работу не с эскиза или мастер-плана, а сразу берут программу, предварительно согласовав с заказчиком пакет разных заданий, одно из которых – квартирография.
Программа помогла существенно оптимизировать отношения архитектора и девелопера: заказчик, как правило, с ходу принимает предложенные планировки, что позволяет спокойно работать над фасадами. Мучительная процедура, состоящая из бесконечных согласований с отделом продаж, где не всегда знают об эргономике, превратилась в приятную рутину. Когда кто-то давит на архитектора, получается плохой результат. Сейчас мы с девелопером говорим на одном языке, ему понятно, что мы делаем, выгодно, что проблемных квартир нет совсем. Идеология помогает продавать.
Программа помогла существенно оптимизировать отношения архитектора и девелопера: заказчик, как правило, с ходу принимает предложенные планировки, что позволяет спокойно работать над фасадами. Мучительная процедура, состоящая из бесконечных согласований с отделом продаж, где не всегда знают об эргономике, превратилась в приятную рутину. Когда кто-то давит на архитектора, получается плохой результат. Сейчас мы с девелопером говорим на одном языке, ему понятно, что мы делаем, выгодно, что проблемных квартир нет совсем. Идеология помогает продавать.
