Школа Тунтай
Фото © Jin Weiqi
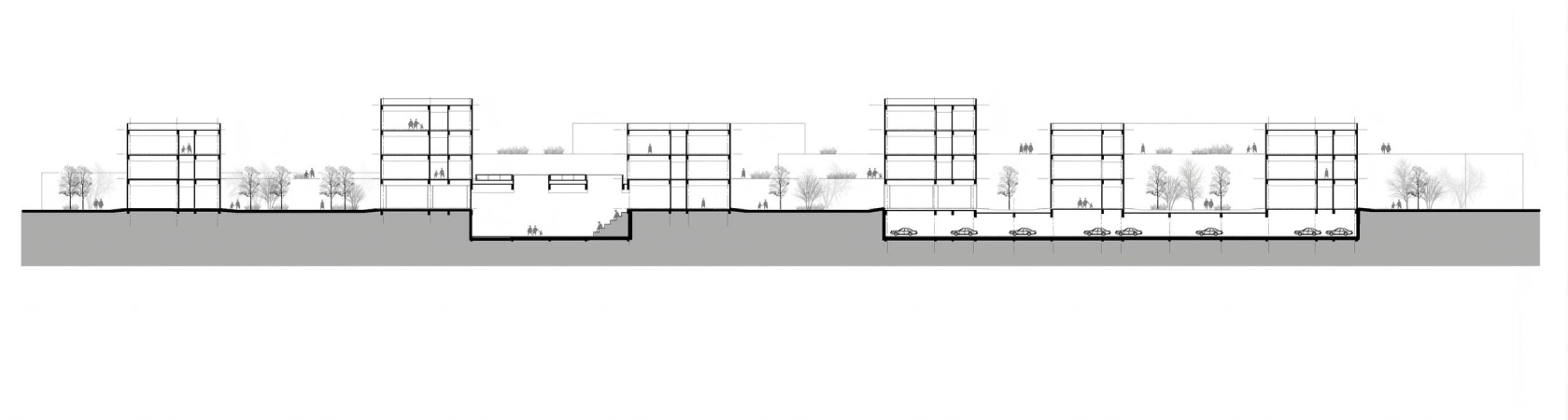
Западная часть участка (1,5 из 8,6 га) в уезде Нинцзинь городского округа Синтай (провинция Хэбэй) была ранее занята карьером глубиной 18 м: здесь добывали глину для производства кирпича, который обжигали на месте. Сейчас с этой стороны устроена зеленая зона с водоемами – переходное пространство между школой и многоэтажными жилыми домами, попытка экологической реставрации. К востоку рельеф повышается – здесь расположены основные постройки – но к востоку вновь спускается вниз, к большому спортивному полю, где перепад высот позволил устроить ступени-трибуны.
Школа Тунтай
Фото © Jin Weiqi
Сложный рельеф позволил обеспечить расположенную на цокольном этаже столовую солнечным светом. Также под землей размещены часть пространств библиотеки и корпуса искусств, полуподземным сделан лекционный зал (3D-эскурсию по школе Тунтай можно посетить здесь).
Школа Тунтай
Фото © Jin Weiqi
Цельность комплексу придает широкое использование кирпича: он покрывает фасады всех зданий, кроме кольцеобразного детского сада в юго-западном углу – для него применили бамбуковые панели. Кирпич широко использован и в интерьерах ключевых пространств, от актового до спортивного зала. Это отсылка к истории места, но также и мера по «гуманизации» большого проекта. Кирпич тактилен, рукотворен, и потому масштабные и даже суровые корпуса с его помощью выглядят человечнее.
Для фасадов выбрали сэндвич-панели, обеспечивающие хорошую изоляцию даже в суровые местные зимы. От летнего зноя помещения с юга защищают глубокие – метровые – оконные проемы.
Школа Тунтай
Фото © Jin Weiqi
Школа Тунтай
Фото © Jin Weiqi
Школа Тунтай
Фото © Jin Weiqi
Школа Тунтай
Фото © Jin Weiqi
