Многоквартирный дом Taborama
Фото © querkraft – Christina Häusler
Taborama – белая пластина, разделенная горизонтальными темными «поясами» – чуть более узкими этажами – на блоки. Вертикальную тему подчеркивают опоры для вьющихся растений: их, как и обычные цветы в ящиках, предлагается высаживать самим жильцам, однако есть также и централизованное озеленение.
Многоквартирный дом Taborama
Фото © querkraft – Christina Häusler
Название Taborama – отсылка к названию улицы, где стоит дом – ам-Табор, что в свою очередь напоминает о располагавшихся здесь много веков назад укреплениях по образцу оборонительных сооружений таборитов. Суффикс –rama – отсылка к «панораме»: из 20-этажной постройки открываются эффектные виды, в зависимости от направления окон – на исторический центр города, Дунай, Пратер, Венский лес. У жильцов нижних этажей тоже есть возможность полюбоваться австрийской столицей – с «коммунальной» террасы с бассейном на крыше.
Многоквартирный дом Taborama
Фото © querkraft – Christina Häusler
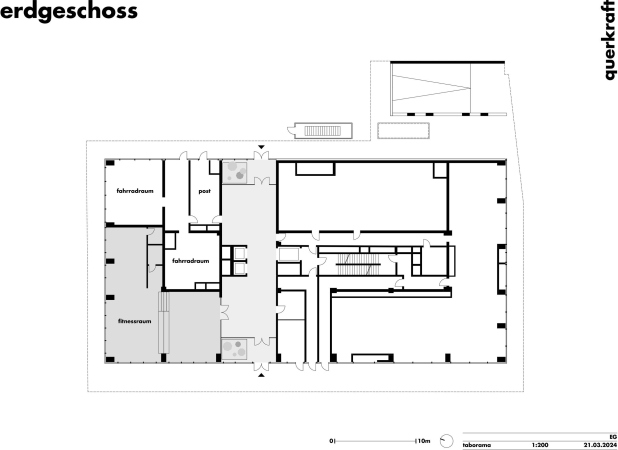
Помимо этой террасы, для жителей дома на разных этажах предусмотрены другие общие пространства: библиотека, куда книги приносят сами соседи, студия для занятия живописью и другими видами художественного творчества, где проходят и мастер-классы, скалодром, комната настольного тенниса, двухсветное помещение для йоги и так далее. На кровле нижнего блока устроен «коммунальный» огород, к нему примыкает зал для мероприятий, где жильцы могут устраивать собрания и праздники.
Цвета стен в общественных помещениях выбран с помощью известного художника и исследователя цвета Инго Нуссбаумера: с ним querkraft architekten сотрудничают уже не в первый раз.
Многоквартирный дом Taborama
Фото © querkraft – Christina Häusler
