Описание предоставлено архитекторами
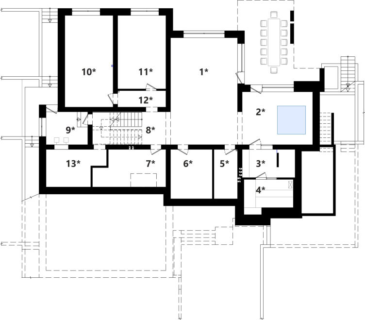
Проект загородного дома в коттеджном поселке «Дубрава» основан на трех принципах – чистые формы, современные решения и функциональность. Его архитектура сочетает графичность объемов с плавным перетеканием внутренних пространств. Площадь составляет 560 м2.
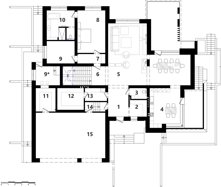
Кухня, столовая и гостиная собраны в единый объем, каждое пространство дополняет другое. Панорамное остекление наполняет дом светом и воздухом, создает визуальную связь с участком, где расположена терраса с бассейном и зоной для летнего отдыха. Открытая планировка усиливает ощущение свободы и делает переход между интерьером и экстерьером почти незаметным.
Функциональная структура дома включает мастер-спальню с кабинетом и гардеробной, детские комнаты, спа-зону с сауной и хаммамом, хозяйственные помещения и гараж. Все помещения организованы в соответствии с образом жизни семьи.
Фасад выполнен в светлых и темных тонах, что подчеркивает выразительную геометрию здания. Каменные элементы и ограждения из стемалита добавляют фактурности и контраста. Акценты медного оттенка завершают образ, придавая дому теплоту и индивидуальность.

