Офисное здание HORTUS
Фото © Maris Mezulis
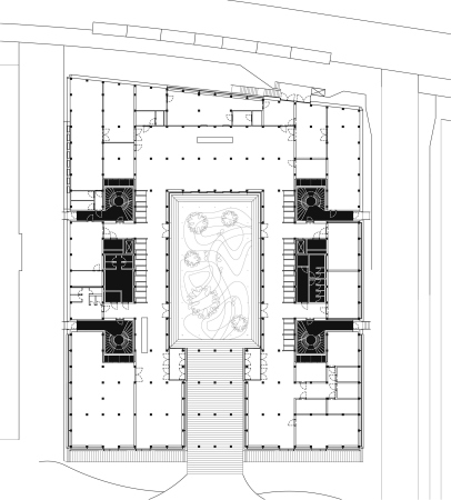
Постройка расположена в технопарке Switzerland Innovation Park в Альшвиле, западном пригороде Базеля. Технопарк в первую очередь предназначен для компаний, занимающихся «науками о жизни», но HORTUS рассчитан и на айти- и телекоммуникационные фирмы также. Здесь около 10 000 м2 офисных площадей и примерно 600 рабочих мест; свободная модульная планировка позволяет легко менять конфигурацию, в том числе обеспечивать большую приватность, способствует продуктивному общению между сотрудниками, улучшает их доступ к солнечному свету и видам – в том числе во внутренний двор с садом по проекту Пита Аудолфа, который служит вместе с выходящей туда верандой рекреационным пространством.
Офисное здание HORTUS
Фото © Maris Mezulis
Офисы расположены на 4 верхних ярусах, а первый этаж (он, как и сад, открыт публике) занят переговорными (их могут забронировать все желающие), столовой, спортзалом с кафе-баром.
Офисное здание HORTUS
Фото © Maris Mezulis
У HORTUS’а нет бетонного фундамента, он приподнят над землей на низких опорах, и воздух под ним, прохладный летом и нагретый зимой, помогает поддерживать оптимальный климат внутри. Каркас полностью деревянный, а перекрытия выполнены из деревянно-глинобитных модулей. Для Herzog & de Meuron это не первый опыт с земляными и глиняными строениями, но точно наиболее «зеленый». Рамы для модулей выполнены из дерева, заготовленного в окружающих лесах, наполняющую их глину извлекли на стройплощадке, и сами модули изготовили на «полевом заводе», устроенном здесь же. Углеродный след у получившихся перекрытий в 10 раз меньше, чем у бетонных сопоставимой допустимой нагрузки. Эту схему для проекта помогли разработать ZPF Engineers, специалисты по деревянным постройкам Blumer Lehmann и по глинобитным – Lehm Ton Erde.
Офисное здание HORTUS
Фото © Maris Mezulis
Таким образом, основные материалы – дерево, глина и целлюлоза – могут при необходимости использоваться повторно или быть возвращенными в природную среду без вреда для нее (в первую очередь глина). Поэтому для деревянных узлов не использовали металлические крепления – чтобы упростить вторичное использование. Под садом устроен контейнер для дождевой воды, которая идет на полив растений и на санитарные цели. Отопление и охлаждение помещений обеспечивается с помощью геотермальной системы.
Фотоэлектрические элементы общей площадью 5000 м2 покрывают кровлю и ее парапеты. Они вырабатывают даже больше энергии, чем требуется HORTUS’у, поэтому за 31 год здание покроет все затраты на свое строительство.
Офисное здание HORTUS
Фото © Maris Mezulis
Офисное здание HORTUS
Фото © Maris Mezulis
Офисное здание HORTUS
Фото © Maris Mezulis
Офисное здание HORTUS
Фото © Maris Mezulis
Офисное здание HORTUS
Фото © Maris Mezulis
