Сам Balance занял место бывшего завода железобетонных конструкций №2 «Мосстройкомплект», его территория 22 га, общая площадь будущего комплекса чуть больше 500 000 м2, высотное ограничение 100 м.
Ginzburg architects выиграли закрытый конкурс на концепцию ЖК Balance в 2016 году.
ЖК Balance. Макет
© Гинзбург Архитектс
Задача, как видим, достаточно понятная; район не самый дорогой, но свои достоинства у него есть. Квартиры предполагались в основном небольшие, хотя среди них есть и двух- и трехкомнатные, «нарезка» по площади требовалась сравнительно дробная – комплекс рассчитан на молодых людей.
Заказчик поставил задачу спроектировать «город для миллениалов», подходящий для данной локации и рассчитанный на целевую аудиторию молодых покупателей – людей, чьи требования к недвижимости отличаются от взглядов старшего поколения. Они покупают жилье не как вложение, а как утилитарную функцию, но они в большей степени требовательны к услугам. Соответственно, квартиры здесь небольшой площади, но с большими окнами, предусмотрена вся базовая необходимая инфраструктура: поликлиника, 2 школы, торговый центр, 2 офисных здания, бульвары; арендные помещения в первых этажах. Разумеется, назвать его каким-то особенным «домом для людей XXI века» нельзя, но все, чего требует стандарт московского строительства последних десяти примерно лет, в нашей концепции предусмотрено.
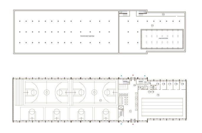
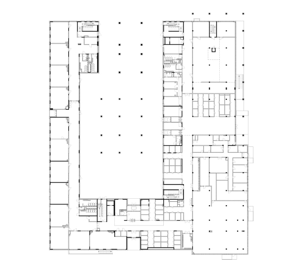
Планировка сложилась, прежде всего, как сумма требований и ограничений. Но в ней есть внутренняя логика, ритм и правила. Широкие бульвары разделяют кварталы на четыре группы крестообразно, почти симметрично. Тот, что идет по центру комплекса параллельно Рязанскому проспекту, объединяет две школы и два детских сада, которые дополняют ДОУ, встроенные в первые этажи. Второй бульвар начинается от Рязанского проспекта, его северо-восточная часть шире, юго-западная более узкая, поскольку с этой стороны Окская улица отрезает по диагонали часть территории. Вдоль проспекта, перед началом второго бульвара, размещены: справа поликлиника, слева многофункциональное здание, совмещающее торговый центр в нижней части, офисы в центральной и апартаменты вверху (все остальные квартиры комплекса – в статусе жилья). В западной узкой части бульвара разместилось еще одно офисное здание, поменьше. На перекрестье бульваров – ФОК с бассейном.
ЖК Balance. Макет
© Гинзбург Архитектс
ЖК Balance. Макет
© Гинзбург Архитектс
Сейчас завершено строительство и благоустройство первой очереди, двух кварталов в южном квадрате; они разделены внутренней улицей, которая тоже представляет собой небольшой бульвар и начинается с амфитеатра, за которым расположена площадка встроенного в 1 этаж ДОУ. Постепенно заселяются арендные площади первых этажей; уже открылась «Буханка». Очень приятным выглядит решение заборов, отделяющих дворы, они сравнительно невысокие и состоят из тонких деревянных планок.
ЖК Balance. 1 очередь
Фотография © Юлия Тарабарина, Архи.ру, 2023
ЖК Balance. 1 очередь
Фотография © Юлия Тарабарина, Архи.ру, 2023
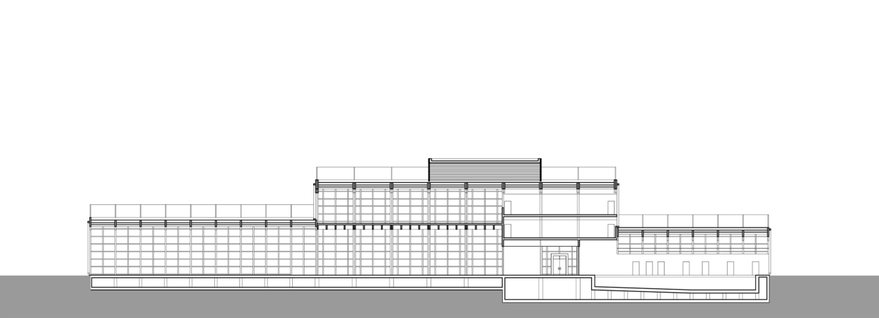
Сечение по улице. ЖК Balance
© Гинзбург Архитектс
По словам Алексея Гинзбурга, следующие кварталы – а архитекторы сейчас работают над стадией «Проект» 2 очереди – будут выглядеть несколько иначе, но основные принципы там те же. Кварталы состоят из среднеэтажных секций, от 7 до 11 этажей, образующих полузамкнутый контур достаточно обширных дворов. Эти дома, средней высотности, – кирпичные, разных оттенков, но с достаточно простыми фасадами: они используют филенки, рельефную сетку, вставки другого цвета и кирпич с эмалевыми вкраплениями, не больше того; они совсем не пестрые.
ЖК Balance. 1 очередь
Фотография © Юлия Тарабарина, Архи.ру, 2023
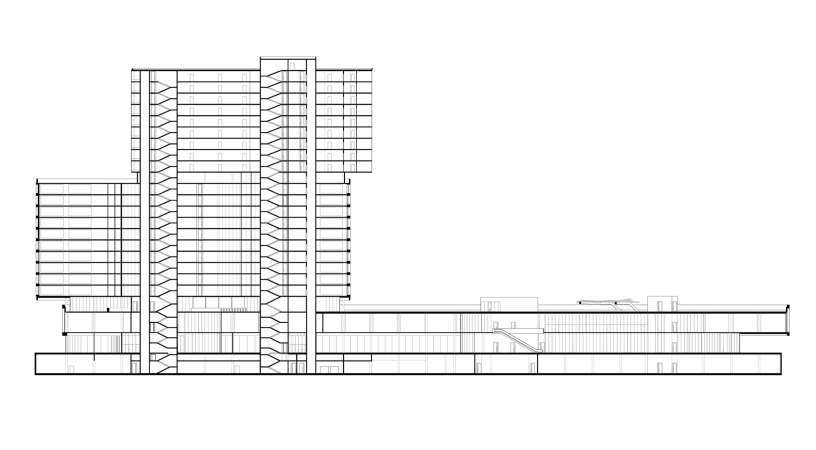
Другую часть того же контура составляют башни протяженной конфигурации, их высота 30 этажей соответствует высотному ограничению 100 м, – а фасады, в противовес преобладающему кирпичному контуру в нижней части – алюминиевые. В 1 очереди каждая башня разделена на черную половину с золотистыми вертикалями и на серебристую, с алюминиевой поверхностью, причем металл в пасмурную погоду скорее светло-серый, а в солнечную, особенно издали, он кажется белым. Часть башен вырастает алюминиевыми прямо от земли, разделяя горизонтальный строй, часть – оказываются металлическими только выше кирпичных этажей и, таким образом, поддерживают его преобладание в среднеэтажной части.
Объемы двух видов: среднеэтажные кирпичные и высотные алюминиевые – распределены в соотношении примерно 30 на 70: средние занимают две трети контура, высотные треть, и, соответственно, тридцатиэтажные берут себе две трети высоты. Так, помимо баланса функционального наполнения, возникает баланс объемного построения, несложный, но ясный и легко читаемый. Вероятно, где-то здесь кроется и разгадка названия комплекса.
Тот же принцип планируется применять и к другим кварталам: кирпич как более уютный тактильный материал ближе к человеку, алюминий, более техничный и современный, ближе к небу. Внизу должно появиться городское пространство, с магазинами и кафе, с фасадами, выстроенными по фронту красных линий.
Кварталы спланированы гибко, где-то соседствуют два внутренних двора, где-то четыре. Но сетка построения общая – диагональная, она вторит перекрестью бульваров.
Все башни – одинаковых оптимальных параметров, односекционные, но достаточно протяженные. Их архитекторы расставили для каждого «квадрата» в своем ритме: в южном и севером углу башни перпендикулярны друг другу; в западном и восточном параллельны, вытянуты с северо-востока на юго-запад. Так, при общем подходе, возникает крупный паттерн; полностью оценить его можно будет, видимо, только с квадрокоптера, и в то же время он формирует некое улавливаемое интуитивно разнообразие ритма.
ЖК Balance. 4 очередь, вариант 1
© Гинзбург Архитектс
ЖК Balance. 4 очередь
© Гинзбург Архитектс
ЖК Balance
© Гинзбург Архитектс
Сейчас архитекторы работают над проектом 2 очереди, которая включает одну из двух школ, большую по площади, рассчитанную на 1250 человек. Школа меня особенно очаровала. На фасадах преобладает кирпич, призванный объединить здание с нижним фронтом жилых домов в единое терракотовое городское пространство. План прямоугольный, простой, но с открытым внутренним двором-каре по примеру «клуатра», или cloister-a классических английских школ. Тонкие высокие колонны входной лоджии – круглого сечения и облицованные кирпичом, балансируют на грани портика и корбюзеанских опор, ненавязчиво напоминая об античных истоках школьного образования как такового.
Школа на 1250 человек. ЖК Balance
© Гинзбург Архитектс
Другая особенность школы – типология ее внутренних помещений отражена вовне. К примеру, классы с окнами облицованы кирпичом, другие объемы панелями, похожими на дерево, а спортзал «деревянными» ламелями, его задача и облегчить фасад, и проявить его особую функцию вовне, обосновав образное решение внутренней структурой.
Школа на 1250 человек. ЖК Balance
© Гинзбург Архитектс
Школа на 1250 человек. ЖК Balance
© Гинзбург Архитектс
То же самое относится ко второй школе, расположенной на противоположном «полюсе» бульвара – она сочетает кирпичные поверхности с деревянными, обосновывая фасадные решения функцией. Но здание меньше, рассчитано на 475 человек, его план – каре, раскрытое к центру. На данный момент в концепции существуют два варианта, посветлее и потемнее.
Два подобных, зеркально отражающих друг друга здания ДОУ соседствуют с «малой» школой. Их фасады также кирпичные, а функциональная обоснованность касается расположения окон: крупных в игровых комнатах и меньших в спальнях. Светлый тон кирпича одного здания и темный – другого, авторы объясняют как «темный и белый шоколад».
ЖК Balance. Детский сад
© Гинзбург Архитектс
Поначалу у архитекторов была другая версия для зданий детских садов: со стеклянными фасадами и вертикальными «деревянными» ребрами, перекликавшаяся с соседним ФОКом, но в конечном счете рабочей стали считать «шоколадную» версию зданий ДОУ.
ЖК Balance. Детский сад
© Гинзбург Архитектс
ФОК и офисные здания, напротив, подчеркнуто современны, отличаются от кирпичного окружения и дополняют двойную материю жилых домов некоей «третьей».
Спортивный комплекс распластан по земле, он вытянут вдоль оси бульвара, идущего от проспекта, но несколько смещен с этой оси, чтобы не закрывать перспективу. Его фасады Ginzburg architects сделали стеклянными, с ребрами деревянного оттенка – целью было минимизировать объем для взгляда с другого, поперечного бульвара, сделать его максимально прозрачным, чтобы здание не стало тяжеловесной преградой. С другой стороны, бассейн и залы внутри получат благодаря такому решению максимум света, по вечерам в центре комплекса обеспечено уютное свечение здания, открытого для всех и призывающего, таким образом, жителей заняться ЗОЖем.
Кровли школ, ДОУ и ФОКа авторы предлагают озеленить – ради «пятого фасада», а может быть, даже сделать эксплуатируемыми – хотя до реализации и, вероятно, даже до обсуждения этого решения еще пока далеко.
Малое офисное здание вторит ФОКу простотой и прозрачностью фасадов, только к вертикальным ребрам добавляются диагонали.
Здание у Рязанского проспекта, намеченное на последнюю стадию строительства, развивает отраженную также и в зданиях школ идею проявления функций в образном решении: архитекторы сложили по вертикали три объема: протяженный блок торгового центра с консолью-«телевизором», офисную «середину» и «голову» с апартаментами.
По словам авторов, первоначально они предполагали на этом месте башню, но потом решили, что горизонтальная компоновка лучше ответит на соседство автомобильных потоков проспекта, лучше считывается глазом в движении и будет более заметна, в том числе – позволит непротиворечиво акцентировать присутствие торгового центра.
Проект, с его пятью очередями и пятьюстами тысяч метров общей площади, хорошо вписывается в московский тренд последних 10 лет: организация общественного пространства с перекрестком городских бульваров, магазинами первых этажей, инфраструктурой, соседством некоторого процента офисных площадей, – и в то же время минимизированные площади квартир, градуированная доступность городских пространств. Этот набор можно признать сложившимся стандартом, он откликается на сумму требований и города, и рынка.
Задачей архитекторов в таком случае становится поиск баланса между всеми составными частями задачи, и функциональными, и планировочными, и образными. ЖК Balance как будто откликается на эту цель не только названием. Он построен на лаконичном, избегающем чрезмерности, но в то же время достаточно живом и разнообразном сочетании материалов, для каждого из которых авторы находят уместный вариант использования, уравновешивая, в то же время, другим. И подчиняя простой форме, отражающей функцию и в то же время узнаваемой – сводимой к знаку-логотипу. Недаром авторы представили каждую составную часть комплекса, каждое здание значком-логотипом, который может служить базой для популярного в наше время брендинга архитектуры.
«Логотипы» зданий. ЖК Balance
© Гинзбург Архитектс


