Описание предоставлено архитекторами
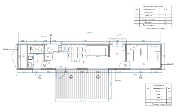
Дом Voyager сделан из 45-футового морского контейнера, установленного на шасси, чтобы его можно было буксировать тягачом до места установки. Автономные решения разработаны и произведены по индивидуальному заказу. Дом имеет все необходимое для жизни. Бак для чистой воды на 1100 литров расположен в технической зоне, бак для слива серой воды на 4500 литров смонтирован под шасси. У дома есть откидная терраса площадью 16 м2, которая складывается на время транспортировки. Всего в линейке Lab House есть семь вариантов домов площадью от 20 до 30 м2.
Еще два примера приспособления контейнеров – кофейня в Сысерти и культурный центр в Мурманске.
Автономный дом Voyager
Фотография © Лидия Гребенюк / предоставлена Lab House
Автономный дом Voyager
Фотография © Лидия Гребенюк / предоставлена Lab House
Автономный дом Voyager
Фотография © Лидия Гребенюк / предоставлена Lab House
Автономный дом Voyager
Фотография © Лидия Гребенюк / предоставлена Lab House
Автономный дом Voyager
Фотография © Лидия Гребенюк / предоставлена Lab House
Автономный дом Voyager
Фотография © Лидия Гребенюк / предоставлена Lab House
Автономный дом Voyager
Фотография © Лидия Гребенюк / предоставлена Lab House
Автономный дом Voyager
Фотография © Лидия Гребенюк / предоставлена Lab House
