Для всех, кто работает со строительными материалами, важно не только видеть образцы, но и понимать их возможности в реальных проектах. Именно с этой идеей в 2024 году компания Славдом открыла в Москве новый шоурум, сделав его не просто экспозицией строительных материалов для экстерьера, но и полноценным пространством для экспериментов и вдохновения. Одним из элементов этой концепции стали архитектурный стол и перегородка, выполненные из бриз-блоков Mesterra Cobogo. Конструкции одновременно решают две задачи: создают функциональные зоны и демонстрируют возможности материалов, которые предлагают в шоуруме.
Конструкция и дизайн перегородки
Перегородка, совмещающая в себе зону хранения верхней одежды, выполнена из серых неокрашенных бриз-блоков. Выбор был продиктован цветовым решением шоурума, а также желанием наглядно продемонстрировать свойства материала.
Изображение предоставлено компанией Славдом
Бриз-блоки Mesterra Cobogo производятся из архитектурного бетона методом гиперпрессования, в результате чего обладают высокой прочностью, идеальной геометрией и двумя лицевыми сторонами.
Изображение предоставлено компанией Славдом
При проектировании перегородки важно было учесть несколько аспектов. Поскольку блоки сами по себе имеют декоративную функцию, но в шоуруме также должны демонстрировать свою практическую применимость, необходимо было обеспечить устойчивость конструкции.
Изображение предоставлено компанией Славдом
Производитель предложил вариант крепления с использованием металлических уголков, которые будут скрыты в шве. Теоретически монтаж возможен и без них, например, с применением других крепёжных элементов с аналогичной функцией. Это позволило бы отказаться от металлической окантовки и выполнить монтаж непосредственно в каркас рамы. Однако, чтобы упростить процесс и ускорить установку бриз-блоков, на данном этапе было решено отказаться от дополнительных деталей.
Процесс монтажа перегородки
Если высота блоков превышает 2 метра, конструкция обязательно армируется либо к полу, потолку или к стене. Высота перегородки 2,47 м, поэтому дополнительно снизу перегородка вмонтирована в металлическую раму, по периметру которой установлен металлический уголок. Он служит дополнительным элементом крепления, предотвращая расшатывание. В результате перегородка становится устойчивой и надежно фиксируется к полу. Так как конструкция имеет П-образную форму, это обеспечивает ей устойчивость без необходимости крепления к потолку. Такое решение подробно описано производителем в альбоме технических решений.
Изображение предоставлено компанией Славдом
Блоки, использованные в этой перегородке, имеют толщину 70 мм. Их коэффициент водопоглощения позволяет использовать для кладки кладочный раствор Vetonit, применяемый как для фасадов, так и для внутренних перегородок. Специальные клеи при этом не требуются. Швы между блоками должны составлять от 6 до 10 мм (производитель рекомендует около 10 мм). Это, в частности, связано с тем, что металлическая арматура не должна касаться самих блоков, а должна находиться внутри шва. Швы являются важным элементом дизайна: можно варьировать их ширину, цвет и фактуру, создавая различные визуальные эффекты. Затирка швов выполняется по аналогии с кирпичной кладкой.
Производитель рекомендует покрыть блоки полимерной краской для дополнительной защиты, но это не является обязательным требованием. Краска не защищает от механических повреждений – при царапинах она может стираться, оставляя следы. В таком случае возможна локальная подкраска. В будущем, при необходимости, можно перекрасить всю конструкцию, освежив ее внешний вид. Если же блоки испачкаются, их можно легко очистить.
Архитектурный стол: стиль и функциональность
Архитектурный стол в шоуруме служит полноценным рабочим местом для подбора материалов и создания композиционных решений. Он необходим при обсуждениях проектов и демонстрации сочетаний различных материалов. Основа стола выполнена из тех же декоративных блоков Mesterra Cobogo, что и перегородка, создавая единство дизайнерского решения. Вокруг него расположены образцы кирпича, керамогранита, черепицы и других материалов. Можно разложить планшеты, мокапы и проверить, как оттенки сочетаются в проекте при разном освещении.
Изображение предоставлено компанией Славдом
Декоративные бриз-блоки Mesterra Cobogo подходят для экстерьера и интерьера, в том числе выдерживают условия повышенной влажности и температуры.
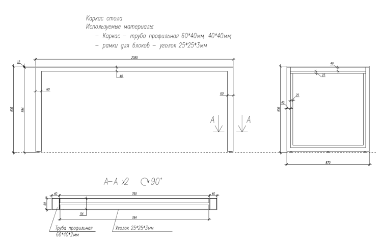
Так как стол предназначен для работы, в том числе с тяжелыми образцами, одной из наших ключевых задач при проектировании стало обеспечение надежного крепления всех конструктивных элементов. Вся металлическая конструкция зафиксирована скрытым креплением в пол, а внутренняя часть заполнена блоками.
Столешница выполнена из керамогранита Laminam Fokos Terra размером 3000×1000 мм. Так как данная модель керамогранита имеет толщину 5,6 мм, для дополнительной прочности столешница собрана из нескольких плит, которые склеены между собой в два слоя. В итоге общая толщина столешницы составляет 12 мм. Такое соединение напоминает технологию производства автомобильных стекол «Триплекс».
Главное преимущество этой столешницы – сочетание лёгкости и надёжности. Средний удельный вес плиты Laminam толщиной 3-5 мм составляет всего 8 кг на 1 м², что исключает потребность в усиленных конструкциях, необходимых для более тяжёлых материалов.
Благодаря специальной технологии производства керамогранит обладает высокой износостойкостью (твердость 6 по шкале Мооса, которая используется для определения устойчивости материалов к царапинам и механическим повреждениям). Несмотря на этот показатель, для дополнительной защиты поверхности при работе с тяжёлыми предметами лучше использовать специальные защитные коврики.
Для безопасности и эстетики клеевой шов замаскирован обработкой торца – произведена фаска 6 мм по периметру, чтобы избежать острых углов. Дополнительных покрытий не использовалось, так как керамогранит сам по себе имеет завершенный вид и не требует обработки. Это позволяет сохранить его естественную текстуру, которая была задумана изначально.
Визуальное решение дополнено полубарными стульями в красном цвете, которые создают выразительный цветовой акцент в строгом интерьере шоурума
Фотография предоставлена компанией Славдом
Перегородка и архитектурный стол служат одновременно функциональными зонами и экспонатами, демонстрируя возможности бриз-блоков Mesterra Cobogo. Проект показывает, как эти элементы позволяют создавать стильные, динамичные интерьеры, зонируя пространство без ощущения перегруженности. Блоки Mesterra Cobogo подходят не только для интерьеров, но и для декоративного оформления фасада, входных групп и создания малых архитектурных форм (беседки, скамейки, мангальные зоны и др.).
Подробнее узнать о характеристиках, преимуществах и возможностях применения декоративных бриз-блоков вы можете через информативную онлайн-презентацию.

