От редакции
Есть места, чья энергетика или genius loci (кому как больше нравится), настолько сильны, что даже радикальная смена эпох, экономических формаций и менталитета пользователей не способна поколебать исторических «слонов», на которых зиждется «намоленный» образ.Коворкинг в Доме творчества в Переделкино
Фотография © Даниил Анненков / предоставлена BLOCKSTUDIO
Дом творчества Переделкино буквально вернулся из небытия в начале 2020-х годов. Основные здания: ампирный корпус (1955 г. постройки) и модернистский клуб-столовая (1969 г. постройки), вкупе с частью исторических дач, пришли в запустение, так как после перестройки Союз писателей больше не мог их содержать. Но богатая история места – подробнее о ней можно прочитать здесь – где жили и творили многочисленные советские классики литературы, равно как и те, кто писал на них доносы, вдохновила инициативную группу на разработку проекта нового, обновленного Переделкино, где современные креаторы могли бы проводить время и искать вдохновение для создания не менее передовых и новаторских произведений, чем их предшественники. Инициативная группа, включающая Дарью Беглову, нынешнего руководителя Дома творчества, создала фонд, средства в который поступили от частных инвесторов. Была проведена реконструкция основного здания и клуба-столовой, которые были приспособлены для проживания и проведения различных мероприятий – от выставок до конференций и концертов. Переделкино превратилось в арт-кластер и модную культурную институцию. Подробнее про историю восстановления Переделкино можно прочитать здесь.
Главной задачей реконструкции было не избавиться, а наоборот – сохранить все характерные особенности каждого из зданий. И в этом плане модернистский клуб-столовая представлял великолепное поле для творческой работы современных архитекторов и дизайнеров. Пример радикального переформатирования советских зодчих, за 10 лет преодолевших стилистическую пропасть между сталинским ампиром и модернизмом, клуб и сам по себе представлял гибкую и эстетичную среду, легко адаптируемую для любых функций. А с помощью небольших дизайнерских интервенций превратился в заповедник для представителей креативного класса, ностальгирующих по 1960–1970-м годам, когда российская культура, казалось, была переполнена гениями и шедеврами.
Коворкинг в Доме творчества в Переделкино
Фотография © Даниил Анненков / предоставлена BLOCKSTUDIO
Простая геометрия пространств, сочетание простых материалов – таких как бетон и стекло, простые и даже лаконичные формы предметов обстановки – неожиданно стали актуальны не только среди историков архитектуры и нынешних архитекторов, выстраивающих свое профессиональное генеалогическое древо от минимализма к модернизму, конструктивизму и авангарду. А для того чтобы делать сложные вещи простыми, нужен большой талант, знания и чувство меры. И реконструируя советские модернистские объекты, современные дизайнеры и архитекторы должны найти в себе и эти качества, и эту генеалогическую связь.
Реконструируя старую кухню под коворкинг в клубном здании, архитекторы бюро Blockstudio, как нам кажется, нашли в себе силы и волю удержаться от агрессивного вторжения в пространство. Они подошли к решению поставленной задачи максимально деликатно – настолько, насколько это требовалось, чтобы заменить функцию на новую и сделать пространство приспособленным для интеллектуального труда. Степень деликатности можно оценить хотя бы по тому, что сохранены кафельная плитка и кухонное оборудование, которые, положа руку на сердце, напрашивались на демонтаж. Сохранена простота и лаконичность бывшего технического помещения, сохранены и даже выставлены на показ как экспонаты импровизированного музея артефакты, уцелевшие за более чем 50 лет.
Коворкинг в Доме творчества в Переделкино
Фотография © Даниил Анненков / предоставлена BLOCKSTUDIO
Удивительно, но новые элементы интерьера распознаются не сразу – настолько деликатно и органично они вписаны в пространство. Книжные стеллажи, оформленные как массивные колонны, опоясанные полками, структурируют и зонируют пространство коворкинга. В них используются те же материалы, которые уже были в интерьере: металл, стекло и дерево, чей теплый оттенок перекликается с кожаной обивкой аутентичных кресел и диванов.
Здесь очень уютно, что удивительно для белого интерьера в кафельных доспехах. И хочется вести неспешные беседы с физиками и лириками о сияющем сквозь сигаретный дым будущем. Вот только курить тут больше нельзя.
ЕП
Описание предоставлено архитекторами
Руководитель Дома творчества Переделкино Дарья Беглова обратилась в бюро Blockstudio по рекомендации общих знакомых. Задача была – сохранить дух места.Стремясь обозначить новую функцию коворкинг-пространства для резидентов Дома творчества Переделкино, заказчик придумал название «Литературная кухня», тем самым проведя, пусть и иронично, параллель между историей помещения и сегодняшним днем. Коворкинг находится на месте бывшей кухни, где в прошлом веке готовили завтраки, обеды и ужины для жителей городка писателей.
Коворкинг в Доме творчества в Переделкино
Фотография © Даниил Анненков / предоставлена BLOCKSTUDIO
Работая с постсоветским наследием, архитекторы из бюро Blockstudio стремились сохранить не только артефакты, передающие дух места, но и физическое пространство – обилие естественного света, наполняющего помещения через большие, типично советские двухрамные окна.
Создатели сохранили немалое количество деталей прошлого интерьера – например, большую варочную плиту, которая теперь стала символом нового пространства и используется как место для микровыставок, и фрагменты оригинального кафеля.
С помощью книжных полок на колоннах, которые создали новую сетку осей, было перепрофилировано исходное архитектурное пространство, создав для него новую функцию.
Коворкинг в Доме творчества в Переделкино
Фотография © Даниил Анненков / предоставлена BLOCKSTUDIO
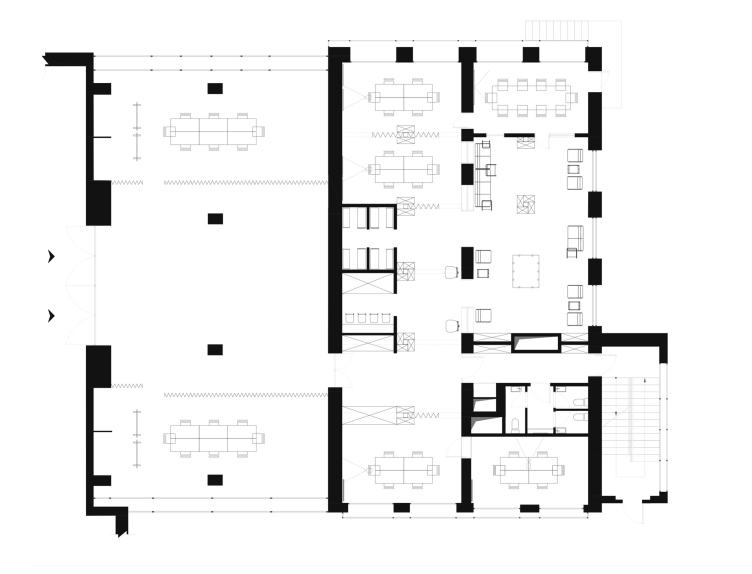
В коворкинге есть более 50 рабочих мест, несколько отдельных комнат, пять столов для компаний от четырех до двенадцати человек.
А на цокольном этаже, где когда-то были разделочные цеха и холодильники, теперь располагаются мастерские, где по выходным любой желающий может сделать собственную линогравюру на столетнем станке.
Коворкинг в Доме творчества в Переделкино. План расстановки мебели. Сценарий 1
© BLOCKSTUDIO
Коворкинг в Доме творчества в Переделкино. План расстановки мебели. Сценарий 2
© BLOCKSTUDIO
