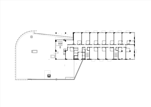
Комплекс апартаментов Story. Карта участка
© ТПО «Резерв»
Участок, небольшой, 0.29 га, вытянутый вдоль 3-го Автозаводского проезда, достался архитекторам ТПО «Резерв» вместе с уже построенной двухярусной подземной парковкой и пожеланием заказчика максимально сохранить существующие конструкции, что определило параметры основания и сетку колонн. Итоговый проект утвержден в 2017 году, строительство завершено в 2019.
В доме 16 этажей, первый этаж общественный, высотой 5 м, арендные помещения с отдельными входами расположены со всех сторон, с тыльной стороны устроена небольшая пешеходная галерея, которая позволяет обойти вокруг, дистанцируясь от внутриквартального хоздвора. Основной коммерческий арендатор – ресторан – расположен в южной части: здесь первый этаж сильно выступает вперед и вправо стеклянным объемом, оформленным тонкими черными ламелями. Помимо ресторана в нем спрятана рампа въезда в парковку, а на кровле образовалось место для летней террасы и приватный двор для жильцов площадью около 500 м2. Cквер служит визуальным продолжением рекреационного пространства на кровле стилобата, а ресторан и другие магазины в «стекляшке» воспринимаются как функциональное дополнение сквера, его «парковый павильон».
Со стороны 3-го Автозаводского проезда стилобатный выступ скошен внутрь, а две опоры каркаса освобождены – то ли дом «наступает» на ресторан тонкими черными «ногами», то ли «стекляшка» выдвигается вперед, примерно как лупа из чехла на внутреннем шарнире. Лоджия за опорами акцентирует вход в ресторан со стороны проезда, «приглашая» войти пешеходов, движушихся в город от метро.
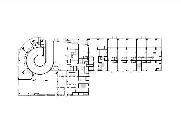
Комплекс апартаментов Story, проект, 2017
© ТПО «Резерв»
С трех сторон фасады дома решены одинаково: подчинены сетке, объединяющей этажи по вертикали ради большей стройности пропорций. Они образуют фактурную многослойную структуру: стекло, темная полосатая терракота, черные ажурные ящики для кондицинеров – и объединены в рисунок с «шахматной» логикой, усложненной зеркальным отражением элементов и черными вставками через ярус. Причем модулем-рапортом служат пары вертикальных прямоугольников, чей общий контур стремится к квадрату – но на первый взгляд все просто слегка колышется в уравновешенной подвижности.
Структурную ясность разгранки фасадам обеспечивает тонкая рельефная белая сетка – легкий декоративный «экзоскелет», призывающий колебания фактурной части к порядку. Линии выступают вперед достаточно далеко для декоративного мотива, сантиметров на 25-30, и они очень равномерные: в сечении дают примерно квадрат, вертикали также не отличаются от горизонталей по толщине – последние только подчеркнуты тонким желобком по центру. Благодаря рельефности белая сетка хорошо «работает» в ракурсе: в какой-то момент, если, к примеру, быстро ехать мимо, фасад покажется составленным из белых вертикалей (похожий прием можно увидеть в ЖК «Небо», но там сетка крупнее и играет более заметную роль, а колебания даны легким намеком, здесь же наоборот).
Комплекс апартаментов Story
Фотография © Илья Иванов
В четырех верхних этажах – «пентхаусах» – нет ящиков для кондиционеров, поскольку вентилляция выведена прямо на кровлю; здесь меньше вставок и больше стекла, так что лишенную карнизной тяги белую сетку хочется сравнить с недоплетенной корзинкой.
Но все это детали, а самое заметное в ЖК STORY – пластика главного, торцевого фасада, составленного из чередования треугольных стеклянных выступов. Выступы крупные, они, как и сетка, объединяют по два этажа, в них – самые светлые квартиры, поскольку этот торец дома смотрит на юг, а стекла панорамные, на всю ширину, хотя и не «в пол», но высотой 2.2 метра. На кровлях четырех выступов образуются треугольные в плане балконы с видом на сквер и Автозаводскую улицу.
Панорамные окна и балконы существенны, но они в данном случае не главное, а главное – образность южного фасада, который представляет дом городу и делает его акцентом, заметным за деревьями сквера. Эркеры, если их можно так назвать, похожи на сцепленные пальцы рук – дом как будто смотрит в сторону ЗИЛа-Юга и думает: так-так, что-то там еще построят. Еще больше, конечно, они напоминают элемент какого-то механизма, отполированные до блеска шестеренки крупного станка, застывшего в процессе трансформации. Тему развивают два дополнительрых эркера в северной части, повернутые симметрично под небольшим углом к югу, они похожи на управляющие клавиши, как будто нажмешь на них – и южный фасад сложится. Но не сложится, конечно, он же дом, – он просто демонстрирует некое латентное движение объема в рамках сетки, от которой на южном фасаде остаются только белые горизонтали, причем пары этажей здесь сдвинуты на один шаг и белые полоски не разделяют ярусы, расчерчивают их посередине высоты, как будто удерживают движение. Так как вынос треугольников достаточно большой, получается энергично и даже барочно.
Надо сказать, такого рода ломаный торец встречается в работах Владимира Плоткина достаточно давно, наверное, начиная с «Аэробуса», где края огромных решетчатых пластин были, согласно его авторскому определению, решены как «рваные сломы». Стеклянный торцевой «слом» также наблюдаем во втором проекте для Бумажного проезда и в одном из проектов для Сити. В штаб-квартире Ингосстраха два корпуса кажутся разделенными неровным стеклянным ущельем. То есть прием имеет истоки; но в данном случае он трактован более последовательно и регулярно – скорее, повторюсь, как механизм, чем срез или плетение. Между тем южный торец все же выглядит как «отломанный», или, во всяком случае, резко отделенный от чего-то. Действительно, здесь прерывается линия застройки 3-го Автозаводкого проезда – дом мог тянуться до самой улицы, но «встретился со сквером и остановился». Возможно также, что «слом» интерпретирует отступ южного торца от стилобата с озелененной кровлей.
Треугольные эркеры также хорошо проявляют заданную в фасадной сетке ярусность, чередование этажей – storeys, и даже могут напомнить неровно выдвинутые ящики комода, какого-то хранения – storage. Но назвывается дом все-таки STORY, и вот почему. Соседняя с ним брутальная серая 20-этажка инженерного корпуса завода «Динамо» построена в 1980-е годы прямо на месте так называемого «Лизиного пруда», того самого, в котором утопилась карамзинская Бедная Лиза, главная героиня русского сентиментализма. Это место – своего рода экскурсоводческий фетиш, показательный пример того, как нечто по-заводскому суровое наступает на пасторальное прошлое. В маркетинговом бренде ЖК указание на историю дома хорошо прослеживается, кружочки в интерьерах общественных зон и круглый курсор на сайте недвусмысленно обозначают, что STORY – это та самая история, а не какая-то другая. Было бы заманчиво решить, что и архитектура дома каким-то образом зависит от этой идеи: к примеру представить, что округлая «стекляшка» первого этажа – это пруд, а дом вырастает из него как та башня 1980-х. Тем более что обнаруживаются даже некоторые переклички между белой сеткой дома и алюминиевой решеткой, покрывающей фасады советской башни – хотя, конечно, решение клубного дома много более эстетизировано.
Комплекс апартаментов Story
Фотография © Илья Иванов
Впрочем не менее вероятно, что некий заметный здесь драматизм происходит не от конкретного сюжета, а от контраста, свойственного истории места в целом. Этот южный пригород долгое время был монастырским и деревенским, пасторальным местом романтических размышлений о русской истории (ну не зря же его выбрал именно Карамзин, автор первой русской истории). Понемногу из-за близости к реке здесь стали развиваться заводы промышленной революции XIX века – пока после социалической революции оно не стало одной из ключевых точек роста пролетарского сознания: именно здесь больше половины Симонова монастыря разрушено/застроено заводом, причем одна из построек, «наступивших» на монастырь, как башня на пруд, – это знаменитый ДК ЗИЛ Весниных; именно здесь старые корпуса кирпичных заводиков контрастно перемежаются с авангардом 1920-х, кирпичными сталинскими домами и последующими модернистскими вкраплениями. Много следов старых перемен, перехода от города пейзанского-мещанского к производственному – достаточно и новых перемен: нового перехода, теперь от индустриальному к постиндуальному. Эту часть города как будто все время «трясет», все тут происходит резко, на полную катушку. Так что и метафору стеклянного разлома, который удачно притягивает взгляд проезжающих по Автозаводской улице, надо признать уместной вне зависимости от всяких историй.


