Участок – 2,7 га на крайнем западном углу 23 микрорайона Раменок, до начала строительства пустовал. К востоку от него, в составе советского микрорайона, чередуются кирпичные пятиэтажки конца 1950-х, панельные 12-этажки и 14-этажные «башни» начала 1970-х. В центре микрорайона и в двух шагах как от нового комплекса, так и от проспекта – пруд Раменки, довольно большой и окруженный аккуратными травянистыми валами. Микрорайон сложившийся и в целом тихий, а река с высокими заросшими берегами, которая поворачивает под углом, очерчивая естественную природную границу с юго- и северо-запада, создает ощущение встречи городской застройки с каким-то иным миром, как будто здесь внезапно заканчивается Москва. На этой-то границе, в углу поворота реки, и поставлен ЖК «Небо».
Новый комплекс, спроектированный и реализованный Владимиром Плоткиным и ТПО «Резерв» – иного масштаба. Если посмотреть в целом, он где-то в 5 раз выше своего микрорайонного окружения. В двух башнях – 52 этажа, в третьей 51, высота – 176 метров, что всего на 3 метра меньше высотных ограничений по визуально-ландшафтному анализу.
«Небо» – отчетливый акцент, хорошо заметный издали, с Аминьевского шоссе и улицы Лобачевского, а особенно с эстакады проспекта Генерала Дорохова, где он возвышается над деревьями, еще не освоенными девелопментом промзонами и полями городских гаражей. Отсюда его симметричная композция читается очень ясно.
ЖК «Небо», вид с севера, со стороны проспекта Генерала Дорохова
Фотография © Алексей Народицкий / предоставлено ТПО «Резерв»
Юго-запад, как известно, давно и хорошо знаком с высотным жилым строительством. Несколько высотных комплексов строятся и поблизости в радиусе 1-2 километров. Однако сам район Раменки-23 заполнен жилыми домами и кроме того огражден рекой, так что можно предположить, что ЖК «Небо» останется здесь единственной доминантой, флагманом. Что хорошо, поскольку при достаточно большой высотности (не 250 и не 400, но все же почти 200 м) он не «давит» ни при рассмотрении издали, ни вблизи – разве что заставляет поднять глаза. Что, определенно, – заслуга стройных пропорций, обилия стекла и белого цвета, тонкой легкой сетки фасадов.
ЖК «Небо»
Фотография © Алексей Народицкий / предоставлено ТПО «Резерв»
Три жилые башни собраны в симметричную композицию на почти квадратном в плане двухъярусном стилобате: две выстроены над рекой вдоль кромки северо-западного фасада, третья поставлена перпендикулярно им по оси симметрии основания. Получается строгая Т-образная композиция, основанная на сопоставлении подобных фигур, со свободным пространством в центре. Решение, характерное для творчества Владимира Плоткина, чьи эксперименты с лаконичной геометрией поворота и зеркалирования, также как и расстановкой подобных фигур в рамках ансабля достаточно хорошо известны (к примеру, так, через поворот подобных фигур, но под углом не 90°, а 180°, решена композиция офиса «Аэрофлота» в Шереметьево).
Каждая из башен в плане – не квадрат, а прямоугольник спокойных пропорций 8/10, с небольшими уступами-«талиями» по центру узких сторон. Торцы стеклянные, а протяженные стороны подчинены белой сетке вертикальных пропорций. Линии, вырастающие из той же сетки, подчеркивают ризалиты торцов тонкими белыми обводами, отчего объемы кажутся составленными из двух пластин, склеенных, «как печенье», стеклянной прослойкой.
«Пластинчатость» делает башни стройнее и подчеркивает протяженность их объемов, но не только. Здесь требуется небольшое отступление: дело в том, что, если взглянуть на контекст застройки всего московского юго-запада в целом, несложно заметить разреженную, но связанную общими подходами сеть акцентных зданий советского модернизма, семидесятых и восьмидесятых годов XX века. Среди них Дом туриста на Ленинском проспекте, башни архитектора Евгения Розанова на проспекте Вернадского и здания общежитий МГУ там же. Все они высотные, точечные, башенные; многие экспериментируют с двухчастной пластинчатостью, используя уступ между узкими ризалитами как тонкую стройную вертикаль. Уделяют много внимания стилобатам, которые подчас вырастают из развитых подземных конструкций. Многие из них крестообразны в плане и почти все, исключая разве что меридиональные башни Дома туриста, вторят диагональным линиям проспектов юго-запада, размечая здешние просторы как некая версия плана Вуазен. Эти здания образуют модернистский костяк юго-запада, точки силы, чья энергетика впоследствии не получила развития, а во многом даже заросла хаотично размножившимися «грибами» (по терминологи Дарьи Парамоновой), – но все же еще ощущается.
Так вот, многие свойства модернистских доминант юго-запада Москвы уловлены и интерпретированы в башнях ЖК «Небо». О пластинчатости и стройности башен уже сказано, но и расположение крыльев напоминает крест, с той лишь разницей, что в центре пересечения линий не объем, а пространство, и, кроме того, северное «крыло креста» отстутствует. Характерную композицию здесь как будто разобрали поэлементно, сохранив, однако, основные подходы и направления, так что ЖК «Небо» становится еще одним акцентом юго-западной «сети».
Жест, таким образом, представляется контекстуальным в гигантском масштабе нескольких километров, а не ближайших сотен метров. Хотя некий «якорь» присутствует и поблизости – крестообразный дом 1980 года на Мичуринском проспекте: если смотреть с юга, три башни выглядят его увеличенной версией, разделенной в пространстве.
Проект, встройка, вид с Мичуринского проспекта. Справа жилой дом 1980 года с крестообразным планом. Слева ЖК «Небо»
© ТПО «Резерв»
Здесь можно заметить, что строго-диагональная ориентация участка и, как следствие, домов, поддержана не только линией проспекта и градостроительной сеткой ЮЗАО, но и изгибом реки Раменки, нарисованным природой почти что по линейке.
Поворот 45° к меридиану оказался удобен для естественного освещения квартир: здесь нет стен, обращенных прямо на север, и световой контур башен используется с максимальной эффективностью. Кроме того, расстановка корпусов треугольником со значительным пространством между ними исключает прямой взгляд окна-в-окна, что также правильно для жилого комплекса.
Ситуационный план. ЖК «Небо»
© ТПО «Резерв», ГК «Олимпроект»
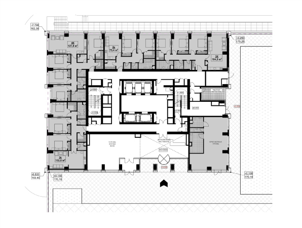
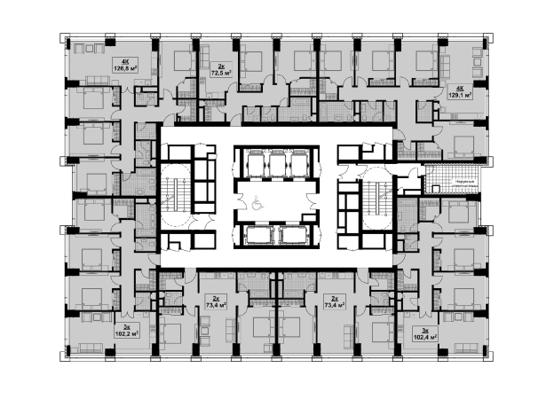
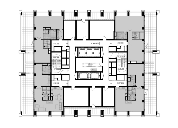
Квартиры сгруппированы по световому контуру вокруг мощного лестнично-лифтового ядра: две лестницы, пять лифтов. Набор предложений разнообразен, вплоть до 4-комнатных квартир, что соответствует бизнес-классу жилья. Высота потолков 3,3 м, в первых этажах 4,5 м. Перед входом лоджия, за ней двусветный вестибюль с ресепшном, сбоку общественная зона с вай-фаем.
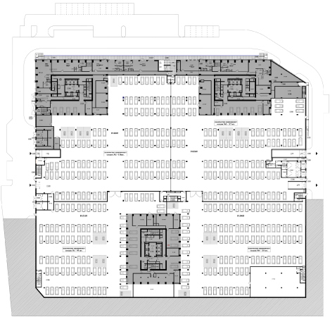
Но обратимся к стилобату. Он вписан в склон с перепадом высот 8 метров с юго-востока на северо-запад, от жилого района к реке. Поэтому со стороны микрорайона стилобат возвышается над уровнем земли всего на полтора метра, и на первый уровень парковки можно въехать с боковых сторон по прямой, без пандуса. Но поскольку двор приподнят, это естественным образом делает его безопасным и свободным от машин.
От северо-западной кромки стилобата начинается крутой склон к реке, то есть дом, если смотреть с этой стороны от реки, практически вырастает из склона, как своего рода форт, двумя северными башнями, чьи фасады продолжают плоскость стилобата. С этой стороны в два яруса стилобата встроена вереница офисных помещений, вытянутых вдоль северо-западного фасада. Перед ними в нижнем ярусе – протяженная площадка, в верхнем ярусе галерея-балкон, на который ведут открытые лестницы. Таким образом здесь, с тыльной стороны комплекса, над рекой – не задворки, а фрагмент делового городского пространства с собственной рекреационной зоной, выходом на воздух и даже на простор, поскольку вид на реку и «полупромышленный полугород» за ней по-московски неплох, здесь как минимум много деревьев.
В нижние этажи двух башен, центральной и восточной, встроен детский сад кратковременного пребывания, развивающие группы на 75 человек. Между башнями расположена игровая площадка детского сада, а открытый восточный угол стилобата занят циркульной конструкцией с амфитеатром.
Схема генплана. ЖК «Небо»
© ТПО «Резерв», ГК «Олимпроект»
Благоустройство кровли стилобата, которая служит приватным двором домов – современное, с детскими и спорт-площадками, воркаутом, геопластикой, разнообразными растениями, включая крупные деревья от лип до сосен в специальных углублениях с дренажом. Подняться на стилобат можно по лестницам и пандусам, по которым во двор заезжает и спецтехника. По краям пандусов и пространства двора – белые бетонные огражения, в некоторых местах со стеклянными вставками. Тени деревьев на них – отдельный предмет любования сочетанием природных форм и лаконичного современного дизайна нового фрагмента городского пространства.
Двор зонирован как вереницами растений, так и бетонными пилонадами, чей очень простой рисунок перекликается с сеткой фасадов и выглядит его логичным продолжением в пространстве.
ЖК «Небо»
Фотография © Алексей Народицкий / предоставлено ТПО «Резерв»
Восемнадцать нижних этажей во всех трех башнях объединены вертикально по два, так что сетка белых линий на уровне пешехода, точнее гуляющего жителя, выглядит равномерно-стройной и предсказуемой. Но выше она растягивается градиентным шагом, хотя и не то чтобы плавно: девять этажей объединены в три группы по три, десять следующих в две по пять, и наконец, 15 верхних – сплошные вертикали. Пентхаусы верхних этажей отступают от края террасами, прямые линии сетки продолжаются уже без заполнения, образуя перголу, накрывающую как пентхаусы, так и вентвыходы, маскируя техэтаж и придавая объемам правильную форму. Эти же линии обрамляют торцы, визуально формируя, как мы видели выше, двухчастность объемов. Как будто стеклянные, «мисовского» типа башни организованы тонкой, но жесткой решеткой, которая во многом определяет их восприятие, особенно издали.
Вертикально ориентированная решетка фасадов в целом характерна для Москвы последнего десятилетия, мы уже видели множество ее вариантов, как классического, так и модернистского плана. В постройках Владимира Плоткина сложилась своя, лаконичная версия сетки: как правило белой или монохромной с редкими вкраплениями яркого цвета. Сравним к примеру фасады Префектуры ТиНАО, офисного здания на улице Красина и двух корпусов в составе ВТБ Арена Парка. В такой трактовке сетка помогает не только придать объему визуальную стройность, вытянуть и «подсобрать» массу – но и ясно позиционировать форму в пространстве, управляя восприятием на оптическом уровне: четко проявленные линии фасада акцентируют все колебания, паузы и повороты, «ведут» глаз за собой и помогают считывать высказывание. Время от времени сетка отступает от объема и образует воздушные структуры: галереи в первых этажах и перголы в верхних.
Все эти приемы работают на общий пластический сюжет и в ЖК «Небо». Но здесь у фасадной сетки есть две особенности. Первая – она растянута по вертикали. Проще всего это объяснить эффектом восприятия: если смотреть снизу вверх, высота ячеек в перспективе сократится и с определенного ракурса, из двора, сетка может показаться равномерной. Но если смотреть на фасады en face, сетка кажется растянутой сверху вниз, то ли под действием гравитации, то ли как эффект таяния: как будто солнце нагрело верхние этажи, и они «поплыли», но внизу ячейки еще не растаяли. Кроме того, полученный эффект, если смотреть на рисунок целиком, напоминает рост ячеек в центральном корпусе ЖК WineHouse.
Так или иначе, а растянутая сетка, с одной стороны, противоречит правилам классической тектоники середины, верха и низа, притом что сам по себе прием вертикального объединения окон скорее относится к разряду классицизирующих (впрочем, возможно, уверенность в том, что вертикаль – классика, горизонталь модернизм – дело привычки, ведь уже 1970-е неоднократно опровергали это утверждение или во всяком случае экспериментировали с этой антитезой). С другой стороны, трансформация фасадной решетки делает ее «не просто клеткой», а инструментом диалога с городским окружением, а может быть, учитывая риелторское название комплекса, и «с небом» – нельзя же было с таким названием и такой высотностью не откликнуться на соседство небес.
ЖК «Небо»
© ТПО «Резерв», ГК «Олимпроект»
Вторая особенность состоит в том, что стеклянную поверхность формирует не только стемалит сероватого оттенка в межэтажных перемычках, – рельефная белая сетка в каждой ячейке отчеркнута вставкой черного стекла, похожей на солнечную тень. Причем в сквозных вертикальных уступах на торцах башен широкая черная полоса, похожая на тень, возникает из-за ниш центрального кондционирования, но издали воспринимается как часть общего сюжета, перекликаясь с «отчеркиваниями» в окнах, как «большая» тень с «малыми». (Здесь в скобках надо заметить, что вставки темного стекла светопрозрачные и не уменьшают ширину светового проема, если смотреть изнутри; черные стекла в окнах соответствуют форточкам).
ЖК «Небо»
Фотография © Алексей Народицкий / предоставлено ТПО «Резерв»
Прием можно было бы понять как иллюзонистический элемент гризайльной суперграфики, наподобие полос, образующих намек на вертикальные ниши на фасадах ЖК «Чертаново» 2008 года – если бы черные вставки не чередовались в шахматном порядке поэтажно, то слева, то справа.
Чередование, особенно в некоторых ракурсах, где «отчеркивание» воспринимается как часть рельефа, создает впечатление парадокса: ярусы как будто «смотрят» в разные стороны (похожий эффект возникает в 5 корпусе ВТБ Арена Парка), или же кажутся прошитыми по конутуру зигзагообразной строчкой, а может быть, немного «покачиваются», вибрируют – примерно как мираж, особенно если смотреть издали. Что, конечно, напоминает эксперименты оп-арта, особенно хорошо известную картинку
с ложным зигзагом.Рисунок виден не всегда – при прямом свете почти не заметен, зато при косом, вечернем, заметен хорошо, – и башни, при всей лаконичности решения, выглядят по-разному не только при обходе, точнее объезде, но и изменяются в зависимости от времени суток. Зигзагообразный паттерн возвращает нас и к метафоре таяния: линии фасадной сетки, которые кажутся на первый взгляд прямыми и очень четкими, если не жестковатыми, белое на темном, да в сущности такими прямыми и являются на самом деле – вдруг в ракурсе начинают казаться чуть зигзагообразными, как будто айсберг начал таять. Это довольно интересный эффект, хотя и очень ненавязчиво поданный.
Другой вариант изменения образа – на закате, когда «исчезает» белый цвет, башни также становятся похожи на чикагские небоскребы: вертикали читаются яснее, а перголы превращаются в «классические» аттики.
Фасады – стальные и модульные, изготовлены на заводе, что обеспечило качество исполнения, хорошую пожарную безопасность и быстроту сборки. Решение соответствует как высотности, так и бизнес-классу домов.
ЖК «Небо», проект, фрагмент фасада
© ТПО «Резерв», ГК «Олимпроект»
В контексте современного московского строительства ЖК «Небо» – высотный, выше привычных 25-35 этажей, ставших нормой для крупных московских ЖК, в частности тех, которые строятся поблизости. По высоте он тяготеет к комплексам в зоне влияния «Большого Сити», – но не небоскреб. Бывают и выше. Строго говоря, не очень ясны аргументы визуального анализа, чьи ограничения здесь соблюдены, и почему нельзя было построить более высокие башни, сделав акцент заметнее. Дома, безусловно, стали доминантой окрестностей, но в то же время балансируют на грани между небоскребом со стальными фасадами и просто высокой московской застройкой. Но очевидно, что если бы тот же объем площадей был бы умещен в более жесткие высотные ограничения на том же участке, получилось бы не так эффектно. Здесь же «до неба», пожалуй, удалось дотянуться. Как и встроиться в градостроительный каркас юго-запада, намеченный авторами семидесятых.


