Архсовет Москвы-67

Проект реконструкции советского здания АТС в начале Нового Арбата под гостиницу – от ТПО «Резерв», и жилой комплекс на Шелепихинской набережной – от АБ «Остоженка», были поддержаны архсоветом Москвы 5 августа.

mainImg
Архитектор:
Владимир Плоткин
Проект:
Гостиница Cosmos на Новом Арбате, 2
Россия, Москва, Новый арбат, 2

Авторский коллектив:
Руководитель авторского коллектива В. Плоткин, руководитель мастерской С. Гусарев; ГАП: Г. Кескевич, Н. Ромишевская, Д. Чернов; архитектор: Н. Гусева

2019 — 2020 / 2020 — 9.2025

Заказчик: УК ЛэндПрофит
Генпроектировшик стадии П и РД: ыООО «Эталон проект»
Причальный
Россия, Москва, Причальный пр-д, 10

Авторский коллектив:
Руководитель авторского коллектива: В. Каняшин
Главный архитектор проекта: М. Дехтяр
Архитекторы: Е. Королёв, М. Приходько, О. Климачёва, В. Сергеева, Ф. Мануковский
Визуализация: А. Московченко

2020 / 2021 — 2024

Заказчик: АО СЗ «Инспайр»
Гостиница Cosmos 4*, Новый Арбат, 2
Проект: ТПО «Резерв»
Заказчик: УК ЛэндПрофит
Вместимость: 253 номера


Существующее здание построено в 1965 году как АТС и Дом связи. В паре с рестораном «Прага» оно открывает перспективу Нового Арбата, арка в центральной части здания ведет в Мерзляковский переулок. Фасады здания 1960-х годов состоят из «ленточных» окон, в чем перекликаются со строгой стилистикой домов-«книжек» Нового Арбата и в то же время отвечают его техническому назначению. Впрочем, в течение всех последних лет здание было полностью затянуто строительной сеткой и рекламой и после перехода на цифровой формат коммутаторов по назначению не используется.
Гостиница на Новом Арбате, 2
Из презентации ТПО «Резерв»
Гостиница на Новом Арбате, 2
© ТПО «Резерв»

Бывшую АТС планируют реконструировать, превратив в гостиницу. По словам председателя архсовета Сергея Кузнецова, идея рассматривается уже больше двух лет и было предложено достаточно много вариантов. Главный архитектор Москвы также заметил, что он очень рад появлению Владимира Плоткина в качестве проектировщика, и что с ТПО «Резерв» также было перебрано и рассмотрено много различных вариантов, поскольку значение площадки велико. «Показанный проект – это вершина айсберга», – подчеркнул Сергей Кузнецов.
  • zooming
    1 / 3
    Гостиница на Новом Арбате, 2
    © ТПО «Резерв»
  • zooming
    2 / 3
    Гостиница на Новом Арбате, 2
    © ТПО «Резерв»
  • zooming
    3 / 3
    Гостиница на Новом Арбате, 2
    © ТПО «Резерв»

Все геометрические параметры и высотная отметка зафиксированы в ГПЗУ, а наличие охранных зон разрешает только реконструкцию в габаритах существующего здания. С севера к нему торцами подступают три доходных дома, все коммуникации и конструкции подземной части необходимо было сохранить, обустроив между тем под гостиницей механизированную парковку, что повлекло, по словам архитектора, множество сложных решений. Несущие конструкции старого здания предполагается использовать частично, там где это возможно, поскольку существующая высота этажей – 4,5 метра, и шаг колонн – 6 метров, совершенно не подходят для современного гостиничного здания.
Гостиница на Новом Арбате, 2
© ТПО «Резерв»
Гостиница на Новом Арбате, 2
© ТПО «Резерв»

Владимир Плоткин начал представление проекта со значимых акцентов окружения: в прямой видимости Кремль, Сити и гостиница «Украина», рядом особняк Морозова и Моссельпром, все эти объекты – знаковые и характерные для своего времени, по словам архитектора, они «фиксировали временные этапы развития города и даже определяли его направление».

«Я считаю это место достойным появления знакового объекта именно нашего времени. Решение поддержать стилистику Нового Арбата было бы, на мой взгляд, скучным и несправедливым здесь», – подчеркнул автор. Так что один из первых вариантов, с ленточно-полосатым фасадным решением, по словам Владимира Плоткина, архитекторы отвергли практически сразу. Кроме того, планируемый оператор, гостиница «Космос», также тяготел к более смелому и интересному решению, которое было бы созвучно «космическому» названию отеля.
  • zooming
    1 / 1
    Гостиница на Новом Арбате, 2, проект
    © ТПО «Резерв»

Было показано восемь вариантов, но на протяжении обсуждения чувствовалось, что их было значительно больше. В качестве итогового архитекторы ТПО «Резерв» предложили самый смелый и пластичный вариант с крупной диагональной сеткой фасада, который Владимир Плоткин назвал экзоскелетом, так как решетка перед структурным остеклением – конструктивно несущая. В нижней части пластина здания с двух сторон «подсечена», освобождая пешеходные пути, арка расширена. 

Торец, обращенный к Кремлю – стеклянный, и раскрывает отличные виды, как из ресторана в верхнем этаже, так и из сгруппированных здесь люксов. Внутри гостиничных номеров крупные диагонали фасада аккуратно вписаны в модуль окна, составленного из одного прямоугольного и одного треугольного стекла.
Гостиница на Новом Арбате, 2
© ТПО «Резерв»
Гостиница на Новом Арбате, 2
© ТПО «Резерв»
Вынос ступенчатой консоли, обращенной к Кремлю, невелик, около 5 метров. На соседнем брандмауэре авторы предложили поместить медиа-фасад, который должен добавить в решение современности и блеска. Кроме того, отражаясь в стекле, исторический дом получит визуальное продолжение, подчеркнул в процессе обсуждения Сергей Кузнецов.
Гостиница на Новом Арбате, 2, проект, 2020
© ТПО «Резерв»
Гостиница на Новом Арбате, 2
© ТПО «Резерв»

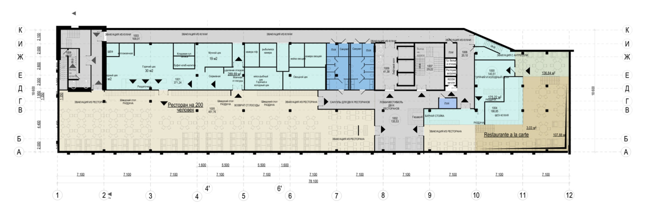
Первый этаж занят общественными и коммерческими помещениями, во втором предполагается конференц-зона, там же, вероятно, может разместиться фитнес. Выше следуют гостиничные номера, на последнем, 10 этаже расположены рестораны с панорамными видами. Въезд в механизированный двухярусный паркинг и загрузка устроены со стороны Мерзляковского переулка.
  • zooming
    1 / 8
    Гостиница на Новом Арбате, 2
    © ТПО «Резерв»
  • zooming
    2 / 8
    Гостиница на Новом Арбате, 2
    © ТПО «Резерв»
  • zooming
    3 / 8
    Гостиница на Новом Арбате, 2
    © ТПО «Резерв»
  • zooming
    4 / 8
    Гостиница на Новом Арбате, 2
    © ТПО «Резерв»
  • zooming
    5 / 8
    Гостиница на Новом Арбате, 2
    © ТПО «Резерв»
  • zooming
    6 / 8
    Гостиница на Новом Арбате, 2
    © ТПО «Резерв»
  • zooming
    7 / 8
    Гостиница на Новом Арбате, 2
    © ТПО «Резерв»
  • zooming
    8 / 8
    Гостиница на Новом Арбате, 2
    © ТПО «Резерв»

Владимир Плоткин предложил на суд коллег два варианта фасада: серебристо-белый и золотисто-медный из рельефных панелей, которые, по признанию автора, ему когда-то посоветовал Сергей Скуратов. Обсуждение проекта – а заседание Архсовета второй раз проходило в дистанционном режиме – было кратким, эксперты поддержали его, высказавшись в пользу медного варианта, причем Михаил Посохин – из-за его цветового отличия от Нового Арбата. Александр Цимайло переспросил, не было ли варианта, в котором объем гостиницы был бы целиком «подсечен» со стороны брандмауэра и последний был бы полностью открыт. Оказалось, такой вариант был, но был отвергнут из-за невозможности существенно изменять утвержденный объем параллелепипеда. Вариант с сеткой на «кремлевском» торце, о котором спросил Андрей Гнездилов, также был отвергнут – из-за слишком жесткого примыкания смелого и крупного современного рисунка к историческому дому, как пояснил Владимир Плоткин, также как и для того, чтобы полностью раскрыть лучшие видовые панорамы. Относительно полоски на углу того же торца автор пояснил, что ее появление вызвано пластическими соображениями: сетка не должна заканчиваться на углу слишком внезапно. Николай Шумаков, охарактеризовал здание так: «Сильное, с новым масштабом, удивительно прочно село на это место», однако высказал сомнение, не будет ли медиа-фасад мешать жителям соседних номеров. Совет поддержал проект в золотисто-медном варианте; резюмируя обсуждение, Сергей Кузнецов пожелал заказчику качественного исполнения. 

***

Многофункциональный комплекс жилой застройки, Причальный пр-д, вл. 8
Проект: АБ «Остоженка»
Заказчик: 
АО СЗ «Инспайр»
Вид с Москвы-реки. Причальный
© АБ Остоженка
Второй вопрос в повестке – многофункциональный жилой комплекс по адресу Причальный проезд, вл. 8 – это новая итерация решения, которое уже рассматривалось и даже было одобрено архсоветом в 2017 году. Тогда проект был разработан UNK project. Но сменился заказчик, был проведен закрытый конкурс, в котором победила «Остоженка». При этом ранее выданное ГПЗУ действует и сейчас, поэтому параметры ЖК прежние. Это очень высокоплотная застройка, но все же, как заверил Сергей Кузнецов, жилье, а не апартаменты.
Вид с Москвы-реки. Причальный
© АБ Остоженка
Вид с Берегового проезда. Причальный
© АБ Остоженка
Участок находится рядом с Шелепихинской набережной, в сторону которой намечается продление Краснопресненской набережной – важной артерии к уже весьма активному девелопменту на бывших промышленных территориях. Соседний участок на набережной занимает ЖК «Сердце Столицы», здесь же рядом ЖК Headliner, ЖК «Кандинский Баухаус», напротив по другую сторону реки – ЖК «Береговой», ЖК «Филиград» – все они входят в ареал так называемого Большого Сити.
Схема благоустройства. Причальный
© АБ Остоженка
Прежнее решение у UNK очерчивало те же самые границы, что и нынешний проект, но было гораздо сложнее и больше раскрыто каре в сторону воды. В предложении «Остоженки» башни образовали более сомкнутую компактную композицию, которая визуально вроде бы проста, но на самом деле потребовала изрядного мастерства.
Двор. Причальный
© АБ Остоженка
«Наша идея была сформировать цельный организм, – пояснил Валерий Каняшин, – который в то же время составлен из самостоятельных объектов-пластин. В каждой из них «зашита» ось симметрии, чтобы ее форма не стала слишком громоздкой. Пластины собраны вокруг общего пространства двора. Группа получилась довольно сильная, она стоит рядом с «Сердцем столицы» и с нижних точек, и с мостов выглядит на его фоне вполне уверенно…».
Вид с Шелепихинской набережной. Причальный
© АБ Остоженка
Четыре корпуса с разной этажностью окружают дворовое пространство, нигде не смыкаясь, но при восприятии накладываясь контурами друг на друга, отчего с разных точек возникают и разные ракурсы. К набережной масса «расходится», объединяя пространство двора с рекреационной зоной вдоль реки, в сторону железной дороги, напротив, смыкается, образуя самый массивный фасад.
  • zooming
    1 / 5
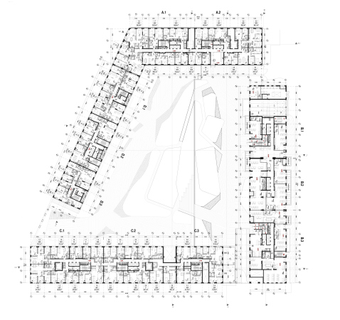
    План на отметке -4,455. Причальный
    © АБ Остоженка
  • zooming
    2 / 5
    План на отметке +0,00. Причальный
    © АБ Остоженка
  • zooming
    3 / 5
    Разрез 1, по корпусам В и D. Причальный
    © АБ Остоженка
  • zooming
    4 / 5
    Разрез 2. По нижнему стилобату по корпусам А и С. Причальный
    © АБ Остоженка
  • zooming
    5 / 5
    Разрез 3. Причальный
    © АБ Остоженка
Образная сторона архитектурного решения комплекса строится на метафоре «земля и небо», имеющей и вполне практическую сторону. Плоскость пластин фрагментируется на верхнюю, более компактную и прозрачную часть, и нижнюю – в облицовке клинкером под терракоту. Этим материалом ЖК в Причальном проезде отдает дань «Сердцу столицы», а самой идеей ярусного построения объемов – Москве-Сити. С ближних ракурсов возникает достаточно богатое ощущение от фасадной плоскости, потому что клинкерная плитка имеет пестрый состав из множества разных оттенков и текстур. Причем в кладке нижней части башен применяется прием отмывки или обратной «растяжки» градиента кверху – т.е. от светлого к темному.
Вид с Причального проезда. ЖК «Level Причальный»
© АБ Остоженка
Корпуса буквально «спускаются» вдоль рельефа, перепад которого на участке составляет от 5 до 8 метров. Благодаря перепаду в планировке двора выделяются два функциональных уровня – «детский», где преобладают игровые площадки, и «взрослый», с площадками для отдыха. Они соединяются лестницами и открытым амфитеатром, который наряду с множеством других объектов входит во внутреннее благоустройство ЖК.
Двор. Причальный
© АБ Остоженка
Двор расположен на стилобате – в нем находятся два уровня паркинга и уровень общественных функций, расположенных по периметру комплекса. Сюда выходят торговая галерея с входом под аркой со стороны набережной, фитнес, супермаркет, кафе. Офисные помещения, занимающие полуподземный этаж, частично спрятаны в «складки» рельефа.
 
Члены совета единодушно выразили поддержку представленному решению, отметив незаурядное исполнение простыми средствами. «Композиция простая, по хорошему монументальная, читаемая, хотя это колоссальная плотность на небольшом участке», – так откликнулся на проект Сергей Чобан. Владимир Плоткин отметил необычную раскладку градиента со светлым тоном внизу и темным вверху. 

Сергей Скуратов заострил внимание на сложном для данного случая вопросе гипер-масштаба: «Проект, который мы рассматриваем, уже находится в экспертизе – говорить о плотности, к сожалению, бесполезно, как и о том, что можно было бы сделать здание 250 метров высотой и снизить эту плотность на земле, одновременно дав завершение «Сердцу столицы». В целом поддерживаю проект, но сомневаюсь в разделении пополам этой пропорции фасада – высота кирпичной части могла бы быть понижена на этажей 5-6».
Вид с проектируемой эстакады. ЖК «Level Причальный»
© АБ Остоженка
Проект был одобрен с поправкой на предварительное решение транспортной схемы, поскольку рядом запланировано строительство эстакады и других транспортных объектов, из-за которых текущая схема, вероятно, изменится.
Транспортная схема территории этап 1. Причальный
© АБ Остоженка
Архитектор:
Владимир Плоткин
Проект:
Гостиница Cosmos на Новом Арбате, 2
Россия, Москва, Новый арбат, 2

Авторский коллектив:
Руководитель авторского коллектива В. Плоткин, руководитель мастерской С. Гусарев; ГАП: Г. Кескевич, Н. Ромишевская, Д. Чернов; архитектор: Н. Гусева

2019 — 2020 / 2020 — 9.2025

Заказчик: УК ЛэндПрофит
Генпроектировшик стадии П и РД: ыООО «Эталон проект»
Причальный
Россия, Москва, Причальный пр-д, 10

Авторский коллектив:
Руководитель авторского коллектива: В. Каняшин
Главный архитектор проекта: М. Дехтяр
Архитекторы: Е. Королёв, М. Приходько, О. Климачёва, В. Сергеева, Ф. Мануковский
Визуализация: А. Московченко

2020 / 2021 — 2024

Заказчик: АО СЗ «Инспайр»

06 Августа 2020

Похожие статьи
Градостроительство в тисках нормирования?
В рамках петербургского форума «Архитектон» бюро «Эмпейт» и Институт пространственного планирования Республики Татарстан организовали день градостроительства – серию из трех дискуссий. Один из круглых столов был посвящен взаимовлиянию градостроительной теории и нормирования. Принято считать, что регламенты сдерживают развитие городов, препятствует появлению ярких проектов. Эксперты из разных городов и институций нарисовали объемную картину: нормы с трудом, но преодолеваются; бывает, что их гибкость приводит к потере идентичности; зачастую важна воля отдельной личности; эксперимент, выходящий за рамки градостроительного нормирования, все же необходим. Собрали для вас тезисы обсуждения.
Примечательности в тренде и вне его. Обзор проектов...
На фоне все более отчетливо проявляющихся тенденций к аффектации архитектурного облика большинства новых московских проектов интересно наблюдать размытие понятия авторского почерка, вплоть до полного его исчезновения и попытки некоторых архитекторов отстоять свое право работать в менее техно-эмоциональной манере.
Обзор проектов 23-28 февраля
На этой неделе мы отдыхали от башен и стеклянных фасадов: в информационном поле замечено несколько камерных проектов в центре Москвы, которым сопутствуют неоклассические фасады, итальянский архитектор, историческая парцелляция и реконструкция соседних зданий. Среди других находок: масштабный проект детской клиники и небезынтересный жилой комплекс в Уфе.
Потенциальные примечательности. Обзор проектов 16–22...
Если в стране отмечается снижение темпов строительства, то в Москве все сохраняется на прежнем, парадоксально бодром уровне. Во всяком случае, темпы презентации новых масштабных и удивительных проектов не замедляются. Какие из них будут реализованы и в каком виде, сказать невозможно, но можно удивиться фантазии и амбициям их авторов и заказчиков.
Хартия Введенского
В Петербурге открылся музей ОБЭРИУ: в квартире семьи Александра Ввведенского на Съезжинской улице, где ни разу не проводился капитальный ремонт. Кураторы, которые все еще ищут формат для музея, пригласили поработать с пространством Сергея Мишина. Он выбрал путь строгой консервации и создал «лирическую руину», самодостаточность которой, возможно, снимает вопрос о необходимости какой-либо экспозиции. Рассказываем о трещинках, пятнах и рисунках, которые помнят поэтов-абсурдистов, почти не оставивших материального наследия.
Обзор проектов 1-6 февраля
Публикуем краткий обзор проектов, появившихся в информационном поле на этой неделе. В нашей подборке: здание-луна, дома-бочки и небоскреб-игла.
От горнолыжных курортов к всесезонным рекреациям
В середине декабря несколько архитектурных бюро собрались, чтобы поговорить на «сезонную» тему: перспективы развития внутреннего горнолыжного туризма. Где уже есть современная инфраструктура, где – только рудименты советского наследия, а где пока ничего нет, но есть проекты и скоро они будут реализованы? Рассказываем в материале.
Рестораны с историей
Рестораны в наш век перестали быть местом, куда приходят для того, чтобы утолить голод – они в какой-то степени заменили краеведческие музеи и стали культурным поводом для посещения того или иного города, а мы с вами дружно и охотно пополнили ряды многочисленных гастропутешественников.
Восходящие архитектурные звезды – кто, как и зачем...
В рамках публичной программы Х сезона фестиваля Москомархитектуры «Открытый город» прошел презентационный марафон «Свое бюро». Основатели молодых, но уже достигших успеха архитектурных бюро рассказали о том, как и почему вступили на непростой путь построения собственного бизнеса, а главное – поделились советами и инсайдами, которые будут полезны всем, кто задумывается об открытии своего дела в сфере архитектуры.
Экономика творчества: архитектурное бюро как бизнес
В рамках деловой программы фестиваля Москомархитектуры «Открытый город» прошел паблик-ток «Архитектура как бизнес». Три основателя архитектурных бюро – Тимур Абдуллаев (ARCHINFORM), Дарья Туркина (BOHAN studio) и Алексей Зародов (Syntaxis) – обсудили специфику бизнеса в сфере архитектуры и рассказали о собственных принципах управления. Модерировала встречу Юлия Зинкевич – руководитель коммуникационного агентства «Правила общения», специализирующегося на архитектуре, недвижимости и урбанистике.
Шорт-лист WAF Interiors: Bars and Restaurants
Самый длинный шорт-лист конкурса WAF Interiors – список из 12 интерьеров номинации Bars and Restaurants, включает самые разнообразные места для отдыха, веселья, общения с друзьями и дегустации вкусной еды и напитков. И все это в классной дизайнерской упаковке.
Шорт-лист WAF Interiors: Hotels
Новая подборка интерьеров из шорт-листа конкурса WAF Interiors представляет разнообразные гостиничные форматы, среди которых преобладают разные этнические и экзотические образцы, что не столько говорит о тенденциях в дизайне, сколько о зонах активного развития туристического рынка.
Архитектурный рисунок в эпоху ИИ
Объявлены победители The Architecture Drawing Prize 2025. Это 15 авторов, чьи работы отражают главные векторы развития архитектурной мысли сегодня: память места, экологическую ответственность и критику цифровой культуры.
Шорт-лист WAF Interiors: Retail
Продолжаем серию обзоров интерьеров, вышедших в финал конкурса WAF Interiors, и представляем пять объектов из номинации Retail, в которой развернулась битва между огромным моллом и небольшими магазинами, высокотехнологичными и уютными пространствами, где сам процесс покупки должен быть в радость.
Шорт-лист WAF Interiors: Education
Продолжаем серию обзоров интерьеров, вышедших в финал конкурса WAF Interiors, и представляем пять объектов из номинации Education, каждый из которых демонстрирует различные подходы к образовательным пространствам для детей и взрослых.
Шорт-лист WAF Interiors: Public Buildings
В преддверии фестиваля WAF начинаем публикацию серии обзоров интерьеров, вышедших в финал конкурса WAF Interiors, и предлагаем читателям ARCHI.RU попробовать свои силы в оценке мировых интерьерных тенденций и выбрать своего победителя в каждой номинации, чтобы потом сравнить результаты с оценкой жюри.
Поговорим об истине и красоте
В этом материале – калейдоскоп впечатлений одного дня, проведенного на деловой программе Архитектона. Тезисно зафиксировали содержание дискуссий о возможностях архитектурной фотографии и графики, феномене инсталляций и будущем, которое придет на смену постмодернизму. А еще – на прогулке с Сергеем Мишиным тренировали «метафизическое зрение», которое позволяет увидеть параллельный Петербург.
Несколько причин прийти на «Зодчество»
В Гостином дворе открылся 33 фестиваль «Зодчество». Одновременно с ним на одной площадке пройдут еще два фестиваля: «Наша школа» и «Лучший интерьер». У каждого фестиваля есть своя деловая, выставочная и конкурсная программы. Мы посмотрели анонсы и сделали небольшую подборку событий из всех трех фестивальных программ.
На династической тропе
Дома и таунхаусы комплекса «Царская тропа» строятся в поселке Гаспра – с запада и востока от дворцов бывшей великокняжеской резиденции «Ай-Тодор». Так что одной из главных задач разработавших проект архитекторов бюро KPLN было соответствовать значимому соседству. Как это отразилось на объемном построении, как на фасадах и каким образом авторы используют рельеф – читайте в нашей статье.
Speed-dating с героями 90-х и другие причины пойти на Архитектон-2025
На этой неделе в петербургском Манеже открывается Архитектон – 10-дневный фестиваль с выставкой, премией и деловой программой, которая обещает северной столице встряску: придет ОАМ, будут новые форматы, обсудят намыв, конкурсы, философское и социальное измерение архитектуры. Советуем запастись абонементом и начать составлять график. В этом материале – хайлайты, на которые мы обратили внимание.
В лесах и на горах
В удивительных по красоте природных локациях по проектам «Генпро» строятся сразу два масштабных туристических кластера: один в Заполярье, в окрестностях Салехарда, другой – на Камчатке, у подножия вулкана Вилючинская Сопка.
Дом, в котором
Музей искусств Санкт-Петербурга XX-XXI веков открыл выставку «Фрагменты эпох» в парадных залах своего нового здания – особняка купца Ивана Алафузова на набережной канала Грибоедова. Рассказываем, почему сюда стоит заглянуть тем, кто хочет проникнуться духом Петербурга.
Вся мудрость океана
В Калининграде открылся новый корпус Музея мирового океана «Планета океан». Примечательно не только здание в виде 42-метрового шара, но и экспозиция, которая включает научные коллекции – их собирали около 10 лет, аквариумы с 3000 гидробионтов, а также специально разработанные инсталляции. Дизайн разработало петербургское бюро музейной сценографии «Метаформа», которое соединило все нити в увлекательное повествование.
Пикник теоретиков-градостроителей на обочине
Руководитель бюро Empate Марина Егорова собрала теоретиков-градостроителей – преемников Алексея Гутнова и Вячеслава Глазычева – чтобы возродить содержательность и фундаментальность профессиональной дискуссии. На первой встрече успели обсудить многое: вспомнили базу, сверили ценности, рассмотрели передовой пример Казанской агломерации и закончили непостижимостью российского межевания. Предлагаем тезисы всех выступлений.
WAF 2025: кто в коротком списке
Всемирный фестиваль архитектуры объявил шорт-листы всех номинаций. В списки попали постройки и проекты бюро ATRIUM, TCHOBAN VOSS Architekten и Kerimov Architects – предлагаем их краткий обзор.
Петербург Георгия Траугота
С 29 мая по 17 августа 2025 года в московском пространстве Ile Theleme проходит персональная выставка ленинградского художника Георгия Траугота. Более ста работ мастера представляют все грани творчества этого самобытного автора. Петербург Траугота – в эссе Екатерины Алиповой.
На Марс летит Франциск Ассизский
Кураторская экспозиция XIX Венецианской архитектурной биеннале дает ощущение, что мир вот-вот шагнет в новую эпоху, и даже есть надежда, что это будут не темные века. Предлагаем обзор идей и концепций, которые могут изменить нашу реальность до неузнаваемости: декарбонизирующие города, построенные для человека и других видов, орбитальные теплицы, биопатина и бикерамика, растительные архивы – все это очень близко.
XIX Архитектурная биеннале Венеции: павильоны в Арсенале
Экспозиции национальных павильонов на территории Арсенала продолжают удивлять, восхищать и озадачивать посетителя. Рассказываем про города из лавы, сваренный на воде из лагуны эспрессо, подземные источники прохлады и множество других концепций из разных стран.
Гаражный футуратор
Первым куратором нового спецпроекта Арх Москвы «Футуратор» стало бюро Katarsis. Свободные в выборе инструментов и формата Петр Советников и Вера Степанская обратились к теме «параллельного ландшафта» – малозначительной и невоспроизводимой архитектуры, которая не зависит от конъюнктуры, но исподволь влияет на реальную жизнь человека. Искать параллельный ландшафт отправились восемь участников: на дачу, в лес, за город, на шашлыки. Оказалось, его сложно заметить, но потом невозможно забыть.
Арх Москва: исследования
Лозунг «Если чего-то не понимаешь – исследуй!» звучит все громче, все актуальнее. Не отстает и Арх Москва – выставка, где разнообразные исследовательские работы показывают достаточно давно, а с некоторых пор специально для очередной выставки кураторы делают одно исследование за другим. Как говорится, однако тренд. Мы планируем опубликовать несколько исследований, обнаруженных на выставке, полностью и по отдельности, а пока – обзор разных видов исследований, представленных на Арх Москве 2025.
Технологии и материалы
Быстро, дешево и многоэтажно
Техасский ICON – производитель промышленных 3D-принтеров и компаньон бюро BIG – выпустил на рынок новую печатную систему. Она предназначена для строительных компаний, а не для частных пользователей. Подразумевается, что на установке Titan будут печатать быстровозводимые, качественные и относительно дешевые дома. А рядовые покупатели, пусть и не знакомые с аддитивными технологиями, смогут обзавестись доступным инновационным жильем.
Фальцевая кровля Rooflong как инженерная система
Современная архитектура предъявляет к кровельным системам значительно более высокие требования, чем это было еще несколько лет назад. Речь идет не только о защите здания от внешних воздействий, но и о сложной геометрии, долговечности, интеграции инженерных элементов и точной реализации архитектурной идеи. Так, фальцевая кровля все чаще рассматривается не как отдельный материал, а как часть комплексной оболочки здания.
Эффективные фасады из полимеров
К современным фасадам предъявляются множество требований: они должны быть одновременно легкими и прочными, гибкими и удобными в монтаже, эстетичными и пригодными для повторного использования. Полимерные композитные системы успешно справляются со всеми этими задачами, выходя далеко за рамки традиционной светотехники и стандартных форм. Эффективность выражается в снижении нагрузки на каркас, в простоте монтажа, в возможности создавать сложнейшие скульптурные оболочки. Разберем, как это работает на практике.
По второму кругу
​В Осаке разбирают «Большое кольцо» – гигантскую деревянную конструкцию, построенную по проекту Со Фудзимото для ЭКСПО-2025. Когда демонтаж завершится, древесину от «Кольца» передадут новым владельцам. Стройматериалы пойдут на восстановление домов, пострадавших от стихийных бедствий, и на строительство новых сооружений.
Архитектура потоков: узкие места в проектах логистических...
Проектирование логистических объектов – это не столько про объём, сколько про систему управляемых переходов между зонами. Значительное время работы техники теряется на ожидания, причём основные потери концентрируются не в стеллажном хранении, а в проёмах, стыках температурных контуров и зонах пересечения потоков. Разбираемся, почему реальная производительность склада определяется не характеристиками автоматизации, а временем открытия проёма, и как этот параметр закладывается в проект.
Стекло AIG в проекте Центрального телеграфа
В отреставрированном Центральном телеграфе на Тверской использованы три типа остекления AIG: для исторического фасада, кровли атриума и внутренних ограждений. Основные требования – нейтральность цветопередачи, солнцезащита без затемнения и сохранение визуальной легкости исторического объема.
Три цвета MODFORMAT на фасаде
Жилой комплекс «ЦЕНТР» в Бресте – первый в портфеле «Полесьежилстрой» проект, где фасады полностью выполнены из клинкера удлиненного формата. Квартал из пяти корпусов распродан почти на 100%, строительство продолжается. Разбираемся, что именно сработало: архитектурное решение, выбор материала или их удачное сочетание.
От модерниста – экологисту
Швейцарский архитектор Барбара Бузер получила премию Джейн Дрю 2026 года. Ежегодную премию представительницам слабого пола вручает журнал Architects′ Journal – за профессиональные достижения и «укрепление женского авторитета в профессии».
Зеленые полимеры: эволюция фасадной теплоизоляции
Современная «зеленая архитектура» – это не только про озеленение крыш и солнечные батареи. В первую очередь, это про технологии, снижающие углеродный след здания. Ключевую роль здесь играют теплоизоляционные материалы (ТИМ), позволяющие радикально сократить потребление энергии. Пенополистирол, PIR и другие материалы, которые принято называть «зелеными полимерами» за их вклад в энергоэффективность, сегодня превратились в стандарт индустрии.
Пищевые производства: логистика и температура
Будучи одними из самых сложных объектов с точки зрения внутренней организации, пищевые производства требуют не просто размещения холодильных камер и цехов, а создания системы «климатических островов» внутри здания. Главная сложность возникает в зонах проемов в условиях интенсивного движения техники и персонала. Разбираем инженерные нюансы подбора оборудования, позволяющие обеспечить герметичность без потери энергоэффективности и удобства логистики.
Тепло и форма
Энергоэффективность сегодня – не враг архитектурной выразительности. Полимерные утеплители – ЭППС, ПИР, ППУ – берут на себя нагрузку, усадку и влагу, освобождая фасад от массивных наслоений. Какой материал выбрать для фундамента, фасада и кровли, чтобы сохранить и тепло, и чистоту линий – разбираем в обзоре.
Угольная пыль вместо цемента
Ученые Пермского Политеха и УрФУ создали экологичный бетон с повышенной водостойкостью. В составе материала – тонкомолотые горелые породы, отравляющие экологию угледобывающих регионов.
Материал с характером
За последние годы продажи металлических фасадных кассет в России выросли почти на 40 % – в сегментах бизнес и премиум всё активнее спрос на материалы, которые дают архитектору свободу работать с выразительной формой, не в ущерб безопасности и сроку службы фасада. Металлокассеты стали одним из главных ответов на этот запрос. Смотрим актуальные приёмы их применения на реализованных объектах от компании «Алкотек».
Архитектура воздухообмена
В зданиях большого объема – от спортивных комплексов до производственных корпусов – формирование комфортного микроклимата связано с особыми инженерными задачами. Одной из ключевых становится организация циркуляции воздуха, позволяющая устранить температурное расслоение и обеспечить равномерные условия по всей высоте пространства.
Инновационное остекление для идеального микроклимата:...
В современной архитектуре стеклопакет приобрел множество полезных функций, став полноценным инструментом управления микроклиматом здания. Так, энергосберегающие стеклопакеты эффективно удерживают тепло в помещении, солнцезащитные – предотвращают перегрев, а электрообогреваемые сами становятся источником тепла. Разбираемся в многообразии современных стеклоизделий на примере продукции Российской Стекольной Компании.
Опоры из грибницы
В США придумали новую альтернатива бетону – живой материал на основе мицелия и бактерий. Такой материал способен самовосстанавливаться и годится для применения в конструктивных компонентах зданий.
«Сухой» монтаж: КНАУФ в BelExpo
Минский BelExpo возвели на год раньше плана. Ключевую роль сыграли технологии КНАУФ: в основе конструкций – каркасно-обшивное перекрытие, собранное как конструктор и перекрывающее 6 метров без тяжелой техники, а также системы «потолок под потолком» с плитами КНАУФ-Акустика.
Полы, выращенные бактериями
Нидерландско-американская исследовательская команда представила напольную плитку на основе «биоцемента». Привычный цемент, выполняющий роль вяжущего вещества, авторы заменили на выработанный бактериями известняк. При производстве плитки Mimmik в среду попадает на 60% меньше выбросов – по сравнению с традиционной.
Живой металл
Анодированный алюминий занимает все более заметное место в архитектурных проектах – от жилых комплексов до аэропортов. Его выбирают за выразительный внешний вид и стабильные эксплуатационные характеристики. В России с архитектурным анодированием системно работает завод полного цикла «25 микрон». В статье на примере его технологий и решений разберем, как устроен процесс анодирования и какие свойства делают этот материал востребованным.
Обновленный шоу-рум LUCIDO: рабочая среда для архитектора
Бутик Итальянской Плитки LUCIDO, расположенный в особняке на Пречистенке, завершил реконструкцию. Задача обновления – усилить функциональность пространства как инструмента для профессиональной работы с материалом. В новой экспозиции сделан акцент на навигацию, сценарии освещения и демонстрацию крупных форматов в условиях, приближенных к реальному интерьеру.
Сейчас на главной
Хроника Шуховской башни
Над шаболовской башней сгущается, теперь уже всерьез. Ее собираются построить в новом металле – копию в натуральную величину. Сейчас, вероятно, мы находимся в последней точке невозврата. Айрат Багаутдинов, основатель проекта «Москва глазами инженера», собрал впечатляющую подборку сведений по новейшей истории башни: попытки реконструкции, изменения предмета охраны и общественный резонанс. Публикуем. Сопровождаем фотографиями современного состояния.
Лесные травы
Студия 40 создала интерьер ресторана FOREST в Екатеринбурге, руководствуясь необычным принципом – дизайн должен быть высококлассным и при этом ненавязчивым, чтобы все внимание посетителей было сосредоточено на кулинарных впечатлениях.
Земельные отношения
Экоферма Цзаохэ в предместье Пекина восстанавливает отношения между человеком, землей и пищей. Fon Studio в своем проекте предсказуемо обратилось к традициям и легендам.
Курган памяти
Конкурсный проект мемориального комплекса на Пулковских высотах от «Студии 44» не будет реализован, но мы хотим о нем рассказать – это интересный пример того, как с помощью архитектуры можно символизировать травматичные события и тем самым способствовать их переработке и интеграции в опыт человека. Кроме того, авторам удается совместить мемориальную функцию с рекреационной, не уходя ни в драматизацию, ни в упрощение. Проект развивает идеи двух других конкурсных работ, ушедших в стол, – Музея блокады и парка «Тучков буян». А еще – отсылает к холму-кургану, который Александр Никольский воплотил в облике уже утраченного стадиона на Крестовском острове.
Между цирком и рынком
Манеж для представлений по проекту K architectures на конном заводе в Бретани соединяет ресурсоэффективность с традициями французской архитектуры.
Баня по-царски
Бюро «Уникум» создало собственную версию идеального банного интерьера, отказавшись от расхожих трендов в пользу собственного уникального стиля – нео-русской готики, одновременно роскошной, интригующей и сказочной, что делает поход в эту баню настоящим побегом от серой реальности.
«Заря» над волнами
В проекте реконструкции муниципального пляжа «Заря» в Сочи от бюро V6 GROUP – террасирование, «текучий» бетон и открытый бассейн стали ответами на главные вызовы курорта: нехватку места, капризы моря и модернистскую айдентику местной инфраструктуры.
Белый конгломерат
Белые цилиндры «слипаются», расширяются кверху и подсвечиваются изнутри, как гигантские лабораторные колбы. Внутри – атриум-амфитеатр, где наука становится зрелищем. Мы продолжаем публиковать конкурсные проекты ФИЦ оригинальных и перспективных биомедицинских и фармацевтических технологий и показываем концепцию от консорциума «АИ-АРХИТЕКТС+ТОЛК+ZLT+АрТех Лаб».
Между фантазией и реальностью: ПАСП & РОСТ
Начинаем публикацию конкурсных проектов ФИЦ биомедицинских и прочих технологий – с проекта, занявшего 6 место. Но Сергей Кузнецов сказал, что «разрыв между участниками был минимальным». А значит, все интересны. Предваряем обзором участка и задач – только так можно понять конкурсные проекты. Проект воронежской команды настроен на практику и удобство, рациональный подход к построению и вероятным трансформациям. Какое у них ключевое решение – читайте в тексте.
Типографика пространства
Консорциум ab Plombir и проект «ДАЛЬ» разработали комплексную концепцию развития исторического квартала «Нижполиграф» в Нижнем Новгороде. Бывшая типография превращается в креативный кластер и федеральный технопарк профессионального образования. Проект сохраняет промышленную идентичность места, деликатно работает с объектом культурного наследия и программирует 45 000 м2 как единую экосистему для встреч, коллабораций и городской жизни.
За холмами
Бюро Анастасии Томенко спроектировало для участка в районе Жигулевских гор загородный дом. Он одновременно подражает холмистому рельефу и заявляет о своем статусе выразительной скульптурной оболочкой, предлагает уединение и широкие виды, а также разные сценарии использования – от бутик-отеля до частной резиденции.
Фолиант большого архитектора
Олег Явейн написал, а «Студия 44» издала монументальный двухтомник про Александра Никольского. Многие материалы публикуются впервые. Читается, при всей фундаментальности, легко. Личность, и архитектура человека-гиганта (он был большого роста), который пришел к авангарду своим путем и не был готов «отпустить» то, что считал правильным – а о политике не говорил вообще никогда – показана с разных сторон. Читаем, рассуждаем, рассказываем несколько историй. Кое-что цепляет пресловутой актуальностью для наших дней.
Взгляд сверху
Дом “Энигмия” на Новослободской, спроектированный Андреем Романовым и Екатериной Кузнецовой, ADM architects – яркий, нашумевший проект последних месяцев. Соответствуя своему названию, он волшебно блестит и загадочно вырастает, расширяясь вверх. Расспросили девелопера и архитектора.
Переплетение перспектив
В середине апреля в Центральном доме архитектора Москвы прошел очередной Всероссийский архитектурный молодежный фестиваль «Перспектива 2026». Темой этого года стало «Переплетение». Конкурсная программа включала смотр-конкурс среди студентов и молодых архитекторов, а также конкурс на разработку архитектурной концепции многофункционального центра «Город Талантов» в Кемерово. Показываем победителей.
Блоки и коробки
Дом по проекту Studioninedots в новом районе Амстердама раскладывает жизнь семьи с двумя детьми по «коробочкам».
Звенья одной цепи
Бюро ulab разработало проект жилого комплекса, для которого выделен участок на границе с лесным массивом и экотропой «Уфимское ожерелье». Чтобы придать застройке индивидуальности, архитекторы использовали знакомые всем горожанам образы: башни силуэтом и материалом облицовки соотносятся со скальными массивами, а урбан-виллы – с яркими деревянными домиками. Не оставлено без внимания и соседство с советским кинотеатром «Салют» – доминанта комплекса подчеркивает его осевое расположение и использует паттерн фасада как основу для формообразования.
Стоечно-балочное гостеприимство
Отель Author’s Room по проекту B.L.U.E. Architecture Studio в агломерации Гуанчжоу соединяет для постояльцев отдых на природе с флером интеллектуальности от видного китайского издательства.
DELO’вой подход
Компания DELO успешно ведет дела во многих архитектурно-дизайнерских областях. Для того чтобы наилучшим образом представить все свои DELO’вые ипостаси, она создала специальное пространство, в котором торговая, маркетинговая и рабочая функции объединены в единый, очень органичный и привлекательный формат.
Тянись, нить
Как вырастить постиндустриальную городскую ткань из места с богатой историей? Примером может служить реставрация производственного корпуса шерстоткацкой фабрики в Москве. Здание удалось сохранить среди новых жилых домов. Сейчас его приспосабливают – частью под креативные офисы, частью под магазины и рестораны.
IAD Awards 2026
В этом году среди призеров премии International Architecture & Design Awards целая россыпь российских проектов, преимущественно от московских бюро. Рассказываем подробнее об обладателях платиновых наград и показываем всех финалистов из номинации «Архитектура».
Иван Кычкин: «Наш подход строится на балансе между...
За последнее время на архитектурном горизонте России все чаще появляются новые и интересные бюро из Республики Саха. Большинство из них активно участвуют в программах благоустройства, но не ограничиваются ими, развивая новые направления на стыке архитектуры, дизайна и арт-практик. Одним из таких бюро является мультидисциплинарная студия GRD:, о специфике которой мы поговорили с ее руководителем Иваном Кычкиным.
Северный ветер
Региональные бренды все чаще обзаводятся своими шоу-румами в лучших московских торговых центрах, и это дает возможность не только познакомиться с новыми именами в фэшн-дизайне, но и увидеть яркие произведения интерьерного дизайна от успешных бюро, достигших успеха в своих родных городах и уверенно завоевывающих столичный рынок.
Волна и камень: обзор проектов 20-26 апреля
Новые проекты прошедшей недели – все они, к слову, московские – позволяют говорить об интересе к бионическим формам. Пока что в достаточно простом их проявлении: вас ждем много волнообразных фасадов, изогнутых контуров, а также стилизованные «воронки» бутонов и даже прямые «цитаты» в виде огромных драгоценных камней. Часто подобные приемы кажутся беспочвенно заимствованными, редко – устойчивыми и экологичными.
В ожидании китайской Алисы
Бюро PIG DESIGN по заказу компании NEOBIO, развивающей в Китае сеть оригинальных игровых центров, создало магическое пространство, насыщенное таким огромным количеством удивительных с визуальной и функциональной точки зрения открытий, что его можно использовать в качестве методического пособия для подготовки архитекторов и дизайнеров.
Фасады «металлик»
Небоскреб Wasl по проекту архитекторов UNS и конструкторов Werner Sobek получил фасады из керамических элементов, не только выделяющие его в ландшафте Дубая, но и помогающие затенять и охлаждать его.
Высший уровень
На верхних этажах самого высокого небоскреба Москва-Сити создано уникальное трехуровневое деловое пространство «F-375». Проект разработан студией VOX Architects, не только создавшей авторский дизайн, но и вместе с командой инженеров и конструкторов сумевшей разрешить огромное количество сложнейших задач, чтобы обеспечить беспрецедентный уровень комфорта и технической оснащенности.
Восточный подход для Запада
В Олимпийском парке королевы Елизаветы II в Восточном Лондоне открыт филиал Музея Виктории и Альберта – V&A East. Реализация его здания по проекту дублинцев O’Donnell+Tuomey заняла более 10 лет.
Белые террасы в зеленом предгорье
Бюро «Архивиста» спроектировало гостиничный комплекс для участка на Черноморском побережье между Сочи и Адлером. Архитектурное решение предусматривает интеграцию в сложный рельеф, сохранение природного каркаса и применение инженерных решений, обеспечивающих устойчивость и сейсмобезопасность.
Конопляный фасад
Жилой комплекс на 81 квартиру в Нанте по проекту бюро Ramdam и Palast сочетает конструкцию из инженерного дерева с фасадами из конопляного бетона.
Малыми средствами
Главной архитектурной наградой ЕС, Премией Мис ван дер Роэ, отмечена функциональная «деконструкция» Дворца выставок в бельгийском Шарлеруа, а как работа начинающих архитекторов – спартанские временные помещения для Национального театра драмы в Любляне.