Здание ОАК в Жуковском
Фотография © Алексей Народицкий / предоставлена ТПО «Резерв»
Сложно сказать, почему так произошло. То ли из-за расположения в Подмосковье. То ли потому, что строилось здание долго, 6 лет с 2011 по 2017 год. В процессе руководство ОАК передумало размещать штаб-квартиру в Жуковском, назвав, как одну из причин, нежелание сотрудников выезжать из города; главный офис поместили в Москве на Большой Пионерской, в пространстве вчетверо меньшего размера. В Жуковском, в здании, рассчитанном на 1500 сотрудников, обосновалась, в частности, компания Red Wings. В эксплуатацию здание сдали в 2018 году, но территорию очистили только сейчас – поэтому сейчас и появилась съемка, которую мы вам показываем.
Тем не менее здание спроектировано и реализовано как штаб-квартира: с необходимыми техническими тонкостями, конференц-залом, 25-метровым бассейном. С планировкой, которая совмещает open space и кабинеты руководства, причем у президентского кабинета реализована открытая терраса с видом на аэродром. А атриум представительски просторен, светел и устроен необычно: он энергично расширяется от входа кверху – практически, распахивается, открывая взгляду «срез» на три этажа высоты, с тонкими колоннами и перекрестием лестничных маршей.
В 2011 году проект ТПО «Резерв» победил в закрытом конкурсе на штаб-квартиру ОАК.
Идея здания родилась очень быстро в силу того, что в конкурс нас позвали в самый последний момент. Эскиз мы сделали чуть ли не за одну ночь, принесли и выиграли – насколько мне известно, благодаря сходству плана здания с самолетом типа «стелс»...
Причем впоследствии заказчик настоял на том, чтобы первоначальная идея была реализована полностью: и треугольный козырек, похожий на нос самолета, и консоли. Ради их прочности внутри консольной части мы добавили конструкцию ферм.
Причем впоследствии заказчик настоял на том, чтобы первоначальная идея была реализована полностью: и треугольный козырек, похожий на нос самолета, и консоли. Ради их прочности внутри консольной части мы добавили конструкцию ферм.
Говорящая, летящая форма – это тоже признак штаб-квартиры. Даже ключевой. В данном случае речь не только о контуре плана: все здание похоже на что-то летающее, что прекрасно подходит для офиса группы авиаконструкторских компаний.
Хотя, конечно, это не здание в форме самолета. Мера абстракции соблюдена, и прежде всего благодаря четкому геометрическому построению. Два почти одинаковых протяженных корпуса: длина 85 м, ширина порядка 20 м, – расходятся симметрично оси, перпендикулярной главной здесь трассе, улице Туполева. Угол схода – 36°, одна десятая полного круга. Интересно, имеет ли этот угол какое-то значение в авиастроении – тут вспоминаются лучи на экранах радаров, но какую-либо конкретику мне найти не удалось; однако известно, что 36° это максимальный угол рассеивания для ламп направленного света, таких, которые создают в пространстве пятно, как от фонарика.
Два прямоугольных корпуса не стыкуются напрямую – точка схода лучей, образованных их внутренними фасадами, располагается дальше и описывает контур треугольного козырька над большим балконом в южной части здания.
Простое и элегантное построение. Глядя на план, понимаешь: две линии, которые так легко наводят здесь порядок, расставляя по местам пустое и заполненное, пространство и массу, – в данном случае важнее объема, фабулы, пластики, важнее всего вообще. Как-то даже неожиданно осознавать, что все держится на паре линий. Такая, внезапная легкость основы.
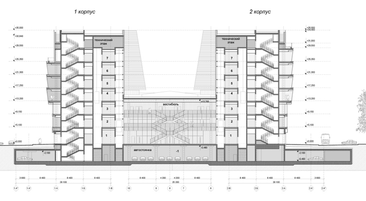
Форма, тем не менее, присутствует: и пластичная, и эффектная, и говорящая тоже. Даже, я бы так сказала, две формы. Первая – основа и материя: те самые два корпуса, составляющие «тело» здания. Примерно половина их объемов по длине – около 40 метров, парит в пространстве двора, опираясь на массивные овальные лестничные башни. Башни пронизывают крылья снизу доверху и выходят на кровлю, зримо обозначая свое присутствие: они видимы и сверху, и снизу, и на просвет, и сбоку, со стороны двора выступают из объема корпусов. Их массивные коммуникационные «трубы» присутствовали в проекте сразу и хорошо видны уже на макете 2011 года.
Башни – сквозные стержни, этакие столпы. Их пластичные круглящиеся объемы, в отличие от умозрительного осевого построения плана, отвечают за реальность, прочность и устойчивость. Они же берут на себя роль ребер жесткости, обеспечивают возможность выноса консолей на 15 метров вперед, и 13-метровую ширину проездов. На внешнем контуре их поддерживает «жирная точка» – одна колонна круглого сечения, диаметр который несколько больше, чем у колонн основной сетки. На плане башни похожи на глаза, а точки колонн – на модный татуаж.
Итак, пространство под половиной длины каждого корпуса проницаемо и для взгляда, и для движения: объемы поставлены на «ноги» – характерный и любимый прием архитектуры XX века, начиная от Корбюзье и Гинзбурга. Первый ярус свободен, во втором лестничные башни соединены с корпусами навесным стеклянным переходом, что позволяет использовать их как удобные альтернативные входы. Переход «прилипает» к третьему этажу, но и тот тоже чуть уже и короче вышележащих. Здесь масса нижних ярусов нарастает, к верху, постепенно.
Здание ОАК в Жуковском
Фотография © Алексей Народицкий / предоставлена ТПО «Резерв»
Тема развита в продольных фасадах средней части, с четвертого этажа по седьмой: их ленты наклонные, расширяются снизу вверх, образуя на срезе – а срез мы можем наблюдать здесь же, на торцах корпусов – силуэт, похожий на схематически нарисованную елку, перевернутую «вверх ногами».
Решение редкое, пока что нечасто встречается. Похожий силуэт можно увидеть в проекте амбулаторного корпуса больницы в Коммунарке, тоже ТПО «Резерв».
Наклонные поверхности дробят отражения, добавляют полос, осветляют и оживляют глубокие тени.
Они же превращают фасад, который мог бы попросту состоять только из ленточных окон, из инертной плоскости в пластический аттракцион. Добавляют интригу. Дополненную ритмом форточек, артикулированных светлыми рамами; первоначально открывающаяся фрамуга должна была занимать большую часть окна, вертикальную, так, чтобы стекло при открывании из наклонного становилось вертикальным; но потом остановились на форточках вверху. На фасадах они тоже немного похожи на глаза; множество глаз.
Если присмотреться, то мы увидим, что угол наклона лент 4–7 этажей – 9° – равен или очень близок углу наклона стен внутренних «оболочек» корпусов со стороны двора. Ну, четвертая часть от тридцати шести градусов основного угла построения плана...
Фасад, вид с севера. Штаб-квартира Объединенной авиастроительной компании
© ТПО «Резерв»
Об этих «внутренних оболочках» надо сказать отдельно – это вторая часть формы.
Если первая – «основа», то вторая больше похожа на некую «накидку» или кожух, наброшенный поверх всех объемов здания. Хочется даже предположить, что первая отвечает за функцию, а вторая за фабулу. Именно «вторая форма» усиливает тему полета, стремления, крыльев, поддерживает сходство с самолетом или птицей. Впрочем она не только наброшена, но и интегрирована, поскольку одна ее часть это диагональные выступы стеклянных стен, прикрытые ламелями, другая решетки пергол на кровлях, третья козырек-«клюв», четвертая – кровля входного атриума, «хвост».
Цельность фигуры «от носа до хвоста» прочитывается и при взгляде сверху, и на продольном разрезе, где ферма козырька продолжает линию кровли атриума, а «крылья» поднимаются вверх по фасаду.
Продольный разрез. Штаб-квартира Объединенной авиастроительной компании
© ТПО «Резерв»
Вся фигура в целом, во-первых, состоит из полосатой штриховки: ламели, полоски, складчатая кровля. Во-вторых, она составлена из плоскостей, напоминающих оригами. То ли челнок из космической фантастики с приподнимающимися кверху крыльями, кажется, такие были в «Звездных войнах», то ли бумажный журавлик «приземлился» поверх офиса авиаконструкторов. В принципе, это логично: внутри проектируют самолеты, а здесь некий образ самолета как будто «соткался» из инженерных идей – можно так себе это представить. Сюжет, опять же, присутствовал с первоначальном проекте: внутренний контур «обволакивает» балки корпусов, а те «выстреливают» из кожуха вперед.
Ламели на боковых фасадах и перголах к 2022 году были установлены почти полностью – так что «птичий» силуэт отлично прочитывался, как и наложение одной формы на другую, и отражение кровли, дающее в ракурсе дополнительные призрачные крылья.
Но сейчас ламели на внутренних боковых фасадах почему-то убрали. Будем надеяться, что их вернут и силуэт «крыльев» вернет себе целостность.
Тем не менее прорезающая фасад диагональ сама по себе обладает «летящим» абрисом, и в ракурсе вида «в прострел» через двор из-под одного корпуса в сторону другого, хорошо заметен оригами-эффект: здание кажется сложенным из нескольких плоскостей, как бумажная – или стеклянно-металлическая – фигура. Надо ли говорить, что и здесь геометрическое построение углов играет свою роль: угол между скосом кровли атриума и диагональю выступа на фасаде – прямой, что дает нам почувствовать взаимосвязь линий и наклона плоскостей, предопределенность построения, где одно цепляется за другое.
Ну и... Наклон кровли атриума похож на наклон трапа космического челнока.
Хочется сказать – такова его механика.
Взгляд из-под южного крыла в сторону северного. Здание ОАК в Жуковском
Фотография © Алексей Народицкий / предоставлена ТПО «Резерв»
А где механика, там и динамика. Внутренний порыв весьма ощутим вне зависимости от наложения штриховки...
В южной части, где нет консолей, фасады трех нижних «стилобатных» ярусов решены как гармошка треугольных эркеров. Одна половина треугольника «глухая», другая прозрачная. Это один из любимых приемов Владимира Плоткина, отработанный уже в Сколково Парке; да и зубчатый стилобат ЖК «Лица» тоже можно вспомнить.
В данном случае стеклянные грани развернуты к югу, улавливают и свет, и виды на лес.
«Ступенчатая» кровля атриума сродни «гармошке» на фасадах, только тут непрозрачные плоскости горизонтальные, а прозрачные, стеклянные – наклонные (49°) и с подогревом.
Разрез кровли атриума. Фрагмент. Штаб-квартира Объединенной авиастроительной компании
© ТПО «Резерв»
Если бы все поверхности были стеклянными, горизонтальные бы надо было часто мыть. А так – внутри они белые, а по стеклу вода стекает круглогодично и очищает его.
Принцип кровли, таким образом, подобен шедовому, но мельче в масштабе. Несмотря на то, что атриум раскрывается к северо-востоку, стеклянные полосы улавливают достаточно света, а белые конструкции внутри рассеивают его. Сложно сказать, следовало ли помещать в торцевых стенах контрельефные контуры самолетов, а вот белые бумеранги, прикрепленные к перекрытию, выглядят весьма уместно.
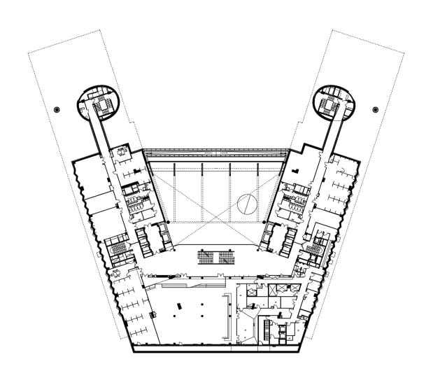
Но самое интересное в решении атриума это его визуальная открытость: через стекло фасада образуется связь с улицей, а балконы внутри, срезанные одной плоскостью сечения, как уже было сказано, усиливают ощущение раскрытия – даже «распахивания» – пространства. И одновременно – экспозиции интерьера всей стилобатной части в сечении одной плоскостью.
Тут примечательно устройство парадной лестницы. С одной стороны, она висит, диагонально расчерчивает центр, с другой – мы ее видим в профиль, тоже как будто в разрезе. В традиционном решении главная лестница в трехсветном вестибюле выглядела бы иначе, по-барочному обнимала бы пространство, вилась бы вокруг него, а тут – простой срез. Но и он создает интригу, только другого плана: перед нами оживает чертеж. Да и само по себе отличие этой мизансцены от «классического» решения тоже увлекает.
Поперечный разрез (3–3). Штаб-квартира Объединенной авиастроительной компании
© ТПО «Резерв»
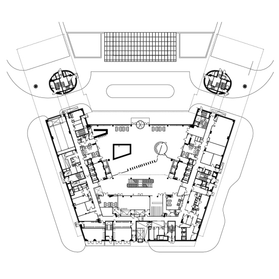
Здесь, в южной части трапеции, с первого по третий этаж собраны кафе, столовая и конференц-зал с большими переговорными по сторонам. Важно, что они раскрываются не только в атриум – через внутренние балконы и лестницу, но и наружу. На южном фасаде мы видим балкон, на который можно выйти из столовой и большую, восьмиметровой глубины, террасу при конференц-зале, как раз под тем знаковым козырьком, в котором сходятся два главных луча планировочного построения.
Продольный разрез. Фрагмент. Штаб-квартира Объединенной авиастроительной компании
© ТПО «Резерв»
Здесь есть и другие открытые террасы: о большом балконе для главного кабинета уже говорилось, но потенциально эксплуатируемыми могут быть и плоская кровля атриума между корпусами, и их крыши.
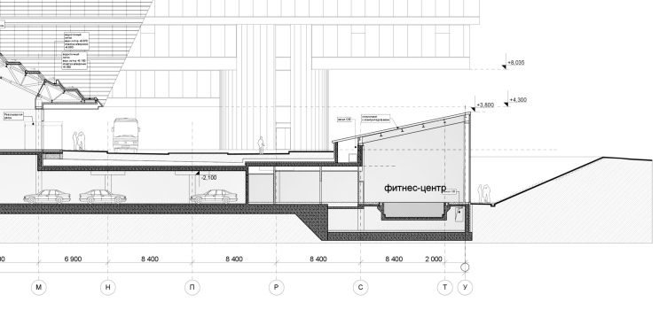
Но и это еще не все: штаб-квартиру дополняет фитнес-центр на 78 человек с бассейном 25 х 6 метров. Он вынесен вперед, к улице Туполева, и углублен в землю: раздевалки и спортзалы расположены на уровне подземной парковки, а вот над бассейном возвышается световой фонарь – стеклянная кровля, наклоненная к югу для уловления света; стекло тут с электроподогревом, как и на атриуме. Северный, входной фасад фитнеса тоже полностью стеклянный и обращен к приямку – скошенному склону с пандусом и лестницами.
Продольный разрез. Фрагмент. Здание финтнес-центра. Штаб-квартира Объединенной авиастроительной компании
© ТПО «Резерв»
Так что пространство бассейна получает достаточно, даже много, естественного света. А во дворе образуется любопытная «встреча» двух скошенных поверхностей: одна, ступенчато-полосатая, над атриумом, другая – над бассейном.
Здание ОАК в Жуковском
Фотография © Алексей Народицкий / предоставлена ТПО «Резерв»
На фотографиях, с фасадной стороны, можно увидеть выступающую кверху часть фитнес-центра – внизу, между двумя крыльями. Как будто объем фитнеса это клавиша, управляющая движением здания.
Здание ОАК – не будем забывать, что идея родилась почти целиком в конце 2011 года – логично встраивается в ряд других работ Владимира Плоткина. Переклички со штаб-квартирой Аэрофлота (2004–2010) объясняются авиационной темой и статусом штаб-квартиры, но здания не одинаковые: да, там и там можно увидеть крылья, в обоих случаях композиция построена на паре двух корпусов с атриумом, внутренним двором и отражениями, даже опоры лестничных башен под крыльями присутствуют в обоих случаях. Но, во-первых, сам офис Аэрофлота, скомпонованный как «катамаран», укоренен в другом, еще более раннем здании Плоткина, доме в проезде Загорского (1998–1999). Во-вторых, дальше начинаются отличия, и их, в рамках одной парадигмы, достаточно. Парк Хуамин (2012–2023) родственен офису в Жуковском треугольным построением плана и использованием сеток ламелей – своего рода «вуалей», управляющих восприятием формы, работая на целостность фасада. Но есть и целый ряд других перекличек – хотя бы «елочка» из Коммунарки.
Однако складываются-то все эти вещи в новый, индивидуальный образ. Он отличается большей «складчатостью», работой с плоскостями и углами наклона, даже – в рамках своей закрытой, в силу профессиональной специфики компании, территории – открытостью, «распахнутостью» всего здания, и даже тенденцией к послойному построению или даже «расслоению» стеклянно-металлического объема. Если, к примеру, у офиса Аэрофолота носы были острыми, скошенными, то тут оба торца срезаны прямой плоскостью, что заставляет воспринимать их как отрезки чего-то большего, какой-то бесконечной ленты. Да и форма полета в данном случае воспринимается иначе: как то ли взлет, то ли приземление аккуратное, какое-то даже гравиконпенсированное, приземление; а ведь для самолетов эти моменты жизни – самые важные.


