Небольшое пояснение [UPD 02.07. 19:31]: вчера победителей объявили и вручили им знаки и дипломы от Москомархитектуры. Мэр вскоре, как предполагается, вручит собственно премию – сертификаты на денежную награду, по 1 млн рублей каждому победителю. Это вручение происходит в бывшем доме генерал-губернатора, так премиальный процесс пока что как бы не завершен. Официальное название премии "города Москвы в области архитектуры и градостроительства", неформальное – Архитектурная премия Москвы.
Церемония зато прошла крайне душевно, архитектурный бомонд наличествовал почти полным списком, гостям предлагали даже авторские коктейли от архитекторов-лауреатов.
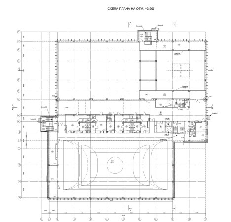
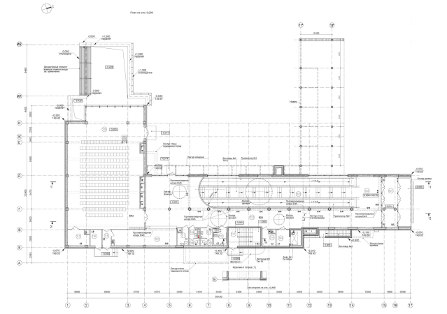
Больница в Коммунарке
Многопрофильный медицинский центр «Новомосковский» в Коммунарке
© ТПО «Резерв»
Владимир Плоткин, чей проект больницы с роддомом в Коммунарке выиграл в номинации «Образование и медицина», сразу же призвал на сцену весь авторский коллектив. Проект победил в конкурсе (см. конкурсную версию), который прошел в 2016 году.
Вручали, к слову, дипломы по двое – Владимира Плоткина наградили Юлия Бурдова из Buromoscow, лауреат прошлогодней премии, и Николай Шумаков, который вначале с экрана, потом со сцены прокомментировал: за что ни возьмется ТПО «Резерв», все отлично получается.
Владимир Плоткин и авторский коллектив проекта здания больницы в Коммунарке
Фотография Архи.ру
Николай Шумаков, президент Союза архитекторов
Фотография Архи.ру
***
Медный дом 3.14
Премию за лучший жилой дом, или нет, вот так: «архитектурно-градостроительное решение объекта жилого назначения» (архитекторы, вам не надоело, язык ведь сломаешь об такие названия) – получил блестящий Сергей Скуратов за «Медный дом» в Донском проезде. Дом, исключительно эстетский, весь состоит из широких откосов, обрамляющих окна под разным углом. Две башни кирпичные, с характерной для Сергея Скуратова растяжкой по цвету и фактурной кладкой, одна – покрыта панелями блестящей меди, как какая-нибудь старинная реторта. Александр Цимайло, вручая диплом, сострил о высотности зданий Скуратова.
Сергей Скуратов, автор дома «Медный 3.14»
Фотография Архи.ру
Сергей Скуратов, впрочем, поднимался на сцену дважды. Ему также присудили победу в новой номинации премии – Медиа-персона года. Жюри ее состояло из журналистов, требовалось выбрать архитекторов, лучше других контактирующих с прессой и вообще – активно действующих в медийном пространстве. Вручала награду главред журнала «Проект Россия» Юлия Шишалова и главный архитектор города Сергей Кузнецов.
Сергей Скуратов сразу озвучил со сцены манифест о наболевшем: хорошо бы сменить вектор происходящего в городе, формировать не отдельные объекты, а комфортный город в целом, чтобы полномочия главного архитектора были больше, и роль архитекторов вообще в проектах – значительнее. «Чтобы не получали уже готовое ГПЗУ», мучаясь потом с тем, как выполнить по-максимуму заложенные в нем требования и создать приличный проект. Затем, уже в качестве медиа-персоны, архитектор на секунду задумался – и повторил почти те же слова: «архитектурному цеху не хватает свободы и самостоятельности <...> воли и смелости у нас больше, чем у иностранных коллег, целеустремленность и бесстрашие мы впитываем с молоком матери <...> мы могли бы делать лучшую в мире архитектуру, нам не хватает свободы», – согласитесь, такие слова стоит процитировать. Ремарка Сергея Кузнецова последовала сразу после: надеюсь, после слов Сергея Скуратова мы не пойдем и не устроим сразу демонстрацию на Охотном ряду... А может и надо, – примерно так отреагировал главный архитектор. Пожалуй, это был самый интересный момент вечера.
Сергей Кузнецов, главный архитектор Москвы
Фотография Архи.ру
***
БЦ «Академик»
Лучшим проектом многофункционального комплекса назван БЦ «Академик» – здание-линза с пиксельным портретом светила науки, уже фактически построенный на проспекте Вернадского архитекторами UNK project. Все ездили по проспекту, все видели здание, так что обсуждение крутилось уже вокруг того, как оно воспринимается. Прозвучало: ехал мимо, удивился, захотелось вернуться изучить, что же это такое. Серьезная похвала. Здание, действительно, притягивает взгляд и удивляет – то ли там можно узнать Владимира Ивановича, то ли нет, но тень какого-то академика определенно маячит. Но главное – оно тонкое, белое, простое, но постоянно изменяемое, совершенно не давит, но оторваться невозможно, как будто в суетной застройке юго-запада образовался какой-то иной для Москвы тип материи.
Юлий Борисов, UNK project, на сцене
Фотография Архи.ру
***
Вход в зоопарк
В номинации спортивных и культурно-просветительских оказалось два победителя. Один – новый вход в зоопарк мастерской Юрия Виссарионова, который прокомментировал свой проект так: идеальный зоопарк это не зоосад, где звери в клетках, это просто парк, место, где можно побыть в тишине и отдохнуть, отключиться от стрессов городской жизни.
Многофункциональный ФОК в Покровском-Стрешневе
Небольшой и достаточно лаконичный, но с фирменной «по-асадовски» яркой решеткой ламелей на фасаде.
Александр Асадов не только вывел на сцену весь авторский коллектив, но и разделил премию пополам, вручив сине-зеленый знак ГАПу, сам взял в руки только диплом, что выступление получилось одним из самых артистичных. Впрочем, в той или иной мере артистичными в этот вечер были все – тема-то приятная.
Андрей Гнездилов вручает премию Александру Асадову
Фотография Архи.ру
***
Жюри состоит из членов архсовета. Заявку на участие может подать любой московский проект, получивший АГР в предыдущем – в данном случае 2018 – году. Номинации с нынешнего года гибко плавающие, теперь их формируют после отбора номинантов, что позволит премии корректировать политику в соответствии с материалом и даже рассчитывать на появление новых функций. В 2019 среди финалистов – 21 проект, номинаций – четыре. Награда вручалась с 2012 года как премия архсовета, с 2017 – как Архитектурная премия Москвы. Сайт премии.
