Школа организована Комитетом градостроительной политики Ленинградской области при содействии Совета по архитектуре и градостроительству ЛО и Северо-Запада РФ Санкт-Петербургского союза архитекторов. Партнеры: «ЛСР. Стеновые», «Краски Фридлендеръ», ГК «Невский Альянс», «BERKANO», «Брусника».
Организаторы представили школу как «экспериментальную площадку для формирования межотраслевого сотрудничества студентов и выпускников вузов различных направлений на основе решения архитектурно-градостроительных, дизайнерских и управленческих задач».
В этом году школа проводилась во второй раз. Первое аналогичное архитектурное событие проводилось в 2024 году в поселке Колтуши.
Место проведения в этом году: деревня Низино Ломоносовского района Ленинградской области. Выбор и смена локаций связаны с решением одной из важных для Ленинградской области практических задач: ежегодно в рамках конкурсного проектирования силами межвузовских студенческих команд прорабатывается архитектурно-градостроительный потенциал той или иной территории, находящейся в зоне нового туристического пояса области. Каждая такая локация интересна своим историко-культурным наследием, рельефом, панорамными видами и природными достопримечательностями.
В этом году большинство студентов прошли предварительный отбор по анкетированию, учитывающему навыки участия в конкурсах, успехи и награды за учебные проекты. Участники представляли все вузы Санкт-Петербурга, где готовят будущих бакалавров, магистров и специалистов в области архитектуры и градостроительства. Студентов распределили так, чтобы в каждую команду входили студенты младших и старших курсов из разных вузов Санкт-Петербурга, занимающихся подготовкой архитекторов, градостроителей, дизайнеров.
Основные темы для проектирования были связаны с концепцией застройки территории деревни Низино, концепцией территориального развития поселка Троицкая гора и проектом благоустройства территории школы-интерната «Красные Зори».
Показываем проекты победителей.
Дипломы 1 степени
Концепция территориального развития поселка Троицкая гора
Команда под руководством Юсупова И.А.
Концепция территориального развития поселка Троицкая гора Диплом 1 степени.
© Команда под руководством Юсупова И.А.
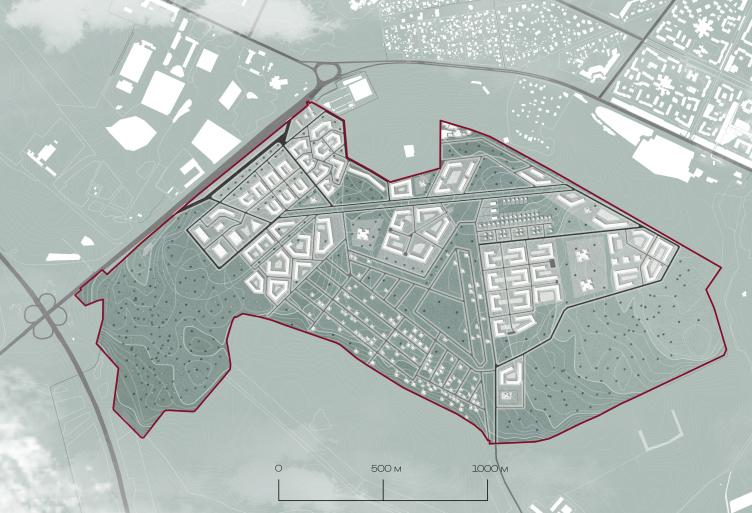
Концепция застройки территории деревни Низино
Команда под руководством Манова О.В.
Команда под руководством Гречухиной Е.В.
Проект благоустройства территории рекреационной зоны вдоль Старопетергофского канала. Разработка дизайн-кода территории
Команда под руководством Манова О.В.
Проект благоустройства территории школы-интерната «Красные зори»
Команда под руководством Едемского И.В. и Маковой И.В.Команда под руководством Лушниковой М.В. и Мухлисовой Р.Р.
Дипломы 2 степени
Концепция территориального развития поселка Троицкая гора
Команда под руководством Гречухиной Е.В.
Концепция территориального развития поселка Троицкая гора. Диплом 2 степени
© Команда под руководством Гречухиной Е.В.
Концепция застройки территории деревни Низино
Команда под руководством Кораблева А.Е.
Проект благоустройства территории рекреационной зоны вдоль Старопетергофского канала.
Разработка дизайн-кода территории
Команда под руководством Гречухиной Е.В.
Проект благоустройства территории школы-интерната «Красные зори»
Команда под руководством Атаянца Б.М. и Маковой И.В.Команда под руководством Юсупова И.А. и Мухлисовой Р.Р.
Проект благоустройства территории школы-интерната «Красные зори». Диплом 2 степени
© Команда под руководством Юсупова И.А. и Мухлисовой Р.Р.
Дипломы 3 степени
Концепция территориального развития поселка Троицкая гора
Команда под руководством Настаса Д.А.
Концепция территориального развития поселка Троицкая гора. Диплом 3 степени
© Команда под руководством Настаса Д.А.
Концепция застройки территории деревни Низино
Команда под руководством Бродача М.А.
Проект благоустройства территории рекреационной зоны вдоль Старопетергофского канала. Разработка дизайн-кода территории
Команда под руководством Настаса Д.А.
Проект благоустройства территории рекреационной зоны вдоль Старопетергофского канала. Разработка дизайн-кода территории. Диплом 3 степени
© Команда под руководством Настаса Д.А.

