Вискикурня; вид от музея коньяка
© TOTEMENT/PAPER
Вискикурня; вид от музея коньяка
© TOTEMENT/PAPER
Теперь на соседнем с коньячным заводом участке будут производить виски. Восточнее территории коньячного завода строится виски-курня, первое в России производство такого рода, которое к тому же будет работать на российском сырье, перегоняя ячмень в спирт и затем превращая его в благородный шотландский напиток, который некоторые ценители считают самогонкой, другие же, напротив, очень уважают; особенно англоманы, а таковых сейчас большинство.
Заказ на здание по производству виски также поручили Левону Айрапетову и Валерии Преображенской, продемонстрировавшим в предыдущем проекте профессиональный перфекционизм. Архитекторы же, давно «вжившись» проблематику территории, увидели в новой задаче необходимость как продолжить начатый ансамбль, так и показать различие зданий, и проявить специфику нового напитка и нового производства. Заметим, что в планах строительство склада для виски – ангара, в котором напиток будет выдерживаться до готовности, в том числе в специальных дубовых бочках не менее трех лет. Проекта склада пока нет, но известно, что площадь музея 1115 м2, виски-курни 4500 м2, а одноярусное здание склада должно занять порядка 16 000 м2 – объемы растут. В еще более отдаленных планах благоустройство территории; сейчас она тоже очень аккуратна, дорожки чистые, трава подстрижена, все по-европейски ухоженно, как и полагается современному производству, но рука художника фабричного ландшафта пока не касалась.
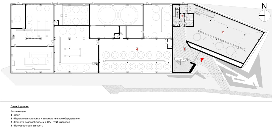
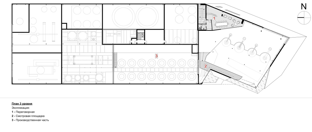
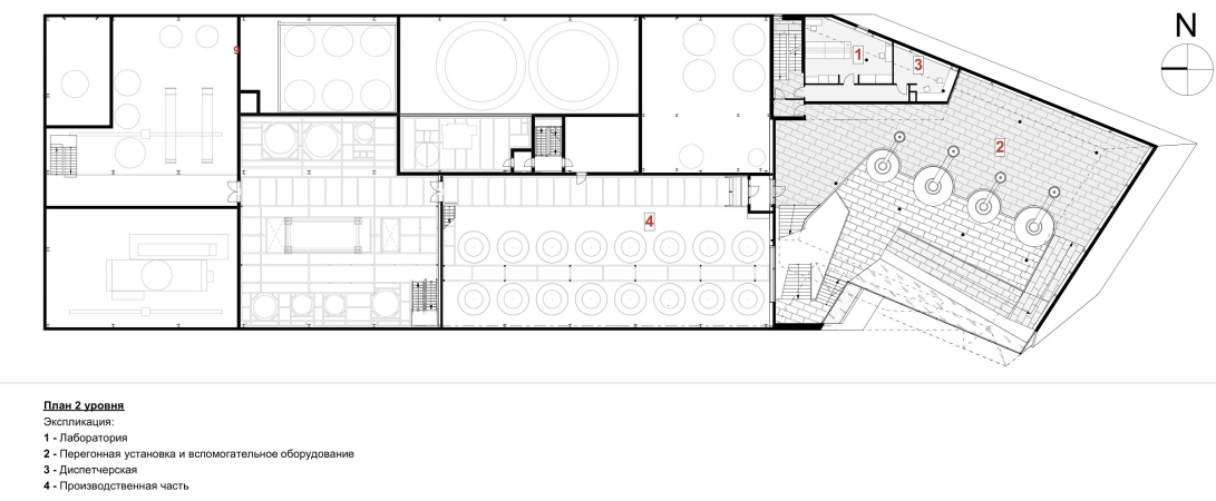
Итак, виски-курня отличается от музея коньяка тем, что большая ее часть отведена производству и доступна всего для нескольких человек, в основном для 1-2 дежурных, которые должны следить за автоматикой, принимать и тестировать сырье. Под производственную часть отведен протяженный металлический ангар, где стоят чаны для разных стадий брожения, между ними мостки, все металлическое, белое; до мелочей продумано удобство и даже красота: архитекторы вспоминают, что из вариантов, предлагаемых итальянскими наладчиками завода, при прочих равных заказчик неизменно выбирал самый эстетичный. Но эта часть – совершенно закрытая.
Ограниченно открытым для посещений будет вестибюль здания, на нем и сосредоточились, в основном, все авторские усилия. Архитекторы TOTEMENT / PAPER трактовали эту часть как своего рода голову – что хорошо читается, поскольку «голова» светится, венчает прямоугольное «туловище», и даже разворачивается в пол-оборота в сторону музея коньяка, выстраивая эмоциональные связи с предшествующей постройкой. «Там [в музее коньяка] две фигуры как бы ведут диалог, может быть, там даже возникает своего рода танец, – объясняет Левон Айрапетов. – А здесь появляется некий чужак, дикий шотландский горец, грубый, брутальный и черный. Приплыл сюда со своим кельтским топором, в татуировке, и осматривается».
Действительно, эффект «приплытия» вполне ощутим, несмотря на то, что корпус прочно стоит на земле – стоит посмотреть на его треугольный, обращенный на юг «нос», напоминающий то ли подлодку, то ли греческую триеру. Собственно длинный корпус похож на фигуру в какой-нибудь шкуре, сходство поддерживает черный цвет и ребристая фактура горизонтальных полос, на которых, как наглядно показывают авторы, будет отлично смотреться снег.
Вискикурня; зимний вид
© TOTEMENT/PAPER
Любопытно, что шотландские ассоциации даны брутально и жестко, не через привычную клетчатую юбку, а через условного горца. Или «Горца». Белые с черным «татуировки», вполне абстрактные, заложены в рисунке мощения перед входом, которое отражается в стекле – на «лице», и в сочетании черного и белого.
Вискикурня; вид от входа на музей коньяка
© TOTEMENT/PAPER
Рисунок шотландки здесь тоже есть, но его надо искать, он спрятан в линиях переплетов витражей и совершенно не бросается в глаза, тут требуется авторская подсказка. Все это правильно, конечно: кому нужны лобовые ассоциации? И в то же время здание отчетливо одушевлено, похоже на замершую фигуру, как поясняет Левон Айрапетов – «оно должно быть как тело зверя, готовое к прыжку. Напряженное, полное внимания, готовое к действию, а не прыгающее и не расслабленное».
видео – презентация проекта:
Повернутая вбок «голова» мне лично напоминает большое вкрапление горного хрусталя в скале. Граненого и полированного, посверкивающего, утром – лучом солнечного света, который попадает внутрь через длинную щель в восточной стене и движется потом в течение дня внутри, как в римском Пантеоне, давая косой свет на разные части интерьера. Вечером и зимой – электрическим светом.
Вискикурня; входная группа
© TOTEMENT/PAPER
Свет подчеркивает драгоценность «хрусталя» и всей его начинки, тем более что здесь, за стеклом, помещены самые ценные части производства – «кубы», в которых виски будет переживать последний этап перегонки, прежде чем будет помещен в деревянные бочки на 3 года. Согласно технологии кубы должны быть из чистой меди и иметь довольно причудливую форму; они напоминают тазы и самовары с картин Шардена, золотисто-красные, округлые. Их форма отчетливо противоречит граненой и тонкой черно-белой «раме», позволяя почувствовать, что это – сокровища, помещенные в некий кристалл. Один из любимых приемов современной архитектуры, создание объемных витрин, подчеркивающих экспонат внутри, в данном случае вполне уместен.
Поиск формы прошел через множество вариантов «витрин» – прямоугольной, круглой с виде стеклянного стакана, и прочих:
Признаю, что окончательный вариант лучше, поскольку в нем есть интрига: внутренность видно, но не целиком.
«Форма «головы» и ее поворот обусловлен соседством с музеем коньяка и функцией здания, – поясняет Валерия Преображенская. – В музее коньяка есть хранилище, а здесь хранилища нет. Поэтому мы вырезали объем, как если бы в нем отпечатался бок коньячного склада напротив. Здания стали как бы частью одной объемной «головоломки», находясь достаточно далеко друг от друга, они связаны перекличкой формы». Еще один прием формированная почти что тайной связи между объемами внутри ансамбля – часть шифра, обусловливающего форму и мотивирующего ее сходства и различия.
С одной стороны, можно и не заметить. С другой, если вглядеться, в объеме «головы» отлично читается объемный отпечаток музея коньяка. Но поначалу все же кажется. что сам хрустальный вестибюль то ли сколот, то ли повернут на шарнире – что, собственно, и придает ему сходство с головой, всматривающейся в окружение. В итоге над входом образовался крутой скос до земли: над головой идущего нависает как металл, так и стекло, под острым углом. В стеклянном выступе, в профиль немного напоминающем клюв, изнутри устроен черный пандус, идя по которому, можно смотреть в стекло почти что под ногами. Выше, в выступе «клюва» – белый балкон, лучшая видовая площадка с видом на музей коньяка. Таким образом части ансамбля тоже «переглядываются», уже глазами посетителей. Балкон внутри держат белые металлические тросы, черный потолок, расчерченный белыми штрихами ламп, поддерживают черные ветвистые опоры (сейчас архитекторы как раз борются за то, чтобы они были достаточно тонкими и изящными). Кроме того, металлическая решетка потолка никак не замаскирована, внутренние стены решены также, как и наружные: покрыты горизонтальными полосами рифленого металла, – всё это подчеркивает единство внешнего и внутреннего, и не дает никаких шансов расслабленности и умиротворенному комфорту, которые обычно свойственны интерьерам. Внутри здесь, пожалуй, атмосфера более напряженная и энергичная, чем снаружи, только что искры не летят. Такое пространство не чуждо вау-эффекта, по-своему оно не уступает интерьерам музея коньяка с его сложными маршрутами и «прострелом» из-под земли в небо.
Графичная игра черных и белых плоскостей и линий в пространстве завораживает, тем более что углы их взаимного расположения очень разные, и при движении восприятие должно будет все время меняться, заставляя нас прочувствовать пространство эмоционально, пережить его. Что можно понять, всё же здесь мы в «голове» фабрики, в своего рода «городке в табакерке», месте, куда могут попасть далеко не все – так оно и должно быть необычным, оправдывать ожидания, рожденные недоступностью. Впрочем, как и говорилось, входной вестибюль – презентационная часть, сюда впоследствии могут пригласить, скажем, бизнес-партнеров. Недаром в восточном углу устроен белый объем переговорной.
Нет никаких сомнений в том, что завод можно было построить с виде алюминиевого ангара, простой коробки. И все же вино в широком смысле, чтобы не использовать странное словосочетание «алкогольные напитки», – своего рода культ, и его часть – множество винокурен и прочих родственных им зданий авторской архитектуры. Тема романтизирована, теперь винокурни (а чем вискикурня хуже?) сродни общественным зданиям, музеям, их посещают экскурсии. Проект Айрапетова / Преображенской – именно такой, его необходимо показывать, он качественная и интригующая оболочка, способная, надо думать, прибавить дополнительной харизмы стартующему производству – так хорошая этикетка может раскрыть суть вина. Ну или виски.




