Конкурсный проект музея современного искусства в Уфе ТОТЕМЕНТ / PAPER
В проекте ТОТЕМЕНТ / PAPER – самое развернутое описание, касающееся как художественного замысла, так и особенностей предлагаемой конструкции, деталей берегоукрепления и работы с известковыми прибрежными грунтами, в целом устойчивыми, но способными стать мягче при намокании. Авторы показывают не только основной вариант, но и предварительные версии, в которых объем музея состоит из большего числа этажей-«слоев», делающих здание похожим на стопку книг и еще, немного, – на игру Jenga.Итоговый вариант, с одной стороны, лаконичнее, – с другой стороны, сложнее, поскольку в нем авторы сопоставляют два противоположных подхода к форме. И не просто сталкивают контрастно, но, согласно одному из своих любимых приемов, «проращивают» одно сквозь другое.
В авторской экспликации сказано, что музей современного искусства – это центр коммуникаций и для людей, и для идей, – но он должен быть не тупиковой точкой схода, а перекрестком. По словам Левона Айрапетова и Валерии Преображенской, им не близок ни подход «современного движения» в тех случаях, когда оно «жестко рвет связи во времени», ни традиционалистский подход, построенный лишь «на заботе об идее сохранения».
Таким образом, главной идеей проекта становится диалог и взаимодействие: «зачастую противоположных, движений, идей, культур, смыслов и форм» – реки и горы (склона), светлого и темного, Запада и Востока, и даже «модернизма и необарокко». Последнее, на мой взгляд, особенно важно и интересно, поскольку, как кажется, многое объясняет и позволяет взглянуть на проект с точки зрения собственно формы.
Две основные пластические темы выражены, одна – белой горизонтальной пластиной, которая вытянута вдоль бровки склона и нависает над ним консолью, выступая особенно далеко и эффектно западным углом. С этой стороны кажется, что белую пластину держит на себе некая вырастающая из склона гигантская рука. Или корень.
Архитектурная концепция музея современного искусства в Уфе. Вид с юго-запада
© TOTEMENT/PAPER
Отчасти предложенная форма может напомнить известковую скалу, где один, белый, слой прочнее, а железистый красноватый мягче и выветрился, образовав причудливое сочетание уступов и выступов. В основании «медной ноги» – плиты, похожие на каменные «цветы пустыни», усиливающие и укрепляющие склон, подчеркивая заодно его сходство с меловой горой. На нижней из таких плит – открытая смотровая площадка.
Если смотреть сверху от сквера и Дома правительства, белый ярус будет первым, именно в нем образован глубокий сужающийся вход-портал, светящийся по вечерам.
Архитектурная концепция музея современного искусства в Уфе. Вид с севера
© TOTEMENT/PAPER
Архитектурная концепция музея современного искусства в Уфе. Вид на вход в музей
© TOTEMENT/PAPER
Строго говоря, это даже не углубленный портал и не лоджия – а скорее крытая площадь-улица, пронизывающая белый объем поперечно, «втягивающая» посетителей из города внутрь, ведя их от входа прямо к кафе и лестнице на второй ярус, к «капитанскому мостику» смотровой площадки.
Архитектурная концепция музея современного искусства в Уфе. Вид с юго-востока
© TOTEMENT/PAPER
Белый объем – условный «модернизм», но ТОТЕМЕНТ / PAPER не были бы собой, если бы он не стал – даже не трапецией, а четырехугольником без прямых углов и без единой параллельной линии; однако контуры достаточно спокойные и снаружи действительно будет казаться, что форма – скорее прямоугольная, «правильная», лишь со слегка акцентированным, вытянутым вперед, углом.
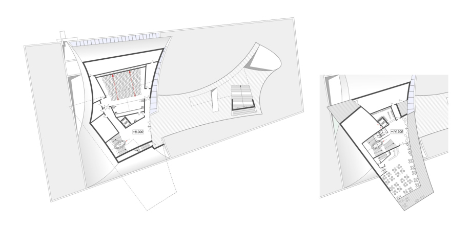
Архитектурная концепция музея современного искусства в Уфе. План 1 этажа
© TOTEMENT/PAPER
Над белым «параллелепипедом» вырастает «голова» – плоская, повернутая под углом, с медным отливом, как и «нога» под ним. В целом создается впечатление, что вырастающая из склона «живая» красноватая материя прорастает сквозь лаконично-модернистское здание, нанизывая его в процессе на себя, как воротник, чтобы затем «оглядеться» и приступить к созерцанию панорам реки и противоположного берега. В «голове» расположен, что вполне предсказуемо, ресторан с панорамным балконом на три стороны.
Архитектурная концепция музея современного искусства в Уфе
© TOTEMENT/PAPER
При этом у тонкой плоской головы есть вполне заметная «шея» – сходство с существом, каким-нибудь героем, скажем так, Хуана Миро, приобретшим трехмерные объемы, вполне ощутимое.
Архитектурная концепция музея современного искусства в Уфе. Вид с запада
© TOTEMENT/PAPER
Если белый объем, который авторы ассоциируют и с рекой Белой, и с известным понятием «чистого листа», решен подчеркнуто просто: светлые стены, вертикальные рельефные полоски – то «темный», «живой» объем, из которого вырастает «голова», конечно же, скульптурен и подвижен: изгибается, отклоняется, поворачивает любопытный «нос».
Надо однако заметить, что, помимо буквального взаимопроникновения двух форм и подходов с противоположными пластическими характеристиками, авторы предлагают и другой тип диалога – взаимовлияние между ними. Строго говоря, если бы два подхода хотелось в прямом смысле столкнуть, можно было бы пронзить белый куб чем-то смолянисто-пузыристым, но здесь не так. Здесь каждая форма получает что-то от соседа: белый объем свои скошенные стены, а «темный» – смягченный естественный оттенок и в то же время некоторую сдержанность изгибов, нарисованных если не по циркулю, то по параболе. И планы, и разрезы сформированы гибкими дугообразными сопряжениями, что заставляет вспомнить всплывшее выше понятие «необарокко» – примерно такими линиями оперировал и Борромини, это не произвол, а сложная геометрия.
В плане и объемном построении взаимопроникновение двух типов формы дает внутренние дворики, световые колодцы, двусветные интерьеры и нависающие консоли – богатый набор пространственных впечатлений, сопоставляющий разную степень освещенности и состояний между «внутри» и «снаружи», и множество разнообразных способов передвижения, как для сотрудников, так и для посетителей.
Архитектурная концепция музея современного искусства в Уфе
© TOTEMENT/PAPER
На кровле «параллелепипеда», к востоку от «головы», появляется амфитеатр на белом дугообразном основании – здесь опять «темная» и «светлая» материя оказываются в контрапункте.
Архитектурная концепция музея современного искусства в Уфе. Кровля «белого параллелепипеда». Вид с юго-востока
© TOTEMENT/PAPER
Как и их давние предшественники, архитекторы барокко, авторы уделяют много внимания окружающему здание пространству – с одной стороны, формируя подходы, обходы, точки восприятия и открытые общественные пространства вокруг здания, а с другой стороны, подчеркивая эффект его «прорастания» из склона. К примеру, плитам у основания под консолью вторят плиты, формирующие постепенный спуск на пути от города перед входом. С обеих сторон возникают лестницы и видовые платформы, превращающие ближайшее окружение музея в его логическое продолжение.
Архитектурная концепция музея современного искусства в Уфе. Вид с северо-востока
© TOTEMENT/PAPER
Архитектурная концепция музея современного искусства в Уфе. Эскиз
© TOTEMENT/PAPER
Архитектурная концепция музея современного искусства в Уфе. Эскиз
© TOTEMENT/PAPER
Не меньше внимания уделено дальним видовым точкам – к примеру, тому, как музей будет светиться со склона ночью,
Архитектурная концепция музея современного искусства в Уфе. Вид с моста через реку Белая
© TOTEMENT/PAPER
...и его отношениям с городом: авторы продумывают «путь к музею», по центральной улице Ленина через одноименный сквер Ленина, называют его «городской рекой» или ARTMILE – расстояние от «нулевого километра», от которого начинается маршрут, до музея как раз чуть меньше английской мили. Согласно замыслу, путь должен объединить существующие культурные центры, которых, признаться, немало, поскольку речь о городском центре, и создать новые, а также добавить в городскую среду цвет.
ARTMILE. Схема включения музея в ткань города. Архитектурная концепция музея современного искусства в Уфе
© TOTEMENT/PAPER
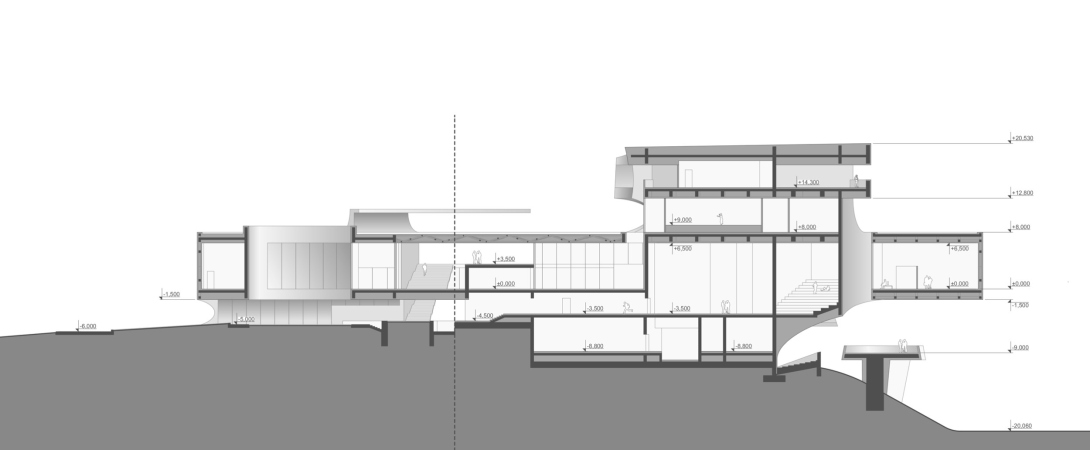
Конструкция здания предложена гибридная: железо-бетонное ядро и консоли на металлических балках – конструктивная схема представляет собой красивый сложный «узел», как и планы здания, как и устройство его внутреннего пространства.
Архитектурная концепция музея современного искусства в Уфе. Конструктивные решения
© TOTEMENT/PAPER
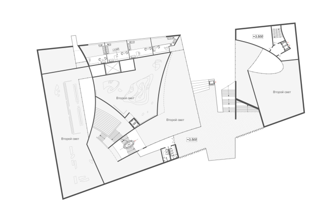
Архитектурная концепция музея современного искусства в Уфе. Функциональное зонирование
© TOTEMENT/PAPER
Архитектурная концепция музея современного искусства в Уфе. Функциональное зонирование
© TOTEMENT/PAPER
Тот же подход, сродни абстрактному сюрреализму, суммирующему мозаику функций и пространств, отражен в логотипе музея, предложенном архитекторами ТОТЕМЕНТ / PAPER.
Архитектурная концепция музея современного искусства в Уфе. Стиль и оформление
© TOTEMENT/PAPER
Архитектурная концепция музея современного искусства в Уфе. Стиль и оформление
© TOTEMENT/PAPER
Архитектурная концепция музея современного искусства в Уфе. Стиль и оформление
© TOTEMENT/PAPER
***
Очевидно, что Музей современного искусства в Уфе в предложении Левона Айрапетова и Валерии Преображенской представляет собой характерный пример развития их почерка и подхода к форме, склонном к тесному переплетению пластики и смыслов, выражению одного через другое, также как и к осмыслению контрастов. Примененные авторами в описании эпитеты очень к нему подходят: оно вырастает в равной степени из склона, из городского пространства и из образа реки, усиливая свойства всех составляющих образа и играя на их сочетании.Надо заметить, что общие особенности площадки и общая задача сделали все конкурсные проекты в чем-то похожими между собой: у всех авторов присутствует консоль, зрелищно «зависающая» над склоном, изобилие видовых площадок и общественных пространств, связь с городской тканью и WOW-эффект. Проект Левона Айрапетова и Валерии Преображенской – самый «лепной», скульптурный и «одушевленный», отличается сложностью пластической проработки, также как и детальной работой с ближним и дальним окружением. Заявленная авторами нацеленность на «перекресток» культур и прочего взаимодействия – не просто слова, идея пронизывает проект целиком, диалогичность определяет и форму, и пространство.




