В западной половине «дольки», которую плавно огибает Москва-река, работает девелопер ASTERUS, и она запланирована принципиально многофункциональной: компания определяет свою концепцию как WORK.LIVE.PLAY.LEARN – район должен стать «полицентром», местом, где можно жить, учиться, гулять, заниматься спортом и работать, передвигаясь, преимущественно, пешком.
Позитивный и современный подход к развитию мегаполиса.
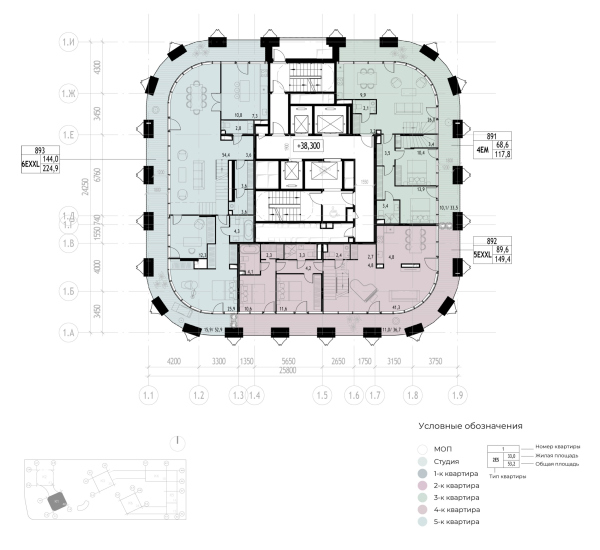
Жилой район ÁLIA
© АПЕКС / ASTERUS
Главный «узел» мест приложения труда – бизнес-парк «Ростех-Сити», реализованный по проекту SOM; они также разработали мастер-план всей территории. Одно из заметных спортивных сооружений – Чкалов Арена, реализовано по проекту АБ «Меерсон и Воронова». Ну а главное – здесь продолжают строиться жилые кварталы: I и II очереди реализованы, III очередь в процессе. Они разновысотные, комбинируют кирпич с серебристым и золотистым металл, который, благодаря рельефным откосам, дает отличные солнечные зайчики.
Этим летом Москомархитектура согласовала проект IV очереди ÁLIA.
Его авторы – архитекторы компании АПЕКС; они не впервые работают с районом ÁLIA, в частности, адаптировали концепцию SOM для бизнес-парка.
Четвертая очередь: местоположение в составе жилого района ÁLIA
© АПЕКС / ASTERUS
Однако сейчас проект нового квартала – их авторская работа, начиная от концепции. Работой руководила Елена Струговец.
Елена Струговец, главный архитектор и партнер, Проектное бюро АПЕКС
Идея поиска гармонии между человеком и природой – не нова, но на эту тему всегда будет что сказать. Концепция жилого комплекса Алия – тому подтверждение. Представьте себе берег озера, усыпанный водяными лилиями, представьте этот цветок – одновременно прочный и хрупкий, плотный и нежный. Образное решение фасадов вдохновлено этим образом. Оттенки кирпича переходят от теплых до глубоких серых, создавая при этом лаконичное сочетание с природным окружением.
Использование материалов с разными фактурами, таких как анодированный металл, стекло, бетонная плитка под кирпич, фибробетон, – позволяет добиться большего разнообразия фасадных и образных решений. Цветовая гамма теплых оттенков позволит людям чувствовать себя уютно в ритме жизни магаполиса.
Использование материалов с разными фактурами, таких как анодированный металл, стекло, бетонная плитка под кирпич, фибробетон, – позволяет добиться большего разнообразия фасадных и образных решений. Цветовая гамма теплых оттенков позволит людям чувствовать себя уютно в ритме жизни магаполиса.
Участок IV очереди расположен южнее Чкалов Арены, лучом вытянут параллельно его южному фасаду, от бизнес-парка в сторону реки и набережной. Пропорции – протяженные, с отношением сторон порядка 0.27. Такие площадки считаются сложными, требуют размышлений и идей.
В данном случае идея состоит вот в чем: авторы превратили протяженный участок в «развертку», последовательно, шаг за шагом, разместив на нем разные типы застройки: от кирпичных кварталов до стеклянно-алюминиевых башен. Как будто отразили историю смены проектных предпочтений города Москвы в миниатюре.
Ближе к центру территории – относительно невысокие, по 14 этажей, дома, соединены в квартальную рамку. Их фасады варьируют оттенки кирпича от бежевого до коричневого. Затем, примерно в середине, появляются две кирпичные башни: одна примыкает к северной перемычке квартала, а вторая, южная, поставлена отдельно.
Четвертая очередь жилого района ÁLIA
© АПЕКС / ASTERUS
Ближе всего к воде – две башни до 144 метров в высоту.
Получается три шага с постепенным нарастанием высоты и два основных блока с приватными дворами: башни у реки класса бизнес, квартал и его башни – класса комфорт. Между ними – общественное, открытое для города пространство площади, причем на границе двора бизнес-класса появляется отдельный небольшой объем ресторана, с изогнутым планом, напоминающим фасолину или бумеранг. Войти в него можно будет как из двора, так и с площади.
Объем ресторана за стеклянной перегородкой у подножия «больших» башен. Четвертая очередь жилого района ÁLIA
© АПЕКС / ASTERUS
Итак, дома восточной части – секционные, разных оттенков кирпича, поверхность лишь слегка оживляют белые балконы обтекаемой формы. Это фоновый подход – 70, а не 30 процентов из известной книги.
В башнях средней части кирпич краснее; здесь появляются асимметричные вставки-пятна, выемки террас. Они – пропилеи восточного двора, они же служат «ступенькой», позволяющей нарастить высотность плавно: в одной 94 м, в другой классические 100 метров.
На разрезе хорошо видно, насколько поступательно нарастает высота.
И наконец, – крещендо – стеклянно-алюминиевые башни.
Их парность рифмуется с парой кирпичных домов, но градостроительно и образно башни реагируют на воду реки. На фасадах преобладает стекло и вертикали. Рельефно выступающие пилоны, похожие и на модернистские ребра, и на готические контрфорсы, плавно вогнуты в духе стримлайна. Они серебристо-металлические, а по центральной оси прочерчены золотисто-латунным желобком. Внизу ребра шире и вперед выступают сильнее, по мере повышения плавно растворяются, становятся тоньше, уменьшают вынос – как у некоего металлического цветка.
Четвертая очередь жилого района ÁLIA
© АПЕКС / ASTERUS
Вверху силуэт каждой башни заметно скошен вниз, что придает паре сходство с кремлевским зубцом, но очень большим – и распределенным в пространстве. Тема, по понятным причинам, популярна в Москве: в новых проектах такого рода скос появляется все чаще. Думаю не ошибусь, если предположу, что одним из первых экспериментов по исследованию потенциала скошенного силуэта был Дом туриста на Ленинском проспекте.
Впрочем, там аналогия с «ласточкиным хвостом» не просматривалась, там скосы смотрят в одну сторону – а в данном случае форма приобретает дополнительные оттенки. Срединным башням-пропилеям «от кремлевской стены» достался кирпич, а речным башням – «зубец».
С другой стороны, башни смогут, вероятно, служить маяком в речной панораме, поскольку их высота – уже не около ста, а 144 метра. И силуэт не однозначен, в разных ракурсах он будет варьироваться, совмещаться и разделяться.
Однако самое интересное в стеклянно-алюминиевых башнях это не силуэт, – а расположение больших двухуровневых квартир: на уровне 12–16 и 15–16 этажей. Именно их террасы образуют золотистую перемычку-пояс обеих башен, самый яркий акцент их пластики.
Четвертая очередь жилого района ÁLIA
© АПЕКС / ASTERUS
«Талия» террас – свежий для Москвы прием, и он заслуживает отдельного рассмотрения. На высоте 12 и 15 этажей по контуру каждой башни образовано углубление. Пилоны не прерываются, поскольку они «держат форму» визуально и конструктивно, образуя внешнюю часть несущего каркаса башен. Но за ними – глубокий балкон; внутри – стеклянная стена, высотой на два этажа, скошенная вверху – если посмотреть на разрез, то он раскрывается, как цветок.
Очевидно, что золотистость будет зависеть от включенного в двухъярусных квартирах электричества, чередуя свет и тень. Трактовка темы будет не столь уж определенной – что хорошо, в Москве в последние годы много экспериментируют с золотистыми оттенками, самое время переходить на нюансы, что мы, по-видимому, и наблюдаем.
Высота гостиных в двухъярусных квартирах – 6.6 метра при высоте стандартного этажа 3.3, так что в глубине они разделяются на полноценные два яруса. Когда-то, говоря о доме в Коробейниковом переулке, Григорий Ревзин сравнил такие вкрапления с городскими виллами, встроенными прямо в объем дома, – и в данном случае сопоставление тоже актуально, только «виллы» выстроились на своих этажах в регулярные ряды.
Премиальные двухуровневые квартиры в башнях. Аксонометрии.
Четвертая очередь жилого района ÁLIA
Четвертая очередь жилого района ÁLIA
© АПЕКС / ASTERUS
Тем не менее светиться пояса, вероятно, будут, особенно ночью.
Четвертая очередь жилого района ÁLIA
© АПЕКС / ASTERUS
Продолжая разговор о гибкости, надо сказать, что книзу ребра башен закругляются, отчего тоже напоминают растение; между светящимся ярусом лобби и «талией» террас возникает перекличка – дома растут как металлические «цветы», но наглядность бионических ассоциаций сдержанна, не слишком акцентирована и не режет глаз, что тоже надо признать положительным моментом. Энергия некоего упругого роста ощущается, но башни не притворяются каким-нибудь лотосом или бамбуком, держатся в рамках скорее хайтека, нежели бионики.
Итак, северо-западный «луч» новой очереди выстраивает разные виды застройки последовательно и иерархически: меняя класс и образность, развиваясь в сторону реки. Но дело не только в этом. Его структура еще и откликается на главный акцент всего района – Ростех-Сити, спроектированный SOM.
Он, как мы помним, тоже решен как сумма представлений о современном городе: по центру стеклянная башня, вертикально-складчатая и блестящая – вокруг нее кирпичные кварталы с галереями. Город современного небоскреба окружен городом «Новой урбанистики»: многоликость собрана понятные с первого взгляда группы. В некотором роде бизнес-парк в Тушино можно понять как «икону» города XXI века – обобщенно-емкое высказывание на тему современных предпочтений.
Новая очередь жилого района интерпретирует эту находку, «шагает» от нее: ближе к кварталам бизнес-парка тут – квартал, дальше – стеклянная башня. Растягивает, растворяет, выращивает в высоту. Но заметно реагирует. Так что и замысел понятен, и рифма считывается.

