Мероприятие проходило в Марриотт отеле – в конференц-зале «Фалкон» выступали спикеры в окружении стендов с работами участников конкурса на разработку эффективной среды жилого квартала в Бресте, а в фойе разместились несколько тематических выставок.
Спикеры, преимущественно из России и Беларуси, много говорили о том, что делает город комфортным, о визуальной экологии в городском ландшафте и роли искусства в городской среде.
Среди участников форума были замечены представители Megabudka, ZROBIM architects, Студии Артемия Лебедева, А100 Девелопмент, главные архитекторы белорусского Бреста и российского Рыбинска.
Форум завершился вручением наград победителям конкурса на разработку эффективной среды городского квартала в городе Бресте, который был организован в рамках форума.
Показываем работы победителей.
I премия
Проект «Timeless city»«Воробьев и партнеры», Беларусь
Авторский коллектив: Арсений Воробьев, Ольга Паршина, Александр Голод, Михаил Собольков, Дмитрий Сушкевич, Игорь Шамановский, Виктория Адамчук
I премия. Проект «Timeless city»
© «Воробьев и партнеры», Беларусь.
Авторский коллектив: Арсений Воробьев, Ольга Паршина, Александр Голод, Михаил Собольков, Дмитрий Сушкевич, Игорь Шамановский, Виктория Адамчук
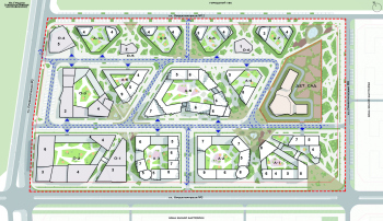
Timeless city – город вне времени, город сочетающий в себе новации современности и теплоту традиций. Город, в котором ощущаешь себя в центре событий и в то же время защищенным от шума и суеты. Проект состоит из набора необходимых функций в шаговой доступности, которые включают в себя: общественно-торговый центр, офисы, мини-рынок c площадью, выставочная галерея, многоуровневый паркинг, детский сад, пешеходный бульвар, жилая застройка. Центральная часть района освобождена от автотранспорта. Основной идеей проекта является пешеходная улица в центре района, соединяющая бульвар и рыночную площадь. Концепция улицы вдохновлена образом двориков старого Бреста. Архитектура домов несет в себе исторические силуэты города. Среда пешеходной улицы за счет масштаба напоминает улицу старого города с его неспешным, спокойным ритмом.
Архитектура внешнего периметра застройки кварталов более современная, масштабная, отражает тенденции и характер развития современного города. Дворы кварталов – это место вне времени, где обеспечивается связь между прошлым и будущим, как символ передачи опыта между поколениями
II премия
Проект «Жилой квартал КАФЛЯ в Задворцах»DT bureau, Россия
Авторский коллектив: Татьяна Таратута, Данил Назаров, Ефросиния Паниева
II премия. Проект «Жилой квартал КАФЛЯ в Задворцах»
© Авторский коллектив: Татьяна Таратута, Данил Назаров, Ефросиния Паниева
Белорусская кафля– традиционная керамическая плитка, является важной частью декоративно-прикладного искусства Беларуси. Концепция проекта основана на материальном воплощении кафли и ее осколков, которые сдвигаются и накладываются друг на друга, создавая сложные объемы. Зазоры между осколками становятся столь же значимыми, как и сами массы. Стилобаты-«осколки» распадаются на мелкие элементы от города к лесу, а зеленые зоны набирают объем, сливаясь с природой. Фрагменты белорусской керамики формируют генплан и жилые кварталы. Компоновка объектов основана на разноуровневом наслаивании осколков, что позволяет выделить террасы с озеленением для каждого этажа. Дизайн-код ландшафта строится по тому же принципу. На пересечениях маршрутов создаются разнообразные общественные пространства: площади, бульвары и скверы, расположенные между стилобатами. Структура территории связана между собой и воспринимается как единое целое на разных масштабах – от генплана до элементов городской среды.
III премия
Проект «Усадьбы»Авторский коллектив: Дарья Лавринова, Алексей Лаврухин, Россия
III премия. Проект «Усадьбы»
© Авторский коллектив: Дарья Лавринова, Алексей Лаврухин, Россия
Концептуальная идея
Современный город растет, забывая свой собственный взгляд на себя. Архитектура, теряя связь с культурной памятью, утрачивает способность формировать осознанное видение мира – как индивидуальное, так и коллективное. Проект жилого комплекса в районе Задворцы стремится вернуть Бресту архитектурное зрение, обращенное к его истокам. Каждый квартал комплекса вдохновлён одной из исторических усадеб Бреста – напоминанием о времени, когда архитектура рождалась из контекста, из отношения к земле, соседству, природе и человеку. Современный квартал – не буквальная реконструкция усадьбы, а интерпретация ее духа: пропорций, ритмов, открытости, камерности, материальности. Таким образом, концепция отражает переход от рационального порядка к человеческому масштабу, от абстрактной формы – к живому городскому пространству, наполненному памятью, смыслом и гармонией.
Пространственная композиция
Каждый квартал – это аллюзия на конкретную усадьбу Бреста , но не в форме буквального цитирования, а преемственности. Исходной точкой формирования застройки служит регулярная сетка кварталов – задает основу композиции , каркас будущего комплекса. Однако каждый квартал имеет легкое смещение, поворот и отклонение от ортогональной сетки. Такой нехитрый шаг помогает добавить живости заставляет строгие формы начать взаимодействовать между собой, создавая динамику восприятия на уровне пешеходов, создавая не линейные перспективы, добавляя иллюзии исторического города. Чтобы придать индивидуальность кварталам, были выделены «архитектурные ДНК» каждой усадьбы: пропорции и пластику фасадов, пропорции окон и расстекловку, пластику деталей,цветовую палитру материалов.
Специальные дипломы
Белорусский союз архитекторов
Проект «Зеленая река»«Агентство территориального планирования» (ООО «АТП»), Россия
Авторский коллектив: Иван Печенкин, Егор Кругликов, Елена Калина, Омар Баширов, Анна Додор, Анастасия Макарова, Илларион Шулая, Мария Шулая, Дмитрий Гриднев
Проект «Зеленая река»
© «Агентство территориального планирования» (ООО «АТП»), Россия
Авторский коллектив: Иван Печенкин, Егор Кругликов, Елена Калина, Омар Баширов, Анна Додор, Анастасия Макарова, Илларион Шулая, Мария Шулая, Дмитрий Гриднев
Вдохновением для проекта послужила структура лист растения. Подобно прожилкам листьев, формирующим устойчивый каркас, выполняющим транспортные функции питательных веществ и воды, основу нашего архитектурно-планировочного решения составляет бульвар с водным объектом. Летом водная поверхность приносит свежесть и комфорт, а зимой превращается в живописный каток. Бульвар дополняется поперечными зелеными коридорами, которые обеспечивают проницаемость и связь с природным парком. Жилой комплекс состоит из 4 кварталов этажностью 5-9 и акцентными зданиями 12 этажей с террасированием и стилобатом под двором квартала, в котором предусмотрено размещение м/м и коммерческих помещений с стороны улиц и бульвара. Благодаря стилобату, формируется приватное пространство жилых кварталов. Знаковым объектом в нашей концепции также является многофункциональный центр, в центральной части которого предлагается созданием амфитеатра и сценической площадками для проведения мероприятий, выставок, спектаклей.
VIASET
Проект «БРИК»Автор: Сергей Куницкий, Беларусь
Проект «БРИК»
© Автор: Сергей Куницкий, Беларусь
Проект «БРИК – Эффективная среда» в г. Бресте представляет современный жилой квартал, где жилье, природа и общественные функции формируют единое пространство. Искусственно созданный рельеф разделяет уровни движения и создаёт выразительную композицию с сохранением соснового массива. Кирпичные дома различной архитектуры частично расположены на общественных объемах с магазинами, коворкингами и спортзалами. На кровлях – дворовые террасы с детскими и спортивными площадками, зелёными клумбами и прорезинёнными пешеходными маршрутами. Три лестницы поднимают людей к бульвару и формируют визуальные оси, зеленые коридоры соединяют улицы с внутренними дворами. Подпорные стены украшены муралами, подчеркивающими идею взаимодействия человека, природы и архитектуры. Пространство инклюзивно, благоустроено и объединено в гармоничную, живую и эффективную городскую среду.
BNK Estate
Проект «Полесье»PLAN BURO (ООО «ПЛАН БЮРО»), Россия
Авторский коллектив: Оксана Солодянкина, Инесса Багмет, Людвиг Сяноженский
Проект «Полесье»
© PLAN BURO (ООО «ПЛАН БЮРО»), Россия
Авторский коллектив: Оксана Солодянкина, Инесса Багмет, Людвиг Сяноженский
Жилой комплекс «Полесье» основан на архитектурной концепции интеграции с природным окружением и тематике леса. Точечная застройка позволяет сохранить деревья, а вертикальные башни образуют силуэт, ассоциирующийся с лесными стволами. Различные фасадные решения придают ансамблю пластичность и индивидуальность: дома-«сосны», «шишки», «березы» формируют узнаваемые кварталы с выразительной визуальной идентичностью. Высотность зданий учитывает движение солнца и сохранение видовых точек на лесной массив. Центральный пешеходный променад соединяет деловую зону и городской бульвар, вдоль него расположены коммерческие объекты и активно озелененные пространства. Дворы свободны от машин, подземные паркинги освобождают территорию для отдыха, спорта и детских площадок. Балконы и террасы создают открытые «уличные гостиные», усиливая связь интерьера с природой.
ЭКОВО
Проект «Урбан-Арт. Квартал изящных искусств»«Пауэр Технолоджис», Россия
Авторский коллектив: Алексей Полищук, Полина Балабанова, Вадим Буханцев, Маргарита Анкудинова, Кирилл Уваров, Ярослав Орешкин, Ксения Лебедева, Ксения Третьякова
Проект «Урбан-Арт. Квартал изящных искусств»
© «Пауэр Технолоджис», Россия.
Авторский коллектив: Алексей Полищук, Полина Балабанова, Вадим Буханцев, Маргарита Анкудинова, Кирилл Уваров, Ярослав Орешкин, Ксения Лебедева, Ксения Третьякова
Концепция ЖК «Урбан-Арт. Квартал изящных искусств» – создание гармоничной жилой среды на стыке архитектуры, искусства и природы.
Философия: Восстановительный урбанизм. Формирование инклюзивной среды для психологической разгрузки и социальной активности, где дворы становятся центрами общения («город соседей»).
Ключевая концепция: «Арт-Блоки». Каждое из 8 зданий – самостоятельное произведение, воплощающее великий стиль искусства (Ренессанс, Поп-арт, Кубизм и др.). Фасады, цвет и благоустройство отражают выбранную тему.
Планировка: Принцип «двор без машин» с подземным и периметральным паркингом. Четкое зонирование на общественную и приватную зоны, развитая сеть пешеходных и велодорожек.
Архитектура: Симбиоз с природой. Обилие зелени, центральный променад и озеленение кровель создают терапевтический эффект. Переменная этажность (5-12) для комфортного масштаба.
Инфраструктура: В шаговой доступности – детский сад, многофункциональный комплекс с торговлей, услугами и спортом.

