Его отличает продуманность музейной навигации и музейного оборудования – залы на отдельных этажах с возможностью трансформации; а также открытое для всех теплое пространство атриума – «крытой городской площади». И повсеместное использование натуральных материалов: прежде всего, натуральной «не остановленной» меди и открытого бетона.
Музей «ЗИЛАРТ»
Фотография © Андрей Белимов-Гущин / предоставлена АБ СПИЧ
Перечисленного вполне достаточно, чтобы обозначить исключительность нового музея, появившегося в Москве. Он событие. В начале декабря в нем открылись три выставки известных кураторов. Хорошие; разные, каждая по-своему впечатляет. Сделанный многими вывод об исключительности нового музея сомнению не подлежит.
Но хотелось бы поговорить о здании как таковом.
Снаружи оно лаконично. Если бы я не следила за развитием проекта, сказала бы: внезапно лаконично.
Почему внезапно? Потому что далеко не все новые музейные здания столь скромны в своей внешней презентации. Скорее наоборот – несмотря на то, что с функциональной точки зрения здания музеев интроверты, естественный свет экспозициям скорее вреден – им стремятся добавить выразительности, самопрезентации в окружающем пространстве. Вспомним хотя бы гигантскую скульптуру Бильбао; или даже собственный музей Архитектурного рисунка Сергея Чобана в Берлине, из резного известняка, со сдвинутыми в объеме ярусами...
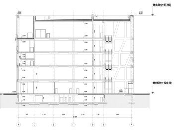
Фасады музея ЗИЛАРТ не то чтобы просты, нет. Они полностью подчинены сетке медных полос, одинаковой со всех сторон и решенной в подобии шахматного порядка. Смотрю на чертежи и на фотографию фасада: сетку можно описать как составленную из горизонтальных прямоугольников с пропорциями порядка 1.5 (архитекторы уточняют: 1.55 если мерить по стеклу и 1.49 по осям колонн), что близко к ряду Фибоначчи, но не равно ему; каждый прямоугольник надо мысленно разделить на три части, а среднюю еще и наискосок по диагонали. Так получится две трапеции, уложенные внутри прямоугольника. В верхнем ярусе, где расстояние между перекрытиями больше, прямоугольники превращаются в квадраты, а диагонали получают другой наклон, 72° вместо 64°.
Фасады сделаны тщательно, никаких «вольностей» из ряда тех, что подчас позволяют себе строители, здесь не прослеживается. В нижнем ярусе стекла цельные, 6 м в высоту. Выше появляются стыки, но они редкие, горизонтальные; графика линий стыков участвует в общем замысле.
Там, где нет стекла, то есть на большей части здания, прогалы сетки заполнены мелкоребристыми поверхностями («глухие участки сетки заполнены медной вставкой из зубчатого профиля», – уточняют архитекторы, уточним и мы). Они не в меньшей степени проявляют рисунок плоских полос, а также, что важно! – помогают маскировать вентрешетки, буквально-таки, на мой взгляд, идея «архитектору на заметку».
В этой, условно-массивной, части на тыльной стороне прорезана терраса – углубленная лоджия с видом на Тюфелеву рощу.
В углублении, на открытой террасе, установлен объект Александра Бродского, говорят, что это бар, но мне на террасу попасть пока не удалось, поэтому ничего не скажу.
Так вот. Очень лаконичный, очень плоский, куб, подчиненный спокойной сетке с элементом диагонали. На самом деле не вполне куб – в плане здание вытянуто на 8%, размер «в осях» 50 м к 54, в сторону Тюфелевой рощи, а его высота заметно меньше стороны основания, 38.1 м плюс еще подземный ярус – но снаружи, как ни измеряй, здание воспринимается почти-куб с почти одинаковыми фасадами.
Музей «ЗИЛАРТ»
Фотография © Андрей Белимов-Гущин / предоставлена АБ СПИЧ
Со времени реализации фасадов прошло уже, кажется, большое года, и снаружи медь успела постареть естественным путем, стала темно-коричневой, как большая часть домов на ЗИЛАРТе; спокойной и нейтральной, менее яркой, нежели дом Сергея Скуратова на лоте №2.
Да, на солнце линии сетки поблескивают, как и стекло – что для главного, обращенного к бульвару Братьев Весниных, фасада акцентирует ассоциации с зеркалом, отражающим все вокруг. Тогда и вспоминаешь: в античности все зеркала были из полированной меди или бронзы. И можно прийти к выводу, что сочетание медной рамы и отражения в стекле подчеркивает «музейную» функцию здания как таковую – представляет его как место хранения подлинных вещей и в то же время отражение реальности.
Этакий получается медный куб, современный вариант древнего зеркала...
Впрочем, архитекторы отвергают измерения, метафоры и сопоставления, приведенные выше – имеют право – и уточняют: «этот куб не про расчеты, не про миллиметры и градусы. Это оммаж механизмам, которые были здесь раньше, во времена завода. Своего рода машина для искусства».
Тоже хорошая аллюзия. Можно выбирать. К тому же тема «машины для искусства» удачно подчеркивает продуманную технологию современного музейного здания. Машина для показа и хранения искусства он, на мой взгляд, скорее внутри; а снаружи только отголосок. Впрочем, почему нет? Хорошо, когда лаконичная форма считывается по-разному.
Итак, куб музейного здания сам по себе, повторюсь, лаконичен и интровертен.
Зато когда мы попадаем внутрь – все радикально меняется. Становится ясно, что ленты не плоские, а очень даже объемные, квадратные в сечении; что сетка – реальная, конструктивная, «держит» весь атриум 35-метровой высоты. Когда сидишь внутри, к примеру на презентации, хочется ее сравнить с клеткой Фарадея, потому что медная.
Становится интересно, проходит ли мобильный сигнал. Проверила. Не всегда.
Но дело не в сигнале, внутри музея он, может быть, и не нужен; хотя сейчас во многих экспозициях ставят QR-коды для дополнительной информации...
Дело не в сигнале. А в том, что насколько здание сдержанно снаружи – настолько же празднично внутри. Какое-то там, внутри, возникает чувство чистой радости. Красная медь сияет, переливается, и даже в сумрачный день, отчасти благодаря подсветке, отчасти сама по себе, «аккумулирует» в пространстве атриума «солнечные» отблески. Поднимает настроение.
Само по себе пребывание внутри медных стен формирует специфическое впечатление. Как уже было сказано, материал полностью натуральный. Но непривычный. Своим, отчасти золотистым, сиянием – создает эффект драгоценности получше, чем любые разноцветные мраморы. И даже чем современная «позолота», во многих случаях ненастоящая и оттого слишком яркая.
Здесь медь правильного оттенка; и не говорите мне, что она будет стареть. Да, видны отпечатки пальцев от монтажа, они потемнели, как и следы пальцев первых посетителей в нижних ярусах. Но все, что вверху, надо думать, останется сиять надолго, будучи оживлено спонтанными украшениями. Демонстрируя внимательному наблюдателю «растяжку» вариаций между окисленной и чистой, яркой поверхностью.
Еще лучше получилось со створками дверей, ведущих в залы. Высота потолков – 5 м, и створки большие, пятиметровые, чтобы их открыть их, наваливаешься всем телом, что еще раз дает почувствовать серьезную, музейную монументальность.
Двери медные. Полоса яркая, живописная – как будто исполнена в неизвестной технике акварельно-офортного плана; думаю, заинтересовавшимся архитекторам имеет смысл спросить у специалистов СПИЧа, как она появилась. Но, как бы то ни было, на мой взгляд полоса отлично выделяет двери в интерьерах и с той, и с другой стороны; акцентирует их как входы.
Цвет очень красив и я не удивлюсь, если через некоторое время в нашем культурном пространстве возникнут опыты на его тему.
Все остальное, включая бетон, остается в тени и, как принято в хороших современных пространствах, создает внутри атмосферу не слишком яркую, не-глянцевую, оставляющую возможность спокойно дышать.
Но и про бетон хочется сказать отдельно. Сейчас у многих популярен так называемый архитектурный бетон: гладкий, полированный, происходящий, в некотором роде, от искусственного мрамора классицизма. Его отличает очень ровная поверхность и кружочки от опалубки – к примеру, у Тадао Андо в Пунто Догана такой. И еще много где. Так вот, на мой вкус архбетон, популярный на протяжении последних 20 лет, надоел. В нем нет естественности и слишком много ритма. Живой бетон куда интереснее.
Музей «ЗИЛАРТ»
Фотография © Андрей Белимов-Гущин / предоставлена АБ СПИЧ
Такой и использован здесь.
Тут можно спорить, насколько ровно должен быть залит натуральный бетон, чтобы его можно было оставить открытым, однако – для культурного пространства, даже вновь построенного, такая поверхность в наши 2020-е годы имеет своего рода «обратную силу»: напоминает о бетоне арт-кластеров, устроенных в промзонах, иногда послевоенных цехах, где открытый бетон встречается часто. Открытая поверхность бетона стала своего рода опознавательным знаком креативного пространства, и можно, думаю, сказать, что в ЗИЛАРТ-музее Сергея Чобана эта особенность учтена.
Еще одна особенность – достаточно редкие и не обремененные избыточной толщиной, благо здание не очень высокое, всего 37 метров – опоры. Хоть и квадратные, что объясняется подчеркнуто черновой сутью пространства, но не большие.
Сложнее, лично для меня, определиться с уместностью появления в атриуме граффити. С одной стороны, они оживляют медную композицию, вносят цвет, дают возможность остановить взгляд.
С другой стороны – работают как осмысленная «реперная точка», обозначая промежуточное положение пространства атриума: между внутри и снаружи, и кроме того – он служит общественным, открытым для всех без билета, городским пространством. Граффити характерны для города и в данном случае они «представляют» его в музее, как будто говорят посетителю, что он находится одновременно в музее и в городе. Отобраны лучшие, известные мастера.
Все это верно.
Но закрадывается пара сомнений. Прежде всего, это, конечно, не граффити, а муралы. Первые больше из разряда письменности и не согласованной; вторые наоборот, как правило изобразительны и согласовываются. В Москве и других городах нашей страны за последние 10 лет стали широко распространены согласованные муралы. Определенно, в стенах музея вряд ли возможны граффити – вспоминаем историю про то, как проданная на аукционе работа Бэнкси сама себя разрезала на полоски... И еще мне вспоминается недавно увиденный на просторах телеграма мем, где к 10 заповедям, написанным на обломках бетона, была добавлена: «не согласовывай стрит-арт».
Это, безусловно, крайности. Но они не выходят из головы.
Можно было бы сказать, что присутствие муралов отражает тенденцию Москвы последних лет «согласовывать стрит-арт». В таком случае это было бы даже актуальным высказыванием о современном искусстве нашего города. Примостившемся на грани между городом и коллекционированием, в тесной близости к последнему.
Но вернемся к зданию музея. Получается, что он очень сдержан снаружи – этакий кубик. Очень ярок, эффектен, золотист, солнечен внутри в атриуме. И опять нейтрален в собственно залах. Три слоя.
И если мы посмотрим весь ЗИЛАРТ сверху как на «материнскую плату», то музей на ней будет процессором: невзрачным квадратиком, который тем не менее, играет ключевую роль, в котором, как и, предложим, в атриуме музея, что-то все время «жужжит», гонят некие килобайты. А соседний дом-«Ананас» от Neutelings Riedijk, к примеру, транзистором... Тут вспоминается мастер-план Рэма Колхаса для Сколково, он тоже напоминал материнскую плату; вот и северо-восточная часть ЗИЛАРТа чем-то на нее похожа. В ней собрались этакие внушительные, крупные, абстрактные высказывания. Музей в их числе, наряду со ржавой сороконожкой Джери ван Эйка в Тюфелевой роще.
Но если говорить о здании музея, в нем, кажется, есть еще одна особенность – оно откликается на подход, реализованный в кварталах ЗИЛАРТа, наоборот, наизнанку. Заметим, как и полагается современному искусству. А в музее планируют собирать современное искусство. Как и архаическое, как и послевоенное.
Так вот. ЗИЛАРТ особенный проект, начиная с конкурса 2012 года он не только очень большой, но и с концепцией. Важным, чтобы не сказать ключевым центром которой должен стать музей – общегородской центр притяжения. Жилая застройка построена на двух основных принципах: это кварталы с приватными дворами, чьи фасады предложены известными, специально приглашенными, архитекторами. Которым было очень не просто соблюдать баланс самовыражения и деликатности, но речь пока не об этом. ЗИЛАРТ как часть города – тоже всего рода музей. Высказываний современных архитекторов; на открытом воздухе.
В «кубик» каждого квартала чужому попасть не возможно, но можно гулять вокруг, изучая фасады, запоминая авторство, сравнивая.
С такого рода выставкой под открытым небом музейному зданию можно было соперничать двумя способами: попытаться «перекричать», и, в общем и целом, такая попытка, как известно, предлагалась. Или выбрать подчеркнуто нейтральный, сдержанный образ. Что и сделал Сергей Чобан. Его музей получился выстроенным согласно принципу, обратному построению одного квартала ЗИЛАРТа. Квартал закрыт внутри, большей части горожан неизвестно, что там; квартал внутри «молчалив». А музей сдержан снаружи – но ярок внутри. Почему? потому что, собственно, внутри он открыт для всех, это раз, и самое главное – экспонаты, выставки, тоже внутри. Логичное и свежее решение.





