Отель Jiangnan House в районе Гуанлин городского округа Янчжоу
Фотография © XIA ZHI Pictures / предоставлена B.L.U.E. Architecture Studio
Отель Jiangnan House в районе Гуанлин городского округа Янчжоу
Фотография © XIA ZHI Pictures / предоставлена B.L.U.E. Architecture Studio
Отель Jiangnan House в районе Гуанлин городского округа Янчжоу
Фотография © XIA ZHI Pictures / предоставлена B.L.U.E. Architecture Studio
Отель Jiangnan House в районе Гуанлин городского округа Янчжоу
Фотография © XIA ZHI Pictures / предоставлена B.L.U.E. Architecture Studio
Японский дух отчетливо различим в новом образе оформленного ими отеля Jiangnan House с его деревянной отделкой, вниманием к фактурам и ничем не нарушаемым плоскостям. Перед архитекторами стояла задача собрать воедино здания, построенные из разных материалов (дерево, кирпич, бетон) в разное время и имеющие разную историческую ценность, а также дополнить плотную низкоэтажную застройку новыми объемами и связать все богатым ландшафтным решением. При этом общий дух необходимо было сохранить. В результате часть объектов и их фрагментов тщательно реставрировали, часть реконструировали, часть серьезно перестроили, а часть возвели полностью с нуля.
Отель Jiangnan House в районе Гуанлин городского округа Янчжоу
Фотография © XIA ZHI Pictures / предоставлена B.L.U.E. Architecture Studio
Отель Jiangnan House в районе Гуанлин городского округа Янчжоу
Фотография © XIA ZHI Pictures / предоставлена B.L.U.E. Architecture Studio
Отель Jiangnan House в районе Гуанлин городского округа Янчжоу
Фотография © XIA ZHI Pictures / предоставлена B.L.U.E. Architecture Studio
Отель Jiangnan House в районе Гуанлин городского округа Янчжоу
Фотография © XIA ZHI Pictures / предоставлена B.L.U.E. Architecture Studio
Фасад кинотеатра практически полностью восстановлен, включая вывеску с красной звездой, скульптуры рабочих, крестьян и солдат и даже киноафиши справа и слева от входа. Эффектную деревянную кровлю тоже удалось сохранить. Но главный зал теперь превратился в вестибюль отеля. Из уважения к прошлому внутри оставили экран (кинопоказы тут тоже планируется устраивать) и активно использовали в оформлении афиши, кадры и образы знаковых героев картин, когда-то демонстрировавшихся именно здесь. Для создания тематических гравюр на стенах привлекли местных художников.
Отель Jiangnan House в районе Гуанлин городского округа Янчжоу
Фотография © XIA ZHI Pictures / предоставлена B.L.U.E. Architecture Studio
Отель Jiangnan House в районе Гуанлин городского округа Янчжоу
Фотография © XIA ZHI Pictures / предоставлена B.L.U.E. Architecture Studio
Отель Jiangnan House в районе Гуанлин городского округа Янчжоу
Фотография © XIA ZHI Pictures / предоставлена B.L.U.E. Architecture Studio
Отель Jiangnan House в районе Гуанлин городского округа Янчжоу
Фотография © XIA ZHI Pictures / предоставлена B.L.U.E. Architecture Studio
В центре нового вестибюля устроен зеленый «коридор» как напоминание о традиционных садах. Он также помогает создать комфортную, расслабленную атмосферу и продемонстрировать связь внешнего и внутреннего пространств. В отделке использована древесина вяза и шпон: в сочетании с каменным полом они отсылают к архитектуре старого города.
Отель Jiangnan House в районе Гуанлин городского округа Янчжоу
Фотография © XIA ZHI Pictures / предоставлена B.L.U.E. Architecture Studio
Отель Jiangnan House в районе Гуанлин городского округа Янчжоу
Фотография © XIA ZHI Pictures / предоставлена B.L.U.E. Architecture Studio
В решении новых объемов также ясно демонстрируется уважение к традиционной застройке и ремесленным традициям. В одном из них разместили: внизу – залы ресторана, а номера – в верхней части, а в другом – баню с термальным источником и сауну.
Отель Jiangnan House в районе Гуанлин городского округа Янчжоу
Фотография © XIA ZHI Pictures / предоставлена B.L.U.E. Architecture Studio
Отель Jiangnan House в районе Гуанлин городского округа Янчжоу
Фотография © XIA ZHI Pictures / предоставлена B.L.U.E. Architecture Studio
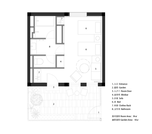
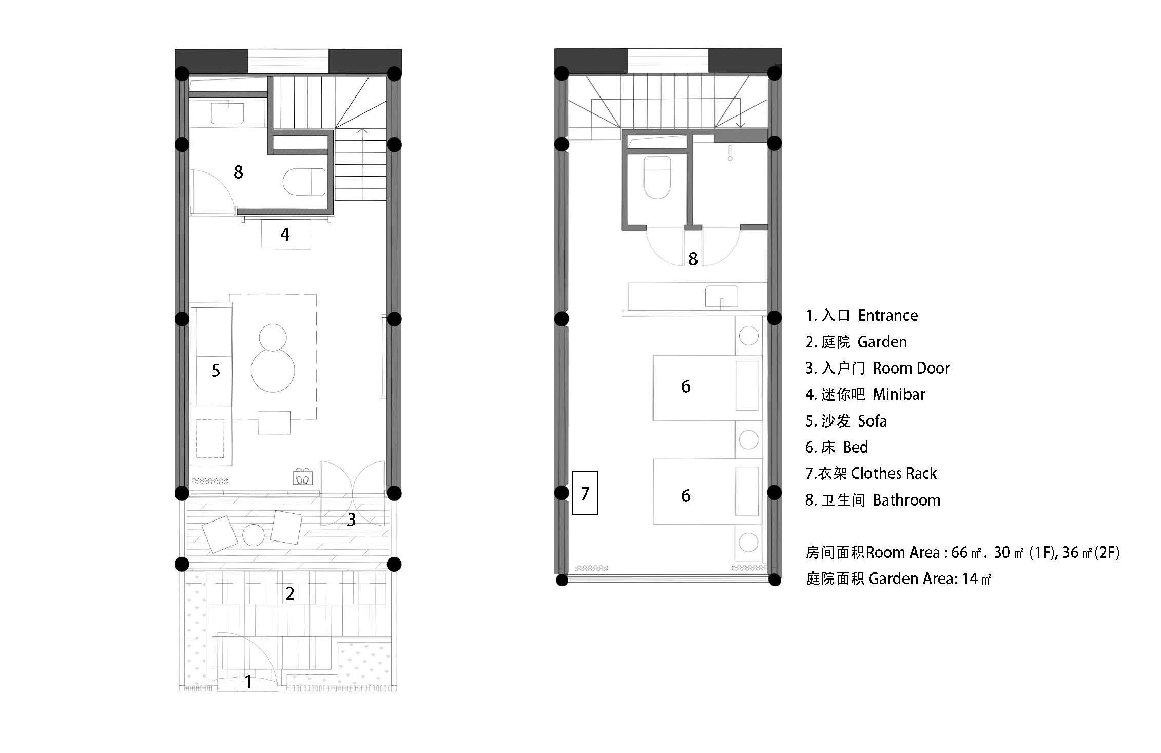
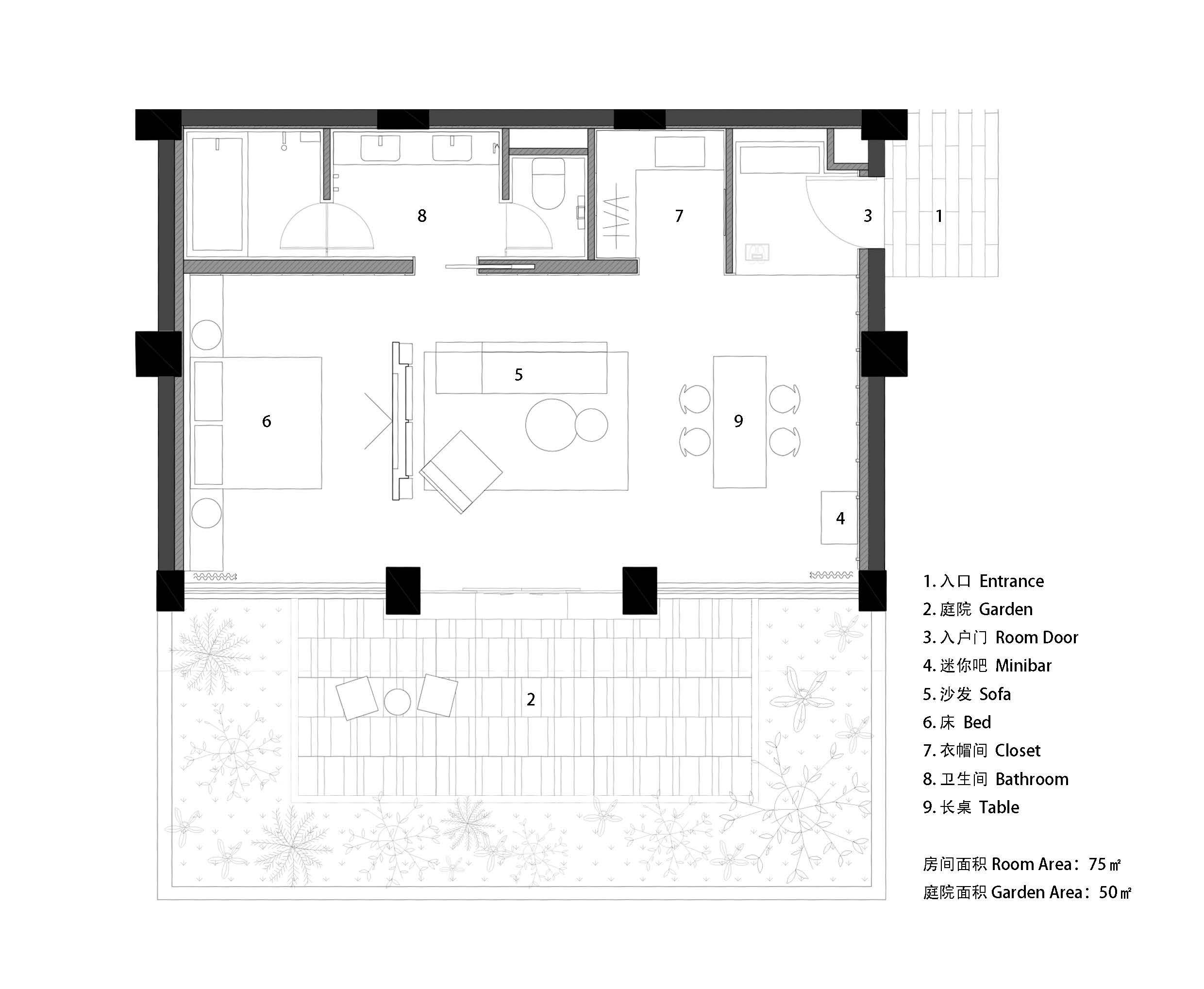
Сами же номера (всего их 40), часть из которых устроены в исторических корпусах, получили минималистичную отделку из натуральных материалов с сохранением всех ценных элементов и местного колорита, в которую органично, почти незаметно интегрированы необходимые удобства. Вместе все корпуса напоминают систему павильонов в традиционном китайском саду и соединены укромными зелеными зонами, переходами и разнообразными полуоткрытыми пространствами.
Отель Jiangnan House в районе Гуанлин городского округа Янчжоу
© B.L.U.E. Architecture Studio
Отель Jiangnan House в районе Гуанлин городского округа Янчжоу
© B.L.U.E. Architecture Studio
