Гамбургский государственный оперный театр – новое здание
© Yanis Amasri / BIG
Итак, оперный театр в Гамбурге не планировал никаких особенных перемен: в XXI веке рядом с ним появился новый корпус с репетиционными залами и другими необходимыми пространствами, а в другом районе города – здание с декорационными мастерскими и хранилищем для этих декораций, костюмов, реквизита и так далее. Однако в 2022 миллиардер Клаус-Михаэль Кюне, живущий в Швейцарии уроженец Гамбурга, предложил родному городу оплатить строительство нового театра – в Хафен-сити. Взамен предприниматель-меценат надеялся получить участок в центре города с ныне существующим театром, снести его и построить там выгодный коммерческий объект. Но статус ОКН помешал этим планам, поэтому строгое модернистское здание, скорее всего, будет продано с сохранением зафиксированной в реестре памятников функции («музыкальный театр»).
Гамбургский государственный оперный театр – новое здание
© Yanis Amasri / BIG
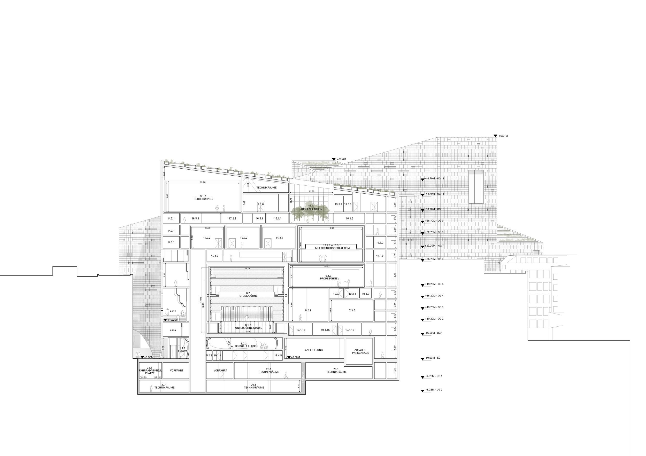
Проведенный закрытый конкурс завершился победой бюро BIG, предложившим возвести на краю полуострова Бакенхёфт (ныне занятого промзоной) постройку (45 тыс. м2) с обширными террасами, спускающимися к Эльбе. Здесь разобьют парк, рассчитанный на паводки и ливни, поэтому здесь появятся засаженные растениями дюны и «заболоченные» сады, а также проницаемое мощение. В театр можно будет попасть как из парка, так и со стороны города, а также по существующему мосту: именно с его стороны планируется устроить главный вход. Внутри будет много дерева – из него соорудят две парадные лестницы, а также «кольца» главного зрительного зала. Также запланирован меньший зал-студия и все необходимые вспомогательные пространства. Каждый уровень здания получит открытую зеленую террасу.
Критики отмечают нарочито эффектный, почти китчевый облик проекта, который был, кажется, рассчитан на вкус заказчиков – Кюне и его жены Кристины. Многих, от архитекторов и охранителей наследия до политиков и неравнодушных горожан, возмущает «волюнтаризм» такого дара Гамбургу – особенно в контексте выяснившихся финансовых подробностей. Кюне готов выделить лишь порядка 300 млн евро, а общий бюджет проекта, который может быть завершен к 2030, но скорее к 2034 году, составит не менее 1 млрд евро – и разницу придется покрыть муниципальным властям. Отдельная тема – высылка театра если не на окраину, то точно из центра города, где он пребывал исторически.
Гамбургский государственный оперный театр – новое здание
© Yanis Amasri / BIG
Кроме того, недоверие к плану Кюне подогревает история с Elbtower по проекту бюро Дэвида Чипперфильда: здание с отелем и офисами должно было стать 3-м по высоте в Германии (245 м), но через два года строительства, в 2023, оно остановилось: девелопер Рене Бенко, один из богатейших граждан Австрии, обанкротился, а сейчас отбывает тюремный срок за мошенничество, в то время как его недостроенная башня «украшает» собой Хафен-сити, и дальнейшая судьба ее неясна.
В Дюссельдорфе планировали полностью перестроить старый театр еще в 2021: тогда был представлен проект реконструкции от Snøhetta, заказанный девелопером. Над фактически новым театром в самом центре города возводились две башни с жильем, отелем и офисами. Сейчас заказчиком выступил муниципалитет, но проект вновь разрабатывает Snøhetta: теперь архитекторы победили в открытом конкурсе.
Оперный театр в Дюссельдорфе – новое здание
© Mir/Snøhetta
Театр переедет на восток от Рейна и Старого города, заняв место многоярусного гаража при универмаге Galeria Karstadt Kaufhof. Архитекторы, тем не менее, вдохновлялись именно Рейном, а точнее – осадочными породами, которые эта река принесла в свою долину за миллионы лет: именно на них стоит Дюссельдорф. Поэтому первый этаж, максимально открытый городу, трактован как выточенная водой пещера. Еще одним мотивом оформления интерьера станут пласты горных пород.
Здание получит трехчастный объем, условно обозначающий три учреждения внутри: Немецкую оперу на Рейне, Музыкальное училище имени Клары Шуман и Музыкальную библиотеку. Его фасады покроют светлым натуральным камнем, хорошо сочетающимся с окружением. Окна задуманы двух форматов, крупные отмечают важные зоны – фойе, бар, ключевые репетиционные студии, а небольшие – просто дают доступ свету и свежему воздуху.
Оперный театр в Дюссельдорфе – новое здание
© Mir/Snøhetta
Главный зал на 1300 мест оформят в колорите существующего сейчас: древесина дуба и красная обивка кресел. Зал-студия получит стены теплого серого цвета и зеленые кресла. Крыша будет сочетать озелененные участки с солнечными батареями и техническим оборудованием.
Оперный театр в Дюссельдорфе – новое здание
© Mir/Snøhetta
