Он был основан и развивался как центр советской металлургии, в 1932 году здесь построили крупнейший на тот момент Магнитогорский металлургический комбинат (ММК). Сегодня в городе проживает более 400 тыс. человек. Вся структура Магнитогорска, планировка его центра – отражение советской эпохи и градостроительных идей 1930–1950-х годов.
Магнитогорский музыкальный театр
© Четвертое измерение
В 2029 году город отметит 100-летний юбилей. Одним из мероприятий, приуроченных к этой дате, станет строительство новой сцены музыкального театра, проект которой разработало архитектурное бюро «Четвертое измерение».
Локация
Под строительство отвели участок площадью 3,3 га в самом сердце города, по адресу проспект Ленина, 71А. Театр построят в рекреационной зоне, в непосредственной близости от набережной реки Урал, Аллеи Славы и мемориала «Тыл – Фронту» (1979) – работы скульптора Льва Головницкого и архитектора Якова Белопольского, самой известной городской достопримечательности.Территория имеет важнейшее градостроительное значение и прекрасные визуальные характеристики. Недалеко от будущего театра находится городской стадион, практически напротив, на другой стороне проспекта – здание городской администрации. Появление Новой сцены именно в этом месте неизбежно сделает ее акцентным объектом городской панорамы, завершит градостроительный ансамбль и обогатит, наполнив новыми смыслами, всю окружающую территорию.
Задача
Новая сцена создается для Магнитогорского театра оперы и балета, который сейчас работает в небольшом доме культуры 1950-х годов, изначально не предназначенном для театральных постановок. Сегодня театр очень востребован зрителями: имея в своем составе симфонический оркестр и полноценные труппы оперы и балета, он обладает обширным репертуаром в различных жанрах.Магнитогорский музыкальный театр
© Четвертое измерение
Перед архитекторами поставили задачу создать современный, но с классическими и традиционными мотивами высокотехнологичный театр, который должен органично вписаться в сложившуюся сталинско-советскую застройку центра.
Окончательные образ театра и его внутренняя структура формировались на протяжении всего процесса проектирования при активном участии технических директоров крупнейших московских театров – Большого, Станиславского Немировича-Данченко и Наций. Исключительно важную роль сыграли глава города Сергей Бердников и директор Магнитогорского театра оперы и балета Илья Кожевников, практически ежедневно и детально погруженные в процесс.
Всеволод Медведев, руководитель архитектурного бюро «Четвертое измерение»
«Театр – объект штучный, можно сказать коллекционный. Здесь нет наработанных приемов, заранее заготовленных идей или типовых решений. Всегда работа с чистого листа, и в этом для архитекторов и художников главная творческая ценность и профессиональный вызов. Этот театр для нас был особенно интересным и ответственным, ведь его появление к 100-летнему юбилею города станет значимым событием, которого очень ждут жители и артисты. Необходимо было создать новый городской символ, многофункциональный, гибкий комплекс, где одинаково комфортно можно ставить оперу, балет, драматические спектакли, проводить симфонические концерты, торжественные городские мероприятия и, что очень важно, принимать любые гастрольные коллективы. Отсюда и более общее название – Новая сцена музыкального театра».
Концепция
Театр в Магнитогорске – не первая работа архитектурного бюро «Четвертое измерение» в этом жанре. Можно сказать, что проектирование театрально-зрелищных зданий много лет является их специализацией.Ранее бюро участвовало в конкурсах на реконструкцию театра оперы и балета в Красноярске, разрабатывало театрально-концертный комплекс «Вселенная Чайковского» в Клину, «Югра-классик» в Ханты-Мансийске и центр «Нефтяник» в Сургуте.
Создавая проект магнитогорского театра, архитекторы стремились найти такой образ, который был бы неотделим от места и не мог быть реализован нигде более. Это должен быть «персональный» проект именно для Магнитогорска. Ключом к замыслу и визуальным рефреном стал равносторонний треугольник – геральдический знак на городском гербе.
Знак отсылает к горе Магнитной, у подножия которой вырос город, а также к легендарной палатке геологов, с которой началось освоение месторождения. В местном парке Ветеранов установлен памятник «Первой палатке».
Равносторонний треугольник символизирует единство, устойчивость и силу – качества, определившие характер Магнитогорска и его индустриальную судьбу.
Тема треугольника проходит через весь проект – от формы люстры в большом зале и рисунка карниза на одном из фасадов до узора брусчатки на театральной площади и абриса уличных скамеек.
Олег Мединский, сооснователь архитектурного бюро «Четвертое измерение»
«В самом начале мы очень опасались своего замысла – вписать обширную и сложную театральную программу в чистую геометрию. Но это стало очень интересной задачей – своего рода следующим шагом покорения идеальной формы, ведь до этого у нас были «Вселенная Чайковского» в круге и Театр им. Хворостовского в кубе».
Дополнительные сложности заключались еще и в том, что треугольное здание имело низкий коэффициент полезной площади и слабо рифмовалось с классическими архитектурными формами. Однако шаг за шагом архитекторы нашли решение, устроившее всех. Они гордятся, что удалось сохранить чистоту замысла и вписать театр в идеальную геометрическую форму, нигде не выходя за границы треугольного контура.
Магнитогорский музыкальный театр
© Четвертое измерение
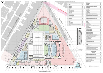
Планировочная структура
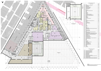
Здание имеет общую площадь 21 тыс. м², высоту порядка 40 метров, пять надземных этажей, один цокольный уровень и открытую автостоянку на 90 машин.Внутри театра расположены большой зал на 710 мест с оркестровой ямой на 80 музыкантов, а также малый зал на 192 места, который может трансформироваться в репетиционную дубль-сцену.
Залы объединены грандиозным, протянувшимся на 117 метров трехсветным фойе с панорамным видом на реку Урал и мемориальный парк. В фойе размещаются театральный музей и выставочное пространство, главный буфет, бары, зоны отдыха, предусмотрено и место для установки городской новогодней елки.
Служебно-артистическая часть включает весь набор необходимых помещений, которых раньше не было в распоряжении труппы: артистические, репетиционные залы для оркестра, хора и балета, детскую вокальную студию, мастерские, служебные и административные блоки.
Интерьерные решения пока в работе, но образ и характер пространств в целом уже понятны. Фойе и зрительные залы отделаны деревом теплого золотистого и коньячного оттенков. По идее архитекторов, выраженный контраст между внешней сдержанной «холодной» оболочкой из фибробетона, стекла и металла и «теплым» интерьером создаст ощущение вхождения извне в таинственный мир высокого искусства.
Фасады, монументальное искусство и медиаэкран
Здание театра имеет три разных, но созвучных друг другу фасада длиной примерно по 120 метров каждый.Магнитогорский музыкальный театр
© Четвертое измерение
Первый – главный, светлый, вдоль проспекта Ленина – двухчастный. Одна часть – с большой площадью остекления в зоне главного входа и фойе, вторая – более монументальная, со входом в городское театральное кафе, музыкальный магазин и кассовый вестибюль. Фасад равномерно членится вертикальными пилонами из светлого фибробетона, которые поддерживают массивный нависающий карниз. Чтобы создать перекличку с городским окружением – сталинской архитектурой – пилоны расчертили каннелюрами.
Магнитогорский музыкальный театр
© Четвертое измерение
Тему каннелированных пилонов продолжают установленные вдоль фасада стеклянные колонны – праздничные городские светильники. Они не только усиливают вертикальный ритм композиции, но и создают визуальный рефрен с неоклассической сталинской архитектурой, интерпретируя ее в современном ключе. Благодаря чередованию света и тени формируется торжественный и упорядоченный фронт, задающий зданию масштаб, соотносимый с городской средой.
Второй фасад – темно-серый, с видом на мемориальный парк и Аллею Славы – самый прозрачный и проницаемый, с переменным ритмом пилонов. А третий, обращенный к стадиону, – монолитный, с артистическими и служебными помещениями.
Магнитогорский музыкальный театр
© Четвертое измерение
Так как здание стоит на рельефе с перепадом высот около шести метров, область одной из вершин оказалась на нижнем уровне, вровень с землей. Там устроены входы в малый зал, в служебную часть и въездной пандус на цокольный этаж – в гараж и зону разгрузки театрального реквизита.
Роль театральной площади в ее классическом понимании играет благоустроенное пространство, протянувшееся вдоль проспекта Ленина – самой оживленной городской магистрали. Несмотря на то, что треугольник – равносторонний, его южная вершина, обращенная к Аллее Славы, наиболее значима в градостроительном плане. Она прекрасно просматривается с дальних точек и играет роль своеобразного маяка. Вокруг нее архитекторы разыгрывают основной архитектурно-художественный сценарий.
Пространство перед главным входом сверху защищено мощным нависающим карнизом. Его поддерживает внешняя стена, выполняющая конструктивную и декоративную функции: на ее поверхности размещена абстрактная композиция в технике флорентийской мозаики из пород камня, добываемых в Магнитогорске.
Магнитогорский музыкальный театр
© Четвертое измерение
Архитектурное бюро «Четвертое измерение» традиционно включает в свои проекты произведения монументально-декоративного искусства, и данный объект не стал исключением. Автор композиции «Диалектика притяжения» – президент Ассоциации художников-монументалистов России Максим Лытов.
Перед стеной с флорентийской мозаикой расположен треугольный бассейн с монументальной скульптурой. Символическая пара – мужчина и женщина в танце – олицетворяют притяжение противоположностей, без которого не возникает жизнь, движение и искусство: мужского и женского, черного и белого, металла и камня, плоскости и объема, оперы и балета.
Отдельное внимание в проекте уделили оформлению коробки сцены. При сцене С7 [тип крупной сцены для театров на 800-1200 мест – прим. ред.] колосниковая часть имеет значительную высоту и в контексте городской панорамы выглядит излишне массивной. Накрывать весь объем надуманными фальшконструкциями посчитали нецелесообразным, к тому же это еще больше увеличило бы само здание. Поэтому, чтобы визуально облегчить силуэт театра и гармонично вписать его в окружающую застройку, сценическую коробку превратили в главный городской медиаэкран.
Большую часть времени экран – мерцающий, переливающийся в небе объем, ориентир и городской маяк. Но иногда, при необходимости, на экране могут транслироваться афиши, эпизоды спектаклей, световые инсталляции, а также городские и праздничные мероприятия.
Новая роль театра
Архитекторы стремились не только добавить в панораму города новый акцент, но и сделать здание центром повседневной жизни. Они проектировали пространство, где соединятся искусство, образование и общение. Согласно их концепции, театр будет работать практически круглосуточно, предоставляя место для репетиций, мастер-классов, лекций, художественных выставок, образовательных программ и семейных мероприятий. В разное время дня он будет открыт для разных категорий посетителей – от малышей до подростков и взрослых.Магнитогорский музыкальный театр
© Четвертое измерение
Планировка здания позволяет вместить широкий спектр активностей: от занятий по хоровому пению до танцевальных классов, от концертов симфонической музыки до выступлений рок-групп.
Современные технологии – трансформируемый партер малого зала, изменяемые репетиционные помещения, особая система звука, новые системы безопасности – сделают пребывание в театре комфортным для всех.
Такая организация изменит финансовую модель учреждения: вместо бюджетного объекта, содержание которого ложится бременем на городские власти, театр, благодаря своей многофункциональности, станет перспективным инвестиционным проектом и будет способствовать гармоничному развитию города.
Учреждения культуры – важные элементы городской идентичности. Новый театр объединит традиции и современность, классические черты и актуальные технические решения и вполне может стать новым архитектурным символом Магнитогорска – культурного центра региона.









