Четвертая очередь жилого района ÁLIA
© АПЕКС / ASTERUS
Четвертая очередь жилого района ÁLIA
информация:
-
статус
в процессе реализации -
даты
01.2024 / 07.2024 -
место
Москва Вн. тер. г. муниципальный округ Покровское-Стрешнево, ул. Лётная -
координаты
55.822295, 37.418556 -
функция
Жилой / жилой комплекс -
площадь участка
2,51 га -
площадь общественная
6 459,3 м2 -
общая площадь
109 236 м2 -
площадь жилая
69 317 м2 -
высота
144,66 -
этажность
14--42 -
строительный объем
96 400 м3 -
Квартир – 1312: City 3 – 746, River 1 – 566.
Четвертая очередь состоит из двух урбан-блоков. Урбан-блок River 1 с башнями в 38 и 42 этажа. Урбан-блок City 3 – четыре корпуса от 14 до 30 этажей.
Данные по проекту ÁLIA в целом
Жилой район ÁLIA является частью комплексного освоения территории бывшего Тушинского аэродрома, общей площадью 71 га.
Общая площадь жилой застройки – больше 700 тыс. кв.м.
Площадь участка – 71 га.
Благоустройство 30 га.
Центральный парк – 8 га.
Благоустроенная набережная – 3 км.
Бизнес-парк: 263,2 тыс. кв. м.
Чкалов Арена: 32,8 тыс. кв. м.
Социальная инфраструктура:- 3 школы на 1775 мест
- 4 детских сада на 900 мест
- Поликлиника на 750 посещений в сутки
-
другие объекты
2020Жилой район ÁLIA. Урбан-блок City 1 (первая очередь)2024Благоустройство жилого района ÁLIA2025Третья очередь жилого района ÁLIA

Елена Струговец
РоссияПроектное бюро АПЕКС
APEX Project Bureau / Россияавторский коллектив
Руководитель авторского коллектива – Елена Струговец, ГАП – Светлана Пискунова, руководители группы архитекторов: Дария Козлова, Вера Животовская, ведущие архитекторы: Ирина Сердюкова, Юлия Лобова, Георгий Шустров
партнеры, заказчики, смежники
Девелопер – ASTERUS
Генплан. Четвертая очередь жилого района ÁLIA
© АПЕКС / ASTERUS
Архи.ру об этом объекте:
27.08.2025
Юлия Тарабарина. Перепады «высотного напряжения»
Третья очередь ÁLIA с успехом доказывает, что внутри одного квартала могут существовать объемы совершенно разной высотности и масштаба: сто метров – и тридцать, и даже таунхаусы. Их объединяет теплая «кофейная» тональность и внимание к пешеходным зонам – как по внешнему контуру, так и внутри.
О четвертой очереди жилого района ÁLIA, который компания Астерус строит в западной части бывшего Тушинского аэродрома, мы уже рассказывали она вытянута параллельно Чкалов Арене. Все Тушино выстроено веером, потому что территория поля была по... читать дальшедругие тексты Архи.ру:
18.11.2024
Юлия Тарабарина. Гибкость и интеграция
22.08.2024
Юлия Тарабарина. Пропорциональный рост
Транспортная схема. Четвертая очередь жилого района ÁLIA
© АПЕКС / ASTERUS
описание:
описание от девелопера, 05.2024:
Жилой комплекс ÁLIA – жилой район бизнес-класса на берегу Москвы-реки. Район спроектирован в урбанистической концепции WORK.LIVE.PLAY.LEARN.
Стильные жилые дома с широкой линейкой планировочных решений, продуманная коммерческая и спортивная инфраструктура, детские сады и школы, благоустроенные общественные пространства, безопасная безбарьерная среда.
В рамках проекта девелопером сдано в эксплуатацию 520,2 тыс. кв. метров жилой и коммерческой недвижимости, строительство продолжается.
Четвертая очередь ÁLIA отчасти будет продолжением архитектурного ансамбля всего жилого района. Исключение составят башни урбан-блока River 1, они станут ярким акцентом всего ансамбля. Для отделки фасадов выбран серебряный анодированный алюминий с включениями медного оттенка, такое решение придает легкость всему объему, позволяет зданию визуально «влиться» в окружающую среду. Тонкие вертикальные подстенки со специальной подсветкой подчеркнут стройные силуэты башен, которые заканчиваются скошенным «заостренным» краем кровли.
Над архитектурной концепцией работает архбюро APEX, в портфеле которого десятки современных жилых проектов столицы, а также знаковые общественные объекты, такие как Центральный телеграф или МФК «Павелецкая плаза». Это не первое сотрудничество застройщика с бюро: ранее команда APEX работала над адаптацией архитектурной концепции от S.O.M. для крупнейшего бизнес-парка класса А в районе ÁLIA, построенного ASTERUS.
Жилой комплекс ÁLIA – жилой район бизнес-класса на берегу Москвы-реки. Район спроектирован в урбанистической концепции WORK.LIVE.PLAY.LEARN.
Стильные жилые дома с широкой линейкой планировочных решений, продуманная коммерческая и спортивная инфраструктура, детские сады и школы, благоустроенные общественные пространства, безопасная безбарьерная среда.
В рамках проекта девелопером сдано в эксплуатацию 520,2 тыс. кв. метров жилой и коммерческой недвижимости, строительство продолжается.
Четвертая очередь ÁLIA отчасти будет продолжением архитектурного ансамбля всего жилого района. Исключение составят башни урбан-блока River 1, они станут ярким акцентом всего ансамбля. Для отделки фасадов выбран серебряный анодированный алюминий с включениями медного оттенка, такое решение придает легкость всему объему, позволяет зданию визуально «влиться» в окружающую среду. Тонкие вертикальные подстенки со специальной подсветкой подчеркнут стройные силуэты башен, которые заканчиваются скошенным «заостренным» краем кровли.
Над архитектурной концепцией работает архбюро APEX, в портфеле которого десятки современных жилых проектов столицы, а также знаковые общественные объекты, такие как Центральный телеграф или МФК «Павелецкая плаза». Это не первое сотрудничество застройщика с бюро: ранее команда APEX работала над адаптацией архитектурной концепции от S.O.M. для крупнейшего бизнес-парка класса А в районе ÁLIA, построенного ASTERUS.
Фасадные конструкции
Для отделки фасадов башен River 1 выбран серебряный анодированный алюминий с включениями медного оттенка, такое решение придает легкость всему объему, позволяет зданию визуально «влиться» в окружающую среду.
Для отделки фасадов башен River 1 выбран серебряный анодированный алюминий с включениями медного оттенка, такое решение придает легкость всему объему, позволяет зданию визуально «влиться» в окружающую среду.
Фасады четырех корпусов City 3 будут выполнены из бетонной плитки под кирпич, натуральных, теплых оттенков.
Специальные конструкции
Для двух башен будут использованы «городские окна», которые намеренно нарушают ритм панорамных окон здания, и создают пространство для летних террас. Угловые окна позволят визуально сделать объем зданий более легким.
Для двух башен будут использованы «городские окна», которые намеренно нарушают ритм панорамных окон здания, и создают пространство для летних террас. Угловые окна позволят визуально сделать объем зданий более легким.
В секционных корпусах фасады будут украшены «французскими балконами», которые можно использовать как для отдыха, так и для размещения кондиционеров.
Вентиляция и кондиционирование
Технические лоджии под кондиционеры со стороны фасадной части закрываются декоративными решетками, которые не портят общее восприятие архитектуры.
Вентиляция и кондиционирование
Технические лоджии под кондиционеры со стороны фасадной части закрываются декоративными решетками, которые не портят общее восприятие архитектуры.
Лифты
К3 – 4 шт., К4 – 2 шт.
К3 – 4 шт., К4 – 2 шт.
Электронные коммуникации, «интеллектуальный дом»
1) видеонаблюдение 24/7
1) видеонаблюдение 24/7
2) многофункциональное мобильное приложение
3) доступ в паркинг по системе распознавания номеров
Жилой район ÁLIA
© АПЕКС / ASTERUS
Четвертая очередь жилого района ÁLIA
© АПЕКС / ASTERUS
Четвертая очередь жилого района ÁLIA
© АПЕКС / ASTERUS
Четвертая очередь жилого района ÁLIA
© АПЕКС / ASTERUS
Четвертая очередь жилого района ÁLIA
© АПЕКС / ASTERUS
Четвертая очередь жилого района ÁLIA
© АПЕКС / ASTERUS
Четвертая очередь жилого района ÁLIA
© АПЕКС / ASTERUS
Четвертая очередь жилого района ÁLIA
© АПЕКС / ASTERUS
Четвертая очередь жилого района ÁLIA
© АПЕКС / ASTERUS
Четвертая очередь: местоположение в составе жилого района ÁLIA
© АПЕКС / ASTERUS
Схема пешеходных и велосипедных маршрутов. Четвертая очередь жилого района ÁLIA
© АПЕКС / ASTERUS
Схема функционального деления. Четвертая очередь жилого района ÁLIA
© АПЕКС / ASTERUS
Четвертая очередь жилого района ÁLIA
© АПЕКС / ASTERUS
Четвертая очередь жилого района ÁLIA
© АПЕКС / ASTERUS
Четвертая очередь жилого района ÁLIA
© АПЕКС / ASTERUS
Четвертая очередь жилого района ÁLIA
© АПЕКС / ASTERUS
Дома восточной части. Четвертая очередь жилого района ÁLIA
© АПЕКС / ASTERUS
Дома восточной части. Четвертая очередь жилого района ÁLIA
© АПЕКС / ASTERUS
Объем ресторана за стеклянной перегородкой у подножия «больших» башен. Четвертая очередь жилого района ÁLIA
© АПЕКС / ASTERUS
Премиальные двухуровневые квартиры в башнях. Аксонометрии.
Четвертая очередь жилого района ÁLIA
© АПЕКС / ASTERUS
Схема 12 этажа. Четвертая очередь жилого района ÁLIA
© АПЕКС / ASTERUS
Схема 13 этажа. Четвертая очередь жилого района ÁLIA
© АПЕКС / ASTERUS
Схема 1 этажа. Четвертая очередь жилого района ÁLIA
© АПЕКС / ASTERUS
Схема 3 этажа. Четвертая очередь жилого района ÁLIA
© АПЕКС / ASTERUS
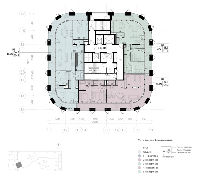
Схема 14 этажа. Четвертая очередь жилого района ÁLIA
© АПЕКС / ASTERUS
Фрагмент фасада. Материалы и конструкции. Четвертая очередь жилого района ÁLIA
© АПЕКС / ASTERUS
Фрагмент фасада. Материалы и конструкции. Четвертая очередь жилого района ÁLIA
© АПЕКС / ASTERUS
Фрагмент фасада. Материалы и конструкции. Четвертая очередь жилого района ÁLIA
© АПЕКС / ASTERUS
Фрагмент фасада. Материалы и конструкции. Четвертая очередь жилого района ÁLIA
© АПЕКС / ASTERUS
Фрагмент фасада. Материалы и конструкции. Четвертая очередь жилого района ÁLIA
© АПЕКС / ASTERUS
Фрагмент фасада. Материалы и конструкции. Четвертая очередь жилого района ÁLIA
© АПЕКС / ASTERUS
Фрагмент фасада. Материалы и конструкции. Четвертая очередь жилого района ÁLIA
© АПЕКС / ASTERUS
Разрез 2-2. Четвертая очередь жилого района ÁLIA
© АПЕКС / ASTERUS
Разрез 1-1. Четвертая очередь жилого района ÁLIA
© АПЕКС / ASTERUS
Архитекторы – партнеры Архи.ру:
Проект из каталога (случайный выбор)
Постройки и проекты (новые записи):
Новости российской архитектуры:
09.10.2025
Курорт на Каме
09.10.2025
Модель многоуровневой жизни
09.10.2025
Снос Энтузиаста
08.10.2025