Этот университетский проект появился на старте архитектурно-строительного бума, охватившего Южную Корею в начале XXI века. После азиатского финансового кризиса 1997 года страна пережила стремительное восстановление и период устойчивого экономического роста, что привело к резкому увеличению инвестиций в инфраструктуру и недвижимость. В результате стала возможной та глобальная перестройка – в прямом и в переносном смысле, – которая уже два десятилетия охватывает всю страну. Изменения происходят молниеносно и, как правило, радикально: на месте обветшалых жилых кварталов или полей за считанные месяцы вырастают элитные жилые комплексы высотой под сорок этажей или амбициозные культурные центры, объединяющие на гигантских площадях выставочные залы, библиотеки, лекционные пространства и, разумеется, многочисленные кафе.
Нередко такие центры впоследствии частично пустуют или функционируют без четко выстроенной программы мероприятий. В таком случае они играют скорее общественную роль как символы инноваций, позитивных перемен, заботы государства о жителях района. В этом смысле философия корейских проектов перекликается с западными инициативами по «переосмыслению» заброшенных промышленных зон и созданию культурных центров в депрессивных районах. Речь идет не только о столичном, сеульском, регионе, но и о других городах по всей стране. В этой динамике ощущается то, что сами корейцы называют пали-пали («быстрее-быстрее», 빨리빨리): скорость, прагматизм и часто работа на износ – главные характеристики современного корейского общества.
Южная Корея стремится утвердить себя как современное и технологически развитое государство. Это стремление к быстрому развитию и международному признанию отчетливо проявляется в архитектуре, ставшей важным инструментом для формирования национального имиджа. За последние годы Корея превратилась в трендсеттера во многих областях культуры и креативных индустрий: весь мир знает музыку k-pop, корейские сериалы-дорамы, феномен k-beauty, следит за триумфами корейского кино на международных фестивалях. Нобелевская премия по литературе, присужденная корейской писательнице Хан Ган в 2024, также стала символом этого культурного подъема. Возможно, уже скоро мир заговорит и о халлю («корейской волне») в архитектуре. Пока же в этой сфере идет движение в обратном направлении: ведущие западные архитекторы по-прежнему приглашаются в Корею. С начала 2000-х здесь успели поработать почти все мировые «звезды», превратив страну в одну из самых динамичных «сцен» современной архитектуры.
Броские, фотогеничные здания стали визитной карточкой Сеула, а стремление к созданию архитектурного вау-эффекта в социальных сетях превратилось в одну из стратегий мэрии и городского комитета по туризму. Среди примеров – Музей искусств Сеульского национального университета – SNUMoA (Рем Колхас и OMA, 2009), «Донгдэмун дизайн плаза» (Заха Хадид, 2014), Центр культуры JCC (Тадао Андо, 2015), штаб-квартира конгломерата Amorepacific (Дэвид Чипперфильд, 2017), штаб-квартира компании ST International с арт-пространством SongEun (Herzog & de Meuron, 2021), флагманский бутик Dolce&Gabbana в квартале Чхонгдам-дон (Жан Нувель, 2021) и Центр искусств LG (Тадао Андо, 2022).
Архитектурный бум последних лет охватывает не только государственные инициативы, но и частный сектор, особенно крупные корпорации (Samsung, Hyundai, Amorepacific и др.). Показателен пример частного музея Leeum в Сеуле, в основе собрания которого – художественная коллекция Ли Бён Чхоля, основателя Samsung. Для его создания Культурный фонд Samsung пригласил сразу трех архитекторов мирового уровня – Марио Ботту, Жана Нувеля и Рема Колхаса (2004).
Многие современные проекты в Корее реализуются по смешанным схемам, когда застройщиком выступает частная компания, а город оказывает ей поддержку через инфраструктурные или урбанистические программы. В стратегию мэрии Сеула заложены разнообразные механизмы стимулирования частного сектора, например, налоговые льготы или система бонусов коэффициента плотности застройки (FAR bonus/incentive zoning). По этой схеме столичные власти позволяет девелоперам строить здания большей площади в обмен на полезные городу компоненты: архитектурно значимые проекты, парки, общественные пространства. Также существует официальная конкурсная программа 공모형 민간투자사업 («частный инвестиционный проект публичного типа»), в рамках которой Сеул выбирает участок и устанавливает условия строительства (площадь, высотность, программу с полезными городу объектами и т. п.), а затем реализует проект совместно с победителем конкурса – девелопером, стоящим во главе консорциума (архитекторы, конструкторы, подрядчики и др.). Такая модель сочетает частный капитал и креативный потенциал с общественными интересами и тем самым минимизирует нагрузку на городской бюджет.
Lightwalk – транспортно-пересадочный узел района Каннам на проспекте Ёндон-дэро
© Rayus/ Dominique Perrault Architecte /adagp
Среди зарубежных архитекторов, активно работающих в Корее, видное место занимает Доминик Перро. Помимо проектов уже завершенных (например, большого образовательного комплекса страховой компании Hanwha в Йонъине, 2019) и находящихся на стадии реализации (скажем, в Сеуле стартуют строительство многофункционального комплекса Twin Peaks и реконструкция элитного жилья «Апгуджон-2»), в 2021 Перро был генеральным директором (то есть главным куратором) 3-й Сеульской биеннале архитектуры и урбанизма, особенно важного форума именно в контексте бурного архитектурного развития Южной Кореи. Но даже на фоне этих достижений и архитектурного бума в целом проект Lightwalk, который сейчас входит в активную фазу строительства в центре Сеула, поражает масштабом и амбициозностью замысла.
Транспортный узел
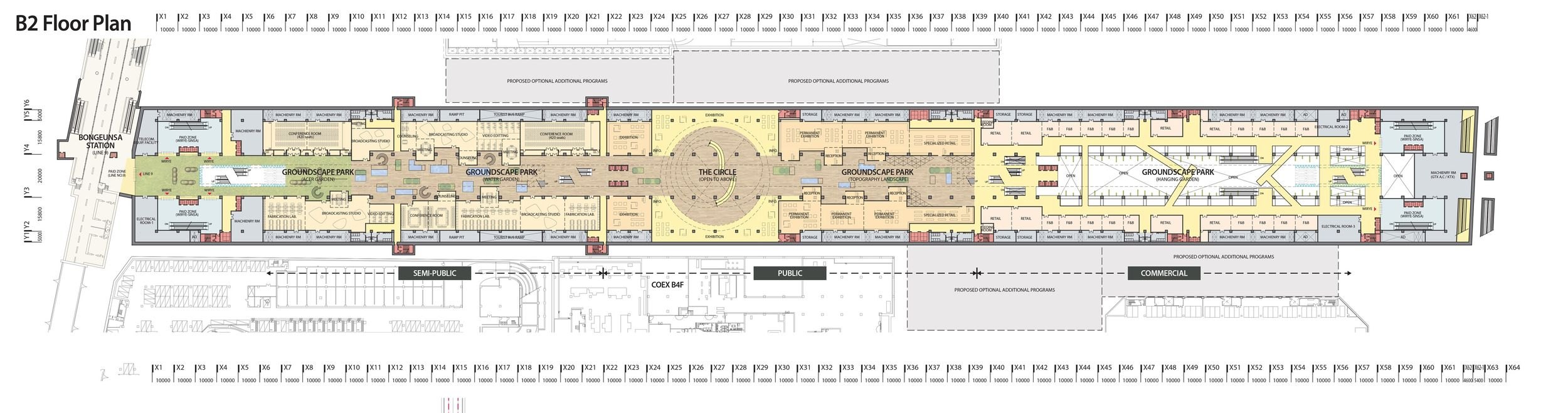
Проект Lightwalk, разработанный бюро Доминика Перро совместно с местной мастерской Junglim Architecture, был выбран в результате международного конкурса, проведенного в 2017. Цель проекта – создание транспортно-пересадочного узла Ëндон-дэро в одном из самых оживленных районов Сеула – Каннаме. Это крупнейшее подземное строительство в истории Южной Кореи: 167 000 м2 охватывают шесть подземных уровней с двумя линиями метро, двумя линиями экспресс-поездов GTX, автовокзалом, общественными пространствами, коммерческими и офисными помещениями; сверху появится наземный променад длиной в километр. Влияние проекта на городской ландшафт трудно переоценить.Место действия – Каннам – сам по себе легенда. До 1960-х здесь простирались рисовые поля, а теперь район стал символом богатства, успеха и современного образа жизни, о чем с иронией поет исполнитель PSY в знакомом многим хите Gangnam Style, открывшем музыке k-pop двери на мировую сцену. История Каннама – это история стремительного урбанистического преображения: буквально за два десятилетия (с 1970-х по 1990-е) вместо сельскохозяйственных угодий появились широкие проспекты, современные жилые комплексы, деловые кластеры с штаб-квартирами Samsung, Hyundai, LG и других бизнес-гигантов, корпоративные и культурные пространства.
Lightwalk – транспортно-пересадочный узел района Каннам на проспекте Ёндон-дэро
© Dominique Perrault Architecte
Будучи одной из крупнейших агломераций мира (здесь живет около 26 миллионов человек, или 52 % населения страны), Сеул, в отличие от многих других столиц, не имеет единого ядра. Его формируют несколько традиционных центров притяжения: историческая часть с королевскими дворцами и мэрией, университетский Хондэ, клубно-развлекательный Итэвон, финансово-административный Ёыйдо, деловой Каннам и другие. Большие территориальные разрывы между районами и интенсивный трафик заставляют муниципальные власти постоянно развивать транспортную сеть, чтобы город оставался мобильным и связным. К обширной сети метрополитена с 2025 добавились линии экспресс-поездов (GTX), соединяющие города-спутники с ключевыми районами Сеула, проходя столицу насквозь. Две такие линии пересекутся с двумя линиями обычного метро (2 и 9) в будущем ТПУ Ëндон-дэро. Помимо метро, проект включает подземный автовокзал и, возможно, станцию высокоскоростных поездов дальнего следования (KTX). Так получится универсальный узел, который объединит все виды городского и регионального транспорта.
ТПУ протянется вдоль проспекта Ëндон-дэро, одной из главных магистралей южного Сеула, рядом с крупнейшим в городе конгресс-центром Coex (он прежде всего известен своей популярной у пользователей соцсетей эффектной библиотекой Starfield по проекту бюро Gensler).
Lightwalk – транспортно-пересадочный узел района Каннам на проспекте Ёндон-дэро
© Rayus/ Dominique Perrault Architecte /adagp
Хотя основная функция объекта – утилитарно-транспортная, подземная площадь в 167 000 м2 задумана как полноценное общественное пространство. Помимо большой зеленой зоны на поверхности (она перекроет проходящий здесь проспект Ёндон-дэро, а тот уйдет под землю), которая будет служить площадкой для ярмарок, летних фестивалей и зимнего катка, планируется создать в ТПУ выставочные пространства, а также многочисленные офисные и коммерческие зоны. По оценкам мэрии Сеула, ежедневно ТПУ будут пользоваться около 600 000 пассажиров.
В интервью англоязычной газете The Korea Herald Доминик Перро отметил, что проект Lightwalk призван открыть новую страницу в истории урбанистических подземных пространств, превращая инфраструктурный узел в живую, многофункциональную городскую среду.
Горизонталь вместо вертикали
В стремительно развивающемся ввысь Сеуле французский архитектор задумал многомиллиардный проект «в горизонтали», внеся радикально зеленую пешеходную паузу в одну из самых загруженных магистралей города. Повторяя удачный опыт преобразования автотрассы в 11-километровую прогулочную зону вдоль ручья Чхонгечхон (2005) и эстакады у Центрального вокзала в променад Seoullo 7017 (2017, MVRDV), проблему задыхающегося в пробках мегаполиса власти города пробуют решить внедрением в плотную коммерческую и офисную застройку проспекта Ëндон-дэро пешеходной зоны в 32 000 м². Подобный линейный парк по сути продолжает традиционные французские парковые партеры (от Пале-Руаяль в Париже до центральной ленотровской оси Версаля). В этом месте Ëндон-дэро уйдет под землю, оставив на поверхности, в прямоугольной сетке проспектов, километровый зеленый отрезок – своеобразный «геометрический эталон», по выражению бюро Перро.Lightwalk – транспортно-пересадочный узел района Каннам на проспекте Ёндон-дэро
© Rayus/ Dominique Perrault Architecte /adagp
Входящий в двадцатку самых «высотных» городов мира Сеул получает гигантский проект, который в буквальном смысле переворачивает представление о новой архитектуре мегаполисов: он развивается по горизонтали и в глубину, а не вертикально. Своеобразный антоним окружающим небоскребам – «граундскейп» (groundscape) – термин, придуманный Домиником Перро для обозначения почти 60 подобных своих проектов. В описании ТПУ Ëндон-дэро бюро Перро амбициозно называет его «новым горизонтом», подчеркивая его концептуальное и визуальное отличие от привычного городского ландшафта.
«Светлый путь»
Главная, революционная, идея проекта, которая и дала название комплексу – Lightwalk – это внедрение в многоуровневые подземные пространства дневного света с помощью «светового луча». Эта система шахт с отражающими поверхностями, позволяющими солнцу проникать максимально глубоко, сравнивается в проекте Перро со старинными люстрами c хрустальными подвесками, усиливающими свет свечей. Также предполагается использовать эти шахты для вентиляции и поддержания температурно-влажностного режима на нижних уровнях комплекса. В темное время суток шахты, наоборот, будут направлять искусственный свет на поверхность, наполняя наземный парк мягким сиянием.Lightwalk – транспортно-пересадочный узел района Каннам на проспекте Ёндон-дэро
© Rayus/ Dominique Perrault Architecte /adagp
Lightwalk – транспортно-пересадочный узел района Каннам на проспекте Ёндон-дэро
© Rayus/ Dominique Perrault Architecte /adagp
«Свет крайне важен, чтобы людям хотелось пользоваться этим пространством. Если естественный свет не будет проникать внутрь, получится, что мы построили крупнейшую в мире пересадочную станцию – и похоронили ее под землей», – отмечает архитектор в интервью газете The Korea Herald.
В официальных соцсетях бюро Перро источниками вдохновения проекта названы исторические маяки, верхние световые окна Центрального вокзала в Нью-Йорке, а также оптические опыты Исаака Ньютона по преломлению света через линзы. Эти примеры подчеркивают философию проекта: свет как архитектурная материя, формирующая пространство.
Lightwalk – транспортно-пересадочный узел района Каннам на проспекте Ёндон-дэро
© Rayus/ Dominique Perrault Architecte /adagp
Для того, чтобы проложенные глубоко пересадочные коридоры не превращались в «мрачные подземелья», проект предусматривает широкое использование зеленых насаждений и водных элементов. Такая практика уже стала привычной для некоторых станций и переходов сеульского и пусанского метрополитенов, где вертикальное озеленение (стены с живыми растениями) превращает часто депрессивное подземное пространство в более человечное и комфортное.
Узел проблем
Строительство ТПУ в районе проспекта Ëндон-дэро стало серьезным вызовом для Сеула. Выделенный первоначально бюджет в 600 млрд вон (около $430 млн) оказался недостаточным: общая стоимость проекта уже оценивается в 1,5 трлн вон (около $1,1 млрд). Изначально открытие станции планировалось на 2023 год, но затягивание сроков стало закономерным – у процесса слишком много участников, а согласования между Министерством земельных ресурсов, девелопмента и транспорта и мэрией Сеула чрезмерно сложны. Сейчас разногласия урегулированы, и завершение проекта обещают к 2028 году.Lightwalk – транспортно-пересадочный узел района Каннам на проспекте Ёндон-дэро
© Dominique Perrault Architecte
Сложности усугублялись рядом параллельных проектов, включая Глобальный бизнес-центр (GBC) Hyundai, который должен стать символом нового, международного, уровня района Каннам («сделать его корейским Дефансом», по выражению представителей мэрии). Исходная идея столкнулся с юридическим препятствием: компания Hyundai, с самого начала работающая в рамках FAR (Floor Area Ratio) bonus/incentive zoning в партнерстве с мэрией Сеула и администрацией района Каннам, решила заменить утвержденный проект единого 569-метрового небоскреба (бюро SOM) на три здания меньшей этажности (Foster + Partners), что замедлило согласование не только планов компании, но и ТПУ, который предполагается соединить подземными переходами с деловыми зданиями по соседству – включая GBC Hyundai (расположится штаб-квартира Hyundai Motor и т. п.).
Еще одна задержка связана с отказом одного из подрядчиков, Lotte Engineering & Construction, участвовать в строительстве второго участка ТПУ из-за роста затрат – несмотря на свою победу в тендере. После пересмотра бюджета тендера из-за отсутствия кандидатов, город увеличил бюджет участка на 672 млрд вон, после чего строительство возобновила Hyundai Engineering & Construction, которая уже работала на третьем участке. DL E&C, между тем, ведет работы на первом участке.
Lightwalk – транспортно-пересадочный узел района Каннам на проспекте Ёндон-дэро
© Rayus/ Dominique Perrault Architecte /adagp
В настоящий момент завершаются работы по прокладке инженерных коммуникаций и вентиляционных шахт для линии скоростного метро GTX. При этом была отменена первоначальная интеграция в ТПУ линии скоростных поездов дальнего следования (KTX): анализ Министерства транспорта показал неэффективность использования для нее тех же путей, что и для GTX, что потребовало срочной переработки планировки станций и линий.
Подобное масштабное строительство закономерно вызывает неудобства для тех, кто работает и живет поблизости: на проспекте Ëндон-дэро, где строится ТПУ, вместо шести полос движения с каждой стороны осталось по две, а на месте остального дорожного полотна вырыт котлован. Хотя после завершения работ километровый участок проспекта будет убран в туннель, сохранив свою изначальную пропускную способность, недовольство горожан, называвших эту магистраль за гигантские пробки и до старта строительства «дорогой в ад», вполне понятно. И если в некоторых случаях сеульская мэрия в ответ на многочисленные жалобы жителей изменяла свои планы (например, так был отменен проект перестройки экспресс-трассы Себу), здесь администрация района Каннам лишь принесла официальные извинения за приносимые во время строительства неудобства.
Lightwalk – транспортно-пересадочный узел района Каннам на проспекте Ёндон-дэро
© Dominique Perrault Architecte
Тревогу сеульцев вызывает масштаб строительства: сейчас работы идут в котловане глубиной 35 м (в целом ТПУ достигнет глубины около 45 м). Пользователи социальных сетей обеспокоены безопасностью строительства. Они серьезно опасаются провалов грунта, которые уже случались в Каннаме, или же шутливо предполагают, что по таким подземным туннелям и вторгнется северокорейская армия – ведь расстояние от Сеула до границы с КНДР всего 24 км. Чтобы обеспечить безопасность, город внедрил инновационные меры: систему радарного зондирования почвы, снабжение рабочих видеорегистраторами, создание сети наблюдения за проседанием грунта до 20 м. Об этом сообщил мэр Сеула – О Сехун – на специальной пресс-конференции, организованной непосредственно на месте стройки в апреле 2025-го.
Но описанные финансово-организационные сложности пока не имеют прямого отношения к архитектурной составляющей плана. Бюро Доминика Перро тем временем поддерживает мэрию Сеула, проводя информационную кампанию по разъяснению важности проекта публике.
Magnum opus
Если брать Lightwalk исключительно как произведение архитектуры, вне его сложной функциональной программы и большого экономического значения для Сеула, он важен не только своим масштабом и новаторством. Проект воплощает ключевые идеи философии архитектуры Доминика Перро, это своего рода программное произведение мэтра. Только что в свет вышла большая монография, посвященная работам Перро (Dominique Perrault. Gallimard, 2025), с текстами Нины Лежер, Эрика де Шассей и Барри Бергдолла. Однако его основные теоретические идеи были сформулированы еще в издании «Граундскейпы – другие топографии» (Groundscapes – Autres topographies. HYX, 2016), где Перро размышляет о проблемах современного города: высокой плотности застройки, постоянном росте населения и урбанизации все больших территорий. В ответ на эти вызовы он вводит понятие «граундскейп» (groundscape), альтернативную высотным зданиям архитектуру, которая развивается вглубь земли, а не только вверх. Отдельный раздел – «Архитектоники» – рассматривает взаимодействие архитектурной формы с рельефом. Подземное пространство не противопоставляется наземному, но становится его естественным продолжением, частью сложной, многослойной городской ткани. Архитектура работает со «слоями» земли, создавая новые ландшафты и уходя вглубь, при этом учитывает природный контекст. Последнее особенно актуально для южнокорейской столицы с ее длинным, экстремально жарким летом и очень холодной зимой.Lightwalk – транспортно-пересадочный узел района Каннам на проспекте Ёндон-дэро
© Rayus/ Dominique Perrault Architecte /adagp
Представляя проект Lightwalk на сеульском форуме «Nexus Seoul Next100: Chief Architect Partners Forum» в марте 2025-го, Доминик Перро сравнил город с живым организмом, а здания – с деревьями в лесу. Как деревья не могут существовать без корней, так и городу необходимы подземные пространства, питающие его структуру и обеспечивающие устойчивое развитие. Эти своеобразные «корни города» помогают ему расти, меняться и обновляться.
Lightwalk – транспортно-пересадочный узел района Каннам на проспекте Ёндон-дэро
© Rayus/ Dominique Perrault Architecte /adagp
В философии Перро «граундскейп» – это не просто архитектурная стратегия, а новый способ восприятия города как живой субстанции, где над- и подземные сооружения – взаимосвязанные элементы. Эта органическая метафора тесно связана с его экологическим мышлением: архитектура должна не столько покорять ландшафт, сколько врастать в него, взаимодействовать с землей, климатом и природными циклами.
Lightwalk – транспортно-пересадочный узел района Каннам на проспекте Ёндон-дэро
© Rayus/ Dominique Perrault Architecte /adagp
Как и в других своих проектах (например, cосны, высаженные среди корпусов Национальной библиотеки Франции в Париже, или яблоневый сад, окружающий Олимпийские велодром и бассейн в Берлине), в сеульском комплексе Перро вновь обращается к языку природы. Здесь партер из деревьев, соразмерных человеку, одновременно отделит и свяжет парк на крыше ТПУ с окружающим городом, мягко задавая границы пешеходному променаду; в то же время вертикальный ритм деревьев вплетает пешеходное пространство в окружающий ландшафт небоскребов. Земля в этом понимании – не просто опора для зданий, а живая основа города, посредник, способный соединять различные уровни урбанистического пространства. Она участвует в формировании здесь среды не меньше, чем воздух, свет или вода.
В проекте Lightwalk получает развитие и другая ключевая тема творчества Перро – концепция «универсальной пустоты» (le vide générique), проявляющаяся во многих его знаковых постройках. В Сеуле Перро вновь демонстрирует, что главным «строительным материалом» может быть совсем не материальный элемент. Во многомиллиардном проекте, который реализуется в деловом и финансовом центре одного из самых «пафосных» районов южнокорейской столицы, где все направлено на осязаемый и быстрый результат, на демонстрацию успеха и эффективности, центральным компонентом становится нечто неосязаемое – солнечный свет. Именно он играет ведущую роль, выступая проводником между поверхностью Земли и ее глубинами, между городом и природой, между людьми и их средой обитания. Он делает подземное пространство живым и дышащим, становясь главным выразительным средством архитектуры.
Lightwalk – транспортно-пересадочный узел района Каннам на проспекте Ёндон-дэро
© Dominique Perrault Architecte
Lightwalk – транспортно-пересадочный узел района Каннам на проспекте Ёндон-дэро
© Dominique Perrault Architecte
Lightwalk – транспортно-пересадочный узел района Каннам на проспекте Ёндон-дэро
© Dominique Perrault Architecte
Lightwalk – транспортно-пересадочный узел района Каннам на проспекте Ёндон-дэро
© Dominique Perrault Architecte
