Гостиница The Telegraph Hotel
Фото © Pedro Pegenaute & Silk Road Group
Внешний вид постройки после реконструкции почти не изменился, также сохранена бетонная несущая конструкция, причем часть ее опор и балок раскрыты в интерьер «как есть», без штукатурки и облицовки.
Гостиница The Telegraph Hotel
Фото © Pedro Pegenaute & Silk Road Group
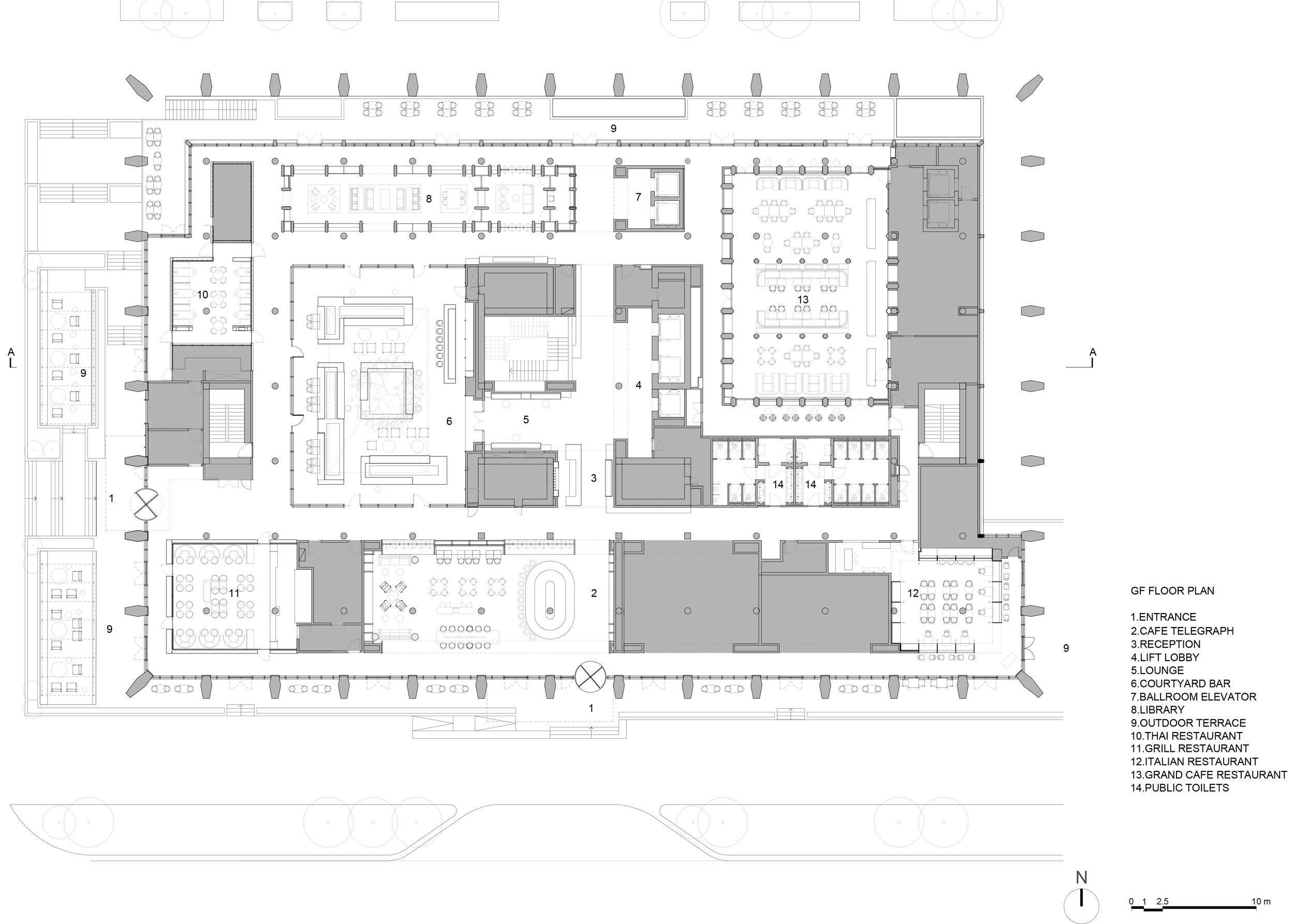
Архитекторы не хотели превращать проект в тщательную реконструкцию прошлого, которую они сравнивают с бальзамированием, поэтому в проекте соседствуют эти грубые бетонные поверхности, кожа, мрамор, роскошные люстры. Важной была и социальная составляющая: первый этаж занят несколькими ресторанами и барами, а также обшитой панелями из орехового дерева библиотекой, то есть открыт вовне и доступен горожанам. Neri&Hu сравнивают это с предшествующей функцией постройки, когда ради писем, посылок, телеграмм и междугородних звонков сюда всегда приходило много тбилисцев.
Гостиница The Telegraph Hotel
Фото © Pedro Pegenaute & Silk Road Group
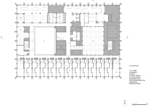
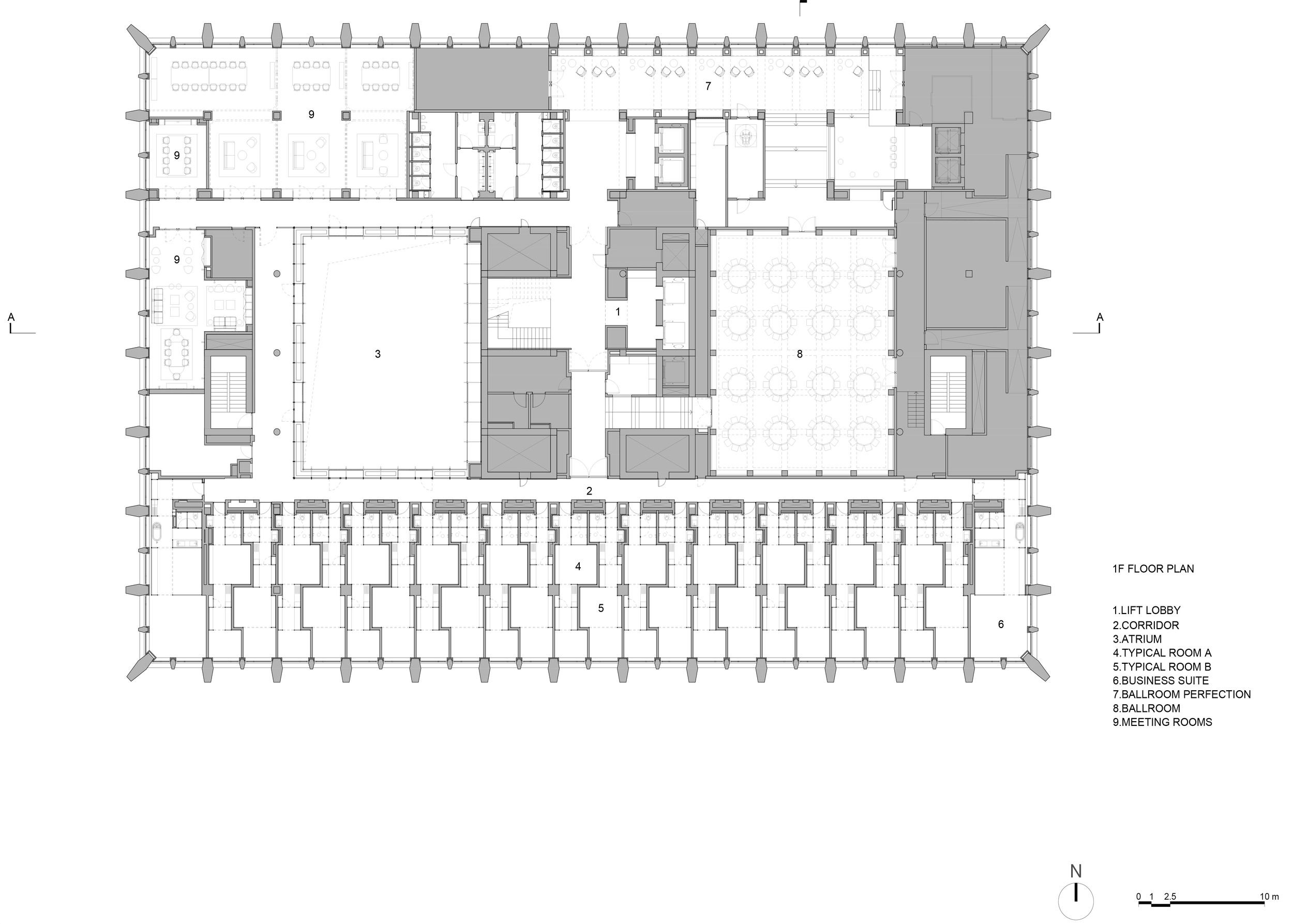
Эта «городская» тема поддержана на первом этаже использованием травертина на полу и для стойки администратора, сидениями, похожими на уличную мебель, темным металлом и деревом, а также планировкой, напоминающей об улочках Старого Тбилиси.
Гостиница The Telegraph Hotel
Фото © Pedro Pegenaute & Silk Road Group
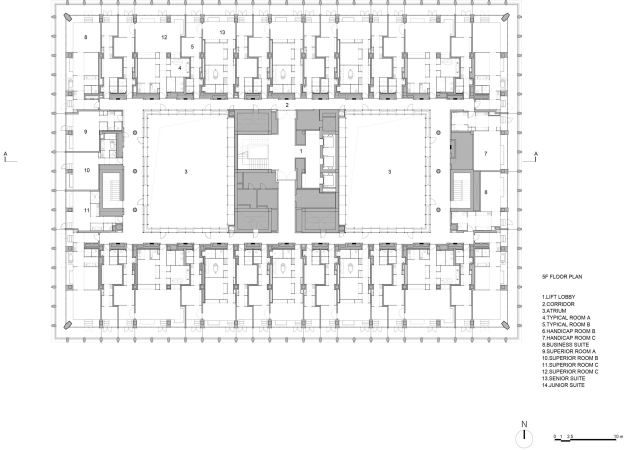
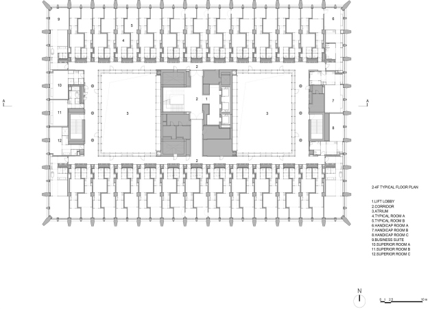
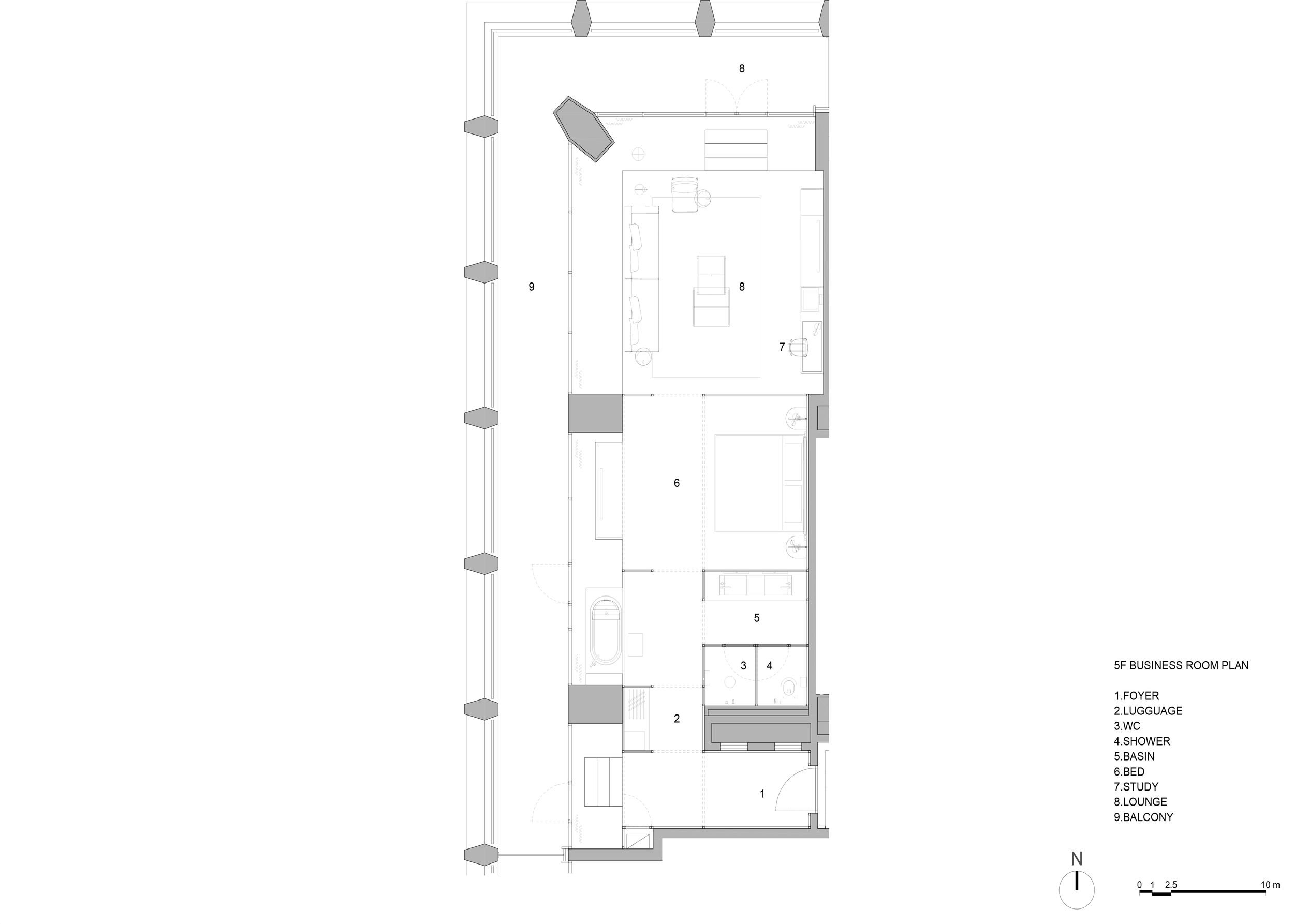
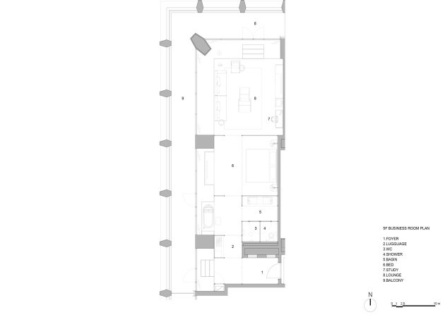
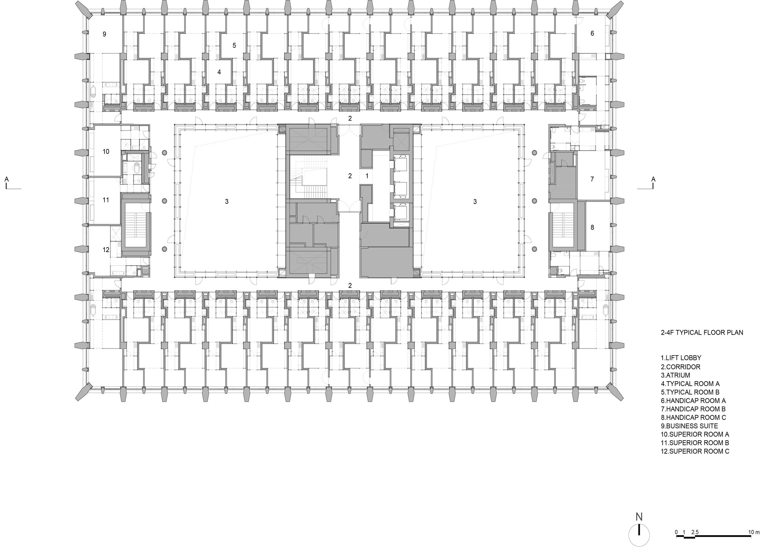
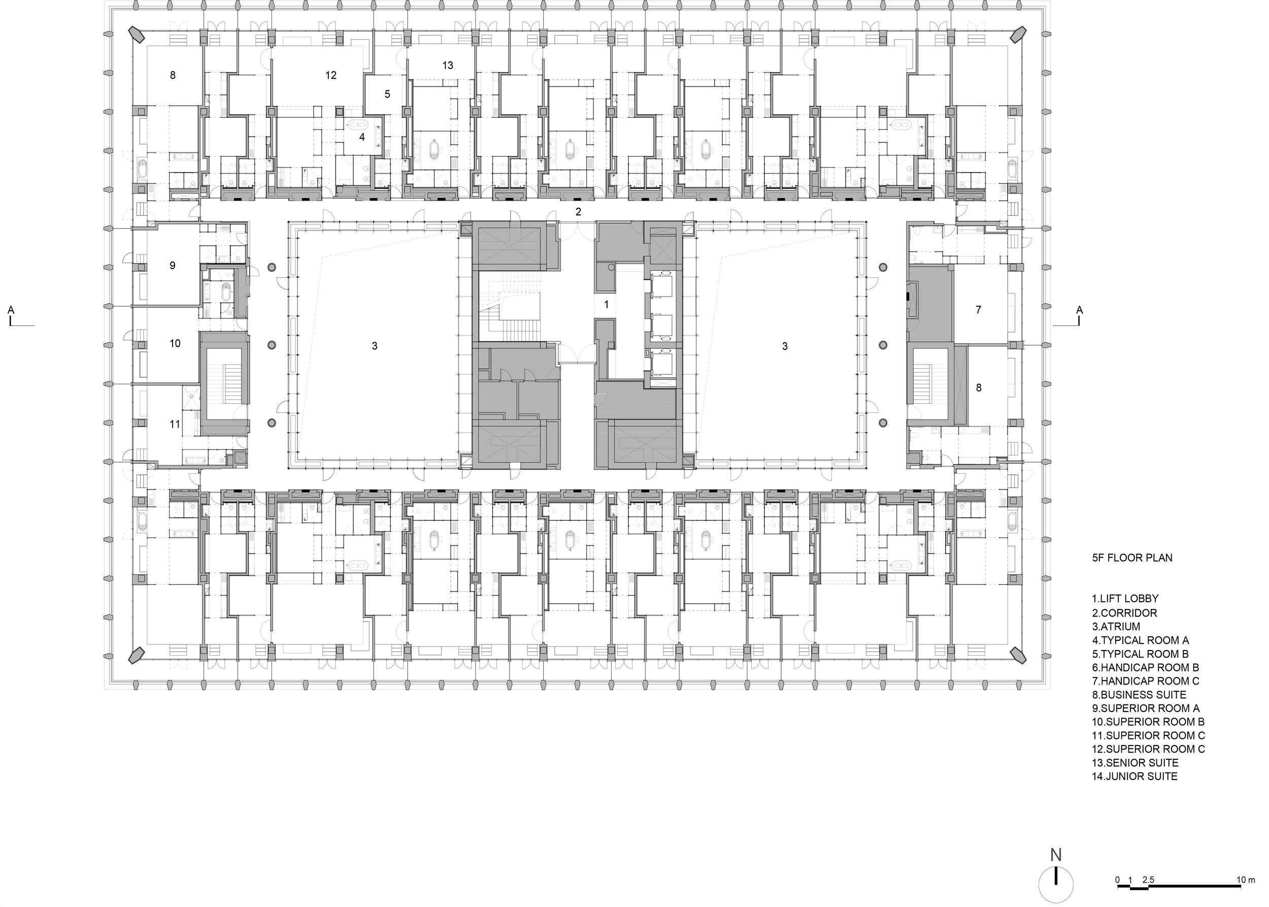
Еще одна тема – проницаемость: как внизу, так и на верхних этажах, где расположены 239 гостиничных номеров, перегородки часто выполнены из рифленого стекла. Так сделано не только в коридорах, но и внутри номеров, где использован металлический «скелет» с такими стеклянными вставками. Источник вдохновения здесь – спальный вагон, что архитекторы выводят из названия заказчика – грузинской компании Silk Road Group (речь идет о путешествии по Шелковому пути).
Номера сгруппированы вокруг озелененного внутреннего двора, который также оформлен наподобие знаменитых тбилисских дворов, и дополнительного атриума.
Гостиница The Telegraph Hotel
Фото © Pedro Pegenaute & Silk Road Group
Гостиница The Telegraph Hotel
Фото © Pedro Pegenaute & Silk Road Group
