Промзоны, впрочем, уже трансформируются, частью в арт-кластеры, как к примеру расположенный в полутора километрах отсюда завод Севкабель, но в основном в жилую – городскую – застройку. Город, как это принято в наше постиндустриальное время, постепенно наступает на заводские территории, превращая их из закрытых промышленных в жилые и, в разной степени, общественные. В частности, к западу от Горного института девелоперская компания Setl City строит два жилых комплекса: один, подальше от реки, ЖК «Палацио», уже почти построен, он состоит из разноцветных секций, перенимающих окраску от соседних линий Васильевского острова с некоторым усилением их яркости. Второй жилой комплекс для того же девелопера недавно спроектирован «Студией 44» Никиты Явейна на более ответственном месте – прямо на набережной, рядом с портиком Воронихина. Градсовет рассмотрел и принял проект в апреле.
Жилой комплекс «Красин». Слева ледокол «Красин», справа Горный институт
                © «Студия 44»
        ЖК «Красин», названный по имени музеефицированного ледокола, припаркованного прямо перед ним, расположен на территории бывшего конструкторского бюро котлостроения, переехавшего в 2018 году. Исторически это место известно как «Масляный буян» (буян – это пристань для выгрузки товаров и место торговых амбаров). Еще в 1940-е он был искусственным островом, отделенным от суши Масляным каналом, в который корабли могли заходить для погрузки-разгрузки и где впоследствии швартовались, как в бухте. К 1960-м канал засыпали, но окружающая территорию с двух сторон улица носит имя «Масляный канал».
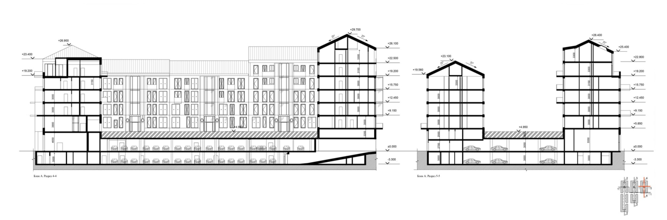
Окружение, как уже было сказано, контрастное и ценное, хотя по-разному. Ледокол и портик Горного института работают на классическую «петербургско-туристическую» тематику, вынуждают к подтянутости и, конечно, в наибольшей степени именно здание Воронихина стало причиной высотных ограничений – ближе к нему 22 м, подальше 33 м. Кроме того, участок попадает в границы исторического поселения и комплекс будет хорошо виден с Невы, что делает ограничения особенно строгими: отсюда скатные кровли с углом наклона 25°, уменьшение высотности к реке, сдержанный тон фасадов и природные материалы – фактуры кирпича и камня.
Жилой комплекс «Красин»
                © «Студия 44»
        Другие элементы окружения не столь очевидны, но тоже важны, это Кожевенный завод Парамонова к западу, на противоположной стороне улицы Масляный канал, со зданиями конца XIX века в духе промышленного историзма классицистического толка – в них планируется разместить поликлинику и школу, и, рядом, к северу, вероятно, еще один квартал ЖК.
Жилой комплекс «Красин»
                © «Студия 44»
        Масляный канал заворачивает под прямым углом направо и здесь обнаруживается еще один знаковый элемент – водонапорная башня канатного цеха, построенная Яковом Черниховым, элегантный городской акцент на тонких бетонных ножках.
Жилой комплекс «Красин»
                © «Студия 44»
        Кроме того, жилые дома Васильевского острова к востоку и северу дают пример сдержанно-разнообразного фронта застройки, от классицизма к историзму и модерну, а заводские строения XIX века к западу демонстрируют склонность к красно-кирпичному стилю фасадов. Сама же территория Масляного буяна была в позднесоветское время застроена тремя невыразительными заводскими корпусами, один из которых в последние годы сдавали в аренду под офисы.
Жилой комплекс «Красин». Ледокол «Красин» (0), вход в Морской канал (МК), корпусообрабатывающий цех (1), механический цех (2), стапель А, большой (3), АТЭС «Академик Ломоносов» на достройке. © Студия 44
                © «Студия 44»
        Неудивительно, что работе для такого ответственного места предшествовал серьезный градостроительный анализ – прежде всего он коснулся места нового комплекса в составе гипподамовой сетки улиц Васильевского острова. Как известно, она простая и ясная, состоит из прямоугольников, и достаточно крупная: Трезини предложил сетку улиц с расстоянием 320 м в ширину. Затем появилось дополнительное деление, и между улицами, вытянутыми с северо-запада на юго-восток, которые носят название линий Васильевского острова, сейчас по 160 м. Однако исторически внутри некоторых кварталов существовал продольный внутренний проезд-проход, разделяющий его на части продольно (а иногда и поперечно), – так появилась самая узкая в городе улица Репина. Если учесть такие случаи и поделить ячейку меридионально пополам, ширина получается уже близкой к «манхеттенской»: 80 метров.
Авторы учитывают это разделение, исторически существовавшее в непроявленном виде, но считываемое во внутриквартальных пустотах и поддержанное специфической нумерацией улиц: на Васильевском острове считают не проезды как таковые, а линии домов, «красные линии», поэтому каждая улица называется попарно, к примеру, «4-я и 5-я линия», а к Масляному буяну приходит «24-я и 25-я».
Архитекторы взяли за основу самый дробный модуль деления – участок разделился на три равные полосы с двумя внутренними улицами, одна из которых продолжает линию «24 и 25». Сейчас 24-я и 25-я линия завершается тупиком перед улицей Масляный канал – в проекте ее планируется продлить до набережной пешеходным бульваром внутри ЖК, хотя, по решению девелопера, он, к сожалению, будет открыт только для жильцов. Но создаст, тем не менее, перспективный «прострел».
Получились компактные 4-6 этажные кварталы, подчиненные сетке Васильевского острова и в то же время нарисованные более регулярно, тонкими протяженными рамками. Нева здесь поворачивает, и прямоугольники планомерно вырастают по дуге, но не подчиняются скруглению набережной, а выступают вперед ступенями-углами. Этот планировочный прием авторы «подсмотрели» на соседней набережной XVIII–XIX века, где все фасады параллельны направлению проспектов Васильевского острова, и вписаны, таким образом, в общую ортогональную сетку. Перед дугой реки они образуют ступеньки-углы.
Жилой комплекс «Красин». Образование новых кварталов. © Студия 44
                © «Студия 44»
        Набережная Лейтенанта Шмидта к востоку от ЖК «Красин»
                Фотография © «Студия 44»
        А в ЖК Красин эта ступенчатость плана со стороны набережной проявлена сильнее: если в историческом фронте зигзагообразный контур образован фасадами отдельных домов, то здесь – торцами кварталов, по две секции в каждом. Со стороны реки между ними образуются треугольные скверы, – жест в целом становится более монументальным, сопоставление геометричных углов и плавного скругления реки становится противопоставлением рукотворного – природному, проявляя одно из характерных свойств Петербурга.
Жилой комплекс «Красин». Проектное предложение
                © «Студия 44»
        Отступы квартальных торцов в проекте также равномерны в духе «мегалитического» отношения к объемам, свойственного проектам Никиты Явейна. Каждый торец получает во фронте соседнего квартала продолжение в виде узких, как будто ножом разрезанных разрывов – они поддерживают поперечное направление сетки и обеспечивают лаконичные цезуры, позволяющие избежать слишком длинных рядов и открыть проходы во дворы.
Жилой комплекс «Красин»
                © «Студия 44»
        Жилой комплекс «Красин»
                © «Студия 44»
        Получается, что на уровне общих контуров объемного построения идеи обнаружены архитекторами в исторической застройке Васильевского острова, приняты за основу, но приведены к некоему стереометрическому знаменателю, и тем самым заострены и усилены. Такой подход к контексту интересен аналитичностью.
В отношении фасадов происходит обратный процесс – если объемы в целом стремятся к регулярности и укрупнению, то фасады намеренно раздроблены, оживлены разнообразием фактур, материалов и геометрии. Каждая секция – всего их 44 – получила собственный рисунок и высоту, несколько отличную от соседних, что дает легкие колебания силуэта. Параметры всех секций также стали результатом анализа структуры застройки Васильевского острова, прежде всего набережной.
Поэтому ширина большинства секций, как и у исторических фасадов вдоль реки – 22 метра. С тыльной стороны комплекса она увеличивается вдвое – до 50 м, но не больше. Здесь торцевые дома увенчаны пилонадами аттиков, отчего приобретают большую монументальность, выстраивая с этой стороны подобие (или, может быть, «зачаток») проспекта.
Жилой комплекс «Красин»
                © «Студия 44»
        Жилой комплекс «Красин»
                © «Студия 44»
        Фасады перенимают ритм и масштаб старой застройки, но полностью исключают прямые цитаты декора исторической архитектуры, сосредотачиваясь на ритме, пропорциях, фактуре и тоне. Со стороны Горного института и регулярного исторического города, где высотность меньше, преобладает камень и светлые тона, с противоположной стороны, с запада, как и с севера, где комплекс граничит с индустриальной застройкой и подрастает в высоту, больше темного кирпича. Комплекс откликается фасадами практически на всех соседей.
Жилой комплекс «Красин»
                © «Студия 44»
        Жилой комплекс «Красин»
                © «Студия 44»
        Ближе к водонапорной башне авангардиста Якова Чернихова более заметной становится роль круглых окон, характерных для архитектуры 1920-х – 1930-х годов и, кроме того, любимых Никитой Явейном (в каждый свой проект он считает нужным добавить хотя бы одно круглое окно; такое окно есть и в рабочем кабинете архитектора).
Жилой комплекс «Красин»
                © «Студия 44»
        На фасадах активно используется прием многослойности, один материал, к примеру кирпич, трактуется как крупная внешняя «сетка», другой, к примеру камень – как внутренняя материя. Стекло оживляет традиционные материалы выступами балконов и эркеров, тонкими ограждениями и пластичными «видовыми» цилиндрами на углах – но в целом его немного, в составе проектных материалов имеется даже схема, наглядно демонстрирующая преобладание «каменных» поверхностей.
Жилой комплекс «Красин»
                © «Студия 44»
        Жилой комплекс «Красин»
                © «Студия 44»
        С другой стороны, архитекторы вообще не используют окрашенную штукатурку – казалось бы, самый характерный материал фасадов Васильевского острова. Это позволяет избежать пестроты и усилить элемент респектабельности – для современного ЖК в центре «натуральные материалы фасада» служат несомненным плюсом.
Если исторические детали для архитекторов под этическим запретом, то исторический силуэт, напротив, полноправен. Помимо легкой вариативности высоты секций и скатных кровель на узнаваемость силуэта «старого города» работают вентвыходы, решенные в виде пластин, напоминающих группы труб-дымоходов, а в некоторых случаях вынесенные на торцы и остро напоминающие о каминах.
Дворы внутри кварталов приподняты и размещены на кровлях стилобатов. С улиц туда ведут монументальные лестницы с амфитеатрами.
Жилой комплекс «Красин»
                © «Студия 44»
        Вдоль западного фасада комплекса по улице Масляный канал перед сплошной чередой магазинов тянется городская галерея: она расширяет тротуар, позволяет пройтись мимо витрин, спрятаться от дождя и в то же время отчасти компенсирует закрытый статус внутренних улиц комплекса – мимо него можно будет с удобством пройти к набережной Лейтенанта Шмидта.
Под каждым кварталом расположен один ярус подземной парковки, совмещенный с кладовыми для жильцов, под двором еще один ярус парковки, надземный. Пространства, расположенные в уровне города, устроены сложно и, конечно, далеко не все отданы парковкам: по внешнему периметру зданий запланировано много кафе и магазинов, а часть помещений под дворами внутри кварталов отдана фитнесам с двумя бассейнами, один из них, большего размера, освещается крупными зенитными фонарями из двора. То есть несмотря на то, что внутренние улицы комплекса будут закрытыми, он должен дать городу достаточно много.
В первых этажах расположены квартиры с собственными палисадниками, выходящими на внутренние бульвары. Комплекс достаточно дорогой (так его характеризует пресса, да и расположение, и небольшая высотность обязывают к «клубному» формату), поэтому его квартирография разнообразна, есть и трех-, и четырехкомнатные квартиры – последние группируются в основном на углах с видами на Неву.
Как видим, жилой комплекс премиального класса в центре Петербурга представляет собой результат вдумчивой аналитической работы с контекстом – помимо отклика на визуальные особенности окружения он настроен на продолжение и развитие структуры городской ткани, восходящей к регулярной планировке XVIII века, причем некоторые ее особенности намеренно акцентированы ради ответа на особенности участка и поставленной задачи. Небольшая, комфортная высотность задана ограничениями и поддержана элитным статусом жилья, а подчеркнутое ритмическое разнообразие становится откликом на мелкую нарезку фасадов исторической застройки. В конечном счете комплекс становится своего рода «переходным звеном» между двумя очень разными частями города: парадной и промышленной. Портовые краны и корабли, как музейные, так и строящиеся, придают обстановке некоторую пикантность, и тем не менее ЖК становится очередным шагом городской ткани, комфортной и обитаемой, в сторону расширения-реплицирования на основе модуля, заданного когда-то Трезини и Леблоном.

 
                         
            
            
        
 
                            
 
                                         
                                         
                                         
                                         
                                         
                                         
                             
                             
                             
                             
                                         
                                         
                                         
                                         
                                         
                                         
                             
                             
                             
                             
                             
                                         
                                         
                                         
                             
                             
                             
                             
                             
                             
                             
                             
                                         
                                         
                                         
                                         
                                         
                                         
                                         
                                         
                                        
 
                     
                                                                        
                                                                     
                                                                        
                                                                     
                                                                        
                                                                     
                                                                        
                                                                     
                                                                        
                                                                     
                                                                        
                                                                     
                                                                        
                                                                     
                                                                        
                                                                     
                                                                        
                                                                     
                                                                        
                                                                     
                                                                        
                                                                     
                                                                        
                                                                     
                                                                        
                                                                     
                                                                        
                                                                     
                                                                        
                                                                     
                                                                        
                                                                     
                                                                        
                                                                     
                                                                        
                                                                     
                                                                        
                                                                     
                                                                        
                                                                     
                                                                        
                                                                     
                                                                        
                                                                     
                                                                        
                                                                     
                                                                        
                                                                     
                                                                        
                                                                     
                                                                        
                                                                     
                                                                        
                                                                     
                                                                        
                                                                     
                                                                        
                                                                     
                                                                        
                                                                     
                                                                        
                                                                     
                                                                        
                                                                     
                                                                        
                                                                     
                                                                        
                                                                     
                                                                        
                                                                     
                                                                        
                                                                     
                                                                        
                                                                     
                                                                        
                                                                     
                                                                        
                                                                     
                                                                        
                                                                     
                                                                        
                                                                     
                                                                        
                                                                     
                                                                        
                                                                     
                                                                        
                                                                     
                                                                        
                                                                     
                                                                        
                                                                     
                                                                        
                                                                     
                                                                        
                                                                     
                                                                        
                                                                     
                                                                        
                                                                     
                                                                        
                                                                     
                                                                        
                                                                     
                                                                        
                                                                     
                                                                        
                                                                     
                                                                        
                                                                     
                                                                        
                                                                     
                                                                        
                                                                     
                                                                        
                                                                     
                                                                        
                                                                     
                                                                        
                                                                     
                                                                        
                                                                     
                                                                        
                                                                     
                                                                        
                                                                     
                                                                        
                                                                     
                                                                        
                                                                     
                                                                        
                                                                     
                                                                        
                                                                     
                                                                        
                                                                     
                                                                        
                                                                     
                                                                        
                                                                     
                                                                        
                                                                     
                                                                        
                                                                     
                                                                        
                                                                     
                                                                        
                                                                     
                                                                        
                                                                     
                                                                        
                                                                     
                                                                        
                                                                     
                                                                        
                                                                     
                                                                        
                                                                     
                                                                        
                                                                     
                                                                        
                                                                     
                                                                        
                                                                     
                                                                        
                                                                     
                                                                        
                                                                     
                                                                        
                                                                     
                                                                        
                                                                     
                                                                        
                                                                     
                                                                        
                                                                     
                                                                        
                                                                     
                                                                        
                                                                     
                                                                        
                                                                     
                                                                        
                                                                     
                                                                        
                                                                     
                                                                        
                                                                     
                                                                        
                                                                     
                                                                        
                                                                     
                                                                        
                                                                     
                                                                        
                                                                     
                                                                        
                                                                     
                                                                        
                                                                     
                                                                        
                                                                     
                                                                        
                                                                    