Жилой комплекс на территории Мытного двора
© Студия 44
ЖК Евгеньевская на территории Мытного двора
© Студия 44
Планы по застройке Мытного двора, автор которого до сих пор не установлен, существуют давно. Одно время здесь планировали разместить консульство США, жители района требовали сад, но, как чаще всего бывает, все свелось к жилью. В 2014 году была снесена значительная часть здания, как потом установил суд – незаконно.
Поэтому вместе с участком новый владелец получил обязательство отреставрировать сохранившиеся со стороны улицы Бакунина двухэтажные корпуса XVIII века и восстановить снесенные полутораэтажные корпуса со стороны Старорусской улицы. Эту часть проектирования «Студия 44» также взяла на себя.
ЖК Евгеньевская на территории Мытного двора
© Студия 44
ЖК Евгеньевская на территории Мытного двора
© Студия 44
ЖК Евгеньевская на территории Мытного двора
© Студия 44
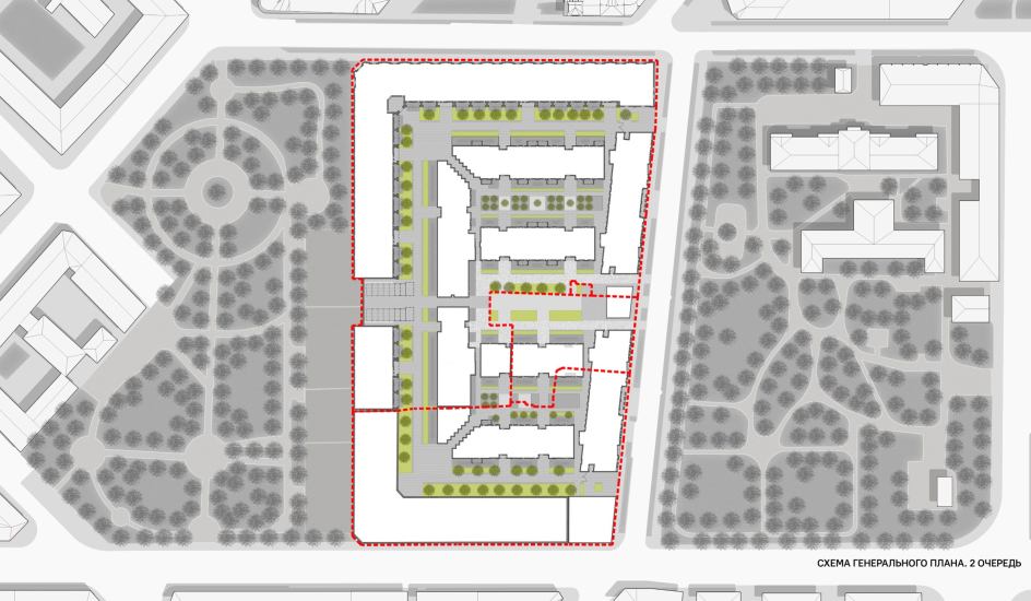
Новые жилые корпуса будут возводить внутри Мытного двора, отчасти они повторят планировочную структуру исторических складов. Фронт новой застройки сформирует улицу Евгеньевскую. Сейчас «Охта-групп» принадлежит около 80% участка, но, вероятнее всего, удастся консолидировать и два оставшихся «пятна», расположенных ближе к проспекту Бакунина. Поэтому Никита Явейн показывал на градсовете первую и вторую очереди комплекса, а также вариант замыкания контура кубическим объемом общественного здания.
Парадоксальным образом после восстановления «контура» Мытного двора большая его часть будет упираться в край Овсянниковского сада и расположенные там теннисные корты и футбольное поле. Это объясняется тем, что раньше здание ориентировалось на Боровичскую улицу, которая с появлением Евгеньевской утратила значение и постепенно стала частью сада.
ЖК Евгеньевская на территории Мытного двора
© Студия 44
Жилой комплекс на территории Мытного двора
© Студия 44
Высота новых домов ниже окружающей исторической застройки: 12 метров до карниза со стороны Евгеньевской улицы и предельные 21 в глубине двора. Такое нехарактерное ограничение, по словам Владимира Григорьева, появилось из-за предыдущего заказчика, который планировал возводить девятиэтажные дома. Почти все высказавшиеся эксперты сошлись во мнении, что ограничение слишком жесткое для данного места, и дома вполне могут быть шестиэтажными. На возможную корректировку ПЗЗ ориентировалась и «Студия 44» – в разрезах видно, что структура домов близка к шестиэтажной за счет увеличения высоты первого и последнего уровней.
ЖК Евгеньевская на территории Мытного двора
© Студия 44
Жилой комплекс на территории Мытного двора
© Студия 44
Еще одно ограничение участка – необходимость сохранения вида с перекрестка улицы Бакунина и 3-й Советской улицы на церковь Шестоковской иконы Божией матери. Из-за него появились террасы по углам новых корпусов.
ЖК Евгеньевская на территории Мытного двора
© Студия 44
ЖК Евгеньевская на территории Мытного двора
© Студия 44
Коммерческие первые этажи дворовых корпусов подчеркнут в соответствии со структурой гостиного двора, а отделка будет откликаться на разнообразие окружающей исторической застройки. Дворы так же разнятся по цвету, у каждого свое колористическое решение. Подземная парковка с запасом обеспечивает весь комплекс машиноместами. У квартир на уровне первом этаже есть небольшой «приусадебный» участок, благодаря чему секции как старой, так и новой застройки напоминают блокированные индивидуальные дома.
ЖК Евгеньевская на территории Мытного двора
© Студия 44
ЖК Евгеньевская на территории Мытного двора
© Студия 44
Вопросы у экспертов вызвали только два момента: связь комплекса с Овсянниковским садом и высотность новых корпусов. Феликс Буянов призвал не замыкать центральный двор кубическим корпусом и расширить арку со стороны сада, чтобы получился визуальный коридор. Эту идею поддержал Георгий Снежкин, предложив также сделать центральную внутреннюю аллею доступной всем жителям города.
ЖК Евгеньевская на территории Мытного двора
© Студия 44
ЖК Евгеньевская на территории Мытного двора
© Студия 44
Владимир Григорьев попросил занести в протокол, что «для бывшей столицы российской империи иметь четырехэтажное здание в центре города несколько не характерно», поэтому решение по четырем этажам должно быть исправлено. Владимир Линов не согласился, поскольку «четыре ряда окон при одной и той же высоте не то же самое, что шесть».
ЖК Евгеньевская на территории Мытного двора
© Студия 44
ЖК Евгеньевская на территории Мытного двора
© Студия 44
Абсолютное большинство высказавшихся поддержало проект. Михаил Мамошин отметил, что предлагаемая геометрия «гуманная», а типология квартир с участками – едва ли не первое подобное предложение в центре города. Максим Атаянц охарактеризовал работу «Студии 44» как «тот случай, когда проект прибавит центру города достоинства и качества, а не убавит».
Итог: «за» проголосовали 24 человека, «против» – 0. Решено одобрить архитектурно-градостроительный облик.
Подробнее о проекте –>


