Дом на Пироговской набережной
Пироговская набережная, дом 17, корпус 4
Проектировщик: «Студия 44»
Заказчик: АО «Инвестторг»
Обсуждали: архитектурно-градостроительный облик
Никита Явейн представил проект дома на Пироговской набережной. Участок располагается вплотную к магистрали, между особняками владельцев мануфактур Людвига Нобеля и Дмитрия Лебедева: оба здания признаны объектами культурного наследия. Раньше эту часть Петербурга формировали краснокирпичные заводские цеха с пиками труб, сейчас доминанты стали крупнее и разнообразнее: выделяются на их фоне, конечно же, громады комплексов «Монблан» и «Аврора», а также гостиница «Санкт-Петербург» и бизнес-центр «Нобель», построенный еще в советское время. На месте же будущего дома сейчас «провал» – автомойка и стоянка.
Дом на Пироговской набережной
© Студия 44 / предоставлено пресс-службой КГА
Дом на Пироговской набережной
© Студия 44
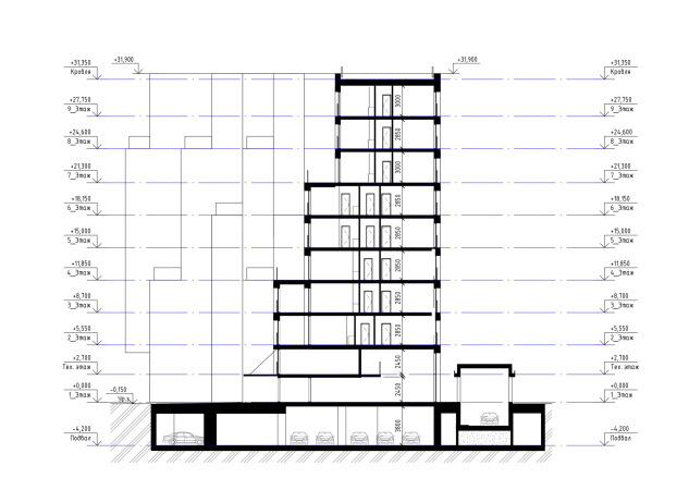
Высота дома «Студии 44» – 28,33 м. Чтобы избежать ощущения монолитной стены, архитекторы «распластывают», по их выражению, масштабное здание с помощью трех ризалитов и нарастающих объемов террас. В облицовке предполагается использовать светлый архитектурный бетон и фиброцементные панели, которые более устойчивы к загрязнению, чем натуральный камень.
Основные приемы – трехчастность композиции, террасы и компоновка объемов, дающая впечатление всплеска воды, – заставляют вспомнить другой проект для набережной, так и не состоявшийся, за авторством Степана Липгарта. Не отнять сходства и с работой мастерской Евгения Герасимова для соседнего квартала, которая также в свое время была представлена на градсовете.
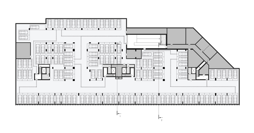
Проходящий по участку коллектор позволил сделать только один подземный этаж, который, впрочем, закрывает норму по машиноместам. Гостевые парковки располагаются во дворе. Первый этаж полностью отдается коммерческим помещениям, большая часть которых выходит на набережную.
Дом на Пироговской набережной. Генеральный план
© Студия 44 / предоставлено пресс-службой КГА
Главной проблемой проекта стало его расположение вплотную к шестиполосной магистрали непрерывного движения. Эксперты усомнились в том, что жильцы будут использовать террасы, выходящие на шумную и загазованную дорогу, а трудности с парковкой и вообще доступностью места говорят о том, что первый этаж вряд ли привлечет и арендаторов. Предложенные полукарманы посчитали опасными для использования из-за плотного потока машин.
Дом на Пироговской набережной
© Студия 44
Евгений Герасимов задался вопросом, зачем выводить новый объект на красную линию магистрали: это все равно что «одной рукой рисовать развязки, а второй их хоронить». Олег Харченко отметил, что «картинки нарисованы безупречно, но создают впечатление, будто дом стоит на тихой набережной где-то на Мойке, а не на перегретой магистрали города». Многие сошлись во мнении, что исправить ситуацию поможет корректировка первого этажа.
Дом на Пироговской набережной
© Студия 44
Дом на Пироговской набережной
© Студия 44
Несколько мнений прозвучало в защиту. Святослав Гайкович как владелец балкона, выходящего на Кронверский проспект, рассказал, что «акустические неприятности заканчиваются на уровне второго этажа». Михаил Сарри отметил, что подобный контекст есть у многих элитных домов и привел в пример комплекс «Статский советник» на пересечении Гороховой улицы и Загородного проспекта, одного из самых неблагополучных с точки зрения экологии мест. Михаил Мамошин высказал мнение, что в Нью-Йорке дела обстоят еще хуже, но жилье там покупают. Владимир Григорьев справедливо заметил, что сравнивать Загородный и Кронверский проспекты с шестиполосной дорогой некорректно.
Дом на Пироговской набережной
© Студия 44
Дом на Пироговской набережной
© Студия 44
Также президенту Санкт-Петербургского союза архитекторов не понравился глухой торец со стороны заезда, который затруднит возможную застройку квартала в будущем. Сергей Бобылев отметил, что было бы неплохо в рамках работы с участком продлить Нобельский переулок до набережной.
Что касается архитектурной части, облик здания встретили достаточно тепло, но все же с некоторыми оговорками. Сергей Орешкин нашел «белый плотно террасированный фасад несколько диссонирующим» и предложил поддержать историю места, используя другой материла в облицовке. В этом его поддержал Михаил Мамошин, отметив, что в целом «все по делу», вид на воду перевешивает все неудобства, а силуэт важнее, чем переулок и брандмауэр. Для Михаила Сарри «многочисленные плюсы с лихвой перекрыли некоторые недостатки»: «объемное решение выглядит убедительно и собирает хаотичную застройку участка набережной». Владимир Григорьев предложил «поупражняться с силуэтом и укрупнить масштаб», поскольку «серьезная заявка на три ризалита нивелируется мелкой архитектурой террас и единым цветом материала».
Дом на Пироговской набережной
© Студия 44
Дом на Пироговской набережной
© Студия 44 / предоставлено пресс-службой КГА
Итоги голосования станут известны позднее.
Подробнее о проекте ->


