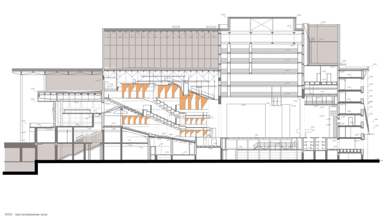
Видно, что в проекте Wowhaus сохранены стены зрительного зала, часть внешних стен коробки сцены, симметричные лестницы в местах стыковки зала и сцены. Витраж фойе со звездообразной решеткой – не воспроизводят, а сохраняют.
Схема сохраняемых и разбираемых частей. Концепция реконструкции Красноярского государственного театра оперы и балета им. Д.А. Хворостовского
© WOWHAUS
Подкапываясь под -2 этаж, разбирают там фундамент стен основного зала, сейчас существующий почему-то в виде неполной подковы, и заменяют его на ортогональную планировку технических помещений в уровне -10 метров. А вот круглые колонны по сторонам фойе – сносят, новые делают похожими, но дальше, тоньше и чаще; в торцах образовавшихся галерей помещают сохраненные скульптуры муз. Боковые стены сценического объема в первом этаже разбирают ради стеклянного витража, выше, в уровне 4 этажа перфорируют проемами.
Еще раз приношу извинения за ошибку со стенами и витражом; если бы у меня сразу была схема разбираемых частей, и еще если бы в авторском описании не было сказано, что «здание будет полностью перестроено» и «унаследует у своего предшественника форму, габариты главного зала», – то, вероятно, ошибки бы не было. Но схемы нет и в материалах, размещенных на сайте конкурса, где можно найти и альбомы, и презентации всех проектов финалистов.
Итак, справедливость восстановлена: все три проекта призера, включая проект-победитель, основаны на идее сохранения ядра зала и сцены вкупе с интенсивной обстройкой ради дополнительных помещений театра.
Напрашивается сравнение по части сохранения.
На схеме сохраняемых и удаляемых частей проекта Студии 44, занявшего 2 место, видно, что в нижних этажах там сохранено больше, а в верхних ярусах зала и сцены – примерно столько же. Проект Студии 44 не сохраняет звездчатый витраж вообще, но оставляет на месте старые круглые колонны, более того, даже дополняет их еще одним рядом перед главным фасадом.
Схема демонтируемых конструкций. Серым сохраняемые, красным демонтируемые. Концепция реконструкции Красноярского государственного театра оперы и балета им. Д.А. Хворостовского. Схема демонтирируемых конструкций
© Студия 44
Образы получаются прямо противоположные: один, я бы так сказала, примиряющий, другой экспансивный – хотя прямой экспансии в нем не так много, пятно застройки прирастает слегка, в основном он растет вверх. «Примиряющий» проект Wowhaus построен на сохранении образа здания, оно остается ощутимо похожим на себя с коррекцией в сторону утонения деталей, например, колонн по бокам или козырька главного фасада, – а также некоторой «рехтовки», к примеру, боковых поверхностей сценического объема, сейчас они плоские, в проекте испещрены желобками, в которые вставлены тонкие тяги, подобные колоннам.
Один проект подчинен идее воспроизведения старого театра в глазах зрителя, причем театр не только становится крупнее, шире, более распластанным и горизонтальным, но и более тонким, прозрачным и элегантным. Другой представляет собой намеренно яркое высказывание, в котором добавления не «утоплены» в наследственном образе, а акцентированы, спутать старые и новые части почти невозможно (если не говорить о колоннаде перед главным фасадом). Это два разных подхода, в каждом что-то есть.
По отношению к зрительному залу здесь тоже два зеркальных решения: при сохранении стен в обоих случаях один проект полностью переделывает его образ, другой полностью сохраняет. Получается, что одном проекте ностальгия по старому театру работает с внешним подобием, во втором – с внутренним сходством.
Если мы посмотрим на третий проект консорциума А2 & МВ-Проект, о котором рассказывали сегодня, то там конструктив центрального ядра тоже сохраняется и обстраивается. Скульптуры муз переносят к служебному входу.
Аксонометрический разрез. Сравнение реконстрируемого здания и проекта. Концепция реконструкции Красноярского государственного театра оперы и балета им. Д.А. Хворостовского
© А2+МВП
Но в третьем проекте не сохраняют ни звездчатую решетку витража, ни колонны – то и другое получает реплики в виде волнистого рельефа стекла и тонких колонн по сторонам.
Существенное отличие: Wowhaus считает важным соблюдение горизонтали высотных отметок, уменьшая высоту здания и увеличивая его длину и ширину на 11 и 10 метров соответственно – консорциум А2 уделяет больше внимания визуальным градостроительным связям и поэтому сохраняет ширину существующего здания, а увеличивает длину и высоту, первую на 12 метров в сумме, вторую на 6 м.
Любопытно сопоставить приоритеты: для москвичей важнейшим контекстуальным ограничением оказалась высотная отметка, для консорциума с красноярским лидерством – градостроительные оси, дальние виды. Соответственно, здания, каждое из которых, по-своему, одно точнее, другое абстрактнее, «косплеит» внешний вид старого театра, получают разные пропорции: одно горизонтальные растянутые, другое задорные вертикальные, усиленные козырьком, вдохновленным Монреальским павильоном.
Высота театра в проекте А2 (3 место) и Студии 44 (2 место) почти одинаковая, порядка 36 метров. У проекта 1 места, Wowhaus, высота – 30.6 м.
Разбираться так разбираться, и я отправилась на сайт конкурса, где, напомню, опубликованы все проекты финалистов. Проект КБ Высотных и подземных сооружений рассматривать не буду, он откровенно не силен, а вот об остальных: АБ ASADOV, ПИ Арена и Четвертое измерение – стоит сказать пару слов.
В проекте бюро ASADOV модернистское здание театра предложено сохранить почти целиком: и ядро, и звездчатые решетки витражей, и козырек, – и его тоже равномерно обстраивают со всех сторон.
Конкурсная концепция реконструкции Красноярского государственного театра оперы и балета им. Д.А. Хворостовского
© АБ ASADOV
Боковые галереи авторы забирают витражами, над основным зрительным залом надстраивают универсальный зал со стеклянными стенами, дающими максимальный обзор; этот новый зал авторы трактуют как репрезентативную площадку, в том числе смотровую, и называют его Губернаторским. Расширенный восточный объем фойе с пристройками авторы окружают новой колоннадой «золотого леса» из медных колонн и пергол, а фонтаны на площади углубляют на 2 яруса вниз и устраивают вокруг них полуподземную площадь, с выходом на нее из подземной парковки. Асадовы также размещают наземные павильоны и галерею вдоль продольной северной границы площади и акцентируют, таким образом, помимо продольной городской, поперечную ось с видом на Енисей, откликаясь на существующие здесь к югу склоны спуска к реке.
Внутри зрительного зала авторы добавляют новые ложи. В этом проекте минимум эксплуатируемых кровель, зато активнее раскрыто подземное пространство. Высота здесь минимальная из возможных, как у Wowhaus – 30.6 метров, зато общая площадь больше, чем у всех трех призеров – 26 900 м2, архитекторам удалось при сохранении здания «выкроить» довольно-таки много полезного пространства, в том числе за счет застройки боковых колоннад, использования подземного пространства и северной части площади.
Два других проекта не предполагают сохранение старого здания театра.
Архитекторы «Четвертого измерения», единственные из всех, строят свой новый театр на новом месте, на нынешней площади, и объемы у них двое больше, чем всех других: высоты 70 м и общая площадь 31 030 м2 (здание театра) / 70 450 м2 (все здания в составе концепции), учитывая и вероятное строительство башни по соседству в будущем. Словом, тут архитекторы разворачиваются вовсю.
Конкурсная концепция реконструкции Красноярского государственного театра оперы и балета им. Д.А. Хворостовского
© АБ Четвертое измерение
Старый театр сносят, но сохраняют контуры его зрительного зала в форме открытого амфитеатра в общественном пространстве новой площади. Главной осью становится ось фонтана «Реки Сибири», обращенная в сторону Енисея. В целом – происходит своего рода рокировка старого и нового здания, как в шахматах, с максимальным выходом полезных площадей и воспоминанием о старом театре – археологического свойства. Схемы столь масштабного развития изложены ясно и четко.
Сам театр становится кубом с эффектным разрывом на 2/3 высоты, скульптурным объемом балконов за стеклянными витражами и ромбической сеткой зрительного зала из светлого дерева.
ПИ «Арена» также воспользовались своим правом спроектировать театр заново. Они размещают здание на том же месте, но разворачивают все линии на 45°, ссылаясь, в числе прочего, на диагональную планировку газона на площади в 1956 году, до строительства модернистского театра. Получился параллелепипед в рамках старого плана, вытянутого по оси восток-запад, но с разделенными на стеклянные «кристаллы» прозрачными, беспокойными и легкими фасадами.
Конкурсная концепция реконструкции Красноярского государственного театра оперы и балета им. Д.А. Хворостовского
© ПИ Арена
В контурах и форме получившегося здания несложно увидеть реплику старого театра: о нем напоминает белый горизонтальный фриз с надписью, стекло и вертикали, прежде всего углов-ребер. Но внутри все по диагонали. Эффект поворота лучше всего понятен при взгляде сверху, где часть объемов выступает на кровле.
Воспоминание о старом театре «прошито» и в реплики элементов: так, звездчатый витраж авторы не сохраняют, но напоминают о нем в другой форме и в другом месте – в виде прорезей на потолках в форме «солнечных часов», как будто отпечатком.
Одна из эффектных особенностей проекта – зрительный зал, тоже абсолютно новый, разумеется, что позволило авторам прийти к цельной форме деревянных «лент», этакой многосоставной «гитаре». Авторы сравнивают свой зал со слитком красноярского золота.
***
Безусловно, теперь любопытно, что решит комиссия, которую планировалось создать, по совершенно неправильной традиции наших мест, для объединения лучших идей «не только компании-победителя, но и других участников конкурса». Традиция эта дурацкая, как можно скрещивать ежа с ужом, да еще чужими руками? Не помню, чтобы она к чему-то хорошему приводила. То ли дело – выбрали победителя, и пусть бы работал.Но эта традиция, в числе прочего, подталкивает нас к тому, чтобы рассматривать все проекты, а по результатам увиденного хочется сказать вот что. Непростое это дело, реконструкция модернистского здания с необходимостью существенного расширения и пожеланием сохранения памяти о нем. Как его вообще сохранить, если его надо радикально увеличить?
И вот, теперь мы получили несколько видов и градаций сохранения. Одно – сохранение конструктивного ядра как такового, с обстройкой, которое присутствует в трех проектах. Интересно, в чем его смысл, в экономии конструкций или в сохранении театра как реликвии? Этакая подлинная, но недоступная для обозрения реликвия, глубоко «закопанная» среди обстроек, которые то проявляют смело свою новизну, то наоборот, погружаются в воспроизведение знакомой горожанам образности. Своего рода качели. Как их «поженить»? Неизвестно. Надо думать, что сохранение ядра – это скорее экономия на строительстве, чем «реликвия». Хотя – сохраняемые конструкции все равно, при условии надстроек, придется укреплять.
Самый простой и понятный вариант реликвии – это сохранение обозримых подлинных частей: фасадных скульптур, звездчатых витражей, колоннад, интерьера зала. Здесь все просто, вот он, остаток старого театра, его можно потрогать. Но остаток, так или иначе, будет небольшим.
Сложнее всего с сохранением образа: в какой момент он теряет узнаваемость? Где начинается увеличенная реплика, нечто похожее, но не родное? Здесь, надо признать, выигрывает проект Wowhaus, занявший первое место, его реконструкция больше всего похожа на «исходник». Хотя не все в нем настоящее, что-то – похожее на то, что было.
И очевидно, что архитектурное высказывание становится ярче тогда, когда оно удаляется или дистанцируется от реконструкции. Здесь тоже понятно: авторское – оно авторское и есть, для него важно различать: спор / контраст / диалог / мимикрию.
Словом, любопытный сюжет, и непросто придется комиссии.
Реконструировать театр планируют к 400-летию города, которую будут праздновать в 2028 году.
