Кампус планируется построить в городе-спутнике Южный, который представляет собой отдельный сюжет. Концепцию его застройки разработали архитекторы Gillespies в 2013 году – и в ней город-спутник предстает как элемент нового, полицентричного подхода к застройке Петербурга, и кроме того – город зеленый, невысокий, где-то до 5 этажей. Весь этот набор воспринимается остро и инновационно на фоне высоких безликих «спальников», которыми город обрастал в последнее время. Но прошло 7 лет, концепцию застройки города пока не утвердили, и в данный момент о ней известно немного.
Кампус университета ИТМО. Слева ситуационный план, слева мастер-план города Южного
Предоставлено Студией 44
Зато известно, что ИТМО Хайпарк, согласно замыслам, должен стать первым районом Южного и драйвером его развития: директор компании, которая занимается строительством города-спутника, называет иннополис «важнейшей вехой на пути» к нему, поскольку именно в Хайпарке появятся рабочие места. Мастер-план иннополиса разработали в 2018 году москвичи RTDA и привлеченное ими британское бюро Allies and Morrison.
Кампус университета ИТМО. Мастер-план 2018 года
© RTDA совместно с Allies & Morrison
Следующей стадией проекта ровно год назад, в июле 2019, занялась «Студия 44» Никиты Явейна – не так давно, в мае архитекторы представили на обсуждение градсовета архитектурно-планировочное и объемно-пространственное решение кампуса в целом и проект его первой очереди, куда входит главный учебный корпус – ядро всего комплекса, несколько корпусов общежитий и студенческий клуб. Проект был принят советом «на ура». Архитекторы не только дополнили, но в некоторых частях существенно переработали мастер-план.
Надо сказать, что привлечение к проекту «Студии 44» – архитекторов, которые построили несколько крупных образовательных кластеров всероссийского значения: «Сириус» в Сочи, кампус Школы менеджмента СПбГУ в Петродворце, Академию танца Бориса Эйфмана в Петербурге и Академию хореографии в Нур-Султане, а сейчас строят гимназию Примакова в Московской области, – более чем предсказуемо. Кого и звать, если не их.
Проект совершенно огромный – площадь отведенной территории 90 га. Впрочем пока кругом поля, совершенное раздолье так называемого greenfield. Территория расположена между Киевским шоссе, ведущим в Гатчину, и железной дорогой туда же, со станцией Лесное на ней. Но проект High Park не был бы современным, если с самого начала замысла не предполагал схемы включения кампуса в структуру нового города. Такая схема разработана и на уровне города, и на уровне Хайпарка: в крупном, среднем и микро-масштабе пешехода.
Кампус университета ИТМО. Транспортная схема
© Студия 44
К городу Южный инноград ИТМО «подключается» примерно как процессор к материнской плате – через «хаб» городской площади – протяженного пространства, вытянутого вдоль северо-восточной границы кампуса перед самым главным его зданием, учебным центром, который планируется построить в составе первой очереди. После завершения проекта площадь-хаб будет состоять из двух частей: к северу от нее последней, пятой очередью планируются бизнес-инкубатор и центр урбанистики, к ним будет вести пешеходный мост, между зданиями образуется вторая часть площади; по завершении всех частей проекта площади «стыкуются» между собой и образуют полноценную связь с городом, который к тому моменту, может быть, начнут строить. В город, помимо автомобильных путей, будут вести два пешеходных: на севере мост через трассу, в северо-восточной части главной связью с городом служит мост, встроенный в состав вокзала, в который должен превратиться полустанок Лесное.
Кампус университета ИТМО. Синим показаны площадь перед учебным корпусом и площадь пятой очереди между бизнес-инкубатором и центром урбанистики; голубым пешеходный мост; красным въезды
© Студия 44
Два пути, ведущие в Гатчину: Киевское шоссе и железная дорога, между которыми расположена территория кампуса, обеспечивают хорошую транспортную доступность. Внутри его территория разделена двумя основными трассами, которые пересекаются под прямым углом: архитекторы «Студии 44» смотрят на них через призму римского города, называя cardo и decumanus, благо ориентация трасс почти соответствует странам света. Длинный cardo, параллельный дорогам, идущим с севера на юг, разделяет территорию собственно университета от участков наукоемких произвоств, расположенных ближе к Киевскому шоссе. Строго перпедикулярный ему, как и учили латиняне, decumanus ответвляется от шоссе несколько южнее середины, служа границей между общежитиями и лабораториями – и спортивной частью кампуса.
Кампус университета ИТМО. Схема этапов строительства
© Студия 44
Кардо и декуманус служат внутренними транспортными артериями, но их также превращают в бульвары. Территория трактована как парк: архитекторы приводят в пример влиятельное решение «чопорного» Гарварда разместить стулья на газоне, после чего кампусы всего мира, более-менее дружно, превратились в города-сады. Гарвард Гарвардом, но заметим, что уже с шестидесятых, если не раньше, зелень считалась практически необходимой частью прогрессивного университета или исследовательского института – вспомним хотя бы, как Азимов описывает обстановку своего «Основания»: зелень и спорт, спорт и зелень.
Кампус университета ИТМО. Схема озеленения
© Студия 44
В проекте ИТМО парки и общественные пространства разной степени открытости иерархически ранжированы, что позволяет оптимально их организовать: площадь, бульвары, парк, дворы внешние и внутренние атриумы, локальные места общения. Ось общежитий, которая в мастер-плане была прижата к железной дороге, развернута под углом: «это помогло отодвинуть общежития от шумной зоны», – поясняют авторы. Производства придвинулись к шоссе, жилье студентов отодвинулось от железной дороги. Сравнительно небольшая перекомпоновка сделала планировку и яснее, и просторнее: четкость построения обеспечила больше свободного пространства и визуальных связей.
Еще одно существенное дополнение к мастер-плану: Никита Явейн и Антон Яр-Скрябин предложили две крытые галереи. Что в климате Петербурга важно. Обе коротким путем ведут в учебный корпус, одна соединяет ряд лабораторий, другая общежития.
На схеме крытые пути показаны филетовым цветом:
Кампус университета ИТМО. Схема общественных пространств
© Студия 44
Парк между корпусами лабораторий и общежитиями из-за добавления диагональной оси получился трапециевидным, сужающимся к учебному корпусу. Его «раструб» напоминает Рим и лучи Петра Еропкина, расходящиеся от Адмиралтейства, – классический прием архитектуры и градостроительства Нового времени. Он помогает с одной точки усилить перспективу: ряды корпусов будут «притягивать» глаз к учебному корпусу, а с другой точки расширить простор, так как при взгляде от учебного корпуса парк будет казаться шире.
Кампус университета ИТМО. Главный учебный корпус
© Студия 44
В спортивной части треугольному парку вторит подобная ему фигура сквера. Планировка приобрела жесткость и остроту, причем произошло это благодаря приемам градостроительства эпохи классицизма, – надо ли говорить, что в Петербурге такое направление мысли представляется логичным. Паттерн «стройного» города воспроизводится в 30 километрах от Дворцовой – и новый локальный центр формируется по «родительским» правилам.
Пластика комплекса во многом определена этими планировочными приципами, а также – «метаскульптурными» предпочтениями Никиты Явейна, которому нередко удается напомнить нам о величии архитектуры на грани сверхчеловеческой архаики и стереометрии авангарда. К чему добавляется озвученный лет 10 назад Ремом Колхасом для Сколково образ «материнской платы», хорошо подходящий к IT-шному иннограду.
Кампус университета ИТМО
© Студия 44
Корпуса лабораторий сверху выглядят прямо как четыре процессора в ряд, а блоки научных производств, особенно те, которые выстроились вдоль cardo, – то объемно-клетчатые, с равномерным чередованием выступающих и западающих параллелепипедов, то ребристые из-за сплошного ряда шедовых фонарей. При взгляде сверху в этих объемах угадываются какие-то технические штуковины, – кажется, что их можно вытащить, протереть «ножки» контактов спиртом, и потом вставить обратно. Словом, образность начинки электронного устройства, модулей, расставленных по определенным законам, прочитывается довольно отчетливо.
Концепция кампуса ИТМО, видео:
Иными словами, узнаваемые приемы «Студии 44»: корпуса, похожие на гигантские гайки, гальки или торусы, перспективный луч, крупный масштаб, – соединены здесь со вполне опознаваемыми отсылками к актуальным поискам формы «архитектуры для инноваций».
Кампус университета ИТМО. Главный учебный корпус. Схема функционального зонирования. Вид сверху
© Студия 44
Главное здание недвусмысленно берет на себя роль пространственно-пластического «узла» всего кампуса. Оно состоит из гигантского диска и множества объемов – «балок», цилиндров, кубов. Диск их объединяет, некоторые утоплены в нем целиком, другие наполовину, третьи стыкуются углом, четвертые «прорастают» далеко вперед от центра.
Внутри авторы трактуют этот конгломерат как город с улицами, мостами, большими и маленькими площадями, «зданиями» и «павильонами». Образ городской площади архитекторы уже реализовали недавно в фойе театра Академии танца Бориса Эйфмана, но здесь размах много больше. Да дело и не только в масштабе.
Дело в том, что в совместных обсуждениях руководства университета с архитекторами было решено – структура учебного корпуса должна быть спланирована свободно, с преобладанием так называемых коворкингов – мест, где можно устроиться для самостоятельной работы, будь то написание кода, чтение книг или удаленное слушание лекций. Да-да, лекции не обязательно слушать в аудитории, можно будет подключаться к ним где угодно, хоть в амфитеатре, хоть в круглой или квадратной «стекляшке». Там же можно будет устраивать спонтанные или запланированные семинары – максимум свободы и разнообразия обстановки должны стимулировать будущих IT-шников к креативности.
Здание учебного корпуса, видео:
Более того, одним из пожеланий руководства был постоянный шум, или «гул» – в такой обстановке, а не в глухой тишине, подумать только, по убеждению университета, – лучше работается. Но уж во всяком случае студенты не будут привыкать к тишине как обязательному условию сосредоточения, и в дальнейшем не будут зависеть от тишины. Интересный подход. Конечно, он требует от учеников определенной степени мотивации и внутренней самодисциплины, – однако кампус предназначен для магистров, студентов последних лет обучения, предполагается, что они этими качествами уже обладают. Зато свежий подход к организации процесса, в том числе и в пространстве, должен оживить навыки и двигать вперед.
Разные функциональные зоны свободно «перетекают» одна в другую, реализуя мечту Фрэнка Ллойда Райта; «обтекают» закрытые, но в основном прозрачные блоки, разбросанные с различной степенью свободы. Здесь минимум дверей, – подчеркивают архитекторы, – всё, что можно, открыто. Более того, в процессе передвижения нас будут постоянно встречать лестницы, трактованные как амфитеатры, а уровни будут меняться плавно, местами используя наклон пола. Комнаты преподавателей смешаны с коворкингами и аудиториями, отчего максимально приближены к учебному процессу, так что студентам не потребуется их разыскивать в какой-то отдельной части здания.
Никита Явейн, «Студия 44»
«В этом проекте, я бы сказал так – заказчик хотел не меньшего, чем мы. Такое нечасто случается, в нашей практике – едва ли не впервые. Благодаря взаимной заинтересованности получилось очень удачное сотрудничество, и оно уже позволило спроектировать цельное, единое пространство, абсолютно перетекающее, с наклонными полами, подобное тому, что реализовали SANAA в здании учебного Rolex-центра в Лозанне.
Пространство решено как город, со своими улицами, площадями, множеством активностей. Одно-двухэтажный город, похожий на античный, где вся жизнь проходила на улицах, а домой приходили разве что поспать. Здесь у нас тоже вся жизнь – на шумных улицах. Вся жизнь вовне: между лекционными залами, учебными комнатами, коворкингами, комнатами преподавателей. Без барьеров».
Пространство решено как город, со своими улицами, площадями, множеством активностей. Одно-двухэтажный город, похожий на античный, где вся жизнь проходила на улицах, а домой приходили разве что поспать. Здесь у нас тоже вся жизнь – на шумных улицах. Вся жизнь вовне: между лекционными залами, учебными комнатами, коворкингами, комнатами преподавателей. Без барьеров».
Функции, между тем, всё же сгруппированы и распределены по крупным кластерам. В четыре объема-«балки» собраны учебные корпуса: две из них обрамляют начало парка, две другие «распахнуты» с запада на восток. Между учебными блоками вкраплены: студенческий клуб и администрация с южной стороны кампуса, а также музей, столовая и вход с северной, городской стороны.
В центральной части площадь-campo образуют несколько «башен», главную из них авторы трактуют как ратушную – belfry/beffroi. В средневековых городах Западной и Северной Европы такая башня служила символом независимости и самоуправления, на нее еще вешали вечевой колокол. В российских университетах так повелось, что самоуправления как правило нет; однако в ИТМО практикуют его элементы, – объясняет Никита Явейн. Так что башня появилась неспроста. В ней разместится библиотека и «студенческий офис».
Кампус университета ИТМО. Главный учебный корпус
© Студия 44
Кроме того, в верхнем ярусе из башни вырастает консоль ректората – она нависает над входом как капитанский мостик, опираясь на гипостиль тонких колонн и кубик книжного магазина. Три другие объема «башен», окружающие центральную «площадь», поменьше: это круглый объем «творческих пространств», квадратные игровая и «темная комната».
Антон Яр-Скрябин, «Студия 44»
«На мой взгляд, главная и уникальная особенность проекта состоит в том, что мы, подчеркну – я и все мои коллеги из «Студии 44», все, кто работал над проектом как с самого начала, так и позднее, и университет в качестве заказчика, – мы образовали в процессе работы единую команду, дружную и увлеченную процессом проектирования, который длился больше года. Здесь сложились не обычные отношения заказчик-архитектор, а много более теплые, основанные на взаимной заинтересованности задачей. Мы и до сих пор с радостью встречаемся и общаемся.
Команда ИТМО – молодая, там прислушиваются к свежим идеям, и у меня создалось впечатление, что те принципы, которые изложены на сайте университета: уважение к личности, добросовестность, свобода, открытость, любовь к своему делу, – для них вовсе не пустые pr-слова, а действительно основа жизни и работы. Сам процесс обучения в ИТМО построен на том, чтобы не мешать познанию. Все как семья, главное – коммуникация, взаимодействие идей и людей.
Так что с самого начала, исходя из идеологии, очень настойчиво предложенной университетом, от нас требовалось нестандартное мышление, и мы пошли по пути выстраивания системы пространств коммуникации. Условно говоря, начали с «пустот», поскольку здесь они более важны, и уже между ними распределили закрытые помещения классов. Обычно начинают с группировки помещений и объемов, а мы начали с организации соподчинения и взаимосвязи пространств. Применили этот принцип и к главному зданию, и к общежитиям, и ко всей композиции в целом – она развивается от центрального амфитеатра как своего рода «Большой взрыв». Получившееся пространство, на мой взгляд, не имеет прямых аналогов и очень подходит ИТМО. Я очень надеюсь, что его удастся реализовать и университет сможет поселиться в кампусе, который соответствует его идеям и тому настроению, которое в нем поддерживается».
Команда ИТМО – молодая, там прислушиваются к свежим идеям, и у меня создалось впечатление, что те принципы, которые изложены на сайте университета: уважение к личности, добросовестность, свобода, открытость, любовь к своему делу, – для них вовсе не пустые pr-слова, а действительно основа жизни и работы. Сам процесс обучения в ИТМО построен на том, чтобы не мешать познанию. Все как семья, главное – коммуникация, взаимодействие идей и людей.
Так что с самого начала, исходя из идеологии, очень настойчиво предложенной университетом, от нас требовалось нестандартное мышление, и мы пошли по пути выстраивания системы пространств коммуникации. Условно говоря, начали с «пустот», поскольку здесь они более важны, и уже между ними распределили закрытые помещения классов. Обычно начинают с группировки помещений и объемов, а мы начали с организации соподчинения и взаимосвязи пространств. Применили этот принцип и к главному зданию, и к общежитиям, и ко всей композиции в целом – она развивается от центрального амфитеатра как своего рода «Большой взрыв». Получившееся пространство, на мой взгляд, не имеет прямых аналогов и очень подходит ИТМО. Я очень надеюсь, что его удастся реализовать и университет сможет поселиться в кампусе, который соответствует его идеям и тому настроению, которое в нем поддерживается».
Все линии, определяющие границы объемов и их направления, параллельны или перпендикулярны трем главным осям: кардо, декуманусу и лучу общежитий, – таким образом оси прорастают в композицию и планировку, на них строится и из них вырастает вся его динамика, в том числе острый нос трегуольного музея с вывеской университета со стороны города и вокзала.
Кампус университета ИТМО. Главный учебный корпус. Музей и его острый «нос», обращенный в сторону вокзала и города, и служащий вывеской
© Студия 44
Внутри музей состоит из последовательно уменьшающихся залов, подчиненных контурам узкого треугольника и перекликающихся с идеей перспективного сужения, которая заявлена в парке ИТМО. Залы связывает широкий проход с перепадом высот и несколькими вкраплениями ступенек мини-амфитеатров. Он плавно поднимается к востоку, в узкой части под ним устроены техпомещения музея. Вдоль музея и соседнего учебного корпуса – два дополнительных входа в учебный корпус, со стороны вокзала.
Кампус университета ИТМО. Главный учебный корпус. Схема функционального зонирования на отметке +9.900
© Студия 44
И наконец, посередине – главная часть «площади» большой амфитеатр, он же многофункциональный актовый зал или аудитория гигантского размера, он же место общения на период между большими лекциями и торжественными мероприятиями. Огромный «сачок» – а что студент без сачка? Сачок обязательно нужен, именно там происходят все важные разговоры и знакомства на всю жизнь. «Главная аудитория» раскрыта панорамным стеклом на парк, который в свою очередь понят как его продолжение – парк тоже «амфитеатр», но протяженный, с небольшим уклоном.
И здесь возникает интересный сюжет. Участок, как и всё вокруг Петербурга, представляет собой плоскую равнину с небольшим перепадом высот: рельеф очень плавно понижается, на 5 м в поперечном направлении, от шоссе к железной дороге; но нет ни холмов, ни углублений, типичная «петербургская» равнина. Однако к моменту начала проектирования территория уже была обременена высотными ограничениями, которые не позволяли существенно вырастить здание вверх. Так что архитекторы пошли по пути геопластики. Они понизили уровень рельефа на 4,5 метра в южной части учебного корпуса – так образовался спуск с севера на юг, на котором разместились ступени большого амфитеатра главной аудитории. Внизу, перед панорамным стеклом, в начале парка, запланирован искусственный пруд круглой формы, зимой на нем, возможно, будут устраивать каток.
Кампус университета ИТМО. Главный учебный корпус. Разрез
© Студия 44
Естественный уклон парка – около 3 м – обращен навстречу главной аудитории, с юга на север; его немного усилят, но он останется плавным. Парк и аудитория встретятся, таким образом, в самой глубокой точке рельефа. По парку в проекте течет синусовидная искусственная речка, впадающая в пруд.
Кампус университета ИТМО. Концептуальная схема планировочной организации участка
© Студия 44
Почву, вынутую ради устройства склонов, архитекторы планируют использовать в обваловке искусственных холмов, которые отделят общежития от железной дороги, защитив их от шума. И еще для элементов пластики в парке. Так, решая практические вопросы, одновременно авторы на совершенно ровном, «скучном» рельефе создали интригу: перепады уровней появятся и внутри учебного корпуса, и снаружи, на основной части кампуса.
Но вернемся в главный амфитеатр. В его пространстве хорошо видна металлическая поверхность кровли с отверстием по центру – диска, накрывающего атриум и все сходящиеся объемы – это тонкая металлическая конструкция с острыми и далеко вынесенными козырьками на тонких колоннах. «Шуховская» сетка стеклянного витража, разделяющего аудиторию и парк, отлично подчеркивает смелость инженерного решения.
Кампус университета ИТМО. Главный учебный корпус
© Студия 44
Подвешенная самонапряженная структура немного проседает в центре, вокруг окна-оккулюса, – все это очень напоминает натяжную конструкцию металлической кровли недавно разрушенного СКК. Конструкция даже кажется нарочно задуманной как воспоминание о нём – уникальном и прогрессивном, но забытом и варварски уничтоженном. Как будто говорит нам: заново сделать? А мы попробуем!
«Конструкция, конечно, не повторяет СКК в точности, но мы ее задумали, действительно, в числе прочего и как воспоминание об утраченном стадионе, важном памятнике инженерной мысли Петербурга. Нам очень жаль СКК. И, кроме того, в «Студии 44» работают ученики Олега Курбатова, одного из авторов его конструктивного решения», – поясняет Никита Явейн.
Кампус университета ИТМО. Главный учебный корпус. Сечение
© Студия 44
На кровле задумана беговая и прогулочная дорожка. Объемы внутренних «башен» выходят на нее круглыми и квадратными «трубами» световых фонарей; такие же фонари поменьше украшают крыши крыльев. А с верхних «птичьих» ракурсов хорошо видно, что тонкий с острыми краями «блин» кровли прямо-таки «лежит» на разнонаправленных балках, составляющих учебный корпус. Приземлился, нацепился на башню студенческой «ратуши»; и готов, может быть, в любой момент взлететь. Этакая летающая тарелочка – тоже, надо признать, символ инноваций; или даже надежды на инновации внеземного свойства... Ну да это фантазии. Инновации надо, конечно, делать самим. Давно пора.
Кампус университета ИТМО. Главный учебный корпус
Предоставлено Дирекцией фестиваля Зодчество, 2020
Снаружи к крыльям примыкают лестничные башни – то круглые, то квадратные, то протяженные скругленные, что напоминает и о средневековых замках, и о поисках конструктивистов. Башни не только упрощают передвижение, усложняя его сценарии – чем сложнее, тем короче, но в целом разнобразнее, – еще они выглядят как колышки, прикрепляющие крылья университета к земле, примерно так, как это принято делать с воздушным шаром, чтобы не улетел раньше времени.
Кампус университета ИТМО. Главный учебный корпус
© Студия 44
Сочетание круга с «лучистой» композицией крыльев позволяет воспользоваться преимуществами другого варианта типологии современных школьных зданий – здания-звезды. Лучи позволяют создать максимальный фронт естественного освещения для аудиторий, а между ними возникают полуоткрытые дворы и пространства со сложными пластическими характеристиками, то узкие, то широкие, то расширяющиеся, как парк.
Итак, средневековый или даже античный город с улицами и площадями-campo для IT-университета нового иннополиса. С лучевой планировкой Нового времени и пластикой – то летящей, то мегалитически «приземлившейся», но определенно современной. И с недвусмысленной отсылкой к авангарду, считываемой мгновенно, как из учебника. Какой там campo? Это Малевич.
Факт остается фактом: пожалуй, «Студии 44» лучше многих удается выступать в амплуа, соединяющем авангард, средневековье, какую-то еще дремучую архаику, воздействующую, кажется, прямо на подсознание, – проецируя все это на самые современные и инновационные проекты. Не такая простая задача – выйти за рамки стилизации, но не утратить многослойного смыслового наполнения. Но именно это здесь и происходит.
Возьмем для начала супрематизм. В ИТМО «малевичевская» структура плана, как и в проекте для Севастополя, приллюстрирована схемой-заставкой. Вместо «Победы над Солнцем» получается победа Солнца как Просвещения в частности и образования в целом – вполне адекватный образ для учебного заведения. С вьющейся ниткой искусственной речки, накручивающей на себя «катушку» самого большого корпуса общежития, в роли интонационной поправки от Хуана Миро или Василия Кандинского.
Кампус университета ИТМО. Заставка проекта
© Студия 44
И супрематизм, и круг как основа для здания современного университета или прогрессивной школы в наше время привычны и почти обязательны: возьмем кольцо детского сада Такахару Тезуки или колледж в Торсхавне Бьярке Ингельса. Или Школу управления «Сколково» Дэвида Аджайе, – он, пожалуй, первым вдохновился супрематическим сочетанием колеса и асимметричных балок на нем. Но есть еще и университет «Сколтех» Жака Херцога и Пьера де Мерона, – круглый, но уподобленный не авангардному колесу, а городу, силуэт которого как будто срезан по кольцу.
Но вот в чем дело. В Сколково мы видим либо супрематизм у Аджайе, либо «средневековый» (ну, или пусть просто традиционный) город у H&M. И если супрематизм летит, то средневековый город скорее успокаивает, эксплуатируя глубинные представления о «Золотом веке», чуждом перегрузок и бешеных скоростей. Проект ИТМО соединяет эти противоположные идеи, и у него получается. Он как будто смотрит на средневековый город не глазами современного туриста, для которого площадь исторического города это отпуск, кофеек с мороженым на террасе – а глазами средневекового человека, для которого площадь это крик, толпа, колокольня огромной высоты, а звук колокола подчиняет себе, выбивая из головы все мысли и мечтания. Это иной взгляд на средневековье, где-то здесь они и смыкаются с авангардом, который, как известно, какой-то своей частью вырос из символизма, искавшего путь к выразительности в древности разной степени глубины. Отсюда «взрывная» динамика, которой удается избежать нарративности несмотря на многосоставность и многослойность.
В то же время ассоциации с круглыми школами Сколково, по большому счету, не мешают, а даже помогают – согласно средневековому, к слову сказать, принципу они дают возможность выстроить смысловые аллюзии: в конце концов Хайпарк ИТМО это новое петербургское Сколково, на что указывает и «иконография диска», и общая отсылка к супрематизму. Не удивлюсь, если окажется, что такое сопоставление намеренно и в нем заключен элемент творческого соревнования со Сколково и попытка раскрыть те же темы шире, глубже, ярче.
Кампус университета ИТМО. Главный учебный корпус
© Студия 44
***
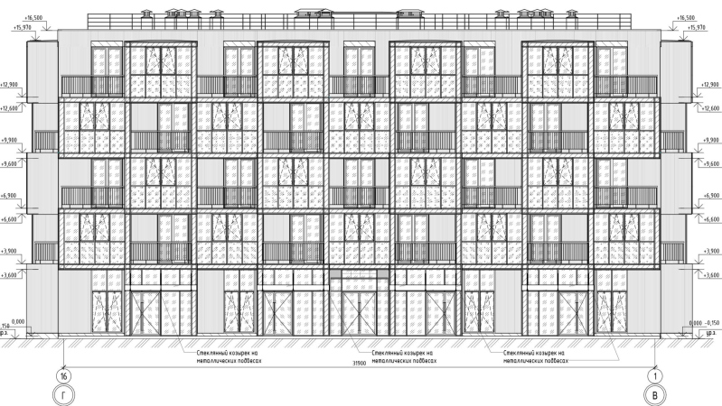
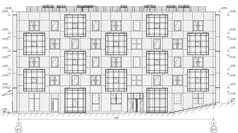
Вереница 4-5-этажных корпусов общежитий начинается от квадратного в плане студенческого клуба, который углом примыкает к учебному корпусу, и на фоне летящей энергетики главного здания напоминает сад камней. Они круглые и квадратные, расставлены почти симметрично, в подгруппах тяготеют к центральной симметрии, хотя достаточно редкая расстановка и неполная завершенность групп придают планировке эффект некоторой «разбросанности», пусть и тщательно спланированной. Внешне корпуса напоминают произведения японской архитектуры метаболизма, но подчиненные очень регулярной логике роста: крупные ячейки складываются в очень правильные фигуры, по степени системной регулярности больше похожие на части молекулы, чем на элементы материнской платы. «Группа из четырех корпусов образует кластер, – поясняют архитекторы, – вокруг благоустроенной мощеной пьяцетты между ними».
Каждое общежитие, круглое или квадратное, устроено как парафраз учебного корпуса в миниатюре: в центре объема световой крытый атриум с амфитеатром для общения; на него выходят галереи, соединяющие комнаты на одного-трех человек, объединенные по две-три в блоки с кухней-нишей. На каждом этаже и на галереях предусмотрены коворкинги, – предполагается, что заниматься можно будет не обязательно там же, где и спать. «Метаболическую» пористость крупных клеток на фасадах образуют лоджии, которые, надо думать, станут очень приятным дополнением к студенческой жизни.
Круглых корпусов меньшинство, их круглобокие объемы напоминают о газгольдерах, в наше время – традиционных местах сбора артистических сообществ и музеев современного искусства. А чем IT-шники хуже?
Линия лабораторных корпусов, выстроенных вдоль кардо, выглядит строже: все они 4-этажные, сверху похожи, как уже говорилось, на процессоры – в конце концов там будут проходить какие-то лабораторные процессы, и проработаны эти здания, поскольку не относятся к первой очереди, в меньшей степени. По словам архитекторов, они предназначены для «исследований в области информационных технологий, фотонных и квантовых технологий, наук о жизни и здоровье», и их пространства устроены, как и у общежитий, иерархично: общий для корпуса атриум, пространство для общения между несколькими лабораториями, open space одной лаборатории. Напомним, что лабораторные корпуса и общежития соединены с главным корпусом «стрелами» двух теплых галерей, которые позволяют добраться до главного здания в тепле и в уюте.
Общежития Хай Парка ИТМО, 1 очередь, видео:
В проекте предусмотрен некоторый объем «зеленых» технологий, в частности, использование «серой» воды для полива и солнечных батарей для дополнения основного потока электроэнергии, – они должны не только позволить кампусу в будущем экономить на содержании зданий и территории, но и сертифицироваться по стандарту GREEN ZOOM, первому российскому стандарту оценки энергоэффективности, разработанном, заметим, специалистами ИТМО.
***
Итак, проект большой и амбициозный; сама по себе задача создать новый инновационный кампус, возможно третий по счету (но, как говорится не по значению, – как знать) инногород страны – дело очень и очень заметное. Проект «Студии 44» переосмыслил мастер-план и предложил яркое и во всех смыслах «острое» динамичное решение, уместное для инновационного содержания и даже «подстегивающее» будущих инноваторов пространством и пластикой, напоминая им то об изобретениях российских и советских конструкторов, то о мечтах аванграда. Но без фанатизма: то есть позволяя добраться до классов в тепле, подышать на лоджии, посидеть-поговорить на ступеньках амфитеатра, – создавая комфортные и разнообразные условия для общения и инженерного творчества.




