Реновацией корпусов и благоустройством территории занимались архитекторы бюро «АМ Сергей Киселёв и Партнёры», в основном – Владимир Лабутин и Алексей Медведев. «Поначалу нас позвали для консультации по зданиям газгольдеров, – рассказывает руководитель бюро Игорь Шварцман, – наше участие в их обновлении минимально, мы лишь помогли с планировками и инженерными вопросами. Затем заказчики предложили поработать с другим корпусом, потом ещё с одним, и так далее. В конечном счёте генплан развития территории, благоустройство, проекты реновации корпусов и интерьеры нескольких общественных зон были выполнены нашим бюро. Обновление промзон давно стало одним из направлений нашей деятельности. С компанией «Большой Город» мы занимались бизнес-центром на Полковой улице, реновацией хлебзавода на Красносельской. «Арма» же в этом ряду самый крупный, трудоемкий и значимый проект».
Арма: проход, открывшийся справа от выхода из туннеля метро.
Фотография © Юлия Тарабарина, 2016
Арма: пешеходный бульвар между корпусами №3 и 4 © Сергей Киселев и Партнеры. Фотография © Юлия Тарабарина, 2016
***
Московский газовый завод был построен в 1860-х как завод Букье и до 1931 снабжал газом прежде всего фонари, и затем уже кухни Москвы. От первого завода сохранились два корпуса, вытянутых вдоль Нижнего Сусального переулка – строения номер 1 и 2, и главная гордость нынешних владельцев, газгольдеры – широкие башни для хранения газа, которые отличаются от европейских, к примеру венских, тем, что для безопасности и удобства подачи газа под давлением пол в них был опущен ниже земли. Завод, который позволил городским властям вдвое уменьшить цену обслуживания фонарей, строили знаменитости своего времени: газгольдерами занимался тогдашний главный архитектор Москвы Рудольф Бернгард, математик, инженер и приверженец экономного «кирпичного стиля», он придумал для газовых цистерн особенную конструкцию безопорных перекрытий. Корпуса с квартирами рабочих – те самые, вдоль Сусального переулка, строил Фёдор Дмитриев, преподаватель императорского технического училища (сейчас МГТУ им. Баумана), и автор книги о жилье для рабочих. Затем в 1911 завод перешел в собственность города, его перестроили и переоснастили: конструкции кровель газгольдеров переделал, как предполагают историки, другой великий инженер, Владимир Шухов, а сам завод, точнее его южное крыло, разобрал и заменил новыми корпусами, стоящими отдельно, строчками, параллельными Нижнему Сусальному переулку, гражданский инженер Александр Рооп.
Московский газовый завод: схема расположения корпусов на 1868 год. Предоставлено компанией «Большой город»
Московский газовый завод: схема расположения корпусов после реконструкции, на 1912 год. Предоставлено компанией «Большой город»
Завод умножил свои мощности и затем много постарался для первой мировой войны, выпуская всё, от газа до гранат. Сдавать позиции он начал после 1931 года: тогда в Москве построили новый завод «Нефтегаз», а этот стал называться старым, и принял на себя роль не столько производства, сколько распределения. В 1946 к столице подвели газопровод из Саратова, и искусственный газ перестали производить. В генплане 1971 старый газовый завод значится вредным предприятием, предназначенным к выводу за границы города, но, в 1990-е переименованный в «Арму», он функционировал, производя оборудование, до 2002, когда, ещё раз переименованный в «Газсервис», переехал. Южная часть территории перешла к «Арме» и стала предметом работы девелоперской компании «Большой город».
Арма: генеральный план. Проект, 2013 © Сергей Киселев и Партнеры
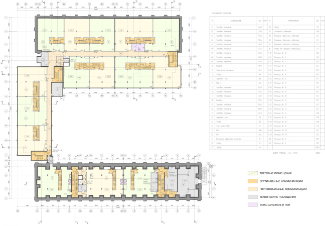
Если мы посмотрим на план территории, то увидим, что реновация коснулась в основном южной части бывшего завода, расположенной между исторической осью заводской территории и железной дорогой Горьковского направления. Ось сохранилась; здесь – главный проезд и главная пешеходная тропа, но все обновленные здания группируются от входа справа. Слева же от главного входа обновление только начинается. Итак, практически все корпуса в южной части территории сейчас завершены. Принципы реновации в целом можно описать следующим образом. Все советские пристройки разобрали. Фундаменты укрепили. В скатах кровель появились мансардные окна, а кое-где – уступы террас.
Ретортный и аппаратный корпуса, фотография 1915 года. Предоставлено компанией «Большой город»
Корпуса №3 и 4. Видны насдстройки, перекликающиеся с выступами над кровлями корпусов заводского времени
Сергей Киселев и Партнеры. Фотография © Юлия Тарабарина
Корпус №5а © Сергей Киселев и Партнеры. Фотография © Юлия Тарабарина
Образно говоря, сейчас можно подумать, что старые заводские корпуса залили-склеили неким подобием ртути, где-то серебристой, где-то поблескивающей, отражая кирпич фабричного историзма. Исторический кирпич вычинен и покрыт консервирующим раствором. «Мы считаем себя соавторами архитекторов Бернгарда, Дмитриева и Роопа», – говорит автор проектов реконструкции исторических корпусов Владимир Лабутин.
Арма: стык между корпусом 3 (справа) и пристроенным к нему современным объемом корпуса 3а (слева) © Сергей Киселев и Партнеры. Фотография © Юлия Тарабарина, 2016
Арма: стена современной части, корпуса 3а © Сергей Киселев и Партнеры. Фотография © Юлия Тарабарина, 2016
Арма: козырек над входом, корпус 5 © Сергей Киселев и Партнеры. Фотография © Юлия Тарабарина, 2016
Арма: фрагмент исторической стены, корпус №3 © Сергей Киселев и Партнеры. Фотография © Юлия Тарабарина, 2016
Арма: корпус №19 © Сергей Киселев и Партнеры. Фотография © Юлия Тарабарина, 2016
Арма: вид от въезда КПП №3, слева газгольдеры, справа корпус №19 © Сергей Киселев и Партнеры. Фотография © Юлия Тарабарина, 2016
***
Арма: корпуса 1 и 2
Арма: корпуса 1, 2. Реализация, 2015 © Сергей Киселёв и Партнёры
| где: | Россия, Москва. Нижний Сусальный переулок, д. 5, строения 1, 2 | |
| даты | 2012 — 2014 / 2014 — 2016 | |
| функция: | Административно-офисный / офисное здание | |
| мастерская: | http://www.sk-p.ru/ | |
| автор: | Владимир Лабутин Руководитель авторского коллектива | |
| авторский коллектив: | Генеральный директор: Игорь Шварцман Главный архитектор проекта: Владимир Лабутин Архитекторы: Наталья Хайкина, Галина Харитонова, Анна Савелова |
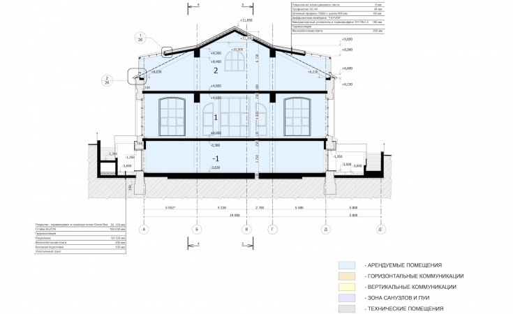
К жилым корпусам друга рабочих Фёдора Дмитриева, вмещавших также и заводские конторы, Александр Рооп добавил боковые ризалиты, превратив торцы зданий в отдельные, примыкающие к протяжённым частям «флигели». В советское время над двухэтажными зданиями появились небольшие аттиковые надстройки.
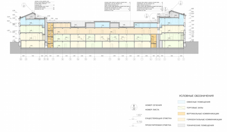
Архитекторы отнеслись к корпусам аккуратно. Советские аттиковые этажи перебрали – под кровлей образовались помещения для офисов, освещенные в основном мансардными окнами, встроенными в вальмовый абрис крыши. Местами, с внутренней стороны квартала, в пологих вальмовых кровлях образуются вырезы – здесь офисы получают обычные, вертикальные окна. Похожие вырезы во внутренних скатах флигелей-ризалитов образуют на их кровлях небольшие террасы с выходом на кровлю. Местами подвальный этаж тоже получил немного солнечного света через полуокна с внутренней стороны квартала. Три этажа отданы магазинам и кафе, и только в самом верхнем – рабочие помещения.
Кирпичные стены вычищены пескоструйной технологией и вычинены кирпичом Remmers – вычинка заметна намётанному глазу, позволяя сравнить шершавость подлинника с более регулярной фактурой современного материала, но выделяется не слишком. Кирпич шершавый, но не крошится, хотя и не выглядит слишком лакированным. Два здания тепло-морковного, оранжевого оттенка представляют собой отличные пропилеи для территории, где сохранено многое от исторического завода. Они работают визитной карточкой не только для кластера, но и для технологии сохранения кирпичной архитектуры исторических промзон, «держа» собой восточный фасад переулка.
Архитекторы отнеслись к корпусам аккуратно. Советские аттиковые этажи перебрали – под кровлей образовались помещения для офисов, освещенные в основном мансардными окнами, встроенными в вальмовый абрис крыши. Местами, с внутренней стороны квартала, в пологих вальмовых кровлях образуются вырезы – здесь офисы получают обычные, вертикальные окна. Похожие вырезы во внутренних скатах флигелей-ризалитов образуют на их кровлях небольшие террасы с выходом на кровлю. Местами подвальный этаж тоже получил немного солнечного света через полуокна с внутренней стороны квартала. Три этажа отданы магазинам и кафе, и только в самом верхнем – рабочие помещения.
Кирпичные стены вычищены пескоструйной технологией и вычинены кирпичом Remmers – вычинка заметна намётанному глазу, позволяя сравнить шершавость подлинника с более регулярной фактурой современного материала, но выделяется не слишком. Кирпич шершавый, но не крошится, хотя и не выглядит слишком лакированным. Два здания тепло-морковного, оранжевого оттенка представляют собой отличные пропилеи для территории, где сохранено многое от исторического завода. Они работают визитной карточкой не только для кластера, но и для технологии сохранения кирпичной архитектуры исторических промзон, «держа» собой восточный фасад переулка.
Арма: корпус 3
Арма: корпус 3. Проект, 2013 © Сергей Киселев и Партнеры
| где: | Россия, Москва. Нижний Сусальный, д. 5, стр. 3а | |
| даты | 2011 — 2013 / 2013 — 2015 | |
| функция: | Административно-офисный / офисное здание | |
| мастерская: | http://www.sk-p.ru/ | |
| автор: | Владимир Лабутин Руководитель авторского коллектива | |
| авторский коллектив: | Генеральный директор: Игорь Шварцман Главный архитектор проекта: Владимир Лабутин Инженеры: Александр Коршунов, Ольга Аксенова Архитекторы: Наталья Хайкина, Анна Савелова |
Третий корпус первоначально служил на заводе аппаратным. Он немного меньше соседнего четвертого корпуса, но фасады здесь нарисованы пластичнее и яснее, чем во всех других постройках гражданского инженера Роопа. Циркульные перемычки окон перекликаются с круглыми нишами и создают несколько «храмовый» образ, поддержанный пластичными фризами ломбардских арок и рельефными лопатками-«контрфорсами», чья поверхность испещрена глубокими нишами. Эффектнее других выглядит северный торцевой фасад: пять высоких окон, которые мы видим, проходя КПП №1, производят очень целостное впечатление. С этой же точки зрения хорошо читается и несколько изломанный, но любопытный силуэт кровли третьего корпуса, – говорит архитектор Владимир Лабутин.
Справа от главного входа на территорию, в пазухе между корпусами 3 и 3а – а их номера, как и повсюду здесь, ясно читаются на крупных табличках с чёрным фоном – архитекторы установили обновлённый и акцентированный небольшим сквером памятник погибшим в Великой Отечественной войне. Корпус 3а, примыкающий к третьему корпусу сбоку, немного короче своего соседа и не столь «подтянут», а его карниз расположен немного ниже и очень лаконичен. Зато его окна тоже высокие и большие, хотя сандрики не полуциркульные, а лучковые, с угловатыми пятами, а лопатки, также довольно рельефные, оживлены лишь несколькими валиками, которые эхом вторят разгранке «контрфорсов» третьего корпуса. Стекло поблёскивает деликатнейшим образом и, местами включаясь в пространственно-пластическую игру, отражает карнизы, предлагая внимательным прохожим мимолетные перспективные иллюзии.
Справа от главного входа на территорию, в пазухе между корпусами 3 и 3а – а их номера, как и повсюду здесь, ясно читаются на крупных табличках с чёрным фоном – архитекторы установили обновлённый и акцентированный небольшим сквером памятник погибшим в Великой Отечественной войне. Корпус 3а, примыкающий к третьему корпусу сбоку, немного короче своего соседа и не столь «подтянут», а его карниз расположен немного ниже и очень лаконичен. Зато его окна тоже высокие и большие, хотя сандрики не полуциркульные, а лучковые, с угловатыми пятами, а лопатки, также довольно рельефные, оживлены лишь несколькими валиками, которые эхом вторят разгранке «контрфорсов» третьего корпуса. Стекло поблёскивает деликатнейшим образом и, местами включаясь в пространственно-пластическую игру, отражает карнизы, предлагая внимательным прохожим мимолетные перспективные иллюзии.
Арма: корпуса 4, 5, 5а
Арма: корпуса 4, 5, 5а. Визуализация, 2013 © Сергей Киселев и Партнеры
| где: | Россия, Москва. Нижний Сусальный переулок, д. 5, строения 4, 5, 5а | |
| даты | 2011 — 2013 / 2014 | |
| функция: | Административно-офисный / офисное здание | |
| мастерская: | http://www.sk-p.ru/ | |
| автор: | Владимир Лабутин Руководитель авторского коллектива | |
| авторский коллектив: | Главный архитектор проекта: Владимир Лабутин Архитекторы: Александр Добрев, Анна Савелова, Наталья Хайкина, Деница Петрова Инженеры: Игорь Шварцман, Вадим Буромских, Андрей Кулик |
Здания корпусов 4 и 5, построенные под руководством инженера Александра Роопа в 1912–1914 годах на месте южного крыла старого завода, образуют ядро нового комплекса. Сдержанная псевдороманика их фасадов характерна для фабричной архитектуры своего времени, её главное украшение – «ползучие» ломбардские аркатуры и рёбра контрфорсов между большими окнами, которые здесь выстроены преимущественно в два яруса. Здания выстроены «покоем», ножки буквы «П» обращены к ж/д насыпи и образуют с западный стороны двор-парковку, довольно прагматичный, но тихий, с деревьями. Пристройки советского времени, занимавшие двор почти полностью, разобрали. Исторические стены отчистили, расставшись, как и везде, с красно-белой раскраской. Простые лучковые фронтоны и широкие окна скомпонованы лаконично, но не без вариативности: где-то карниз поддержан декором ползучих арок, где-то минималистично отсутствует.
Окна и двери заменены на новые, остеклённые в металлических рамах и разбавлены стеклянными же козырьками на хай-тековских тросах, добавляющих образу глянца, также как и аккуратные коробочки фонарей вечерней подсветки, призванной акцентировать вертикали лопаток и детали декора – впрочем, такая же подсветка используется и на третьем корпусе. Между четвертым и третьим корпусом располагается пешеходный бульвар – главный центр тихой жизни комплекса, с кафе и кортеновой облицовкой клумб и скамеек. Высокая, круглая в сечении заводская труба до сих пор действует, обслуживая котельную, которую, впрочем, планируется перенести. Заводские артефакты: трубы и вентили, выкрашенные в оранжевый цвет, поддерживают фактурное обаяние «прома». Нижние этажи преимущественно торговые, верхние в основном офисные.
Окна и двери заменены на новые, остеклённые в металлических рамах и разбавлены стеклянными же козырьками на хай-тековских тросах, добавляющих образу глянца, также как и аккуратные коробочки фонарей вечерней подсветки, призванной акцентировать вертикали лопаток и детали декора – впрочем, такая же подсветка используется и на третьем корпусе. Между четвертым и третьим корпусом располагается пешеходный бульвар – главный центр тихой жизни комплекса, с кафе и кортеновой облицовкой клумб и скамеек. Высокая, круглая в сечении заводская труба до сих пор действует, обслуживая котельную, которую, впрочем, планируется перенести. Заводские артефакты: трубы и вентили, выкрашенные в оранжевый цвет, поддерживают фактурное обаяние «прома». Нижние этажи преимущественно торговые, верхние в основном офисные.
Арма: корпус 6
Арма: корпус 6. Визуализация, 2013 © Сергей Киселев и Партнеры
| где: | Россия, Москва. Нижний Сусальный переулок, д. 5, строение 6 | |
| даты | 2011 — 2013 / 2013 — 2015 | |
| функция: | Административно-офисный / офисное здание | |
| мастерская: | http://www.sk-p.ru/ | |
| автор: | Владимир Лабутин Руководитель авторского коллектива | |
| авторский коллектив: | Главный архитектор проекта: Владимир Лабутин Архитектор: Сергей Логоватовский |
Небольшой корпус, расположенный между 18 и 19 газгольдерами и новой котельной, служил для производства счетчиков; он появился раньше реконструкции Роопа, в 1880-х годах, и здесь «средневековые» ломбардские арочки сопровождены напоминающим об ампире классическим рустом.
Самое интересное в проекте реновации, предложенном Владимиром Лабутиным – это, наверное, кровля. Уважая скатный абрис предшественницы, она всё же поднимается вверх «скворечником» технического этажа и раскрывает два крыла для освещения интерьеров. Нижний этаж, также как и в других корпусах, углублён, вокруг него с двух сторон образовались обширные приямки для освещения, с просторными маршами лестниц для спуска на уровень бывшего подвала.
Самое интересное в проекте реновации, предложенном Владимиром Лабутиным – это, наверное, кровля. Уважая скатный абрис предшественницы, она всё же поднимается вверх «скворечником» технического этажа и раскрывает два крыла для освещения интерьеров. Нижний этаж, также как и в других корпусах, углублён, вокруг него с двух сторон образовались обширные приямки для освещения, с просторными маршами лестниц для спуска на уровень бывшего подвала.
Арма: корпус 7 (котельная)
Арма: корпус 7 (котельная). Визуализация, 2012 © Сергей Киселев и Партнеры
| где: | Россия, Москва. Нижний Сусальный переулок, д. 5, строение 7 | |
| даты | 2012 / 2012 — 2014 | |
| функция: | Инженерно-промышленный / Котельная | |
| мастерская: | http://www.sk-p.ru/ | |
| автор: | Алексей Медведев Руководитель авторского коллектива | |
| авторский коллектив: | Генеральный директор: Игорь Шварцман, ГАП: Алексей Медведев, архитектор: Юрий Фролов |
Корпус задумывался как новая котельная, но возникла идея использовать его как-то иначе, поэтому трубы поблизости пока не появились. В проекте существовало несколько вариантов решения этого небольшого здания с продиктованным участком, слегка зигзагообразным планом: в частности, в одной из версий шершавый кирпич прорезали тонкие вертикальные рамки.
Остановились на наиболее лаконичном: терракотовая облицовка чередует тонкие светлые и темные полосы ригеля, похожие на вязаный шарф и примиряющие темную краску на фасадах газгольдеров и почти оранжевый цвет исторических зданий. Глухие полосатые торцы обращены на север и юг, широкие стеклянные «телевизоры» – на восток, к площади перед историческими корпусами, чьи фасады они отражают, складывая из них калейдоскоп картинок. На запад, в сторону газогольдеров, смотрит ряд вертикальных окон, вырастающих прямо из земли.
Корпус, компактный и какой-то очень спокойный – ещё одно звено в мозаике зданий разных и разновременных, но в конечном счёте выстраивающихся в целостный ансамбль.
Остановились на наиболее лаконичном: терракотовая облицовка чередует тонкие светлые и темные полосы ригеля, похожие на вязаный шарф и примиряющие темную краску на фасадах газгольдеров и почти оранжевый цвет исторических зданий. Глухие полосатые торцы обращены на север и юг, широкие стеклянные «телевизоры» – на восток, к площади перед историческими корпусами, чьи фасады они отражают, складывая из них калейдоскоп картинок. На запад, в сторону газогольдеров, смотрит ряд вертикальных окон, вырастающих прямо из земли.
Корпус, компактный и какой-то очень спокойный – ещё одно звено в мозаике зданий разных и разновременных, но в конечном счёте выстраивающихся в целостный ансамбль.
Арма: корпус 13
Арма: корпус 13. Визуализация, 2014 © Сергей Киселев и Партнеры
| где: | Россия, Москва. Нижний Сусальный переулок, д. 5, строение 13 | |
| даты | 2012 — 2014 / 2014 — 2015 | |
| функция: | Административно-офисный / административно-офисное здание | |
| мастерская: | http://www.sk-p.ru/ | |
| автор: | Алексей Медведев Руководитель авторского коллектива | |
| авторский коллектив: | Главный архитектор проекта: Алексей Медведев Архитекторы: Татьяна Груздева, Ирина Каминская |
Самое незаметное из зданий комплекса явственно стремится вжаться в его западную границу. У него и план такой – острый треугольный, это здание похоже и на стену, и на забор; кроме того, пока ты идёшь мимо него в сторону туннеля, фасад отступает влево, объем заметно истоньшается, почти влипает в стену соседних строений железнодорожного ведомства. Идёшь и думаешь: вот бы всё новое строительство в историческом центре было такого рода, деликатным самоотречения, но с изюминкой.
В здании задумывалось две изюмины, а осталась одна. Первая, не случившаяся – кортеновые фасады. Они придали бы корпусу ещё больше сходства с домом-забором или ангаром, якобы оставшимся от заводских, и в то же время отлично перекликались бы в кортеновыми клумбами на внутреннем бульваре. Но нет. Пришлось корпусу быть кирпичным, покрытым глянцеватой плиткой. Среди вариантов были плиты искусственного камня, более подходящие для крупных плоскостей, но тоже не удалось, и мелким ригелем неровной окраски авторы нельзя сказать, чтобы довольны.
Широкие перспективные откосы окон остались от «кортенового» варианта. Они асимметричны, но строги: каждый правый откос совершенно прямой, каждый левый – очень пологий, ловит солнце, восходящее на востоке – пусть под углом, но в окно оно попадёт. Форма откосов вторит треугольному абрису плана здания, намекает на то, какое оно треугольное. И в то же время заострённые выступы простенков явственно похожи на тонкую осовремененную разновидность ребер-контрфорсов, что тоже созвучно архитектуре старого прома.
В здании задумывалось две изюмины, а осталась одна. Первая, не случившаяся – кортеновые фасады. Они придали бы корпусу ещё больше сходства с домом-забором или ангаром, якобы оставшимся от заводских, и в то же время отлично перекликались бы в кортеновыми клумбами на внутреннем бульваре. Но нет. Пришлось корпусу быть кирпичным, покрытым глянцеватой плиткой. Среди вариантов были плиты искусственного камня, более подходящие для крупных плоскостей, но тоже не удалось, и мелким ригелем неровной окраски авторы нельзя сказать, чтобы довольны.
Широкие перспективные откосы окон остались от «кортенового» варианта. Они асимметричны, но строги: каждый правый откос совершенно прямой, каждый левый – очень пологий, ловит солнце, восходящее на востоке – пусть под углом, но в окно оно попадёт. Форма откосов вторит треугольному абрису плана здания, намекает на то, какое оно треугольное. И в то же время заострённые выступы простенков явственно похожи на тонкую осовремененную разновидность ребер-контрфорсов, что тоже созвучно архитектуре старого прома.
Арма: корпус 19
Арма: корпус 19. Визуализация, 2013 © Сергей Киселев и Партнеры
| где: | Россия, Москва. Нижний Сусальный переулок, д. 5, строение 19 | |
| даты | 2011 — 2012 / 2012 — 2013 | |
| функция: | Административно-офисный / административно-офисное здание | |
| мастерская: | http://www.sk-p.ru/ | |
| автор: | Алексей Медведев Руководитель авторского коллектива | |
| авторский коллектив: | Главный архитектор проекта: Алексей Медведев Архитекторы: Галина Харитонова, Вероника Джантимирова, Инженеры: Александр Коршунов, Ольга Аксенова |
Корпус номер 19 – самый большой из обновленных построек «Армы», он расположен за газгольдерами и окружен полями обширной наземной парковки (подземных здесь нет), удачно продолжает линию главной оси, хотя и отстоит от неё немного правее. Но так или иначе, а идя от Нижнего Сусального практически по прямой, мы приходим к главному, северному входу в здание.
«Для меня это был важный опыт работы в исторической, но не городской, а промышленной среде, с её особой пластикой и собственными брутальными приёмами, – говорит автор проекта корпуса №19 Алексей Медведев. – Работа на стыке старого и нового, и особенно соседство таких уникальных памятников, как газгольдеры, была очень интересной задачей, но потребовала максимального подчинения контексту. Наш объект, не стремится подавить окружающие памятники, напротив, оттеняет их и намеренно отходит на второй план».
Вход решен как глубокая и крупная, двухэтажной высоты ниша в белокаменной рамке, со встроенным в неё металлическим козырьком. Порталу вторит, прямо продолжая его в глубину, двусветное пространство вестибюля внутри: со светлыми стенами, жёлтым деревом, балконом молочного стекла в уровне второго этажа, и кругами в потолке, которые деликатно-геометрически напоминают нам о соседстве газгольдеров. Колодцы лестниц с белыми стенами и светлыми ступенями как будто бы светятся изнутри. Интерьер спроектирован архитекторами СКиП. А вот к реализации подключились и заказчик, и подрядчик...
Ещё одна любопытная деталь – глубокие приямки, вытянутые у продольных стен; подходя, как-то не сразу понимаешь даже, что это такое, а это архитекторы обыграли углублённое пространство, разместив в нем частью офисы, частью кафе, из которых на лифте можно будет подняться на террасу на южной части крыши. Приямки, прикрытые слегка наклонённым стеклом, ловят дневной свет для обитателей минус первого этажа, а у проходящих снаружи вызывают любопытство и желание заглянуть вниз.
Впрочем, внизу фасады такие же, как и наверху – здание вырастает из углубления в земле. Фасады же основных этажей подчинены крупной рельефной сетке, которая, глубоко – на 33 см – выступая от оконных стекол, объединяет этажи по два ритмом вертикальных проёмов. Ширина вертикальных и горизонтальных простенков одинаковая, деталей – минимум: только на торцевых фасадах шаг сетки регулярный, а на продольных появляются крупные прогалины – сетка «растягивается» на больших плоскостях, как трикотаж. Там, где кирпичная перемычка отсутствует, её отсутствие обозначено черным стеклом, и получается, что прорисованы все недостающие линии, в том числе и межэтажные перекрытия.
Крупное, лаконичное здание, заметно собранное простым модулем фасадов, встречает всех въезжающих и входящих со стороны Яузы и Винзавода. Корпус оказывается справа, слева круглые бока газгольдеров. Корпус 19 совершенно не спорит с явной харизматичностью цилиндрической формы главных героев «Армы», но в то же время демонстрирует самостоятельность, иной подход, более строгий. Что и правильно: в конечном счете они оттеняют друг друга, как «толстый и тонкий», на контрасте.
«Для меня это был важный опыт работы в исторической, но не городской, а промышленной среде, с её особой пластикой и собственными брутальными приёмами, – говорит автор проекта корпуса №19 Алексей Медведев. – Работа на стыке старого и нового, и особенно соседство таких уникальных памятников, как газгольдеры, была очень интересной задачей, но потребовала максимального подчинения контексту. Наш объект, не стремится подавить окружающие памятники, напротив, оттеняет их и намеренно отходит на второй план».
Вход решен как глубокая и крупная, двухэтажной высоты ниша в белокаменной рамке, со встроенным в неё металлическим козырьком. Порталу вторит, прямо продолжая его в глубину, двусветное пространство вестибюля внутри: со светлыми стенами, жёлтым деревом, балконом молочного стекла в уровне второго этажа, и кругами в потолке, которые деликатно-геометрически напоминают нам о соседстве газгольдеров. Колодцы лестниц с белыми стенами и светлыми ступенями как будто бы светятся изнутри. Интерьер спроектирован архитекторами СКиП. А вот к реализации подключились и заказчик, и подрядчик...
Ещё одна любопытная деталь – глубокие приямки, вытянутые у продольных стен; подходя, как-то не сразу понимаешь даже, что это такое, а это архитекторы обыграли углублённое пространство, разместив в нем частью офисы, частью кафе, из которых на лифте можно будет подняться на террасу на южной части крыши. Приямки, прикрытые слегка наклонённым стеклом, ловят дневной свет для обитателей минус первого этажа, а у проходящих снаружи вызывают любопытство и желание заглянуть вниз.
Впрочем, внизу фасады такие же, как и наверху – здание вырастает из углубления в земле. Фасады же основных этажей подчинены крупной рельефной сетке, которая, глубоко – на 33 см – выступая от оконных стекол, объединяет этажи по два ритмом вертикальных проёмов. Ширина вертикальных и горизонтальных простенков одинаковая, деталей – минимум: только на торцевых фасадах шаг сетки регулярный, а на продольных появляются крупные прогалины – сетка «растягивается» на больших плоскостях, как трикотаж. Там, где кирпичная перемычка отсутствует, её отсутствие обозначено черным стеклом, и получается, что прорисованы все недостающие линии, в том числе и межэтажные перекрытия.
Крупное, лаконичное здание, заметно собранное простым модулем фасадов, встречает всех въезжающих и входящих со стороны Яузы и Винзавода. Корпус оказывается справа, слева круглые бока газгольдеров. Корпус 19 совершенно не спорит с явной харизматичностью цилиндрической формы главных героев «Армы», но в то же время демонстрирует самостоятельность, иной подход, более строгий. Что и правильно: в конечном счете они оттеняют друг друга, как «толстый и тонкий», на контрасте.
