Башни и крупные кварталы растут как лес и к юго-западу от Лобачевского, но особенно интенсивно – к северо-востоку от нее, у рек Очаковки и Раменки. Здесь строится ЖК «Крылья» (Aedas), две очереди ЖК «Огни» (ATRIUM), четыре очереди ЖК «Событие» (АПЕКС, ТПО «Резерв», UNK, Горпроект, мастер-план LDA и UHA). На другом берегу реки Раменки построен ЖК «Небо» (ТПО «Резерв») – планируется, что от него до улицы Лобачевского через ЖК «Событие» будет вести парк; пешеходный мост через Раменку уже существует. Ближайшие соседи рассматриваемого участка – ЖК «Большая Очаковская 2» (ПИК-Проект) с севера и ЖК «Level Мичуринский» (СПИЧ) с юга.
В районе, который так быстро прирастает новым жильем, хороший торговый комплекс будет более чем уместным – пока что помимо рассматриваемого проекта других крупных общественных комплексов в районе масштабной жилой застройки не запланировано. Это обеспечит посетителей, но и накладывает определенную ответственность.
ТРЦ с рабочим названием West Mall, спроектированный архитекторами СКиП, задуман не только многофункциональным, с развитой общественно-развлекательной частью, но и очень экологичным, «зеленым» и «устойчивым» – таким было пожелание заказчика, компании «Гарант-Инвест», активно внедряющей принципы эко-ответственности. Здание планируется сертифицировать по LEED и BREEAM. Требовалось использовать не менее 62 «зеленых» технологий: в этот подсчет включаются технологии строительства, изготовления строительных материалов и параметры дальнейшей эксплуатации здания.
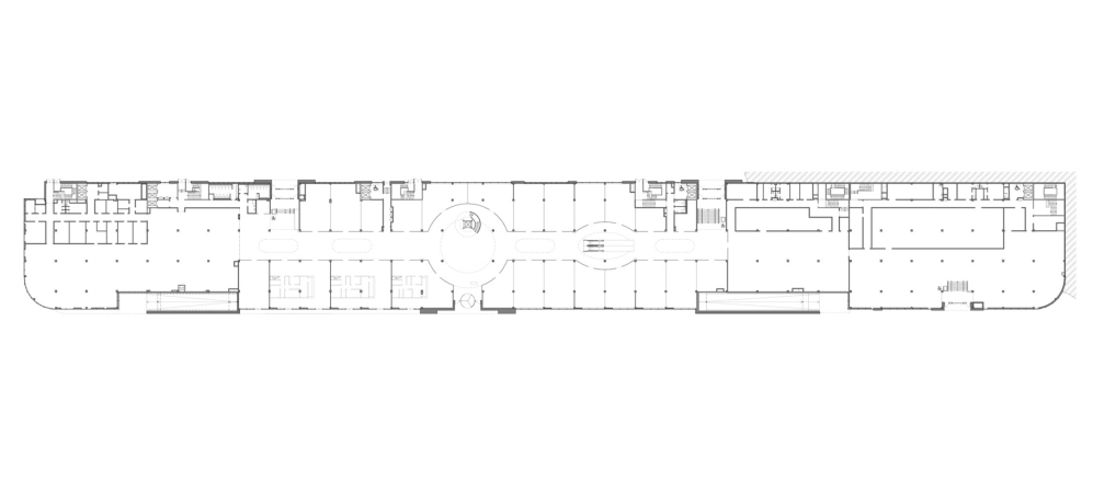
МФК на Большой Очаковской. Генплан
© АМ Сергей Киселев и Партнеры
Итак, узкий протяженный участок проектирования площадью около 1,3 га, длиной больше 350 м при ширине чуть больше 40 м, – вытянут вдоль улицы Лобачевского, крупной шестиполосной московской хорды с интенсивным движением. «За спиной» будущего ТРЦ выстроились в ряд несколько башен, построенных в 2011 году, но несущих на себе отпечаток несложных стилевых предпочтений предшествующей эпохи – первый фронт ЖК «Мичурино». Прямо напротив, на противоположной стороне улицы, располагается массивное здание УВД по ЗАО, его треугольный объем острым углом развернут к дороге.
МФК на Большой Очаковской
© АМ Сергей Киселев и Партнеры
МФК на Большой Очаковской
© АМ Сергей Киселев и Партнеры
МФК на Большой Очаковской
© АМ Сергей Киселев и Партнеры
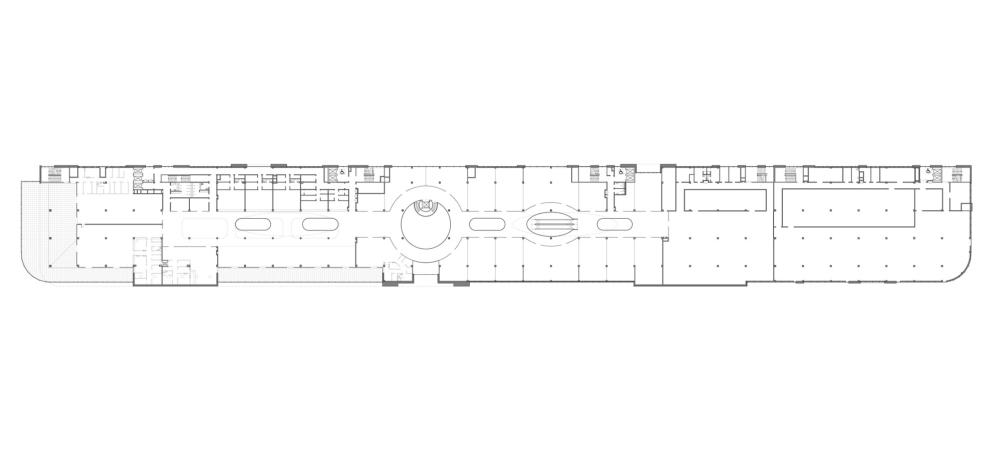
Опять же неудивительно, что здание ТРЦ в проекте СКиП до некоторой степени дистанцируется от крайне энергичного окружения и отчасти даже оказывается противоположным ему: оно спокойно занимает почти весь прямоугольник участка, не превышая двух этажей плюс один подземный ярус с парковкой.
Объем аккуратно посажен на рельеф, который здесь понижается к югу, в сторону Озерной улицы, примерно на 4 м. Внешние, обращенные к перекресткам, углы ТРЦ заметно скруглены – они служат акцентами и как будто рефлексируют на тему потоков автомобилей, совершающих здесь повороты и развороты.
Заметная особенность ТРЦ – его главные фасады, обращенные к Лобачевского и перекресткам, остеклены почти полностью, сверху донизу. Планируется энергоэффективное стекло с инертным газом внутри стеклопакетов и теплоотражающим покрытием. Интенсивность динамичной подсветки регулируется в зависимости от времени суток.
МФК на Большой Очаковской
© АМ Сергей Киселев и Партнеры
По вечерам объем ТРЦ должен будет, в основном, светиться изнутри, а днем стекла, как и зенитные фонари, осветят внутреннее пространство естественным светом. Покупатели супермаркета будут бродить меж полок с товарами в окружении стекла «в пол», что, вероятно, даст новые неожиданные ощущения. Впрочем, отчасти стекла будут замаскированы градиентом шелкографии, чтобы эффект прозрачных стен не оказался избыточным.
МФК на Большой Очаковской
© АМ Сергей Киселев и Партнеры
Металлические плоскости вишневого оттенка, призванные, в частности, нести на себе рекламные баннеры, на главном фасаде занимают не больше четверти всей ширины. Тыльная стена, обращенная к ЖК, чередует вишневые металлические плоскости с белым подсвеченным матовым и прозрачным стеклом.
МФК на Большой Очаковской
© АМ Сергей Киселев и Партнеры
МФК на Большой Очаковской
© АМ Сергей Киселев и Партнеры
МФК на Большой Очаковской
© АМ Сергей Киселев и Партнеры
У второго этажа большой потенциал общественного пространства: здесь, помимо некоторого количества бутиков и просторного фудкорта, планируется разместить арт-пространство и информационный центр популяризации зеленых технологий.
В торце со стороны Озерной улицы объем ТРЦ отступает ступенькой, формируя просторную летнюю террасу для фудкорта – если не «капитанский мостик», то «палубу корабля».
МФК на Большой Очаковской
© АМ Сергей Киселев и Партнеры
Сдвижка этажей со стороны Озерной улицы позволила не только акцентировать угол здания, но и организовать террасы ресторанов и фудкортов, – такого рода террасы, как известно, в теплое время года стабильно пользуются популярностью у посетителей.
Это решение – не столько эстетическое, сколько функциональное. Для нашего бюро форма здания прежде всего диктуется функцией, особенности архитектурного решения подчиняются прагматическим требованиям. Торговый центр – утилитарное здание, любое искажение простой формы должно быть обоснованно; в данном случае так и есть – это практичное решение, которое, однако, меняет силуэт здания при его восприятии с угла, в движении от Мичуринского проспекта в сторону проспекта Генерала Дорохова.
Это решение – не столько эстетическое, сколько функциональное. Для нашего бюро форма здания прежде всего диктуется функцией, особенности архитектурного решения подчиняются прагматическим требованиям. Торговый центр – утилитарное здание, любое искажение простой формы должно быть обоснованно; в данном случае так и есть – это практичное решение, которое, однако, меняет силуэт здания при его восприятии с угла, в движении от Мичуринского проспекта в сторону проспекта Генерала Дорохова.
Первый этаж отведен под магазины и супермаркет. Его пространство решено в виде продольной торговой галереи с большим круглым атриумом под зенитным светопрозрачным куполом; он расположен приблизительно по центру протяженного комплекса. Круглый вырез поддержан колоннами круглого сечения; им вторят световые круги на потолке. Лифт окружен почти-винтовой лестницей: она ведет с первого этажа на второй и добавляет пространству интриги.
МФК на Большой Очаковской. Атриум
© АМ Сергей Киселев и Партнеры
Круглый купол центрального атриума симметрично фланкирован двумя овальными световыми куполами: один из них освещает атриум поменьше, с эскалаторами, другой – галерею второго этажа. Все стеклянные купола оснащены открывающимися фрамугами с электроприводами и датчиками температуры, что позволит поддерживать внутри здания комфортную температуру. Внутри торгового центра появятся стены из живых растений.
МФК на Большой Очаковской. Зона фудкортов
© АМ Сергей Киселев и Партнеры
МФК на Большой Очаковской
© АМ Сергей Киселев и Партнеры
В атриум ведет центральный вход с улицы Лобачевского, по сторонам расположены въезды-выезды подземной парковки на 215 машиномест. Предусмотрены и входы со стороны ЖК «Мичурино» – ТРЦ можно будет пересечь, выйдя к жилому комплексу, и наоборот, пройти через него от ЖК к улице Лобачевского.
Слева от входа расположено несколько помещений фуд-холла – ресторанов, в которые можно будет войти как с улицы, так и из пассажа. Планируется, что летом перед ними будут появляться столики кафе, способные хотя бы отчасти придать улице Лобачевского характер городского променада. Здесь же расположилась автобусная остановка.
МФК на Большой Очаковской
© АМ Сергей Киселев и Партнеры
МФК на Большой Очаковской
© АМ Сергей Киселев и Партнеры
МФК на Большой Очаковской
© АМ Сергей Киселев и Партнеры
МФК на Большой Очаковской
© АМ Сергей Киселев и Партнеры
Одна из важных особенностей ТРЦ – озелененная эксплуатируемая кровля, практически сад на крыше; кажется, в крупных московских торговых центрах такого еще не было. Между стеклянными куполами расположился парк, ну или сквер: с газонами, цветниками, дорожками, скамейками и летними кафе. От жилого комплекса его отчасти отделяет повышенный объем-стенка, вытянутый вдоль всего юго-западного фасада.
Парковое пространство на кровле будет доступно для всех посетителей торгового центра.
МФК на Большой Очаковской
© АМ Сергей Киселев и Партнеры
МФК на Большой Очаковской
© АМ Сергей Киселев и Партнеры
МФК на Большой Очаковской
© АМ Сергей Киселев и Партнеры
Всю территорию вокруг ТРЦ планируется благоустроить, в том числе и добавив озеленение: при входе по центру с улицы Лобачевского появляется небольшая городская площадь со столиками кафе, перед торцом у перекрестка с Озерной улицей – еще одна площадь с каруселью, возможностью залить зимний каток и устанавливать ларьки для проведения ярмарок (над ней – терраса ресторанов второго этажа). Со стороны жилых домов благоустройство призвано облегчить движение ко входам в торговый центр.
Вдоль тротуаров высадят деревья и кустарники, организуют остановки общественного транспорта, парковки для велосипедов, самокатов и электросамокатов с возможностью их подзарядки. Отдельно будут предусмотрены пункты проката экологичного транспорта и зарядные станции для электромобилей. Плоскостных автомобильных парковок вокруг нового здания не будет совсем, только несколько мест для такси.
Помимо паркинга в подземном ярусе будут размещены все технологические зоны, зоны загрузки товаров, а также сбора, сортировки, прессования и вывоза мусора – ни мусоровозы, ни грузовики не будут подходить к фасаду снаружи в уровне города, все технические действия будут совершаться внутри подземного паркинга – специально для этого была увеличена высота его потолков. Для очистки воздуха из кухонь ресторанов и кафе внутри будет установлено специальное оборудование, которое позволит сохранить воздух свежим, без запахов от приготовления пищи. Выходы вентоборудования собраны в протяженном выступе над эксплуатируемой кровлей, причем решетки размещены ближе к улице Лобачевского и дальше от домов ЖК «Мичурино».
Для отделки фасадов и интерьеров планируется использовать только высококачественные и эко-сертифицированные материалы, преимущественно вторичной переработки.
Помимо всего вышеперечисленного в здании установят солнечные батареи для подсветки зон отдыха на эксплуатируемой кровле и оборудование для сбора и отчистки дождевой воды. В зимнее время для уборки снега на крыше будет работать снеготаялка. Максимально сэкономить электроэнергию позволят централизованные и интеллектуальные системы управления энергоресурсами и освещением, автоматическое управление системами вентиляции, а также фильтрации и очистки воздуха.
Одна только установка современного светодиодного освещения, запланированная в West Mall, сэкономит от 40 до 90% электроэнергии в год. Той же цели будут служить многочисленные датчики движения и температуры. А пофасадное регулирование отопления, когда северный и южный фасад, получающие разное количество тепла и солнечного света, отапливаются по-разному, позволит заметно сократить теплопотери.
***
В целом ТРЦ West Mall, расположенный в бурно развивающемся районе Москвы, во-первых, имеет все шансы на востребованность. Во-вторых, он обладает рядом отличий от устоявшегося образа торгового комплекса, даже многофункционального. На его кровле разбит общественный парк; почти весь второй этаж отдан общественным функциям – торговля занимает, таким образом, чуть больше трети строительного объема, а если в подсчеты включить парк на кровле – то четверть. Это неожиданно, также как и стеклянные фасады – обычно ТРЦ стремятся, как виноградная улитка, свернуться «внутрь себя» и водить покупателя по кругу, пока он не купит все, что возможно.
Здесь же здание устроено по принципу пассажа – его можно свободно пройти по оси как вдоль, так и поперек. Оно открыто как в планировочном отношении, так и визуально, благодаря значительному объему остекления. Такие примеры в Москве есть, и даже в западной ее части, но они по-прежнему достаточно редки. Об экологической направленности уже говорилось выше. Словом, перед нами торговый центр нового поколения, развивающий позитивные тенденции современности.
В данный момент начинается строительство многофункционального ТРЦ, открыть его планируется в конце 2022 года.


