Тема, действительно, в нашей стране не развита и не проработана на современном уровне, так что сам факт проведения конкурса можно считать событием позитивным, если, конечно, за ним последует дальнейшая работа. Само по себе название – дом престарелых, – у нас употребляют в устной речи, а в письменной скорее стесняются, что становится причиной для сложных и тяжеловесных названий, в частности, определение проектируемого объекта в конкурсе звучало так: «концептуальный проект зданий стационарных организаций социального обслуживания граждан старших возрастных групп», – согласитесь, довольно сложно для восприятия и произнесения. Участники, между тем, восприняли задачу с энтузиазмом, что неудивительно, ее пафос очевиден в стареющем европейском мире и особенно в нашей с еще большей скоростью стареющей стране, где очень дорогие, мягко говоря элитные дома престарелых соседствуют с такими, где цена содержания на человека в день составляет хорошо если 600 рублей.
Цель, поставленную перед участниками, можно передать примерно так: изучив зарубежный опыт, предложить концепцию дома престарелых с современным подходом, способную преодолеть сложившиеся в нашем обществе стереотипы, в частности – что такого рода учреждения предназначены для стариков, которым больше некуда пойти, что это место страданий и тяжелого «доживания» последних лет, что отдать туда родственников более чем стыдно. Дома престарелых должны стать местами комфортной и интересной жизни, – считают организаторы конкурса. Если же говорить о задачах, то здания проектировались намеренно без какой-либо географической привязки и по достаточно обтекаемому техзаданию. Предполагается, что доработанные проекты будут рекомендованы губернаторам и станут основой для развития отрасли на новом уровне и в новом ключе: «внесены в Реестр экономически эффективной проектной документации повторного применения, что позволит тиражировать лучшие решения по всей стране», как сообщает Минтруд.
Между тем в условиях было оговорено, что здания необходимо планировать для городской среды, их высотность – 2-3 этажа, расчетное число обитателей – 150 человек. Речь, кроме того, идет не о столице, а о регионах. Конкурс сопровождался семинарами и совещаниями с участием представителей организацией, работающих с учреждениями подобного типа. Перед архитекторами, в числе прочего, была поставлена задача предложить свой взгляд на необходимость корректировки нормативов для рассматриваемой типологии.
Публикуем четыре победивших проекта.
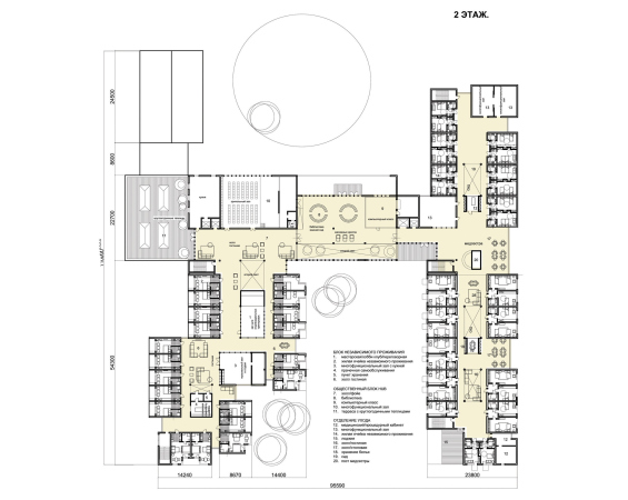
1 место: МАРХИ
руководитель Мария Троян, архитектор Никита Колбовский;Московский Архитектурный Институт и Лаборатория архитектурных решений для пожилых
Концептуальный проект зданий стационарных организаций социального обслуживания граждан старших возрастных групп
                © МАРХИ / коллектив под руководством Марии Троян
        Проект-победитель разработан командой МАРХИ под руководством Марии Троян и в подаче предварен литературно-трогательным обзором аудитории: активной пенсионерки «бабы Розы», прикованного к постели, но с интересом наблюдающего за окружающим «Василия Евгеньевича» и мальчика Феди из соседнего детского сада, причем история разворачивается таким образом, что баба Роза читает сказки детям, а Федя читает стих Василию Евгеньевичу: «…один старик благодарил меня и плакал». Так из вводной части проекта мы понимаем и даже получаем возможность прочувствовать, как важен для пожилых людей круг общения в целом и общение с детьми, звуки молодого мира, в частности.
Проект, также как и другие предложения, не только нацелен на уход за пожилыми людьми, но учитывает необходимость их социализации и интеграции комплекса в город; общение становится одним из ключевых пунктов. Но подкупает в проекте-победителе именно обилие нюансов и детализации.
Концептуальный проект зданий стационарных организаций социального обслуживания граждан старших возрастных групп
                © МАРХИ / коллектив под руководством Марии Троян
        Так, авторы формулируют алгоритм выбора территорий для его размещения: в городе, на пересечении пешеходных путей, вблизи городских общественных зон, детского сада для общения с детьми, храма и автобусной остановки (поскольку «пожилые люди предпочитают пользоваться автобусами», читай – не метро). Размещение на границе парка, подчеркивают авторы, может помочь сократить площадь под застройку на 20-30%.
Концептуальный проект зданий стационарных организаций социального обслуживания граждан старших возрастных групп
                © МАРХИ / коллектив под руководством Марии Троян
        Авторы подчеркивают важность вариативности, трансформируемости, многофункциональности и модульности, отмечая, в частности, важность таких вещей, как переезд «вблизи от прежнего жилища», не теряя межпоколенческие связи или, скажем, «возможность переехать со своим котом». Предложено 4 модуля общественных пространств, в зависимости от степени ухода и мобильности обитателей центра – причем доступность между ними должна быть «тапочная», – еще одно новое понятие. Один из модулей – коммерческий, ориентирован на город и включен в городскую инфраструктуру, предполагает доступность для всех горожан, наличие кафе, магазинов и сервисов. Среди общественных функций также названы: аптека, библиотека, компьютерный класс и постомат для получения интернет-заказов.
Концептуальный проект зданий стационарных организаций социального обслуживания граждан старших возрастных групп
                © МАРХИ / коллектив под руководством Марии Троян
        Архитекторы предполагают даже возможность надстройки комплекса жилыми этажами для большей его интеграции в городскую жизнь: «строительство подобных гибридов позволило бы провоцировать межпоколенческое общение и гуманное воспитание поколений», – уточняют они, считая, что выбранная Н-образная форма плана удобна для роста здания вверх.
Предложена «бескоридорная» планировка, отдельный акцент сделан на обилии естественного освещения: световые фонари, сплошное остекление общественных зон, окна в пол и зенитные. Базовая высотность 2 этажа и силуэт со скатной кровлей придают комплексу черты традиционной архитектуры, что на фоне преобладающей в нашей стране типовой застройки послевоенного периода будет выглядеть скорее инновационным, чем консервативным.
В этом проекте много слов; сочетание лирически-литературной составляющей с множеством деталей, таких, как постомат или кот, с которым можно переехать, подчеркивает исследовательскую аналитичность подхода и внимание к проблемам пожилых людей; впрочем, грань избыточной сентиментальности авторы не переходят, так что перечисленные качества можно считать скорее достоинством победившего предложения.
***
2 место: DK architects
Ярославское бюро DK architects Григория Дайнова сделало акцент на универсальности прямоугольных блоков с плоской кровлей, чья форма перекликается с типовой малоэтажной застройкой, широко распространенной в городах РФ. Но, в отличие от последней, в проекте активно использованы преимущества плоской кровли: эксплуатируемая, зеленая, там размещен сад-огород, столь любимый пожилыми людьми. Он компенсирует отсутствие или недоступность дачи или приусадебного участка, – справедливо поясняют авторы, отдавая этой части значительную площадь, фактически равную этажу всего здания.
Григорий Дайнов, как и его коллеги по соревнованию, комбинирует жилые помещения с развитыми общественными – называя последние «универсальным ядром» и размещая там: места для занятий спортом и творчеством, рекреации, офисы администрации. Типология жилых пространств подразделяется на 4 варианта: независимое для тех, кто в уходе не нуждается; ассистированное – с минимальной поддержкой; и два более серьезных, с квалифицированной сестринским и гериатрическим уходом. Два последних типа занимают в проекте большую площадь и располагаются на втором этаже, нижнем из жилых. Первый этаж отдан инфраструктуре, творческим и спортивным блокам, на третьем живут те, кому серьезная поддержка не нужна. Авторы особо подчеркивают, что трехэтажные здания более компактны, чем предложенные в ТЗ двухэтажные, и универсальны для любого городского контекста.
Ячейки-параллелепипеды трактованы как универсальные модули, предполагающие разные виды компоновок: архитекторы рифмуют варианты расстановки корпусов с разными типами планировки русских городов, но для примера берут Н-образный план со сдвигом и двумя полуоткрытыми приватными дворами, «отвечающий микрорайонному типу городской застройки», который «наиболее распространен в нашей стране». Авторы рекомендуют меридиональную ориентацию для лучшей инсоляции, и внешнюю стену каждой комнаты располагают диагонально: как для уловления света, так и ради треугольного балкона. Фасады становятся зигзагообразными, а здания напоминают уже не типовые трехэтажки, а архитектуру санаториев и домов отдыха, советских и не только.
DK architects также, в отличие от коллег, предлагают конкретную тестовую площадку, в Ярославле на Тутаевском шоссе, при том подчеркивая, что проект "адаптивен к большинству микрорайонов позднесоветской застройки".
***
3 место: Сергей Киселёв и Партнёры
Концептуальный проект зданий стационарных организаций социального обслуживания граждан старших возрастных групп
                © Сергей Киселев и Партнёры
        Два главных акцента предложения архитекторов компании «Сергей Киселёв и Партнёры» – полная открытость общественных пространств нижнего яруса городу и гибкая система модулей, похожих на лаконичный конструктор. Архитекторы позиционируют свой проект как «открытую систему»: здание не изолировано от города, напротив, его общественные пространства рассчитаны на использование как обитателями комплекса, так и – наравне с ними – горожанами. «Для пожилых людей важна возможность быть включенными в жизнь социума, возможность, может быть, не всегда участвовать, но чувствовать себя причастными, – поясняет ГАП проекта Антон Бусалов. – Важно, чтобы человека окружала жизнь: не только сверстники, но и люди разных возрастов, способные насытить пространство разнообразными эмоциями, поддержать связь с социумом. Так что по нашему замыслу город должен буквально «войти» в нижний ярус здания».
Авторы предложили два модуля: для общественного и жилого ярусов. Модуль первого этажа – прямоугольное пространство, ячейка, в которую может поместиться практически «что угодно»: ФОК, бассейн, кафе, столовая, помещения для кружков, сад и огород, – наполнение, как и количество ячеек, могут изменяться в зависимости от места и задач. Элементы общественных пространств, составляющие стилобат, объединены широкой галереей, в которой можно проводить выставки и ярмарки. На кровле стилобата расположены дворы для жителей комплекса, закрытые от посторонних, но зеленые.
Жилые помещения разделены на три типа: жилье для пожилых людей, нуждающихся в постоянном уходе, маломобильных и с нарушениями памяти; жилье для людей, которым такой уход не нужен, но была бы полезна близость медицинской помощи и возможность общения с людьми того же возраста; и гостиницу. В первых предусмотрена столовая на каждом этаже, медицинский блок, а в комнатах – ниша для помощника, если человек нуждается в постоянном уходе. Вторые больше похожи на апартаменты, предполагается даже переезд туда с собственной мебелью. Везде намечены зоны для общения – просторные для открытого, небольшие для частного, например, встреч с родственниками, в блоках первого типа они размещены в атриумах и снабжены стеклянными стенами.
Так появились 4 варианта зданий разных пропорций: для первого типа предложены два вида секций – побольше с двумя атриумами, и поменьше с одним. В итоговом наборе их количество и наличие могут варьироваться, гостиница появляется в комплексе с максимальной «комплектацией». Располагать блоки, привязывая к ядру, можно разными способами – так авторы добиваются цельности и разнообразия.
Фасады жилых корпусов предполагают натуральные материалы, дерево и кирпич, и современные стеклянные ограждения балконов и кровли стилобата, окна предложены «в пол», а мебель в «апартаментах» интерпретирует темы дизайна 1970-х. Фасады гостиницы – из стекла и алюминия; все вместе производит впечатление современного отеля или жилого комплекса. «Уже сейчас многие пожилые люди ценят современную обстановку и комфорт, – поясняет руководитель СКиП Игорь Шварцман. – С нашей точки зрения намеренное «ретро», нацеленное на гипотетическую аудиторию «бабушек», неуместно, в своем предложении мы учитывали консерватизм пожилых людей, но в умеренной степени. Кроме того мы видим цель работы в том, чтобы предложить сценарий жизни не только для нынешних бабушек и дедушек, которым, предположим, могут понадобиться условный старый комод и патефон, – но и взглянуть шире, подумать о тех, кто сегодня еще молод, здоров и прогрессивен. Пройдет не так много времени, и обитателям таких комплексов понадобится hi-end аппаратура, wi-fi и прочее – поэтому мы считаем правильным закладывать в проект максимальную гибкость, особенно учитывая перспективу его повторяемости».
***
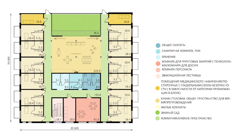
4 место: Semrén+Månsson
Проект зданий стационарных организаций социального обслуживания граждан старших возрастных групп
                © Semrén+Månsson
        Описание от архитекторов:
«Мы представили модульный блок, объединяющий две ячейки, каждая из которых включает 6 одноместных комнат для проживания, объединенных вокруг общего многофункционального холла. Жилые блоки могут быть адаптированы под любой тип ухода и выстраиваются в цепочки, конфигурация которых может свободно варьироваться в зависимости от местоположения и требований проекта.
Модульные блоки формируются вокруг общественного пространства, которое в каждом конкретном проекте может быть уникальным, поскольку компоновка блоков принципиально разнообразна. Проект предполагает вариативную этажность, от двух до трех этажей. В числе прочего она зависит от рельефа местности. Подход к ландшафту и набор его функций также строятся по модульному принципу: комбинируясь, ландшафтные модули разных типологий и типоразмеров: газон, цветник, теплица, сад ароматных трав, водоем, деревянный настил, спортивная площадка, и создают разнообразные тематические и досуговые зоны.
Основной замысел авторов концепции – формирование комфортной и функциональной среды для проживающих, сотрудников и посетителей через создание ощущения домашнего уюта, связь и взаимодействие с обществом и природой.
Жилые модули в плане имеют квадратную форму. Их внутреннее ядро – несколько сдвинутый относительно центра модуля многосветный зимний сад-атриум, обеспечивающий проникновение внутрь здания необходимого количества дневного света, благоприятный микроклимат и позитивную эмоциональную среду. Мобильные перегородки позволяют трансформировать общественные пространства в более и менее приватные и менять их функции. Каждый блок имеет пост дежурного, санитарные помещения и комнату для психологической работы.
Общественные пространства первого этажа группируются вокруг благоустроенных внутренних дворов и соединяются между собой прозрачными переходами. Предусмотрены бассейн, зоны для занятий гимнастикой и киносеансов, парикмахерская, творческие студии, огород, теплицы и даже небольшие водоёмы для рыбалки.
Проект разработан в соответствии с актуальным нормативами, и поэтому полностью реализуем при использовании сухотрубов и силовых штанг на кровле для доступа в закрытые дворы. Применение таких решений допустимо в соответствии с пожарными и эвакуационными требованиями и оформляется специальными техническими условиями.
Фасады задуманы лаконичными и подчиненными единой концепции, но разнообразными за счет материалов: кирпича, керамики или фиброцемента, разнящихся в соседних блоках, обеспечивая их индивидуальность. Большие окна дают обилие дневного света и возможность любоваться природой, а просторные балконы с кашпо предоставляют возможность людям с ограниченными возможностями передвижения находиться на свежем воздухе и выращивать цветы или другие растения. Силуэт тяготеет к многоскатному, но по-современному асимметричен».
***
 
                                                                                                
                            
             
        
 
                         
            
            
         
                            
 
                                         
                                         
                                         
                             
                             
                             
                                         
                                         
                                         
                                         
                                         
                                         
                                         
                                         
                                         
                                         
                                         
                                         
                                         
                                         
                                         
                                         
                                         
                                         
                                         
                                         
                                         
                                         
                                         
                             
                                         
                                         
                                         
                                         
                                         
                                         
                                         
                                         
                                         
                                         
                                         
                                         
                                         
                                         
                                         
                                         
                                         
                                         
                                         
                                         
                                         
                             
                                         
                                         
                                         
                                         
                                         
                                         
                                         
                                         
                                         
                                         
                                         
                                         
                                         
                                         
                                         
                     
                                                                        
                                                                     
                                                                        
                                                                     
                                                                        
                                                                     
                                                                        
                                                                     
                                                                        
                                                                     
                                                                        
                                                                     
                                                                        
                                                                     
                                                                        
                                                                     
                                                                        
                                                                     
                                                                        
                                                                     
                                                                        
                                                                     
                                                                        
                                                                     
                                                                        
                                                                     
                                                                        
                                                                     
                                                                        
                                                                     
                                                                        
                                                                     
                                                                        
                                                                     
                                                                        
                                                                     
                                                                        
                                                                     
                                                                        
                                                                     
                                                                        
                                                                     
                                                                        
                                                                     
                                                                        
                                                                     
                                                                        
                                                                     
                                                                        
                                                                     
                                                                        
                                                                     
                                                                        
                                                                     
                                                                        
                                                                     
                                                                        
                                                                     
                                                                        
                                                                     
                                                                        
                                                                     
                                                                        
                                                                     
                                                                        
                                                                     
                                                                        
                                                                     
                                                                        
                                                                     
                                                                        
                                                                     
                                                                        
                                                                     
                                                                        
                                                                     
                                                                        
                                                                     
                                                                        
                                                                     
                                                                        
                                                                     
                                                                        
                                                                     
                                                                        
                                                                     
                                                                        
                                                                     
                                                                        
                                                                     
                                                                        
                                                                     
                                                                        
                                                                     
                                                                        
                                                                     
                                                                        
                                                                     
                                                                        
                                                                     
                                                                        
                                                                     
                                                                        
                                                                     
                                                                        
                                                                     
                                                                        
                                                                     
                                                                        
                                                                     
                                                                        
                                                                     
                                                                        
                                                                     
                                                                        
                                                                     
                                                                        
                                                                     
                                                                        
                                                                     
                                                                        
                                                                     
                                                                        
                                                                     
                                                                        
                                                                     
                                                                        
                                                                     
                                                                        
                                                                     
                                                                        
                                                                     
                                                                        
                                                                     
                                                                        
                                                                     
                                                                        
                                                                     
                                                                        
                                                                     
                                                                        
                                                                     
                                                                        
                                                                     
                                                                        
                                                                     
                                                                        
                                                                     
                                                                        
                                                                     
                                         
                                                                        
                                                                     
                                                                        
                                                                    