Итогом дискуссий 2020 года стало то, что на первый план вышел проект Юлия Борисова и архитекторов UNK; на конкурсе он занял второе место. Проект, созданный в партнерстве со Storaket – они работали с объемно-планировочными решениями, и «Умной школой» Марка Сатрана – они предложили «технологию», подход к образовательному пространству, – уже в 2020 году сравнивали по техногенности архитектуры и цельной, обтекаемой лаконичной форме со штаб-квартирой Apple.
Он получил АГР, был отмечен в числе номинантов Архитектурной премии мэра Москвы, и сейчас реализован, быстрее, чем планировалось, так как сроки строительства были сокращены. Однако здание очень похоже на исходную, проектную версию себя: заметно, что и форме, и фасадам здания как в идее, так и в реализации архитекторы уделили много внимания.
Школа в «Садовых Кварталах»
Фотография: предоставлена UNK
Настояли, как рассказывает автор проекта Юлий Борисов, на осуществлении дорогих решений: структурном остеклении, керамике и прочем.
Все наши знаковые проекты проходят через конкурсы, либо открытые, либо закрытые. Практически ни одного знакового проекта заказного у нас нет. Мы постоянно участвуем, образно говоря, «в спортивных соревнованиях». По данному конкурсу задача была очень сложной. Школа должна была стать кульминацией прекрасного объекта – комплекса «Садовые кварталы», где работал Сергей Скуратов и много других знаковых архитекторов. Объект классный, у него есть свое лицо, дизайн-код, свои плюсы и минусы… Соответственно, это был вызов. Вторым вызовом было то, что я сам – местный житель и сейчас рассматриваю возможность, что мой четвертый ребенок пойдет в эту школу. Так что у меня была вдвойне повышенная степень ответственности.
Третье – участок не подходит для школьного здания. Он зажат по инсоляции, там очень сложные условия, негде было разместить спортивное ядро. И, наконец, здание школы должно было стать итоговым акцентом «Садовых кварталов», своего рода «вишенкой на торте». Она должна была, с одной стороны, следовать дизайн-коду, но внести что-то свое, отличаться.
На мой взгляд, наш проект удовлетворил всем требованиям. Отсутствие спортивного ядра мы компенсировали множеством террас на кровлях, где тоже можно заниматься физкультурой. Относительно дизайн-кода: в «Садовых кварталах» принят значительный процент керамики на фасадах, в основном кирпич, – мы тоже использовали керамику, но только более дорогую, поливную. Долго подбирали цвет, с переливом, металлизированный, затем проследили за тем, чтобы китайские производители воспроизвели его точно. В «Садовых кварталах» приняты скругленные углы с моллированным стеклом – мы изогнули стекло в консоли главного фасада, выходящей на пруд. Она прозрачная – оттуда открывается панорама всей центральной части комплекса, очень впечатляющая.
Строили быстро, были, надо сказать, попытки удешевления, но мы твердо стояли на своем, отстаивали качество каждой детали. Посмотрите, какие у нас стекла в консоли: герметик в швах – белого цвета, а шелкография, скрывающая межэтажные перекрытия, составлена из миниатюрных символов школы, тоже белых.
Третье – участок не подходит для школьного здания. Он зажат по инсоляции, там очень сложные условия, негде было разместить спортивное ядро. И, наконец, здание школы должно было стать итоговым акцентом «Садовых кварталов», своего рода «вишенкой на торте». Она должна была, с одной стороны, следовать дизайн-коду, но внести что-то свое, отличаться.
На мой взгляд, наш проект удовлетворил всем требованиям. Отсутствие спортивного ядра мы компенсировали множеством террас на кровлях, где тоже можно заниматься физкультурой. Относительно дизайн-кода: в «Садовых кварталах» принят значительный процент керамики на фасадах, в основном кирпич, – мы тоже использовали керамику, но только более дорогую, поливную. Долго подбирали цвет, с переливом, металлизированный, затем проследили за тем, чтобы китайские производители воспроизвели его точно. В «Садовых кварталах» приняты скругленные углы с моллированным стеклом – мы изогнули стекло в консоли главного фасада, выходящей на пруд. Она прозрачная – оттуда открывается панорама всей центральной части комплекса, очень впечатляющая.
Строили быстро, были, надо сказать, попытки удешевления, но мы твердо стояли на своем, отстаивали качество каждой детали. Посмотрите, какие у нас стекла в консоли: герметик в швах – белого цвета, а шелкография, скрывающая межэтажные перекрытия, составлена из миниатюрных символов школы, тоже белых.
Итак, рассмотрим школу.
Это первая школа, построенная в Хамовниках за последние 25 лет.
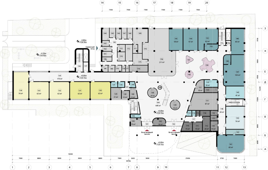
Ее план – непрост и определен, во многом, участком. Тыльные корпуса, где собрана большая часть классов, вытянуты между складчатым домом Сергея Чобана и кварталом номер один, параллельно 1-мы Шибаевскому проезду. С этой стороны подъезжают машины родителей, здесь, благодаря перепаду высот, появился заметно углубленный относительно городских улиц двор, для игр и занятий спортом. Рядом с ним расположен двусветный спортзал.
[существенный комментарий: представленные в этом тексте планы и разрезы относятся к конкурсному проекту 2020 года и реализованную планировку школы представляют лишь в общих чертах, хотя иллюстрируют большую часть базовых подходов к компоновке ее пространства]
Левый, вытянутый на северо-запад, корпус отведен для младшей школы – так они получают свое приватное, более спокойное пространство. Средняя школа, предметные кабинеты и мастерские – справа, в том числе в поперечном корпусе; и в «балке» четвертого этажа: стеклянный фронт кабинетов развернут ради лучшего освещения относительно нижнего этажа и смотрит на юго-юго-запад, а коридор, соединяющий классы – это стеклянная галерея, очень светлая, хотя и смотрит на северо-восток.
В сторону главного общественного пространства «Садовых кварталов» – на пруд – выходят два объема, установленных поперечно этому лучу. В сущности, это большие корпуса-«носы» с открытым амфитеатром между ними. Так у главного фасада школы возникает три акцента, контрастно взаимодействующих между собой – этакая троица: большой стеклянный объем, ртутно-стеклянный, цельный и немного асимметричный для раскрытия центра, – слева; тоже стеклянный, но более компактный, тонкий и расчерченный линиями ламелей учебный корпус справа; и открытый амфитеатр, продолженный растущим вверх зеленым холмом – между ними. Как «протуберанец» зеленых склонов центральной общественной части, что лучше всего заметно, если смотреть с противоположной стороны пруда.
Школа в «Садовых Кварталах»
Фотография: предоставлена UNK
Асимметрия и пустота по центру – актуальный модернистский подход, он позволяет, с одной стороны, «разгрузить» главный фасад, через контраст и паузу убрать массив, попутно увеличив световой фронт двух поперечных корпусов; с другой стороны, такой фасад заметен, он привлекает внимание: и парадоксальностью паузы вместо портика, знакомого нам по «сталинским» школам, и восхождением зеленого склона.
Да, если говорить о типологии, здесь мы, конечно, имеем дело со школой-«звездой», чье главное достоинство в большом световом фронте и сокращающем пути общем центре. Только она скорректирована условиями участка, «цветок» вырос без северо-восточной части.
Как следствие, сместилось и ядро атриума. В том числе – в стеклянную консоль: именно ее фасады обеспечивают внутреннее пространство естественным светом. Также как и роскошным панорамным видом, сверху, с уровня 2 этажа и со ступенек амфитеатра.
Не менее важно, что «стеклянная консоль» приоткрывает внутренность школы для взгляда снаружи. Вообще-то тут много стекла на фасадах, освещения внутри достаточно и вечером все корпуса светятся изнутри. Но с основном они полуприкрыты ламелями и мы чувствуем только, что внутри есть жизнь.
Школа в «Садовых Кварталах»
Фотография: предоставлена UNK
А главный стеклянный объем – действительно, показывает внутреннее устройство. От открытых коммуникаций на потолке, до амфитеатра, который в данном случае дерзко «парит» в пространстве между третьим и вторым этажами, рифмуясь, если посмотреть в профиль, с открытым амфитеатром снаружи.
Школа в «Садовых Кварталах»
Фотография: предоставлена UNK
В балконе второго этажа перед амфитеатром размещена сцена – тоже нетривиальное решение. Она может быть огорожена шторами, образующими и задник, и занавес, так что когда идет представление или репетиция, снаружи тоже хорошо видно, что внутри что-то происходит.
Из-за большого пролета, белого цвета и отсутствия косоуров амфитеатр выглядит стройным и, действительно, парит, хотя толщина несущей поверхности достаточно большая. Зато на нижней плоскости есть круглые фонари белого света. Они напоминают о библиотеке Аалто, хотя в данном случае свет искусственный.
Круглые фонари, подхватывая тему, распространяются везде: из видно на потолке атриума через стекло – как созвездие, и в виде круглых ламп на газоне склона они тоже есть.
Соседи амфитеатра – лестницы. Входя из-под невысокой консоли через невысокий холл – поражаешься тому, как пространство вырастает куда-то далеко вверх переплетениями лестниц, соединяющих балконы и висячие островки. Здесь хочется вспомнить Хогвартс и задуматься, не меняют ли они по ночам своего положения в пространстве. Поскольку застыли асимметрично, как в игре «замри».
Внизу расположилось несколько островков переговорных, тоже белых, окруженных кориановыми скамейками и растениями зимнего сада.
Всё это – целая система. Сложное, многослойное, «перевязанное» пространство на всю высоту.
Помимо амфитеатра и зон общения в атриуме есть коворкинг и библиотека. Из соседних помещений в атриум выходят овальные окна.
Керамика на фасадах выглядит черной; на самом деле это металлический блеск. Здесь видится некая подмена – вроде бы керамика родственна кирпичу, да, но! Будучи покрыта металлизированной поливой и «собрана» в ламели, она больше похожа на металл. Для поверхностного взгляда, конечно. Идешь мимо – и кажется, что стеклянные корпуса школы забраны энергичными металлическими сетками-решетками. На главном фасаде они круглятся, на тыльных, боковых – создают углы, структуру, довольно-таки брутальную. Словом, если смотреть поверхностно, ламели кажутся металлическими.
При входе, под главной консолью – не так.
Консоль расположена невысоко, но глубокий корызек хорошо защищает от дождя. Он слегка, как будто с усилием, приподнят вверх; кстати говоря об усилии – это, вероятно, правда, все же консоль с большим выносом. Вход похож на пещеру и особенно выразительны компактные круглые колонны, поддерживающие консоль у самого входа в школу. Они, тоже серебристые, выполнены из той же керамики, что и консоль, и создают над и перед входом целостное поблескивающее пространство, пластичное, впечатляющее.
Что-то в них есть от колонн символизма и модерна начала XX века: именно такие, короткие и «загадочные» колонны были в тот момент широко распространены. У них, в отличие от тонких изящных колонн авангарда и модернизма, чьих «родственников» мы можем наблюдать внутри в атриуме – есть свое, брутальное обаяние. Они как сказочные «стражи» при входе. Тут и вспоминаешь, что архитекторы UNK, работая над проектом школы «Новый взгляд», присмотрели для своего офиса «особняк Шервуда» периода позднего модерна, авторства Николая Бутусова, 1911 года постройки, и отреставрировали его. Не знаю, как кому, а мне кажется, что сходство стеклянной консоли с поливной керамической «подпушкой», похожей майолику модерна, есть.
Итак, школа реализована и на данный работает если не в полную силу – максимальное количество учеников еще не набрано – то очень интенсивно, до 20:00, со всеми кружками, дополнительными занятиями и прочим.
Если первоначально предполагалось, что это будет школа при МГИМО, то теперь в новопостроенном здании расположилась частная школа «Новый взгляд», самостоятельное учебное заведение (учредитель школы – ГК «Регион»). Хотя, как мне, школа уже сейчас сотрудничает с несколькими вузами, в том числе МГИМО.
Зданием довольны; а Юлий Борисов, в свою очередь, позитивно оценил дизайн интерьера, выполненный по проекту Елены Араловой, ED архитектура. В интерьере преобладает белый цвет и свет, оттененный, особенно на потолках, актуальным ярко-розовым цветом magenta.
Каким же образом этот «новый штрих» вписался в комплекс «Садовых кварталов»? На этот счет есть не одна точка зрения. Одни говорят, что да: дизайн-код соблюден через гнутое стекло и керамику, вид на пруд раскрыт, да и в поверхности пруда здание хорошо отражается, работает этаким «светлячком».
Другие говорят: нет, тут нужен был простой объем с консолью, приподнятой выше.
А я бы сказала так. Да, вписался – но по контрасту.
Как «юный герой», представитель нового поколения – в проект, который начался давно и развивался по правилам. Хотя и не весь по одним правилам: вспомним хотя бы дом в западной части 4 квартала от Андрея Савина и бюро «Арт-Бля». Если приглядеться к нему и еще чуточку подумать, то мы увидим, что асимметричный стеклянный объем-консоль школы переглядывается – а может быть, даже этак хитро перемигивается, – именно с ним. По диагонали. Светло-бирюзовым оттенком, да и формой «носа», слегка развернутого вбок. Конечно, стеклянный фасад школы строже и собраннее. Но и диагональ – прослеживается.
Ну так вот. Вторая особенность – холмистость, террасы и зелень. Везде в «Садовых кварталах» зелени запланировано было много, да и реализовано достаточно, особенно на первых порах. И холмов во дворах, разноуровневых террас – тоже. Но здесь, в здании школы Юлия Борисова, и зелени, и террас было задумано очень много, больше, чем вокруг. Тоже – попытка соревнования: внутри очень современного, дорого спроектированного и реализованного комплекса, – сделать все еще современнее, техничнее и «зеленее».
Эксплуатируемые кровли еще планируется реализовать, холм мы видели. А вот зеленые фасады в данном случае, увы, отменили. Хотя тот же автор, Юлий Борисов в БЦ «Земельный» отлично показал нам, что идея вполне реализуема, там растения развиваются и даже меняют осенью свой цвет... К слову сказать, на мой взгляд, между этими двумя проектами UNK вообще много общего, взять хотя бы, помимо зелени и скругленных углов, металлический блеск в сочетании со стеклом. Руководство школы меня поправило: школа это школа, ее некорректно сравнивать с офисным зданием. Но я же сравниваю не функцию, а образ и архитектурный прием. К тому же это мое авторское оценочное суждение; имеет право на существование. Между зданиями достаточно много общего – высокое качество, лаконизм, блеск... Только там металл, а здесь керамика.
Теперь о керамике. На ней построен еще один контраст – горизонталь против вертикали. Сергей Скуратов заложил в центре, вокруг пруда, ритм с вертикальной доминантой этажей, объединенных раскладкой фасада. Затем – не исключено, что в числе прочего и под влиянием «Садовых кварталов» – тема разошлась по всей Москве, по стране, набила оскомину и всё такое... Будем надеяться, не из-за Хамовников. Пятый жилой квартал решен в том же ритме, и его путают с домами Скуратова, по словам автора и к его досаде.
Школу Юлия Борисова с домами Сергея Скуратова перепутать невозможно. Кто-то скажет, что это минус, а кто-то может, скажет, что плюс.
Притом что она, как было сказано выше, следует ряду пожеланий дизайн-кода – в их реализации считывается элемент сепарации от него; некоей, не лишенной дерзости, независимости под девизом, ну, предположим, таким: «хочу и буду!».
В «Садовых кварталах» много стекла, но нет больших стеклянных пятен и объемов? Нет, так будет! – и появляется крупная «консоль-скульптура». Как некий «пузырь», надутый школой в сторону респектабельного городского квартала. Правда, респектабельный, отрехтованный, застывший и красивый, из дорогого стекла. Не такой, как у Олсопа, и все же, если задуматься, некий нюанс есть.
В «Садовых кварталах» почти нет горизонталей – так вот, держите – всё, кроме стеклянного объема, в здании школы будет горизонтальным.
И, должна сказать, горизонтальные объемы с ламелями нравятся мне в этом здании больше всего. Они не скрывают своей дерзости. Хотя немного скрывают, конечно, но это со стороны главного фасада. А с тыльной – нет. При подходе от улицы Усачева мы видим черные полосатые, выстреливающие и перекрещенные, «балки» третьего и четвертого этажей. И правильно, там учат подростков, им требуется полет и дерзновение. Вот он, по-моему, лучший, хотя и не респектабельно-главный, ракурс этого проекта.


