Судя по разнообразию представленных в финале WAF Interiors: Bars and Restaurants интерьеров, ни о каких доминирующих тенденциях в интерьерах мест питания и выпивания и речи быть не может. Каждый владелец отталкивается от своей интуиции, разрабатывая концепцию будущего пространства, выбирая под него шеф-повара, сомелье и архитектора/дизайнера. И здесь уж как повезет: ресторанно-барный мир столь же жесток, как какие-нибудь амазонские джунгли. Если место не «выстрелит», если люди в него не пойдут, если соотношение качество/цена/атмосфера не совпадет или не превысит ожидания целевой аудитории – что ж, ничего не поделаешь, придется закрываться и уступать место следующему претенденту на титул «ресторанного короля».
Это мимолетность и шаткость ресторанного бизнеса заставляет относиться к интерьерам почти всех заведений почти как к театральным декорациям: сегодня они здесь и сверкают тысячью огней, отражающихся в начищенном серебре сервизов или чистейшем хрустале бокалов. А завтра на окне уже висит табличка «Сдается», и уже какие-то другие рабочие поднимают новую люстру к потолку.
Помимо временности, у интерьеров ресторанов есть и еще одна общая черта с театральным миром – нарочитая демонстративность и подчеркнутая индивидуальность. Если ты собираешься покорять ресторанный Олимп, выбор нейтрального, индифферентного дизайна – слишком высокая ставка. Второй раз концепция в стилистике «Birch» может и не взлететь. Поэтому из всех открывающихся ресторанов и баров примерно две трети – это что-то навороченное, и только одна треть – это минималистичные проекты от рисковых идеалистов, поэтов от гастрономии и дизайна.
Приятно, что в финале WAF Interiors: Bars and Restaurants есть и те, и те. А раз так, значит, в мировом дизайне продолжается конкуренция между сдержанностью и пышностью, экзотичностью и элегантностью, вычурностью и лаконизмом. И пусть в этой борьбе не будет победителя, ведь это значит, что и дальше каждый из нас, какими бы ни были наши кулинарные или интерьерные предпочтения, сможет найти свой очередной любимый ресторан или бар.
Ну а кому жюри номинации WAF Interiors: Bars and Restaurants присудило победу в этом году, вы узнаете в конце материала.
***********************************************
Apsara Cruise
Проект: Studio Locomotive (Таиланд)
Заказчик: Banyan Tree Bangkok
Окончание строительства: 2024
Юго-восточная Азия вообще, и Таиланд в частности, – это бурно развивающаяся экономика и множество популярных курортов, а значит – очень много людей, сконцентрированных на достаточно ограниченной по площади территории, пригодной для обитания, зажатой между океаном и покрытыми джунглями горами. Любая недвижимость стоит дорого, так как земли под застройку просто нет. В этой ситуации наиболее предприимчивые и изобретательные ищут возможности в неожиданных местах и форматах. Так одна из компаний решила переформатировать старинную «рисовую лодку» – баржу, перевозившую раньше рис по реке Чао Прайя, и сделать из нее плавучий ресторан, курсирующий вдоль берегов, на которых возвышаются исторические памятники, такие как Храм Рассвета, Большой дворец и форт Пхра Сумен, хранящие трехвековую историю водной цивилизации Сиама.
В расчете на основную целевую аудиторию в виде туристов оформление плавучего ресторана построено на деликатном использовании национальных тайских мотивов и орнаментов, а также декоративных элементов, повторяющих аутентичные образцы народных ремесел. Но в основном интерьер решен достаточно сдержанно, чтобы не отвлекать гостей от главного аттракциона – открывающихся за большими витражными окнами видов на исторические достопримечательности днем и декоративной подсветки в вечернее время.
Bergen Camping
Проект: LOCAL (Норвегия)
Заказчик: Bergen Camping
Окончание строительства: 2024
Замечательный пример конверсии бывшего офисного здания в многофункциональный центр с гастро-зоной, концертной площадкой и подвалом, переоборудованным для игры в мини гольф. В самом центре города Бергена (Норвегия) оно было спроектировано и построено в 1920 году и за более чем столетнюю историю поменяло множество функций и владельцев. Но новые социальные запросы и тенденции в урбанистике привели к радикальной смене формата – бетонное здание превратилось в культурный центр, ядром которого стал просторный ресторанный зал, оформленный в демократичном ключе. Авторы интерьера не стали прятать оригинальные конструкции и напластования отделочных материалов, сохранив их там, где это было возможно по требованиям безопасности и санитарии; в результате драматичная история здания буквально смотрит на посетителей центра со стен.
Аналогичный подход применен в цокольном этаже, где устроено поле для игры в мини гольф. Реальные бетонные конструкции – колонны, подиумы и пандусы – были превращены в элементы гольф-трассы.
Внутренний двор накрыт стеклянной крышей и превращен в многофункциональный зал со сценой и свободной рассадкой, что позволяет использовать его и для концертов, и для собраний местного комьюнити.
Blarney Irish Pub & Cafe
Проект: KTX archiLAB (Япония)
Заказчик: The Blarney Stone
Окончание строительства: 2024
Удивительно, но факт: пивная культура очень популярна в Японии, и кроме того, что в стране восходящего солнца научились варить отличное пиво, здесь также часто можно встретить более-менее традиционный паб в английском или ирландском стиле, как в Москве суши-бар. Примером может служить Blarney Irish Pub & Cafe в городе Осака, который днем работает как кафе, а вечером превращается в полноценный ирландский паб с соответствующей атмосферой и аудиторией. Эта бинарность заставила авторов интерьера отойти от канонической планировки и меблировки заведения в пользу более гибкого подхода, который может быть легко адаптирован и к едальному, и к питейному формату работы. Кроме того, система освещения в заведении спроектирована таким образом, чтобы легко можно было переключаться между более светлым дневным режимом и более приглушенным и точечным вечерним освещением зала.
Кроме планировки, авторы интерьера позволили себе отойти от канона еще и в выборе отделки. Вместо традиционного дерева, используемого для отделки стен, в японском ирландском пабе стены закрывают панели из картена, чья характерная ржавая поверхность хоть и напоминает по цвету дуб, но создает совсем другой, более брутальный и технократичный антураж, который несколько сглаживается традиционными кельтскими орнаментами и картинами с видами достопримечательностей Ирландии, украшающими стены по всему периметру зала.
Lavo
Проект: Sordo Madaleno (Мексика)
Заказчик: Grupo Dinar
Окончание строительства: 2024
Когда ваши гастрономические пристрастия слишком обширны и вы в равной мере отдаете должное кухне Старого и Нового Света, вам нужно искать что-то похожее на ресторан Lavo в центре города Мехико. Владельцы заведения решили не выбирать между итальянской и мексиканской кухней и дали возможность посетителям выбирать не только соответствующие позиции в меню, но и интерьер зала, в котором их дегустировать. В каких-то залах сильнее чувствуется атмосфера старой доброй Европы и Средиземноморья, в каких-то явно проступает пряный карибский дух. Кроме стилизаций, залы варьируются по степени приватности и размерам, так что любая компания найдет здесь место для своей вечеринки.
Внимание к общей атмосфере и мелким деталям чувствуется здесь во всем, но в первую очередь в обилии декоративных элементов, сделанных вручную местными мастерами: расписанная керамическая плитка, оригинальная мебель, многочисленные росписи на стенах – все это превращает посещение ресторана Lavo в увлекательное путешествие.
Отдельный элемент интерьера – значительное число живых растений, разного размера и степени декоративности, превращающих некоторые залы в подобие зимних садов. Но это сравнение некорректно, ведь в Мексике всегда тепло и типология «зимних садов» не востребована. Правильнее назвать такие залы «внутренние джунгли», среди которых так приятно отдохнуть с бокалом итальянского вина.
MOSH Bar & Dinner
Проект: INNOCAD architecture (Австрия)
Заказчик: MOSH Bar & Dinner
Окончание строительства: 2023
Бар для любителей фильмов Джона Карпентера, в котором за создание атмосферы отвечает драматически выстроенный световой сценарий, создающий в интерьере бара в центре столицы Румынии – Бухаресте – что-то наподобие декораций для съёмок очередного постапокалиптического боевика с перфорированными потолочными панелями, сквозь которые пробиваются лучи света.
Интересно, что столь напряжённый и тревожный приём оказывается основан на научно обоснованной системе освещения, разработанной командой учёных. Согласно их исследованиям, световая система, основанная на фрактальных паттернах, способствует улучшению самочувствия и снижает стресс. У системы есть три сценария: ярко освещённая обеденная зона, приглушённая барная атмосфера и оживлённая атмосфера вечеринки с подвижным фрактальным светильником, управляемым системой KNX. Сложно сказать, насколько эффективен в плане успокоения стандартный режим, но участие в проекте учёных только добавляет всей истории саспенса.
Но авторы интерьера решили не ограничивать себя одним жанром, добавив в интерьер театральности и готичности, подходящих для ужастика с вампирским сюжетом. За эту тему отвечают многочисленные полупрозрачные занавеси, некоторые из которых объединены в одно полотнище, которое можно сдвигать и раздвигать, выделяя или объединяя пространство в зависимости от поставленных задач.
Совершенно неожиданным в царящей в залах темноте является присутствие растений в огромных контейнерах, чьи стебли и ветки «расползаются» по потолку, пугая сходством с пост-урбанистическими локациями из игры «Один из нас». На самом деле под потолком лаунжа установлена работа известного австрийского скульптора «Manic Youth», изготовленная из корневища столетнего дуба. По замыслу авторов интерьера, она должна добавлять пространству естественность и уют, но, судя по фотографиям, полностью добиться цели не получилось.
Nobu Mexico City
Проект: Cuaik | CDS (Мексика)
Заказчик: Grupo Hunan
Окончание строительства: 2024
Ещё один проект реконструкции, но в отличие от норвежского, здесь речь идёт о достаточно компактном пространстве террасы популярного в Мехико ресторана Nobu, входящего в международную сеть японских ресторанов, созданную шеф-поваром Нобу Мацухиса.
Как это часто бывает с высококлассными ресторанами японской кухни, в интерьере нет прямых цитат из японской традиционной архитектуры и китчевых аксессуаров. Дизайн строится на очень деликатном использовании аутентичных мотивов, переложенных на современный язык, который можно было бы назвать минималистичным из-за его сдержанности, но при более тщательном рассмотрении можно увидеть, насколько он сложно сочинён и многослоен.
Главную роль выполняют деревянные конструкции, явно отсылающие к образу фусума – перегородки или двери в традиционном японском доме. Их ортогональная решётчатая структура используется при создании большей части элементов интерьера террасы. Варьируя частоту и пропорции решётки, авторам удаётся создать гармоничный интерьер – единый, но не однообразный.
Кроме уважения к японской культуре, в новом интерьере ощущается уважение к традициям самого ресторана, успешно работающего в этом месте на протяжении многих лет. Новая терраса должна была продемонстрировать преемственность и следующий этап развития бренда.
Plaza Mahou
Проект: External Reference Architects (Испания)
Заказчик: Mahou – San Miguel
Окончание строительства: 2024
Этот бар можно рассматривать как интерьерный аналог плаката «Жизнь удалась!». Мало того что он сам по себе выглядит словно огромный слиток золота, переливающийся всеми оттенками цвета роскоши, особенно эффектно выглядящими с красными вставками, росписями и красноватой подсветкой. А если добавить в общую копилку впечатлений рельефные панели на потолке, затейливую мебель с обивкой из позолоченной кожи и позолоченными же завитушками, начинает казаться, что авторы интерьера решили дать бой всем комплексам, которые принесут сюда будущие посетители.
5 минут в этом баре, и любой человек поверит в то, что он избранный. Тем более что место действительно уникальное. Впервые в Испании, на легендарном стадионе «Сантьяго Бернабеу», домашнем стадионе великого мадридского «Реала», был открыт пивной бар, в котором варят пиво. Проект был реализован благодаря сотрудничеству с ведущей испанской пивоваренной компанией Mahou San Miguel.
Чтобы как можно большее количество людей смогли почувствовать себя «королями мира», в комплекс Plaza Mahou входит не только бар, пивоварня и ресторан (общая площадь 700 кв. м), но и просторная крытая терраса площадью 450 кв. м. В день комплекс может принять более тысячи посетителей.
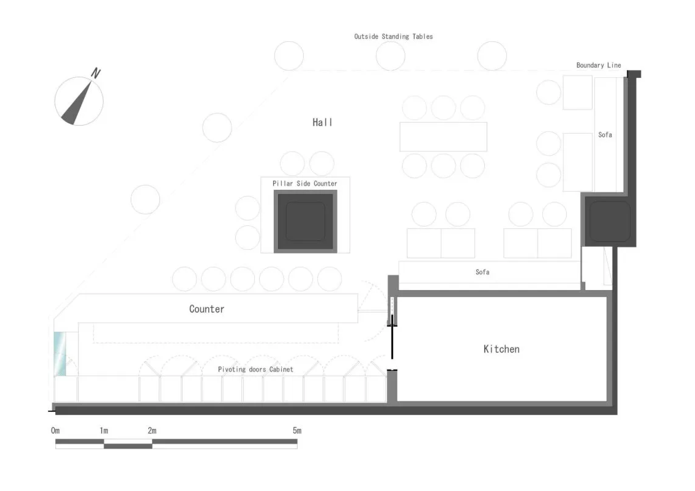
Roast and Toast
Проект: tHE gRID Architects (Индия)
Заказчик: Mr. Abhishek
Окончание строительства: 2025
Экология, ресурсо- и энергосбережение – это основа новой глобальной этики, декларирующей необходимость ответственного подхода к использованию природных ресурсов и снижению вреда, причиняемого человечеством планете. И то, что вчера казалось безнадёжными меч тами, сегодня реально меняет строительную индустрию по всему миру. И каждый новый пример использования «зелёных технологий» – это ещё один шаг к смене цивилизационной парадигмы, даже если речь идёт о небольшом кафе в городе Ахмадабад в Индии, созданном руками местных мастеров с максимальным использованием природных и переработанных материалов, включая глину, дерево, коровий навоз и местные растения.
Roast and Toast – это небольшая пекарня-кафе, в планировке и дизайне которой авторы постарались не только заложить экологичные инженерные решения, снижающие теплопотери и обеспечивающие естественную вентиляцию, что крайне важно в жарком климате Ахмадабада, но и продемонстрировать эстетические и декоративные возможности применения местных строительных и отделочных материалов.
В интерьере используются переработанная древесина и местное сено, стены кафе покрыты штукатуркой, сделанной на основе смеси коровьего навоза и глины. Благодаря добавленным в смесь органическим красителям, полученным из местных растений, штукатурка имеет золотистый цвет, а за счёт сена она обладает структурной прочностью и устойчивостью к трещинам.
Интерьер украшают металлические панели и старинная керамика, посуда ручной работы местного художника, льняные лампы и светильники из банановой бумаги.
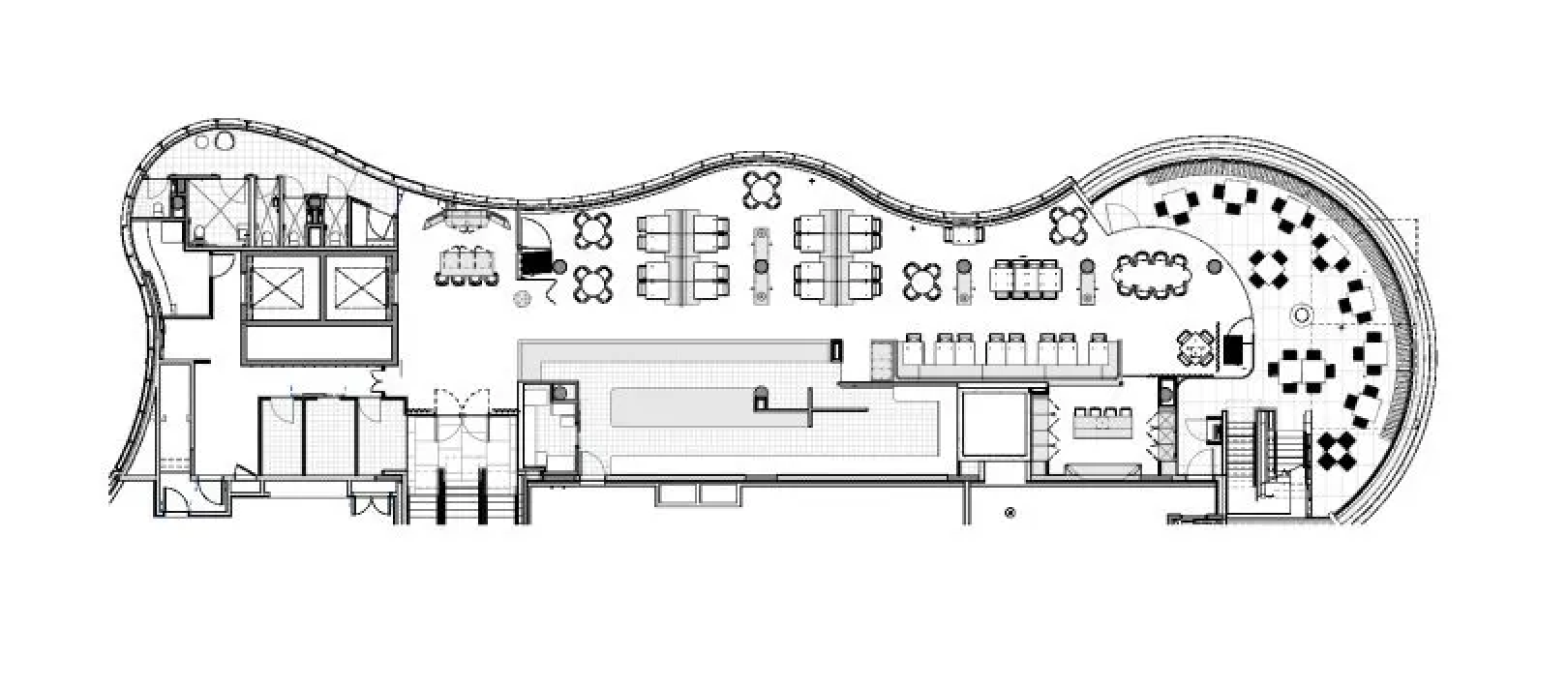
Saluhall
Проект: Stiff+Trevillion (Великобритания)
Заказчик: KERB / INGKA
Окончание строительства: 2024
Калифорния – это отдельный мир, жители которого относятся к своему здоровью с особым трепетом и практикуют все виды оздоровительных методик. Неудивительно, что Калифорния соревнуется с Нью-Йорком за статус региона с самым большим процентом вегетарианцев. И именно поэтому в Калифорнии ресторанный проект, рассчитанный исключительно на вегетарианцев, не только способен выжить, но и стать коммерчески успешным.
Примером может служить проект Saluhall, ориентированный на растительное питание и реализованный в Сан-Франциско. Saluhall – это шведский бренд, под которым продвигается целая кулинарная концепция, объединяющая разнообразные взгляды на растительное и более экологичное питание. Концепция Saluhall ориентирована на формирование вокруг комплекса сообщества и использование места не только как фуд-корта, но и как ивент-площадки и места встреч единомышленников.
В просторном двухэтажном комплексе площадью 2500 кв. м оборудован гастромаркет с кафе и барами, в которых подаются блюда, изготовленные из местных продуктов и поставляемые местными производителями. Лишь 20% ассортимента является невегетарианским. Здесь представлены пять ресторанов, собственная пекарня, бургерная, закусочная с мягкими закусками, три бара, а также кулинарная школа, ориентированная на местное сообщество, которая вдохновляет будущих великих любителей выпечки.
Stacked Courtyard
Проект: AAN ARCHITECTS (Китай)
Заказчик: HEYTEA
Окончание строительства: 2024
Кафе Stacked Courtyard, расположенное в историческом центре китайского города Чэнду, – это отличный повод поговорить о контексте и рефлексиях на его стороне современных архитекторов. Ещё не так давно в российской архитектуре восприятие контекста сводилось к необходимости адаптировать архитектурный язык для создания некого парафраза окружающей застройки, чтобы новое здание «органично» вписалось в окружение. Так появилось понятие «контекстуальная архитектура», объединявшее собой самые разные примеры нередко плохо нарисованной постмодернистической архитектуры. Понадобились не одно десятилетие, не одно честное современное здание, уважительно вписанное в историческую среду, чтобы этот подход утратил свою обязательность.
И вот, имея за плечами такой опыт, трудно удержаться от восхищения смелостью и талантом китайских архитекторов, встроивших в компактный участок, расположенный рядом с оживлённым рынком, напротив древнего храма Да Шэн Цы, где находится старейшая чайная в Чэнду, где более тысячи лет назад передавался дзенский чай, прозрачный стеклянный куб маленького кафе, внутри которого нависают друг над другом несколько уровней, соединённых лестницами, похожими на арт-объекты. Абсолютную белизну интерьера нарушают только простые по форме, но очень стильные предметы мебели: столы, похожие на лавки, и лавки, похожие на столы. Их сходство не случайно – если присмотреться, видно, что благодаря разным уровням столы превращаются в лавки и наоборот. А плиты ступеней выдвигаются из ряда и превращаются в потолок, нависающий над барной стойкой.
И самое удивительно, что авторы искренне и всерьез убеждены, что их интерьер – это дань уважения и продолжение древних традиций чайных домов Чэнду. Наверное, этого уровень понимания контекста и преемственности нужно культивировать не одну тысячу лет.
Sugarloaf
Проект: Hierarchy Group (Новая Зеландия)
Заказчик: Flock Hill Holdings
Окончание строительства: 2024
Где-то далеко, на другом конце земного шара, есть страна Новая Зеландия, где очень много… нет, не обезьян, а овец, привольно пасущихся на пастбищах, зажатых между потрясающими горами и другими выдающимися пейзажами, прославленными Питером Джексоном во «Властелине колец». После выхода этой трилогии, а потом трилогии «Хоббит», Новая Зеландия превратилась в туристическую мекку, чем не могли не воспользоваться предприимчивые овцеводы, которые начали развивать инфраструктуру, в том числе в виде ресторанов с традиционной кухней и самыми лучшими продуктами, лучшими потому, что самыми свежими. В результате появилась новая типология ресторанов, в которых деревенский стиль сочетается с элегантностью и роскошью. В качестве аналогии, наверное, тут лучше всего подойдет курорт «Пирогово» и постройки, спроектированные для него Тотаном Кузембаевым.
Новозеландские архитекторы, проектируя ресторан Sugarloaf для фермы Flock Hill, сделали ставку на выразительность и масштаб, построив огромный сарай с двускатной крышей, внутри которого свободно, словно острова, расположены различные функциональные блоки. Все пространство просматривается снизу доверху, открывая вид на ряды деревянных стропил, эффектно подсвеченных встроенными светильниками. Периметр «сарая» максимально открыт наружу. Между деревянными колоннами установлены глухие и раскрывающиеся витражи, которые позволяют любоваться пейзажем и наслаждаться свежим воздухом, смешанным с ароматами цветов и овец.
The International
Проект: Woods Bagot (Австралия)
Заказчик: The Point Group
Окончание строительства: 2024
Комплекс из трёх тематических ресторанов, объединённых под одним брендом The International, расположен в центральном районе Сиднея, в здании, построенном в середине XX века по проекту всемирно известного австралийского архитектора Гарри Сайдлера. Этот факт и уважительное отношение к культурному наследию страны объясняет общую стилистику, выбранную для интерьеров комплекса, главным акцентом которых стали открытые кухни, расположенные в центре залов.
В интерьерах чувствуются отголоски модернистской эстетики, дополненной местной версией Luxury с красным бархатом на стульях, облицовкой колонн полированной нержавеющей сталью, мозаичными полами из мрамора трёх цветов и т. п. Внушительный набор, вполне уместный не только в деловом центре Австралии, но и по другую сторону океана, где-нибудь в Лас-Вегасе или Майами. Сами авторы при описании своего интерьера используют слово «гламур», и можно только поблагодарить их за это. Ведь иначе использование этого слова могло прозвучать в негативном ключе. Достаточно сложно понять причины, по которым этот интерьер попал в финал конкурса WAF Interiors, вероятно, для многих экспертов эпоха модернизма и работы Гарри Сайдлера остаются предметом безоговорочного восхищения.
***********************************************
И в конце нашего обзора с удовольствием сообщаем, что жюри номинации WAF Interiors: Bars and Restaurants присудило первое место интерьеру корабля Apsara Cruise, созданного Studio Locomotive (Таиланд).P.S. Но и в этой номинации мнение редакции ARCHI.RU разошлось с мнением жюри. Мы бы выбрали Stacked Courtyard от AAN ARCHITECTS (Китай) за чистоту и контекстуальность или, в крайнем случае, MOSH Bar & Dinner от INNOCAD architecture (Австрия) за кинематографичность и работу со светом.
А вы кого бы выбрали?

