С восточной стороны тоже есть неосвоенные гектары бывших сельскохозяйственных угодий, так называемая «восточная дуга». Она вошла в состав города после утверждения генплана 2007 года, после чего Казань в этой части приобрела структуру «слоеного пирога»: плотная историческая застройка постепенно растворяется в советской, которую сменяет пояс современных кварталов, за ним – «пышная» прослойка ИЖС и, наконец, «восточная дуга», которой суждено стать «корочкой» новейшей архитектуры.
Положение в структуре города
© Институт генплана Москвы, ASG инвест
Сейчас «дуга» – это незастроенные просторы с оврагами, лесами, ручьями и редкими промышленными объектами. Генплан не закрепляет за этой территорией конкретные параметры и объемы застройки. При этом 10 000 га «восточной дуги» оказались сосредоточены в руках одного лица, группы компаний ASG invest. Это дает шанс не повторить путь западной части города и создавать жилую среду, достойную столицы Татарстана, который в последние годы не перестает удивлять архитектурными проектами и событиями.
Потенциал «Восточной дуги»
© Институт генплана Москвы, ASG инвест
Институт генплана Москвы не первый, кто работал с «восточной дугой». Но его ресурсы и опыт позволили учесть наработки предшественников и сформулировать комплексное предложение, основанное на принципах современной урбанистики и подкрепленное аналитическими расчетами.
Максим Викулин, начальник архитектурно-планировочной мастерской
Концепция комплексного освоения «Восточной дуги» является одним из крупнейших региональных проектов Института с точки зрения как масштаба территории, так и детализации проектных решений. Этот проект является частью непрерывного цикла системной и последовательной работы Института с Казанью с 2014 года – от подготовки генерального плана, ПЗЗ и МНГП до разработки документации по планировке территории. Такая практика комплексного взаимодействия с территорией «от общего к частному» позволяет Институту наращивать свои компетенции в регионе и выступать в качестве одного из ключевых градостроительных экспертов, оценивающих и определяющих направления пространственного развития города.
Территория сложившейся застройки в соответствии с генпланом
© Институт генплана Москвы, ASG инвест
Предпосылки развития территории «Восточной дуги»
© Институт генплана Москвы, ASG инвест
Одна из ключевых статей, определяющих развитие будущего микрорайона – транспорт. Основу каркаса сформируют существующие и новые общегородские магистрали. Одна из основных – Мамадышский тракт, который соединяет территорию с центром города и трассой М-7. Поскольку сейчас это магистраль непрерывного движения, Институт генплана Москвы предлагает модернизировать развязки и примыкания, организовать дополнительные остановки общественного транспорта. Вторая – строящийся Вознесенский тракт – новая вылетная магистраль, которая придаст большой импульс развитию всей восточной части города. Третье ключевое решение – это новая хордовая магистраль, которая будет пересекать территорию «дуги» с севера на юг и обеспечивать единую связь между формирующимися жилыми районами и общественными центрами.
Этапы застройки строго соотносятся с развитием улично-дорожной сети: каждую стадию Институт проверял с помощью компьютерного моделирования. Обеспечивать доступность будущего района в перспективе будут также линии метрополитена и трамвая, заложенные в генплане.
Планируемое развитие улично-дорожной сети
© Институт генплана Москвы, ASG инвест
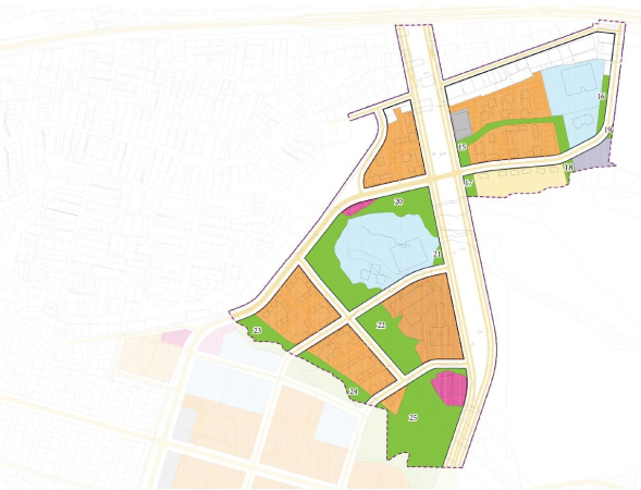
Территория проектирования делится на девять участков разной площади, для которых Институт разработал концепции и впоследствие – проекты планировки территории. Каждый будущий микрорайон самодостаточен, поскольку насыщается социальной инфраструктурой, торговыми и бизнес-центрами, спортивными и культурными объектами, бульварами и парками, а также объектами инженерной и транспортной инфраструктуры. В каждом микрорайоне появится деловое ядро, зоны отдыха и досуга. Плотность застройки при этом будет несколько ниже, чем в «срединном поясе» Казани, сформированном в советский период, или сопоставимой с ними на отдельных узловых территориях, и будет примерно в полтора раза ниже, чем в постсоветских районах.
Этап разработки ППТ
© Институт генплана Москвы, ASG инвест
Территории будут дополнять друг друга и создадут полицентричную систему: в одном районе может располагаться крупный спортивный объект, в другом – культурный. Поскольку в этой части города есть инвестиционный интерес к логистическим объектам и филиалам производств, планируется строительство нескольких индустриальных парков. Кроме того, по другую сторону трассы М-7, которая служит границей «дуги» и города, уже действуют Кощаковский кирпичный завод, иные производственные объекты и логистические центры. Таким образом, жилью будут сопутствовать рабочие места, что снизит трудовую миграцию в центр города и нагрузки на дороги.
Виталий Лутц, начальник управления перспективных проектов
Одна из ключевых идей нашей концепции – создание «ожерелья» мини-городов, которые обладают не только функциональной насыщенностью и специализацией, но и пространственно-средовой полноценностью. В каждом мини-городе есть свое главное место и достаточное разнообразие публичных пространств: площади, скверы, бульвары, торговые улицы. Этот подход близок к тому, который мы пытались реализовать в поселении Вороновское.
Концепция «Восточной дуги»
© Институт генплана Москвы, ASG инвест
Еще одно отличие «Восточной дуги» – большой процент озеленения. Существующие леса и отдельные участки ценных природных ландшафтов планируют сохранять и превращать в парки и скверы. В этом будет отличие новых районов от остальной Казани, которую нельзя назвать очень зеленой. В «восточной дуге» есть все предпосылки для создания единого зеленого каркаса с разнообразными рекреационными зонами, ландшафтами и экологическими маршрутами. Есть и сложности – например, рядом с будущим микрорайоном «Южный парк» сейчас располагается свалка твердых бытовых отходов. Но в перспективе эта проблема видится решаемой, поскольку город и республика понимают необходимость переноса данного объекта и рекультивации действующего полигона и постепенно прорабатывают различные варианты соответствующих решений для нормализации экологической ситуации в восточном секторе города как одном из ключевых для перспективного развития. Учитывая, что в прошлом году Татарстан был признан самым экологичным регионом России в соответствии с индексом «устойчивого развития», в позитивный исход можно поверить.
За всестороннюю аналитику и комплексный подход «Восточная дуга» была признана лучшей градостроительной концепцией на форуме «Казаныш-2022». Планируется, что реализация проекта начнется в 2023 и займет около 30-40 лет. В первую очередь будут освоены территории, прилегающие к Мамадышскому и Вознеенскому тракту – «Тихая гавань» и «Самосырово». Освоение территорий «Восточной дуги» позволит вводить от 150-300 000 м2 жилья ежегодно.
