Здание площадью 55 200 м2 предназначено для «надежного и практически бессрочного» хранения бумажных документов числом «не менее 12 млн единиц». Но к тому же оно рассчитано на цифровой архив «свыше 80 пентабайт электронных материалов». Иными словами, это был ответственный проект со сложной технологичной «начинкой».
Архитектурным проектированием – полностью, «до гвоздя», что оказалось достаточно трудоемкой задачей – занимались архитекторы ТПО «Резерв».
Государственный архив Российской Федерации. Обнинск
Фотография © ТПО «Резерв»
По словам архитекторов, здание скорее технического назначения. Но оно получилось еще и красивым. Эффектным.
Что особенно хорошо ощущается в существующем окружении. Филиал ГАРФа построен на участке со статусом технопарка, на северной окраине Обнинска. Тут тихо и пусто. С одной стороны лес, в котором прячется кампус МИФИ 1980-х, с другой поле, застроенное гаражными кооперативами, гектаров на 25 в общей сложности. Впрочем, скоро все изменится, МИФИ ждет реконструкция, и весь район, вероятно, тоже.
Новое здание выглядит свежим и ярким, «с иголочки».
Государственный архив Российской Федерации. Обнинск
Фотография © Юлия Тарабарина, Архи.ру
Даже не очень напоминает архив; обычно они какие-то... более запыленные.
Заметным и ярким здание делает основная фасадная тема – черно-белые полоски. Рисунок крупный, работает в полную силу и виден издали. Метафора склада архивных папок достаточно очевидна: белый цвет преобладает; внизу полосы гуще и равномернее по всей длине, как будто бумаги спрессовались, вверху формируются вертикальные группы-«стопки».
Впрочем, буквализма почти нет; «стопки бумаг» разрежаются то кверху, то книзу. Плавного градиента тоже нет, есть элемент случайности. Рисунок не фигуративен, в нем можно увидеть метафору, а можно – абстрактную суперграфику. Он и работает как суперграфика – через контраст и ритм.
«Поскольку здание архивохранилища, в силу специфики своего назначения, «глухое», без окон, а сделать его массив однородным и инертным, на наш взгляд, было совершенно недопустимо – мы долго работали над паттерном фасада. Было предложено очень много вариантов, самых разных; можно сказать, что мы провели что-то вроде внутреннего конкурса на этот мотив. Выбрали самый метафоричный, легко отождествляемый с назначением здания. Его нарисовала Екатерина Шорникова.
Должен сказать, работа над комплексом ГАРФ оказалась очень трудоемкой. В работу по проектированию были вложены огромные усилия Александром Пономаревым, Романом Князевым и всей командой».
Должен сказать, работа над комплексом ГАРФ оказалась очень трудоемкой. В работу по проектированию были вложены огромные усилия Александром Пономаревым, Романом Князевым и всей командой».
Полосатые поверхности соседствуют со стеклянными и черными. Такое соседство, как и суперграфика, работает как на структурирование массивного объема хранилища, так и на его развеществление. Корпус достаточно крупный, но его фасады, по-первых, совершенно сбивают масштаб, поскольку не дают сосчитать этажи; во-вторых, контраст подталкивает к тому, чтобы видеть сначала сумму плоскостей, а потом уже объем.
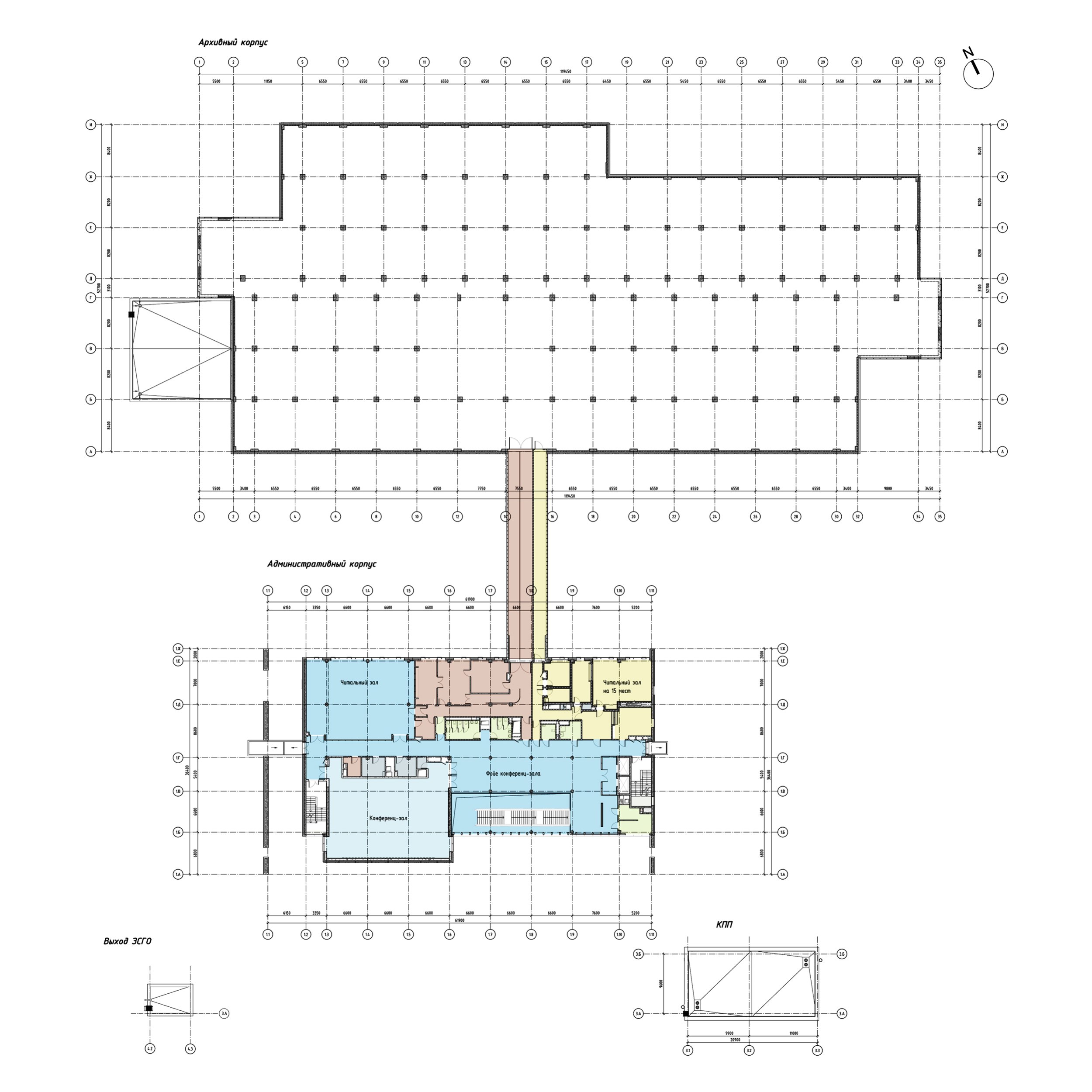
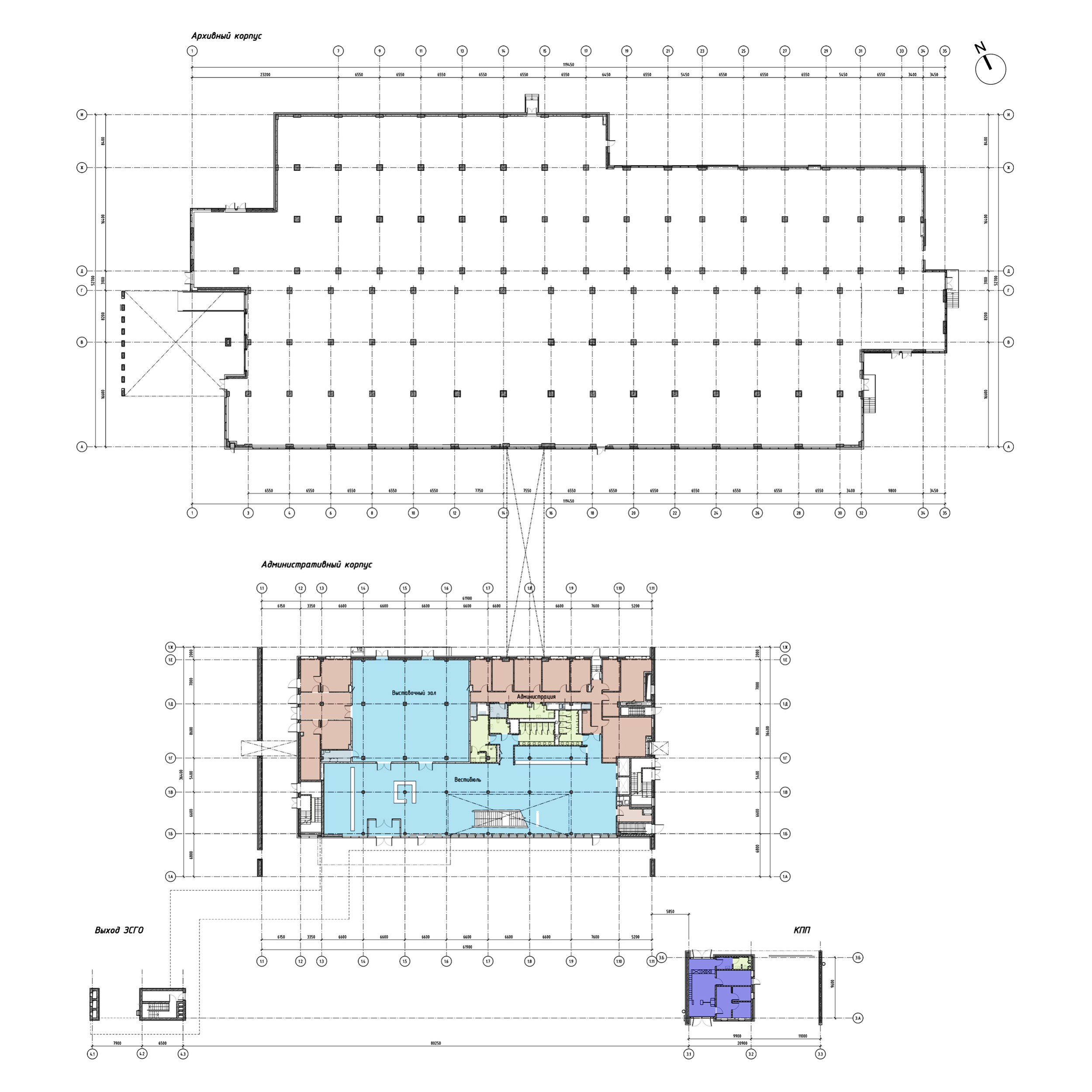
Здание ГАРФ состоит из двух частей, расположенных на прямоугольном участке с благоустройством в юго-восточной части.
Ситуационный план. ГАРФ. Обнинск
© ТПО «Резерв»
Дальний и более крупный корпус – собственно архивохранилище, 10-этажное. Закрытое для всех, кроме сотрудников. «Ящик». Архитектурно он играет роль фона.
Вперед на достаточно большое, около 35 м, расстояние вынесен 3-этажный административный корпус. В нем собраны атриум-вестибюль, выставочный и конференц-залы, кабинеты и переговорная, и также два читальных зала, большой и малый.
На уровне второго этажа корпуса соединены переходом – как будто хранилище на стальном «щупе манипулятора» протягивает людям некое небольшое, но комфортное пространство для работы и общения.
Как уже было сказано, здание хорошо оснащено в техническом плане. По переходу из хранилища к кафедре приема-выдачи документов ездят роботы-доставщики, для них выделена полоса с разметкой QR-кодами.
Полосатый рисунок «бумажных стопок» – самое заметное, но далеко не единственное интересное архитектурное решение из тех, что можно разглядеть здесь. Для начала – соотношение плоскостей и объемов выстроено по принципу «сдержек и противовесов». Назовем его так:
Баланс асимметричных пар
Центральная и главная ось ориентирована поперечно Университетской улице и совпадает с навесным переходом. На главном фасаде хранилища она прорисована самой тонкой и темной вертикалью; вертикаль делит его пополам.Ну, почти пополам; правая часть чуть больше, а ось симметрии проходит чуть правее темной вертикальной полосы, по правой, юго-восточной внешней стене перехода. Весь переход, а он состоит их трех дорожек, одна для роботов, две для людей – таким образом, не нанизан на ось центрального ризалита, но примыкает к ней.
Дальше от перехода асимметрия только развивается. Административный, он же общественный, малый корпус сдвинут существенно влево; главный вход в нем – расположен еще левее. Совершенно не по центру: а-классичное решение.
Так что, попадая на территорию через КПП, мы сразу поворачиваем, входя внутрь тоже поворачиваем, и, поднявшись по лестнице, поворачиваем еще раз – путь рассчитан отнюдь не по прямой. Впрочем, добравшись до Обнинска, не грех немного и пройтись...
В двух прямоугольных выступах, прорезающих плоскость витража общественного корпуса, который служит главным фасадом всего комплекса – несложно увидеть метафору разновеликих корпусов. Один больше и покрыт горизонтальной суперграфикой, другой меньше и украшен стеклянными вертикалями. Только «в объеме» малый корпус сдвинут влево и на фасаде тот выступ, что поменьше – справа. Рокировка для поддержания равновесия.
Фасад. Государственный архив Российской Федерации. Обнинск
© ТПО «Резерв»
Начатая геометрическая «игра» продолжена в пустотелых элементах холодного контура – прямоугольных проездных «арках» слева от каждого корпуса. Как видно на чертеже фасада, по параметрам они приблизительно одинаковы. У малого корпуса «арка» поставлена вертикально, а у большого – горизонтально.
Изнутри – наружу
Вернемся к плану. У каждого из двух корпусов есть собственная продольная ось, перпендикулярная главной и параллельная Университетской улице. План хранилища построен на поворотной симметрии: в нем несложно увидеть два прямоугольника с выступом на торце, развернутых в плоскости на 180°; снаружи они проявлены стеклянными блоками лестниц, одна дальше, другая ближе.Продольная ось малого корпуса совпадает с коридором. Его торцы – витражные, вписаны в стеклянные вертикали фасадов. Снаружи, с обеих сторон, коридор продолжают два открытых балкона, черных и довольно брутальных, хотя и небольших. Один проходит арку-«ногу» насквозь. Так продольная, внутренняя, ось коридора проявлена вовне.
Два разномасштабных объема, проходящих сквозь стеклянную плоскость фасада, также появились не только для красоты и баланса асимметрии. Выступ покрупнее, образующий 4-метровую консоль над входом, принадлежит объему конференц-зала. Полосатый рисунок-«вывеска» – решен в объеме и подсвечивается. Если смотреть сбоку, в нем можно увидеть продолжение упомянутого выше «манипулятора» – представителя полосатого хранилища на фасаде общественного корпуса.
Этакий выдвинутый вперед каталожный ящик. Тоже хорошая метафора для архивной тематики.
Стеклянные ламели второго выступа – наоборот, входят в резонанс с вертикальными колоннами за стеклом. Они отмечают расположение директорского кабинета. Подчеркивают, таким образом, административную роль корпуса.
Прорези
Одна из «фирменных» особенностей архитектуры ТПО «Резерв» – присутствие «свободных конструкций»; не то чтобы необходимых практически. Скорее – как в классической архитектуре портик, бельведер и флагшток – они позиционируют здание в трехмерном пространстве. И меняют восприятие.В данном случае это рамки и прорези в них. Горизонтальная «нога» хранилища перфорирована вертикалями, часто и равномерно. Торцевой фасад слева, сквозь свободное пространство которого проходит балкон, получил крупную, не лишенную парадоксальности, прорезь-«полумеандр» на северном углу. В некоторых ракурсах она довольно эффектна.
Не менее существенны прорези, в которые проходят балконы, а еще – две, напоминающие античные «анты», по сторонам главного козырька. Они усложняют, оформляют главную часть «рамки».
И в то же время входят в резонанс вертикальными витражами на боковых стенках выноса объема конференц-зала. Эти боковые окна позволяют, при необходимости, осветить зал естественным светом. А кроме того выглянуть наружу – и понять, что, будучи внутри, «висишь» во внешнем пространстве преддверия и находишься на одной оси с прорезями вынесенных вперед стенок.
В боковые прорези можно заглянуть и подходя снаружи – к примеру, увидеть обустроенное там небольшое общественное пространство, скамейки и столы. Интересный ракурс.
Все внутренние поверхности перечисленных конструкций покрыты панелями, имитирующими дерево. Цвет вместе с элементом «полумеандра» напоминает «Фьюжн-Парк» в Хамовниках – кажется, именно там была впервые найдена крупная необычная форма, подобная этой, особенно в сочетании с имитацией дерева. В то же время «деревянный» оттенок также призван перекликаться с обилием натурального дерева в интерьерах – и смягчить черно-белое построение своим теплым цветом; особенно в сочетании с ночной подсветкой.
Прозрачность и отражения
Тут их много, очень много, и все они выглядят просчитанными, использованными намеренно.Прозрачность позволяет видеть диагональ лестницы и опоры – структуру атриума – снаружи. Подчеркивает модернистскую слитность пространств «там» и «здесь»; без цоколя удалось обойтись, стекло уходит в пол со стороны интерьера и в мощение с уличной стороны.
Отражение – накладывает поверх силуэты деревьев.
Отражение консоли над входом создает иллюзию ее продолжения как «потолка» внутри.
Но вот что интересно. Тыльная стена общественного корпуса – почти полностью стеклянная. Поэтому во внутреннем дворе мы оказываемся между двумя полосатыми фасадами: хранилищем и его отражением. Так как полосы контрастные, отражение убедительно и считывается даже краем глаза.
Полоски отражаются и в стекле перехода. А как отражается сам переход в стеклянной стене малого корпуса! Вполне можно подумать, что он уходит туда целиком, внутрь – так еще раз проявлена центральная ось.
Государственный архив Российской Федерации. Обнинск
Фотография © Юлия Тарабарина, Архи.ру
Далее, сквозь стеклянную стену читального зала мы видим полоски фасада хранилища. Они зрительно «входят» в интерьер и воспринимаются как его часть. Исследователь-читатель, таким образом, сталкивается с фирменным паттерном минимум трижды: издали, над входом и, наконец, в читальном зале, добравшись до цели своего приезда.
Замечу, что логика паттерна развивается без каких-либо дополнительных рисунков на стенах внутри, что было бы избыточным; «фирменный стиль» соблюден сам собой, посредством архитектурных решений.
Ресепшн, лестница и планеты
В интерьерах соседствуют те же основные цвета, что и на фасадах: белый, черный, реже серый; дерево здесь натуральное, светлее, чем снаружи.В интерьере прослеживается несколько «сюжетов».
Первый привязан к месту – это атриум. Входная треть его пространства невысокая, с черным потолком. Здесь входящего встречает стойка ресепшна, квадратная в плане, из черного акрилового камня. Ни дать ни взять «Черный квадрат» в пространстве. Но вокруг белой колонны (все колонны белые).
Атриум раскрывается справа: белые колонны, белый потолок на двух этажах, светлое дерево, стрела трехмаршевой лестницы с абсолютно прямой линией верха перил – тоже из акрилового камня, абсолютно белого.
Черная стойка – спокойный квадрат, белая лестница «летит» в сторону и вверх. И приводит к белой стенке с еще одним названием архива. Ну и гербом.
Пространство атриума по вертикали сквозное на все три этажа. Самый верхний потолок – опять черный. На нем, с помощью каких-то кружочков технического плана свободно расставлены белые точки двух разных диаметров. На 15-метровой высоте они очень похожи на звезды.
Со «звездного неба», показанного условно, но узнаваемо, свисают белые шары ламп. Их девять, они, очевидно, обозначают планеты Солнечной системы. Если смотреть со стороны лестницы, стена за ними – черная на высоту двух этажей; сама стена принадлежит конференц-залу, но в в этом ракурсе работает как фоновый экран.
Неплохая получилась замена для дорогой дизайнерской люстры или инсталляции, которыми принято украшать такие высокие атриумы. Композиция столь же проста и так же эффективна, как и суперграфика полосок на фасадах.
Мой любимый элемент лестницы – «готические» перила в виде врезанного желобка с деревянным шпоном внутри. Как молния в стремительно-белом массиве.
Сами перила в разрезе трапециевидные, расширяются книзу и чуть скошены с одной – левой – стороны. То ли покачиваются, то ли, наоборот, подчеркивают свою устойчивость. Может быть, даже содержат легкий намек на поворот, который поднявшемуся по лестнице посетителю нужно будет сделать наверху, чтобы прийти в главные общественные пространства: в читальный или в конференц-зал.
Прозрачные стены
Прозрачные стены тут встречаются повсеместно. Это чувствуется везде, но особенно – в «фойе конференц-зала», на балконе второго этажа, где стеклянные стены административной части соседствуют с освещающим все витражом главного фасада. Немалую роль играет и отражающе-блестящий пол.Вид из фойе конференц-зала на фасадный витраж. ГАРФ. Обнинск
Фотография © Юлия Тарабарина, Архи.ру
Переговорная вытянута между атриумом и коридором; две ее продольные стены стеклянные, свет попадает отчасти из читального зала, отчасти – искусственный из коридора, и еще – проходит сквозь атриум.
Двери кабинетов по сторонам обрамлены деревянными плашками, а дальше – стекло. Очевидно, помимо проникновения света прием дает и легкость, и фигуральную «прозрачность»: можно заглянуть мельком в кабинет, понять, идет ли совещание и можно ли стучаться. Например.
Директорский кабинет вытянут вдоль поперечной, функциональной оси. Главное кресло обращено спиной к фасадному витражу, по левую руку – тоже витраж, стеклянная стена, обращенная к лестнице. Через нее, как на «капитанском мостике» видно входящих и выходящих. Если считать «мостики», то это, после террасы хранилища и двух балконов – четвертый, самый символичный из всех.
Наконец, стена читального зала на втором этаже – тоже стеклянная. Вот она, совершенно точно, освещает коридор светом из витража, прошедшим через читальный зал насквозь. Напротив – стена черного цвета.
Стеклянная стена читального зала. ГАРФ. Обнинск
Фотография © Юлия Тарабарина, Архи.ру
Читальный зал
Лучшее из внутренних пространств – большой читальный зал. Оно близко к кубическому. И совершенно белое. Белый куб.Можно себе представить, что контрастная пара читальному залу – черная стойка ресепшна. Она обозначает вход, а зал – цель. Поскольку вторая после хранения важная функция архива это исследовательская работа с документами. Читальный зал – квинтэссенция архива.
Он так и выглядит. Очень просто. Витраж на всю стену, всего одна колонна дает «парную» симметрию. Белый балкон вдоль стены на уровне 3 этажа. Ясное дело, нужен он для того, чтобы архивисты следили сверху, все ли исследователи правильно себя ведут. Но балкон красивый, с ограждением из безимпостного стекла; и вид с него отличный.
Ритмичные плашки рабочих столов и еще более ритмичные квадраты зенитных фонарей. Становится понятно, почему зал такой светлый.
Крупные, расширяющиеся раструбы фонарей. Двойные – опять парная симметрия – электрические фонарики между ними.
Как тут не вспомнить библиотеку Аалто.
И в то же время понятно, почему фонари квадратные. Зал, и сам архив, не настолько параден. Он напоминает еще и ИНИОН Якова Белопольского. Обилие света и проницаемость там не просто есть – а именно что ощущаются на уровне «подкорки». Вот и здесь, что кажется, так.
Не то чтобы было не к чему придраться. Первый вопрос вообще не к архитекторам – почему так далеко от Москвы? Два часа ехать, вы серьезно?
Второй – к качеству и особенностям строительства. Госархив не клубный дом, здесь красота не главный приоритет; вообще говоря, здание могло быть каким угодно, хорошо, что построили так, как построили. Очень многие вещи сделаны качественно. Обогреватели в полу, например, не мешают обзору. Стекло витража приходит к мощению; сам витраж роскошный, 16-метровой высоты. Акриловый камень. Натуральное дерево внутри. Стеклянные ограждения балконов. Много хорошего. Но плашки, имитирующие снаружи дерево, мелковаты и не убедительны. Дерева внутри – на мой вкус, многовато; какая-то дань современной моде на «бежевые» интерьеры. Кстати, мебель бежевая... А может быть «бежевый интерьер» внедрен тут, среди белого, черного, стеклянного и серого – как метафора современного представления о рабочем комфорте? Надо будет обдумать.
На белой стенке вместо золотого герба я бы разместила логотип ГАРФа, черным, как на фасадах. Дальше – смущает обилие металлических укреплений, ферма внутри перехода, стойки перед витражом, хоть и покрасили белым, заметно избыточны – по словам архитекторов, конструктивные укрепления «про запас» были, в какой-то момент, просьбой со стороны заказчика. Ну и подпорок под лестницей, по замыслу, не должно было быть, их добавили строители, опасаясь не справиться с конструкцией. Увы.
Блестящий гранит на полу лично мне тоже кажется излишним. Хочется тут видеть какое-нибудь терраццо или бетон. К примеру, замостить все, внутри и снаружи, серым гранитом, шершавым, не блестящим. Ну и гранитный цоколь кажется лишним, как внутри, так и снаружи.
А самый страшный вопрос: не слишком ли крупные прорези в рамке общественного корпуса? Не слишком ли прост покрывающий ее снаружи черный металл?
Но все это мелкие придирки. Главное – здание современно, но не одномерно. Вроде бы и сделано, как говорят, «на раз-два», лаконично, но не «просто». Окинуть его взглядом и понять основные идеи можно достаточно быстро, однако «пластические сюжеты» раскрываются для наблюдателя постепенно. Его интересно расшифровывать и пытаться понять – на мой взгляд, это главное. Именно это, не только ракурсы, а в некотором случае и парадоксы – формирует в данном случае внутреннюю динамику. Которая и есть архитектура.



