Школа имени Доминика Фрело
Фото © Maxime Verret
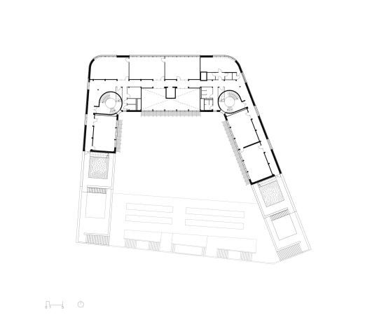
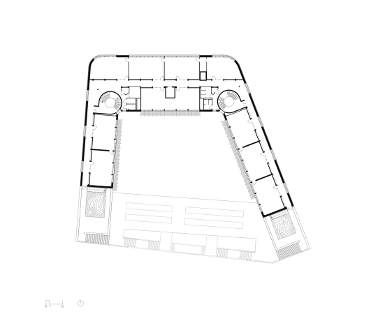
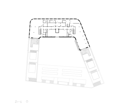
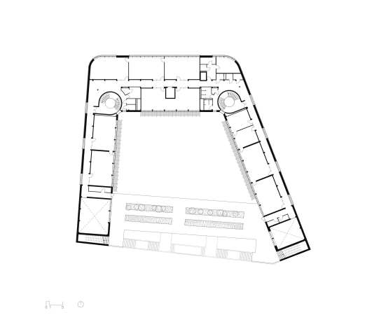
Поэтому архитекторы выбрали необычную для школы, особенно начальной, вертикальную схему, несколько напоминающую крепость. Здание имеет планировку в форме буквы П, защищая от шума, пыли и посторонних взглядов внутренний двор, он же игровая площадка, он же сад (всем озеленением занималась ландшафтная студия Altitude 35).
Школа имени Доминика Фрело
Фото © Maxime Verret
Наружные фасады облицованы светлой керамической плиткой: сочетание выпуклых и плоских элементов придают им рельеф. Со стороны двора использовано дерево, им же полностью обшит верхний, пятый, этаж. Легкие стальные конструкции затеняют окна и служат опорой для вьющихся растений, которые высажены во дворе. Конструкция в здании гибридная – инженерное дерево сочетается с бетоном.
Школа имени Доминика Фрело
Фото © Maxime Verret
Небольшой участок не стал причиной дефицита открытого пространства: кроме двора, здесь есть терраса с учебным огородом на кровле галереи, замыкающей двор (в ней дети могут играть в непогоду). Ножки буквы П имеют ступенчатый силуэт: каждый этаж содержит с каждой стороны на один класс меньше нижнего, а вместо него устроена озелененная терраса. Завершает все зеленая крыша, для прогулок, впрочем, недоступная. Зато на верхнем этаже устроена столовая с панорамным видом.
Школа имени Доминика Фрело
Фото © Salem Mostefaoui
По внешнему периметру идут коридоры с большими окнами, куда выходят 25 классных комнат с остекленными входными группами: так обеспечиваются естественные освещение и вентиляция, а также общая проницаемость пространств. Внутренние перегородки выполнены из прессованных земляных блоков: они повышают тепловую инерцию здания и помогают поддерживать оптимальную влажность. Блоки, как и многие другие части постройки и ее инженерных сетей, никак не декорированы и не замаскированы, что позволяет им служить наглядным пособием для школьников.
Школа имени Доминика Фрело
Фото © Salem Mostefaoui
Встроенная мебель изготовлена по проекту архитекторов из тополевой фанеры.
Школа имени Доминика Фрело
Фото © Salem Mostefaoui
Школа имени Доминика Фрело
Фото © Salem Mostefaoui
