Дом проектировался для семьи из четырех человек в одном из подмосковных коттеджных поселков. На архитектурные решения большое влияние оказал участок. С одной стороны – сложная клинообразная форма при сравнительно небольшой площади в 24 сотки, с другой – хорошо просматриваемые соседние особняки, построенные разнообразно и с выдумкой, в соответствии с ценностями рубежа 1990-2000 годов. На одной из фотографий, например, можно заметить часовую башню со шпилем.
В этих условиях архитектору было необходимо найти место для всех желаемых заказчиком функций, обеспечить хороший вид из окон, предусмотреть камерные уличные зоны. А также поймать верную интонацию в художественных поисках: дом должен был получиться современным, но не слишком.
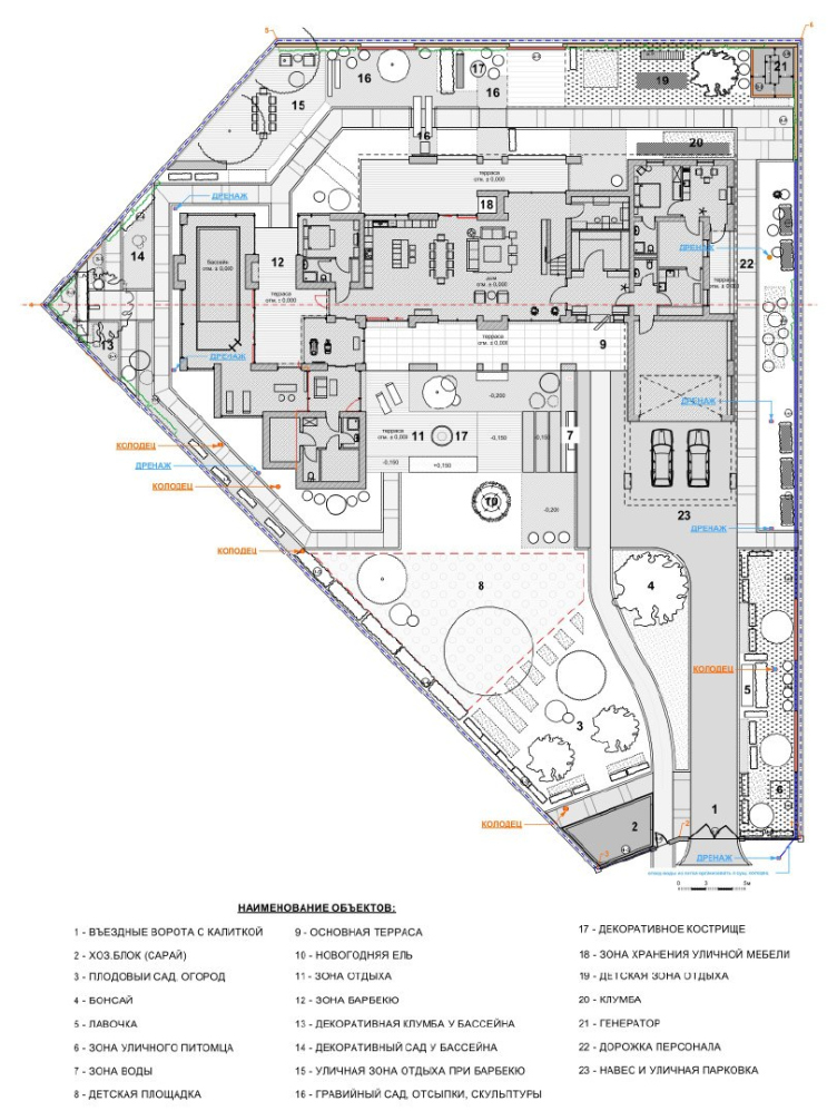
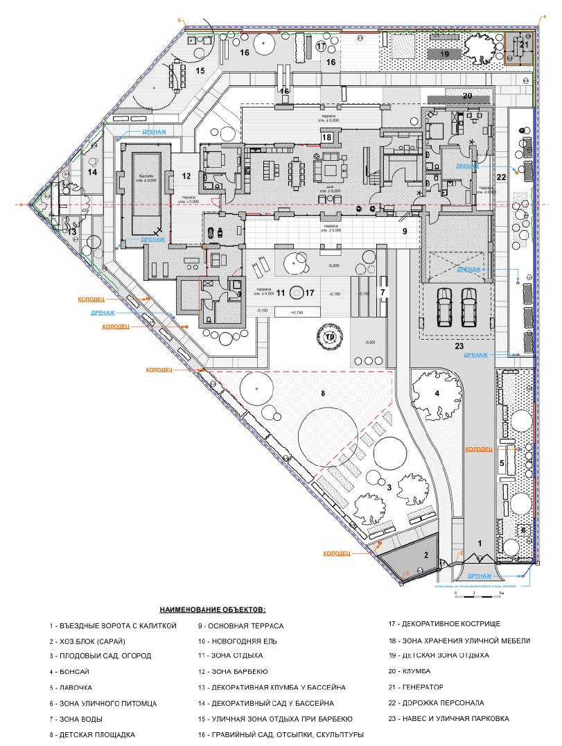
Для решения этих задач весь объем застройки сдвинули к дальней границе участка, заполнив нормативные отступы многообразными зонами для отдыха на открытом воздухе. Таким образом дом встал «спиной» к соседям, а окна гостиной и спален открылись во двор. При этом в панораму неизбежно попал и въезд – но его нивелировали с помощью ландшафтных средств.
Дом получил ясную трехчастную композицию, которая наилучшим образом читается при фронтальном обзоре со стороны большого двора – это, собственно, и есть главный ракурс.
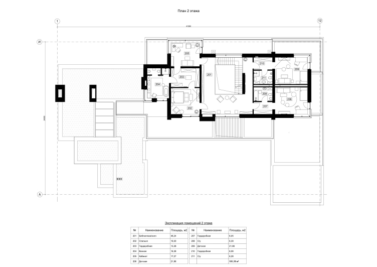
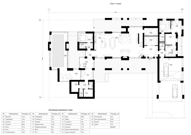
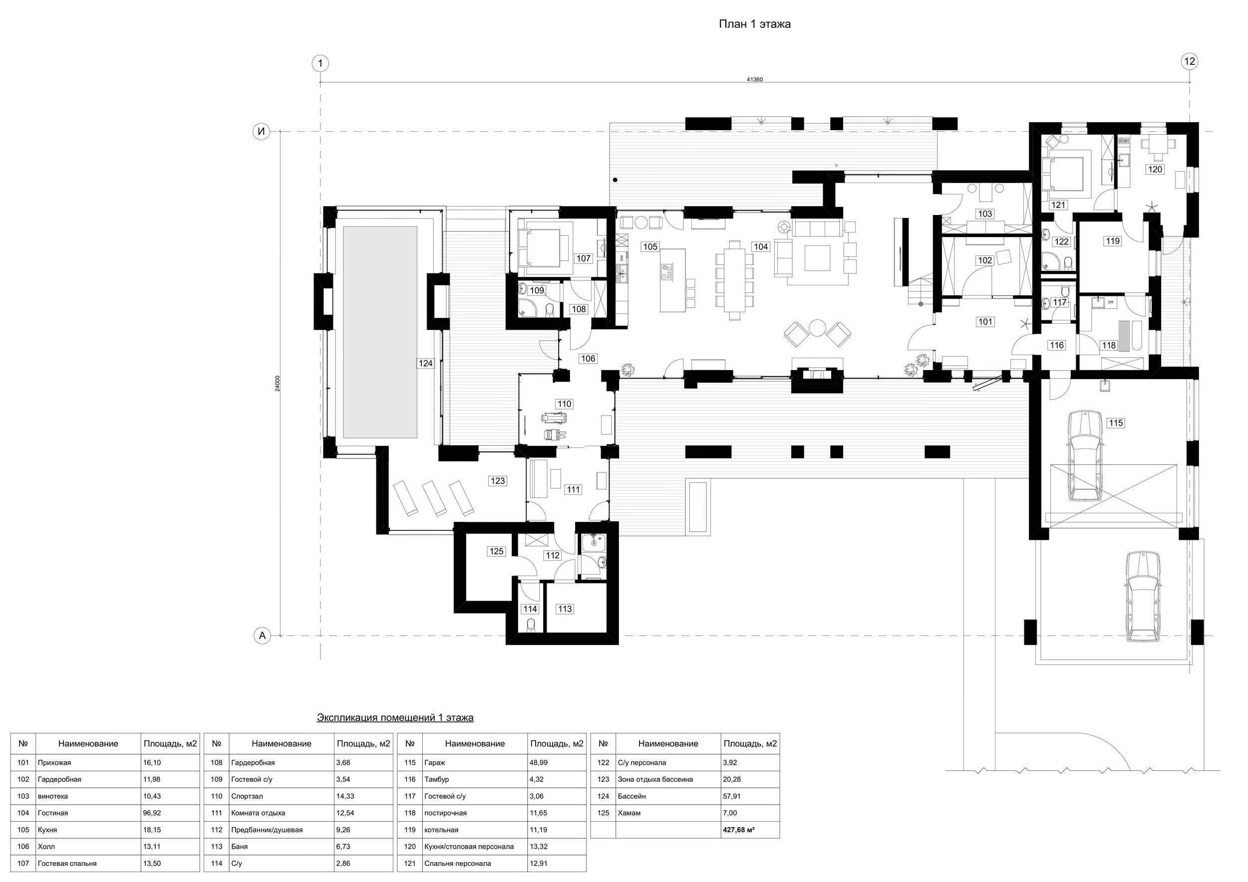
В центре располагается двухэтажный объем с жилыми помещениями. На первом этаже – просторная гостиная, на втором площадью 180 м2 – три спальни с санузлами и кабинет. У каждого помещения есть выход на балкон или террасу, что усиливает связь с природой. В гостиной таких выходов несколько, на две стороны дома: пространство получилось проницаемым, открытым ландшафту и наполненным светом.
Блок справа от центрального – «технический»: в нем размещается котельная, постирочная, винотека, гардеробная, а также помещение для проживания персонала.
Блок слева предназначен для отдыха и развлечений: он вмещает спортивный зал, русскую баню, хаммам и крытый бассейн размером 4х10 метров, который заказчик решил добавить уже во время стройки. Между бассейном, из которого открывается вид на декоративный сад, и гостевой спальней образовался небольшой атриум, ориентированный на уличную зону барбекю.
Банный комплекс и блок гаража создали фланги, дополнительно закрывающие главную террасу. Перед ней раскинулся парадный двор, который по мере роста деревьев будет становиться все более камерным. Пространство же между домом и оградой наполнено функциями: здесь уместились площадка для барбекю, декоративное кострище, детская игровая зона и даже сцена, предназначенная для домашних спектаклей.
В проекте Роман Леонидов использует несколько проверенных приемов, которые можно считать для него характерными: артикулированная горизонталь, «летящая» кровля и триада отделочных материалов. Вдохновением, по признанию автора, послужило наследие Фрэнка Ллойда Райта.
Как уже говорилось, основной и главный ракурс дома – фронтальный, со стороны двора: другие точки обзора просто не позволяют охватить его целиком. Первое, на что обращает внимание глаз – три горизонтальные почти непрерывные линии, подчеркнутые светлой штукатуркой. Первая линия широкая – она отделяет более массивный объем первого этажа. Третья линия отмечает границу дома, а тонкая промежуточная подчеркивает ленту остекления, которая дает помещениям второй свет, но прежде всего – визуально облегчает место стыка стены и скатной кровли, делая последнюю невесомой.
Белая консоль первого этажа опирается на достаточно массивные колонны, облицованные графитовым сланцем, но и здесь есть элемент, снимающий «тяжесть»: стержень колонны оставлен открытым, образуя в месте сопряжения воздух. Контраст подчеркивает работу конструкции и архитектонику здания. Теплоту в черно-белое сочетание штукатурки и сланца привносит деревянный планкен.
Чистота приема на фасаде со стороны границы участка снижается за счет выступающего объема блока мастер-спальни, но по-прежнему считывается. Здесь вертикали подчеркнуты серым цветом – сланца или металла. В интерьере, которым занималась Елена Волгина, используются те же материалы, что на фасадах: например, сланец подчеркивает дымоход камина.
Проектирование дома пришлось на 2016 год, а строительство завершилась не так давно. Как ни парадоксально, сроки возведения «фамильного гнезда» больше, чем у многоквартирного жилого комплекса – время занимают согласования и сверка почти на каждом этапе. Однако заложенные архитектором решения сделали его вневременным, а продуманное зонирование – комфортным для повседневной семейной жизни.
Дом в стиле Райта
Фотография © Роман Леонидов
Дом в стиле Райта. Генеральный план
© АБ Романа Леонидова
Дом в стиле Райта
Фотография © Роман Леонидов
Дом в стиле Райта
Фотография © Роман Леонидов
Дом в стиле Райта. План 1 этажа
© АБ Романа Леонидова
Дом в стиле Райта. План 2 этажа
© АБ Романа Леонидова
Дом в стиле Райта
Фотография © Роман Леонидов
Дом в стиле Райта
Фотография © Роман Леонидов
Дом в стиле Райта
Фотография © Роман Леонидов
Дом в стиле Райта
Фотография © Роман Леонидов
Дом в стиле Райта
Фотография © Роман Леонидов
Дом в стиле Райта
Фотография © Роман Леонидов


