Начальная школа Учжоу
Фото © Zhu Yumeng
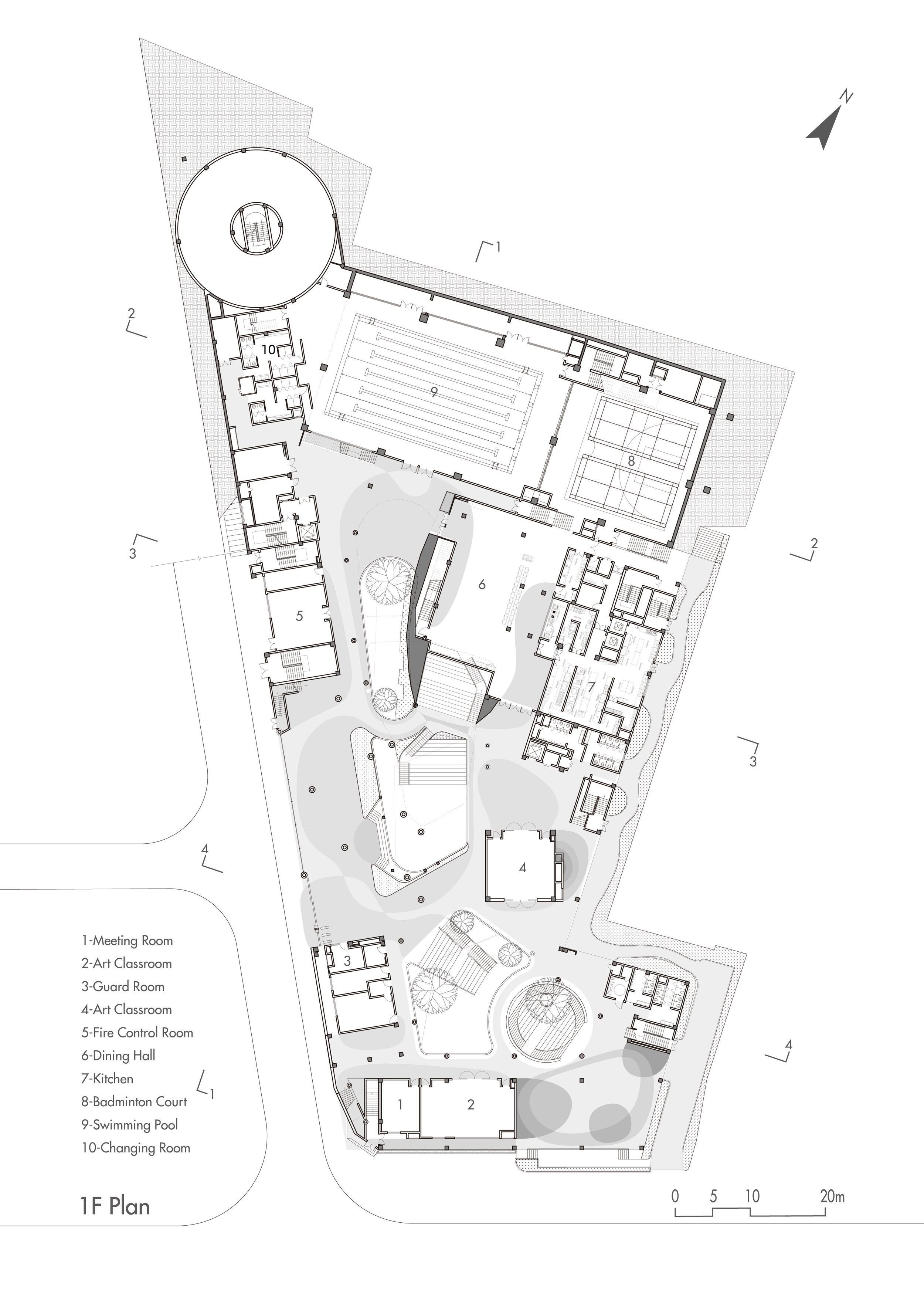
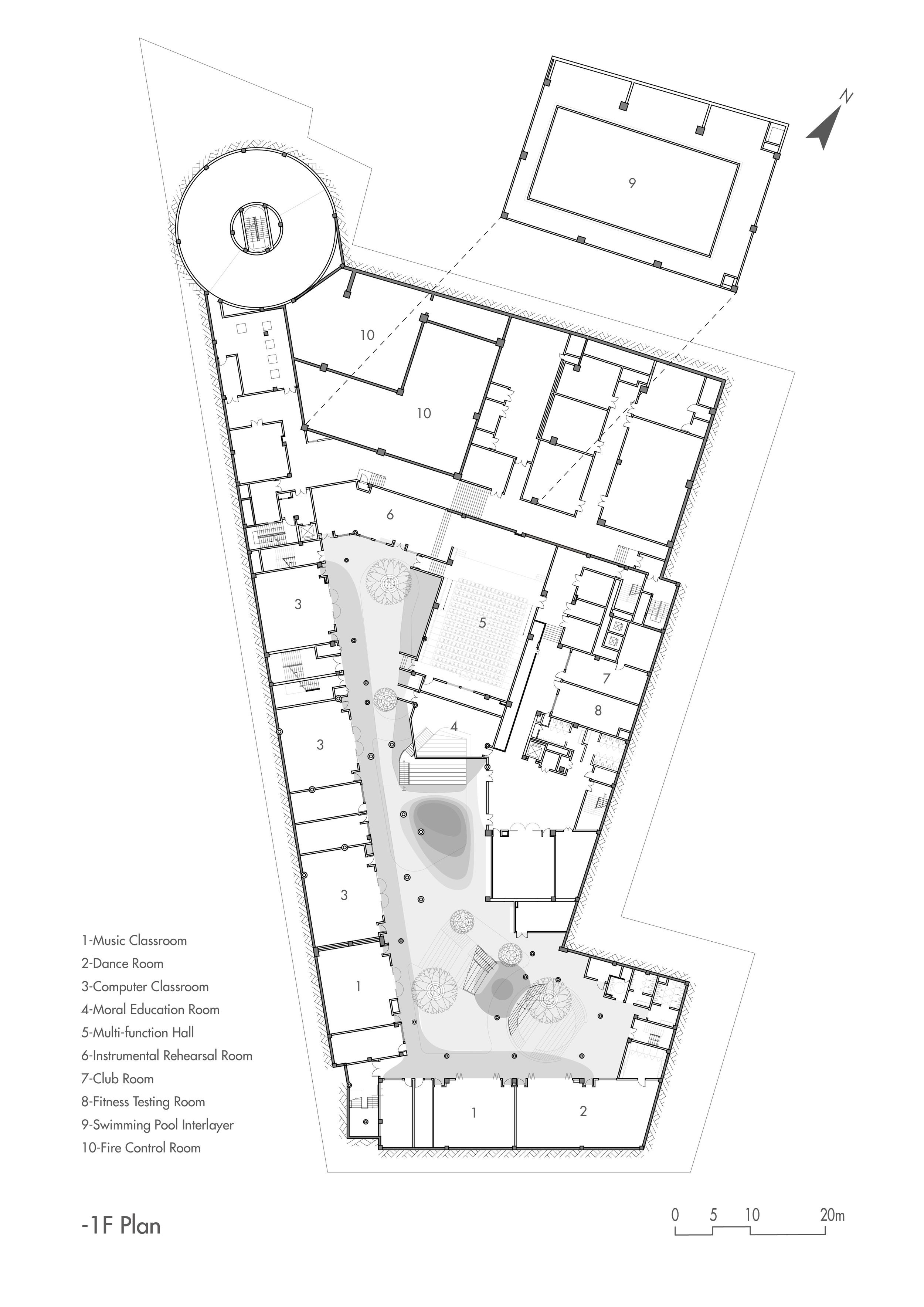
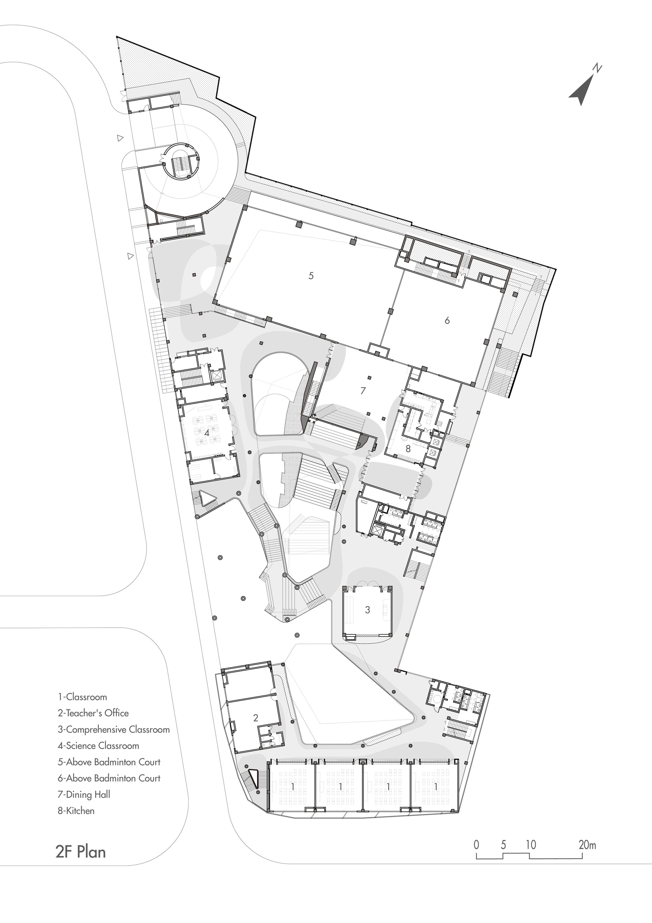
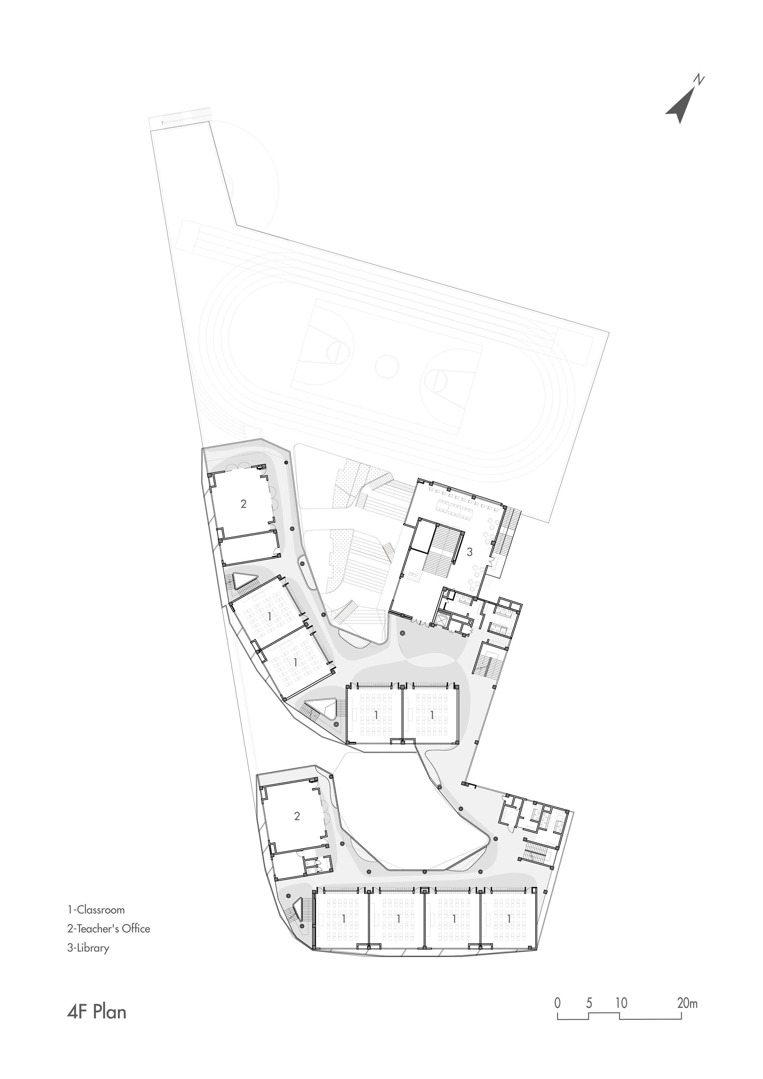
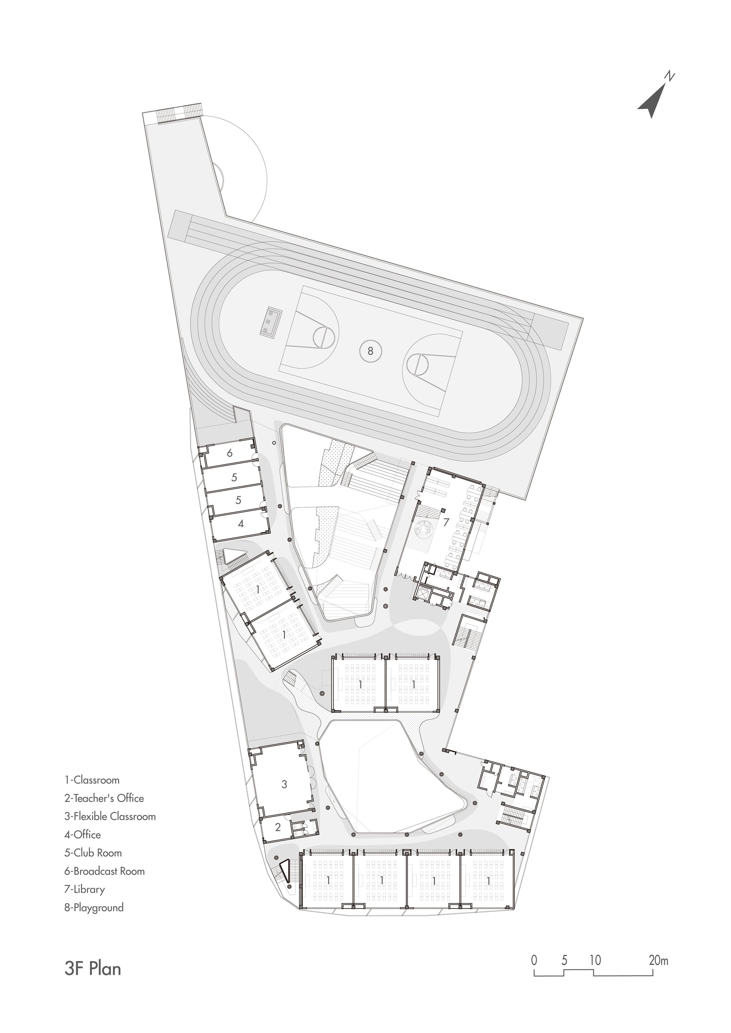
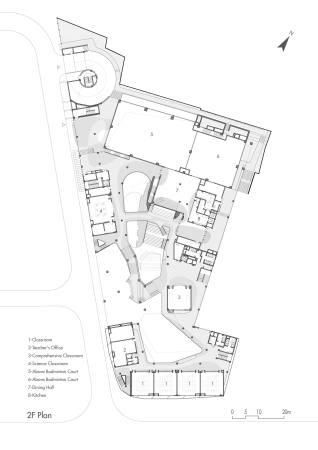
Здание расположено на северной границе большого гольф-клуба, среди многоэтажных жилых домов, на сравнительно небольшом участке. Поэтому школа общей площадью более 20 тыс. м2 получила сложное многоуровневое решение. Архитекторы объясняют, что создали «познавательный ландшафт», который дополняет педагогические подходы, развивающие в детях открытость и любопытство и основанные на «практической» схеме обучения. Во главу угла здесь ставятся творчество, игра и открытие нового.
Поэтому проект далек от традиционной схемы с прямоугольными классами вдоль прямых коридоров. Внутренние учебные пространства сочетаются с внешними, однако снабженными навесами: в Шэньчжэне жаркий и влажный климат. Большую роль играют «промежуточные» зоны – все части школы рассчитаны на обучение и взаимодействие студентов друг с другом, а также на будущую адаптацию к новым образовательным методам.
Начальная школа Учжоу
Фото © Zhu Yumeng
Основные части «познавательного ландшафта» – это Гора, Долина и Пляж. Гора заключает в себе актовый зал и столовую, а снаружи несет лестницу-трибуны, поэтому у ее подножия устроена сцена (также органических форм). Долина имеет меньший размер, так как рассчитана на более юных школьников, но также включает зрительские ряды – по обеим сторонам – и сцену в центре. Пляж – это «холмистая» зона для игр и занятий физкультурой.
Начальная школа Учжоу
Фото © People’s Architecture Office
Террасы, включая зеленую крышу, спортивные площадки и даже библиотеку, соединяют уровни школы визуально и физически. Озеленение помогает защитить здание от перегрева и шума улиц и освежить воздух, а также служит наглядным пособием для учеников, которые и ухаживают за растениями.
Начальная школа Учжоу
Фото © People’s Architecture Office
Начальная школа Учжоу
Фото © Zhu Yumeng
Начальная школа Учжоу
Фото © Zhu Yumeng
Начальная школа Учжоу
Фото © Zhu Yumeng
Начальная школа Учжоу
Фото © People’s Architecture Office
Начальная школа Учжоу
Фото © People’s Architecture Office
Начальная школа Учжоу
Фото © Zhu Yumeng
Начальная школа Учжоу
Фото © Zhu Yumeng
Начальная школа Учжоу
Фото © Zhu Yumeng
Начальная школа Учжоу
Фото © Zhu Yumeng
Начальная школа Учжоу
Фото © People’s Architecture Office
Начальная школа Учжоу
Фото © Zhu Yumeng
