Гостевой дом «Чуньли»
Фото © Hu Siyuan
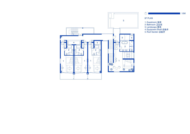
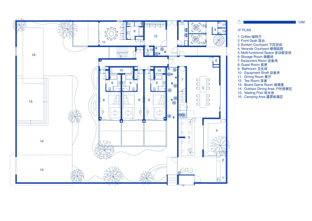
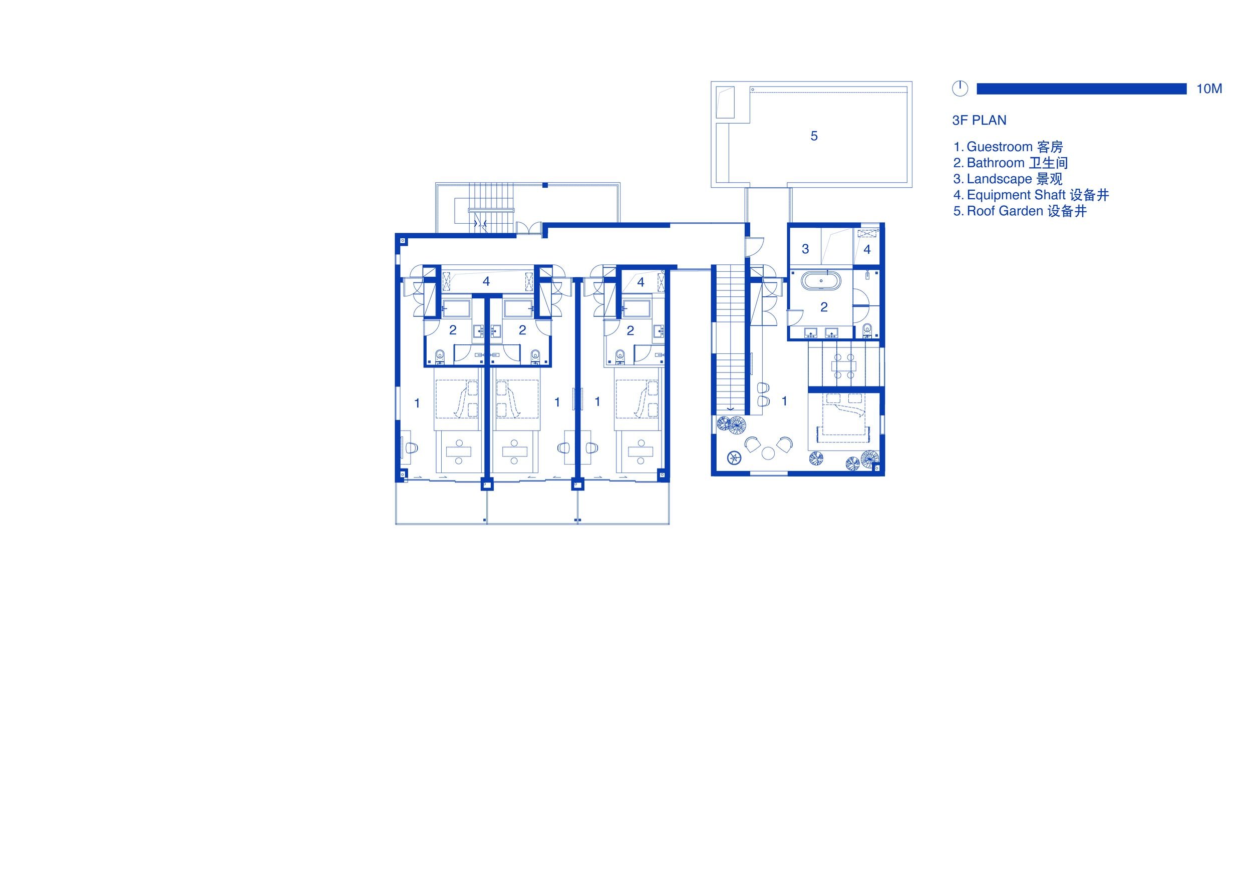
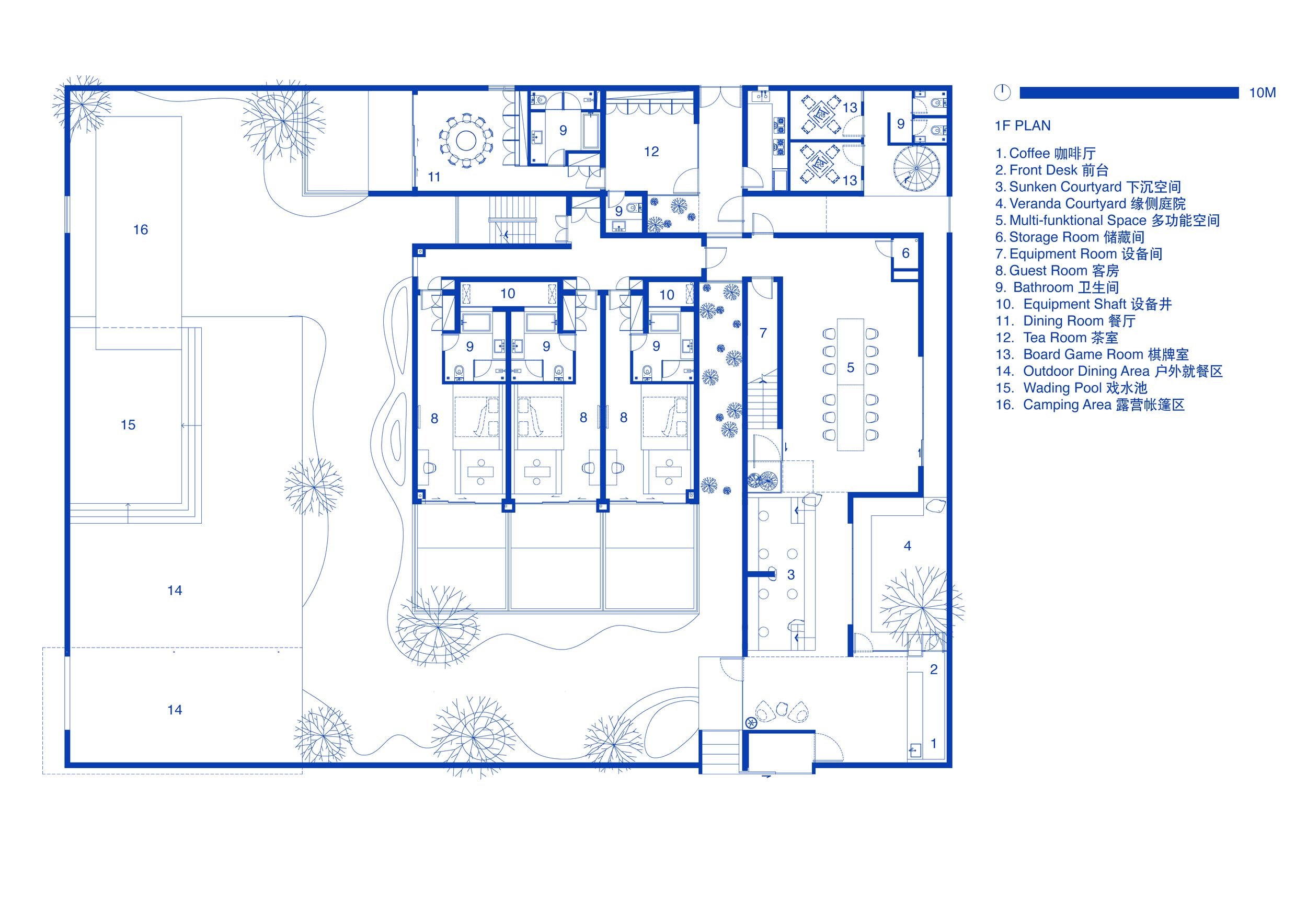
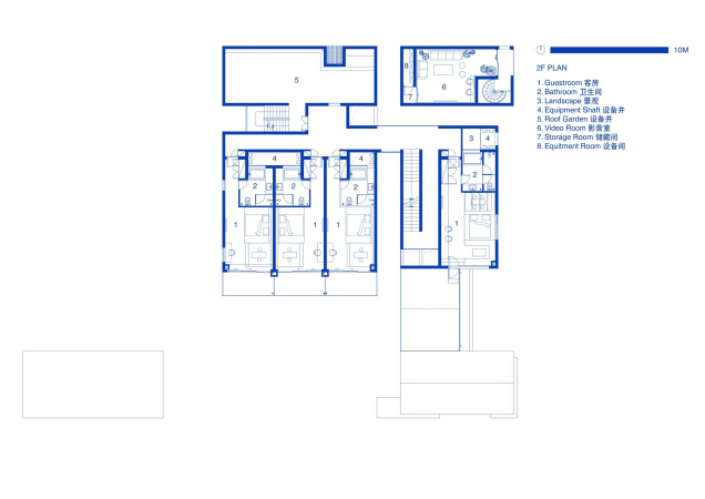
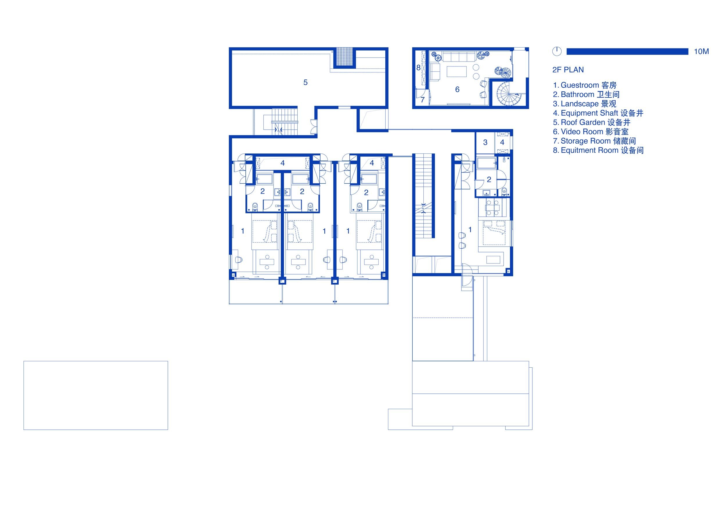
Заказчик приобрел эти два «самостроя» с целью легализовать, превратив в гостевой дом. Он задал архитекторам TEAM_BLDG широкие рамки – ему были лишь нужны 11 номеров и другие полезные пространства типа банкетного зала и комнаты для игры в маджонг.
Гостевой дом «Чуньли»
Фото © Hu Siyuan
В результате авторы проекта сфокусировались на эстетической стороне дела – создании цельного пространства в «симбиозе» с окружающими полями – не забыв о прагматике: потенциальном дефиците бюджета, неожиданных требованиях чиновников при согласовании и недостатке квалифицированных строителей. Поэтому существовавшие на участке постройки были максимально сохранены, включая дополнительные сооружения, например, небольшой подсобный домик со стороны улицы и ограду по периметру.
Гостевой дом «Чуньли»
Фото © Hu Siyuan
В три угла прямоугольного участка были добавлены объемы-соединители: вестибюль, павильон и банкетный зал. По идее архитекторов, они также уточняют границы между приватными и общественными зонами.
Среди «экономических» решений – широкое использование встроенной мебели и максимальное упрощение проекта, позволившее привлечь местных строителей с традиционными приемами работы.
Гостевой дом «Чуньли»
Фото © Hu Siyuan
Гостевой дом «Чуньли»
Фото © Hu Siyuan
