Авторы проекта Kleinewelt Architekten полностью использовали выгоды расположения расположения и, хотя контур участка это прямоугольник, параллельный реке, – собственно дом они вытянули поперечно, то есть меридионально. А такая ориентация по сторонам света, как известно, наиболее выгодна с точки зрения инсоляции и вообще освещенности квартир.
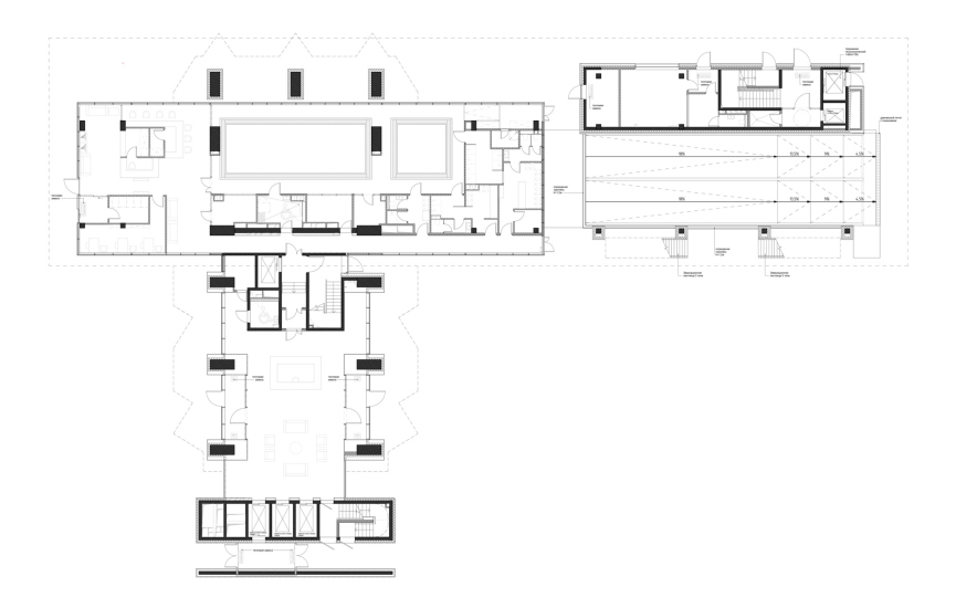
Линию улицы держит поперечная дому «балка» ФОКа с бассейном.
Двухъярусная общественная часть тянется вдоль улицы, оформляя ее и освещая, что морфологически напоминает «стекляшки» позднего модернизма. Отличия – в качестве стекла, глубоких выносах карнизных плит, в наличии балкона, на который можно выйти из физкультурного комплекса к речной панораме; во всех тех мелочах, которых не хватало 1980-м. Идея-то была хорошая, а вот мелочей не хватало. Пожалуй, теперь самое время использовать продуктивные идеи, не гнушаясь мелочей.
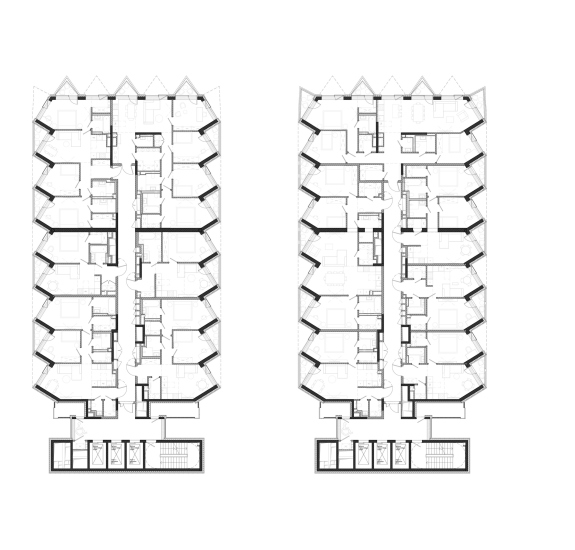
Композиция дома – самая что ни на есть модернистская. В южном торце жилого дома сгруппировано коммуникационное ядро с тремя лифтами, связанное с коридором «прослойкой» прозрачного холла со стеклянными стенами.
Контур жилого дома в нижней части на высоту четырех этажей «прорисован» прямоугольными опорами-пилонами. Он как «дом на ножках», только в «ноги» встроена сначала общественная часть, а потом, в глубине участка – лобби со стеклянными стенами 7-метровой высоты.
С востока к физкультурной части по линии улицы примыкает еще один объем, соединенный с ней переходом. Там размещен въезд в парковку. Не обычный, а с прямой рампой въезда-выезда, чтобы жителям не приходилось задумываться о спиральном повороте.
Подземная парковка – двухъярусная. Высота стилобатного яруса: вдоль улицы это парковка и ФОК, внутри двора лобби с его «обитаемой кровлей» – состоит из двух ярусов, общей высотой чуть более 11 метров. Таким образом, три нижних этажа 27-этажной постройки, условно говоря, девятая часть всей высоты, отдана общественным пространствам разной степени приватности.
Объем лобби, как мы помним, со стеклянными фасадами, вытянут поперечно улице в основании жилой части. На его кровле предусмотрено открытое общественное пространство для жителей – проветриваемый разрыв, «верхний двор» между собственно жилой частью и стеклянным лобби.
Таким образом, дом представляет собой структуру, логично выстроенную из нескольких взаимосвязанных объемов.
Фасады жилой части – реагируют непосредственно на панораму, которая в данном случае преподносится, и со всеми на то основаниями, как главная ценность.
Три главных фасада решены как своего рода объемная «пила», и воспринимаются как одинаковые или похожие, что, на самом деле, не совсем верно. Все они покрыты треугольными балконами, все балконы расположены в шахматном порядке, в линии этажа – через один. Но на главном, в данном случае северном, но зато видовом, торце балконы представляют собой в плане равносторонние треугольники. Линия боковых фасадов – зубчатая, можно сказать, что они составлены из треугольных эркеров, причем треугольники тут уже не равносторонние, а прямоугольные: их гипотенуза примыкает к пространству квартиры и «растворяется» в нем, меньший катет представляет собой глухую стену и обращен на юг, а больший, стеклянный – смотрит на северо-запад или северо-восток, в сторону лесных и речных панорам Серебряного бора. Лаконичная, построенная на простой геометрии и обоснованная с точки зрения рыночной ценности квартир исходя из видовых характеристик, логика.
Балконы на протяженных боковых фасадах вписаны в треугольные углубления, то есть представляют собой своего рода контрапункт по отношению к выступающим вперед треугольникам на торце. Тот факт, что все они «тянутся» к реке, подчеркнут контуром тех балконов, которые, определенно неслучайно, пришлись скошенные угловые стены: они «лишены» передней северной стены, а их внешняя точка немного протянута вперед, что усиливает заострение треугольника и превращает эти балконы в подобия «капитанских мостиков» для созерцания реки.
А заодно усиливает «эффект ершистости» фасадов.
Есть у дома также и «голова», аттиковая часть. Она состоит из пентхаусов «полуторной» четырехметровой высоты, допускающей устройство внутри них лофтовых ярусов с высокой гостиной, со стеклянными фасадами и высокими «нишами», ритмично дробящими стеклянную поверхность верхнего на вертикали.
Три пентхауса с повышенными потолками занимают верхний 27 этаж. На 26 этаже под ними расположены четыре квартиры, по контуру окруженные открытыми террасами – как сообщается, «от уютных 12 до внушительных 91 м2». Внешние стены квартир 26 этажа, соответственно, отступают в глубину – и в абрисе здания возникает не только «голова», но и «шея». Что хорошо работает на выразительность силуэта.
Какая-то в нем чувствуется перекличка с известным зданием Академии наук, которое расположено в другой, юго-западной, части города, но тоже на реке. Хотя, если говорить о творчестве Kleinewelt, «головы» встречаются у их проектах не впервые: вспомним хотя бы ЖК MOD с их светящимися навершиями.
Строительство идет полным ходом, завершить планируют в 2027 году.







